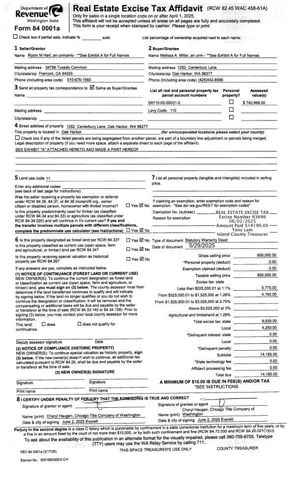
Property
Account |
| Property ID: | 28589 | Abbreviated Legal Description: | 10 COUPE DC - BG 263.24'E & 66'S OF NWCR SD DC S134 1/2' ELY 224.2' N152 1/2' W224 1/2' TPB EX W50' EX E100' |
| Geographic ID: | R13233-395-4320 | Agent Code: | |
| Type: | Real | | |
| Tax Area: | 300 - APPRAISER-Cpvl Schl Dist, in Cpvl | Land Use Code | 79 |
| Open Space: | N | DFL | N |
| Historic Property: | N | Remodel Property: | N |
| Multi-Family Redevelopment: | N | | |
| Township: | 32 | Section: | 33 |
| Range: | R1 |
Location |
| Address: | COUPEVILLE, WA 98239 | Mapsco: | |
| Neighborhood: | 2 Front Street Comercial | Map ID: | 175 |
| Neighborhood CD: | 21cCPfront |
Owner |
| Name: | TOWN OF COUPEVILLE | Owner ID: | 7253 |
| Mailing Address: | 4 NE SEVENTH ST COUPEVILLE, WA 98239 | % Ownership: | 100.0000000000% |
| | | Exemptions: | EX |
Taxes and Assessment Details
Values
| (+) Improvement Homesite Value: | + | $0 | |
| (+) Improvement Non-Homesite Value: | + | $0 | |
| (+) Land Homesite Value: | + | $0 | |
| (+) Land Non-Homesite Value: | + | $50,000 | |
| (+) Curr Use (HS): | + | $0 | $0 |
| (+) Curr Use (NHS): | + | $0 | $0 |
| | | -------------------------- | |
| (=) Market Value: | = | $50,000 | |
| (–) Productivity Loss: | – | $0 | |
| | | -------------------------- | |
| (=) Subtotal: | = | $50,000 | |
| (+) Senior Appraised Value: | + | $0 | |
| (+) Non-Senior Appraised Value: | + | $50,000 | |
| | | -------------------------- | |
| (=) Total Appraised Value: | = | $50,000 | |
| (–) Senior Exemption Loss: | – | $0 | |
| (–) Exemption Loss: | – | $50,000 | |
| | | -------------------------- | |
| (=) Taxable Value: | = | $0 | |
Taxing Jurisdiction
| Owner: | TOWN OF COUPEVILLE | | |
| % Ownership: | 100.0000000000% | | |
| Total Value: | $50,000 | | |
| Tax Area: | 300 - APPRAISER-Cpvl Schl Dist, in Cpvl |
| CF | Conservation Futures | 0.0316035091 | $50,000 | $0 | $0.00 | | |
| CEM2 | Cemetery #2 | 0.0095056933 | $50,000 | $0 | $0.00 | | |
| COUP | City: Town of Coupeville | 0.8426414490 | $50,000 | $0 | $0.00 | | |
| FIRE5 | Fire & Rescue Dist #5 C Whidbey GEN | 1.2008080668 | $50,000 | $0 | $0.00 | | |
| FIRE5BOND | Fire & Rescue Dist #5 C Whidbey BOND | 0.1400090713 | $50,000 | $0 | $0.00 | | |
| HOBOND | Hospital BOND | 0.1910887512 | $50,000 | $0 | $0.00 | | |
| HOGEN | Hospital GEN | 0.3902502903 | $50,000 | $0 | $0.00 | | |
| CE | County Current Expense | 0.3708482477 | $50,000 | $0 | $0.00 | | |
| ISLANDEMS | Hospital GEN (EMS) | 0.5000000000 | $50,000 | $0 | $0.00 | | |
| LIB | Library Sno-Isle GEN | 0.3153421757 | $50,000 | $0 | $0.00 | | |
| LIBCAP | Library Sno-Isle BOND (Cap Fac Imp Area) | 0.0543427938 | $50,000 | $0 | $0.00 | | |
| POCOUP | Port of Coupeville GEN | 0.1093371703 | $50,000 | $0 | $0.00 | | |
| POCOUPIDD | Port of Coupeville IDD | 0.3409740022 | $50,000 | $0 | $0.00 | | |
| COUPSDTECH | School 204 CP (TECH) | 0.7545480007 | $50,000 | $0 | $0.00 | | |
| SCH204MO | School 204 Enrichment | 0.6716186034 | $50,000 | $0 | $0.00 | | |
| ST | State School | 1.3035497053 | $50,000 | $0 | $0.00 | | |
| ST2 | State School Part 2 | 0.8169543533 | $50,000 | $0 | $0.00 | | |
| | Total Tax Rate: | 8.0434218834 | | | | | |
| | | | | Taxes w/Current Exemptions: | $0.00 | | |
| | | | | Taxes w/o Exemptions: | $402.18 | | |
Improvement / Building
Sketch
| No sketches available for this property. |
Property Image
Land
| 1 | 77 | COMMUNITY | 0.2400 | 10454.40 | 74.00 | 0.00 | 1.00 | $50,000 | $0 |
Roll Value History
| 2026 | N/A | N/A | N/A | N/A | N/A |
| 2025 | $0 | $50,000 | $0 | $50,000 | $0 |
| 2024 | $0 | $250,000 | $0 | $250,000 | $0 |
| 2023 | $0 | $250,000 | $0 | $250,000 | $0 |
| 2022 | $0 | $250,000 | $0 | $250,000 | $0 |
| 2021 | $0 | $250,000 | $0 | $250,000 | $0 |
| 2020 | $0 | $250,000 | $0 | $250,000 | $0 |
| 2019 | $0 | $250,000 | $0 | $250,000 | $0 |
| 2018 | $0 | $250,000 | $0 | $250,000 | $0 |
| 2017 | $0 | $200,000 | $0 | $200,000 | $0 |
| 2016 | $0 | $200,000 | $0 | $200,000 | $0 |
| 2015 | $0 | $123,284 | $0 | $123,284 | $0 |
| 2014 | $0 | $123,284 | $0 | $123,284 | $0 |
| 2013 | $0 | $123,284 | $0 | $123,284 | $0 |
| 2012 | $0 | $185,000 | $0 | $185,000 | $185,000 |
| 2011 | $0 | $185,000 | $0 | $185,000 | $185,000 |
| 2010 | $0 | $185,000 | $0 | $185,000 | $185,000 |
| 2009 | $0 | $185,000 | $0 | $185,000 | $185,000 |
| 2008 | $0 | $133,200 | $0 | $133,200 | $133,200 |
| 2007 | $0 | $54,982 | $0 | $54,982 | $54,982 |
Deed and Sales History
| 1 | 09/22/2014 | QCD | Quit Claim Deed | FOX, HAIGH P | TOWN OF COUPEVILLE | | | $0.00 | 17063 | 4366565 |
| 2 | 09/01/1999 | WD | Warranty Deed | DANA, GWENDOLYN J | FOX, HAIGH P | | | $31,290.00 | 93705 | 99020878 |
| 3 | 05/01/1994 | WD | Warranty Deed | VAN, JONES, L | DANA, GWENDOLYN J | | | $0.00 | 41762 | 94010404 |
| 4 | 01/01/1900 | OTHER | Other - Misc. Documents | Unknown | VAN, JONES, L | | | $0.00 | 0 | 0 |
Payout Agreement
| No payout information available.. |