Property
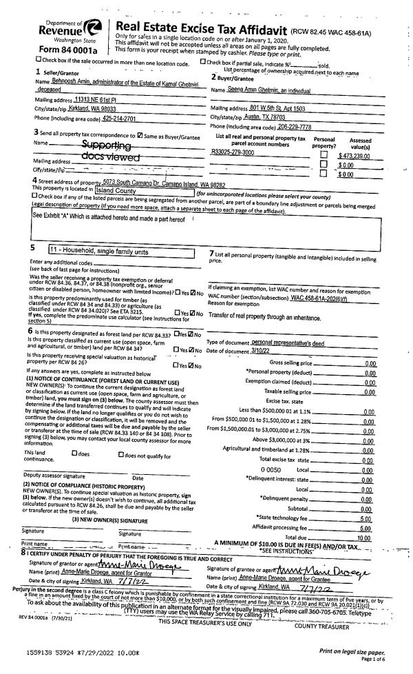
Account |
| Property ID: | 286407 | Abbreviated Legal Description: | JUNIPER BCH LOTS 7 & 8 BLK 3 TGW & SUB EZ AF#91009137 COMB 10/92 |
| Geographic ID: | S7260-00-03007-0 | Agent Code: | |
| Type: | Real | | |
| Tax Area: | 580 - APPRAISER-Stan/Cam Schl Dist, Special Dist, improved & less than 1 acre | Land Use Code | 11 |
| Open Space: | N | DFL | N |
| Historic Property: | N | Remodel Property: | N |
| Multi-Family Redevelopment: | N | | |
| Township: | | Section: | |
| Range: | |
Location |
| Address: | 1494 JUNIPER LN CAMANO ISLAND, WA 98282 | Mapsco: | |
| Neighborhood: | Cycle 5 | Map ID: | 981 |
| Neighborhood CD: | 5 |
Owner |
| Name: | GILDOW, CHRISTOPHER | Owner ID: | 257385 |
| Mailing Address: | CHRISTINE GILDOW PO BOX 60086 SHORELINE, WA 98160 | % Ownership: | 100.0000000000% |
| | | Exemptions: | |
Taxes and Assessment Details
Values
| (+) Improvement Homesite Value: | + | $0 | |
| (+) Improvement Non-Homesite Value: | + | $332,145 | |
| (+) Land Homesite Value: | + | $0 | |
| (+) Land Non-Homesite Value: | + | $725,000 | |
| (+) Curr Use (HS): | + | $0 | $0 |
| (+) Curr Use (NHS): | + | $0 | $0 |
| | | -------------------------- | |
| (=) Market Value: | = | $1,057,145 | |
| (–) Productivity Loss: | – | $0 | |
| | | -------------------------- | |
| (=) Subtotal: | = | $1,057,145 | |
| (+) Senior Appraised Value: | + | $0 | |
| (+) Non-Senior Appraised Value: | + | $1,057,145 | |
| | | -------------------------- | |
| (=) Total Appraised Value: | = | $1,057,145 | |
| (–) Senior Exemption Loss: | – | $0 | |
| (–) Exemption Loss: | – | $0 | |
| | | -------------------------- | |
| (=) Taxable Value: | = | $1,057,145 | |
Taxing Jurisdiction
| Owner: | GILDOW, CHRISTOPHER | | |
| % Ownership: | 100.0000000000% | | |
| Total Value: | $1,057,145 | | |
| Tax Area: | 580 - APPRAISER-Stan/Cam Schl Dist, Special Dist, improved & less than 1 acre |
| CF | Conservation Futures | 0.0316035091 | $1,057,145 | $1,057,145 | $33.41 | | |
| EMS1 | Fire & Rescue Dist #1 Camano GEN (EMS) | 0.3677864386 | $1,057,145 | $1,057,145 | $388.80 | | |
| FIRE1 | Fire & Rescue Dist #1 Camano GEN | 1.2502910536 | $1,057,145 | $1,057,145 | $1,321.74 | | |
| FIRE1BOND | Fire & Rescue Dist #1 Camano BOND | 0.1570001679 | $1,057,145 | $1,057,145 | $165.97 | | |
| CE | County Current Expense | 0.3708482477 | $1,057,145 | $1,057,145 | $392.04 | | |
| CR | County Roads | 0.4584763726 | $1,057,145 | $1,057,145 | $484.68 | | |
| LCIB | Library Sno-Isle BOND (Camano Island) | 0.0396325772 | $1,057,145 | $1,057,145 | $41.90 | | |
| LIB | Library Sno-Isle GEN | 0.3153421757 | $1,057,145 | $1,057,145 | $333.36 | | |
| SCH205_401 | School 205-401 Enrichment | 1.2698420524 | $1,057,145 | $1,057,145 | $1,342.41 | | |
| SCH205BOND | School 205-401 BOND | 0.9396497583 | $1,057,145 | $1,057,145 | $993.35 | | |
| ST | State School | 1.3035497053 | $1,057,145 | $1,057,145 | $1,378.04 | | |
| ST2 | State School Part 2 | 0.8169543533 | $1,057,145 | $1,057,145 | $863.64 | | |
| | Total Tax Rate: | 7.3209764117 | | | | | |
| | | | | Taxes w/Current Exemptions: | $7,739.34 | | |
| | | | | Taxes w/o Exemptions: | $7,739.34 | | |
Improvement / Building
| Improvement #1: | RESIDENTIAL | State Code: | Y | 2810.6 sqft | Value: | $332,145 |
| Bathrooms: | 2.5 | Bedrooms: | 2 | | Ceiling: | DRYWALL PAINTED | Exterior Wall/Cover: | CEMENT FIBER | | Floor Covering: | CARPET/VINYL 80-20 | Floor Structure: | WOOD W/SUBFLOOR | | Foundation: | CONCRETE | Heating: | WALL HEAT ELECTRIC | | Interior Finish: | DRYWALL PAINT | Plumbing Fixture Cnt: | 12 | | Roof Slope: | 4" IN 12" | Roof Structure/Cover: | CJ ASPHALT |
|
| | Type | Description | Class CD | Sub Class CD | Year Built | Area |
| | BAS | BASE/MAIN FLOOR | 3 | 0 | 1993 | 1429.9 |
| | DGR | DETACHED GARAGE | 3 | 0 | 1993 | 528.0 |
| | UPS | UPPER STORY | 3 | 0 | 1993 | 1380.7 |
| | OWP | OPEN WOOD PORCH W/STEPS | 3 | 0 | 1993 | 144.1 |
| | OWP | OPEN WOOD PORCH W/STEPS | 3 | 0 | 1993 | 246.0 |
| | OWP | OPEN WOOD PORCH W/STEPS | 3 | 0 | 1993 | 588.1 |
| | ATF | ATTIC FINISHED | 3 | 0 | 1993 | 528.0 |
Sketch
Property Image
Land
| 1 | LB | LOW BANK | 0.0000 | 0.00 | 50.00 | 0.00 | 1.00 | $725,000 | $0 |
Roll Value History
| 2026 | N/A | N/A | N/A | N/A | N/A |
| 2025 | $332,145 | $725,000 | $0 | $1,057,145 | $1,057,145 |
| 2024 | $336,337 | $725,000 | $0 | $1,061,337 | $1,061,337 |
| 2023 | $340,526 | $685,000 | $0 | $1,025,526 | $1,025,526 |
| 2022 | $312,151 | $625,000 | $0 | $937,151 | $937,151 |
| 2021 | $261,526 | $500,000 | $0 | $761,526 | $761,526 |
| 2020 | $255,440 | $475,000 | $0 | $730,440 | $730,440 |
| 2019 | $202,058 | $475,000 | $0 | $677,058 | $677,058 |
| 2018 | $202,681 | $475,000 | $0 | $677,681 | $677,681 |
| 2017 | $203,942 | $475,000 | $0 | $678,942 | $678,942 |
| 2016 | $206,428 | $450,000 | $0 | $656,428 | $656,428 |
| 2015 | $208,916 | $450,000 | $0 | $658,916 | $658,916 |
| 2014 | $208,916 | $450,000 | $0 | $658,916 | $658,916 |
| 2013 | $214,971 | $400,000 | $0 | $614,971 | $614,971 |
| 2012 | $118,728 | $439,929 | $0 | $558,657 | $558,657 |
| 2011 | $249,018 | $463,083 | $0 | $712,101 | $712,101 |
| 2010 | $254,405 | $463,083 | $0 | $717,488 | $717,488 |
| 2009 | $268,158 | $540,740 | $0 | $808,898 | $808,898 |
| 2008 | $271,563 | $540,740 | $0 | $812,303 | $812,303 |
| 2007 | $274,974 | $576,069 | $0 | $851,043 | $851,043 |
Deed and Sales History
| 1 | 04/17/2012 | WD | Warranty Deed | RICKMAN, JOYCE H & LOUIS | GILDOW, CHRISTOPHER | | | $510,000.00 | 7401 | 4313803 |
| 2 | 05/01/1993 | QCD | Quit Claim Deed | RICKMAN, JOYCE H | RICKMAN, JOYCE H | | | $0.00 | 31858 | 93009682 |
| 3 | 10/01/1992 | OTHER | Other - Misc. Documents | RICKMAN, JOYCE H | RICKMAN, JOYCE H | | | $0.00 | 65091 | 92019211 |
| 4 | 04/01/1962 | TRUSTEED | Trustee's Deed | BERGMAN, THEO J | RICKMAN, JOYCE H | | | $0.00 | 12032 | 0 |
| 5 | 01/01/1900 | OTHER | Other - Misc. Documents | Unknown | BERGMAN, THEO J | | | $0.00 | 0 | 0 |
Payout Agreement
| No payout information available.. |