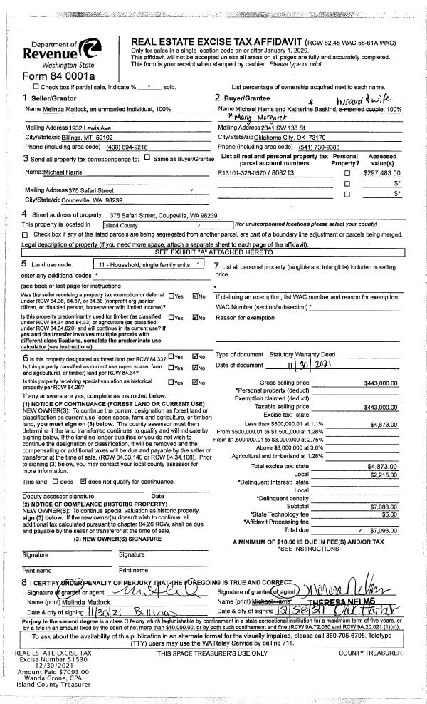
Property
Account |
| Property ID: | 286470 | Abbreviated Legal Description: | JUNIPER BCH E4' LOT 4 & ALL LOT 5, 6 & 7 BLK 4 EX RD: BG 7.5'W OF SECR L7 N PAR/W ELN L7 TP 10'S OF NLN SD LOT NWLY TP ON NLN 17.5'W OF ELN ELY ALG SD NLN TO NE CR SD LOT S ALG ELN TPB EX RD COMB 6/86 |
| Geographic ID: | S7260-00-04005-0 | Agent Code: | |
| Type: | Real | | |
| Tax Area: | 580 - APPRAISER-Stan/Cam Schl Dist, Special Dist, improved & less than 1 acre | Land Use Code | 11 |
| Open Space: | N | DFL | N |
| Historic Property: | N | Remodel Property: | N |
| Multi-Family Redevelopment: | N | | |
| Township: | | Section: | |
| Range: | |
Location |
| Address: | 1460 OCEAN DR CAMANO ISLAND, WA 98282 | Mapsco: | |
| Neighborhood: | Cycle 5 | Map ID: | 981 |
| Neighborhood CD: | 5 |
Owner |
| Name: | OLSON, ELIZABETH | Owner ID: | 300899 |
| Mailing Address: | 18309 17TH PL NW SHORELINE, WA 98177 | % Ownership: | 100.0000000000% |
| | | Exemptions: | |
Taxes and Assessment Details
Values
| (+) Improvement Homesite Value: | + | $0 | |
| (+) Improvement Non-Homesite Value: | + | $289,901 | |
| (+) Land Homesite Value: | + | $0 | |
| (+) Land Non-Homesite Value: | + | $250,000 | |
| (+) Curr Use (HS): | + | $0 | $0 |
| (+) Curr Use (NHS): | + | $0 | $0 |
| | | -------------------------- | |
| (=) Market Value: | = | $539,901 | |
| (–) Productivity Loss: | – | $0 | |
| | | -------------------------- | |
| (=) Subtotal: | = | $539,901 | |
| (+) Senior Appraised Value: | + | $0 | |
| (+) Non-Senior Appraised Value: | + | $539,901 | |
| | | -------------------------- | |
| (=) Total Appraised Value: | = | $539,901 | |
| (–) Senior Exemption Loss: | – | $0 | |
| (–) Exemption Loss: | – | $0 | |
| | | -------------------------- | |
| (=) Taxable Value: | = | $539,901 | |
Taxing Jurisdiction
| Owner: | OLSON, ELIZABETH | | |
| % Ownership: | 100.0000000000% | | |
| Total Value: | $539,901 | | |
| Tax Area: | 580 - APPRAISER-Stan/Cam Schl Dist, Special Dist, improved & less than 1 acre |
| CF | Conservation Futures | 0.0316035091 | $539,901 | $539,901 | $17.06 | | |
| EMS1 | Fire & Rescue Dist #1 Camano GEN (EMS) | 0.3677864386 | $539,901 | $539,901 | $198.57 | | |
| FIRE1 | Fire & Rescue Dist #1 Camano GEN | 1.2502910536 | $539,901 | $539,901 | $675.03 | | |
| FIRE1BOND | Fire & Rescue Dist #1 Camano BOND | 0.1570001679 | $539,901 | $539,901 | $84.76 | | |
| CE | County Current Expense | 0.3708482477 | $539,901 | $539,901 | $200.22 | | |
| CR | County Roads | 0.4584763726 | $539,901 | $539,901 | $247.53 | | |
| LCIB | Library Sno-Isle BOND (Camano Island) | 0.0396325772 | $539,901 | $539,901 | $21.40 | | |
| LIB | Library Sno-Isle GEN | 0.3153421757 | $539,901 | $539,901 | $170.25 | | |
| SCH205_401 | School 205-401 Enrichment | 1.2698420524 | $539,901 | $539,901 | $685.59 | | |
| SCH205BOND | School 205-401 BOND | 0.9396497583 | $539,901 | $539,901 | $507.32 | | |
| ST | State School | 1.3035497053 | $539,901 | $539,901 | $703.79 | | |
| ST2 | State School Part 2 | 0.8169543533 | $539,901 | $539,901 | $441.07 | | |
| | Total Tax Rate: | 7.3209764117 | | | | | |
| | | | | Taxes w/Current Exemptions: | $3,952.59 | | |
| | | | | Taxes w/o Exemptions: | $3,952.59 | | |
Improvement / Building
| Improvement #1: | RESIDENTIAL | State Code: | Y | 1292.0 sqft | Value: | $289,901 |
| Bathrooms: | 2 | Bedrooms: | 2 | | Ceiling: | DRYWALL PAINTED | Exterior Wall/Cover: | SHINGLE | | Floor Covering: | CARPET/VINYL 80-20 | Floor Structure: | WOOD W/SUBFLOOR | | Foundation: | CONCRETE | Heating: | BASEBOARD ELECTRIC | | Interior Finish: | DRYWALL PAINT | Plumbing Fixture Cnt: | 10 | | Roof Slope: | 8" IN 12" | Roof Structure/Cover: | CJ ASPHALT |
|
| | Type | Description | Class CD | Sub Class CD | Year Built | Area |
| | BAS | BASE/MAIN FLOOR | 4 | 0 | 1954 | 812.0 |
| | BIG | BUILT IN GARAGE | 4 | 0 | 1954 | 440.0 |
| | UPS | UPPER STORY | 4 | 0 | 1954 | 480.0 |
| | OWP | OPEN WOOD PORCH W/STEPS | 4 | 0 | 1954 | 310.0 |
| | OWR | OPEN WOOD PORCH W/STEPS/ROOF | 4 | 0 | 1954 | 128.0 |
| | OWP | OPEN WOOD PORCH W/STEPS | 4 | 0 | 1954 | 200.0 |
Sketch
Property Image
Land
| 1 | 14 | SQ (08001-12000) | 0.2000 | 8712.00 | 0.00 | 0.00 | 1.00 | $250,000 | $0 |
Roll Value History
| 2026 | N/A | N/A | N/A | N/A | N/A |
| 2025 | $289,901 | $250,000 | $0 | $539,901 | $539,901 |
| 2024 | $299,012 | $240,000 | $0 | $539,012 | $539,012 |
| 2023 | $302,691 | $210,000 | $0 | $512,691 | $512,691 |
| 2022 | $272,805 | $210,000 | $0 | $482,805 | $482,805 |
| 2021 | $218,620 | $160,000 | $0 | $378,620 | $378,620 |
| 2020 | $212,602 | $130,000 | $0 | $342,602 | $342,602 |
| 2019 | $151,443 | $170,000 | $0 | $321,443 | $321,443 |
| 2018 | $151,884 | $120,000 | $0 | $271,884 | $271,884 |
| 2017 | $152,761 | $100,000 | $0 | $252,761 | $252,761 |
| 2016 | $154,517 | $85,000 | $0 | $239,517 | $239,517 |
| 2015 | $129,397 | $125,000 | $0 | $254,397 | $254,397 |
| 2014 | $131,087 | $125,000 | $0 | $256,087 | $256,087 |
| 2013 | $132,776 | $120,000 | $0 | $252,776 | $252,776 |
| 2012 | $134,467 | $120,000 | $0 | $254,467 | $254,467 |
| 2011 | $136,157 | $150,000 | $0 | $286,157 | $286,157 |
| 2010 | $143,052 | $150,000 | $0 | $293,052 | $293,052 |
| 2009 | $135,716 | $175,000 | $0 | $310,716 | $310,716 |
| 2008 | $138,221 | $175,000 | $0 | $313,221 | $313,221 |
| 2007 | $140,759 | $175,000 | $0 | $315,759 | $315,759 |
Deed and Sales History
| 1 | 08/23/2021 | WD | Warranty Deed | MATHIES, NORMA L | OLSON, ELIZABETH | | | $825,000.00 | 49786 | 4527688 |
| 2 | 09/30/2004 | PRD | Personal Representatives Deed | MATHIES, NORMA L | MATHIES, NORMA L | | | $0.00 | 44688 | 4114684 |
| 3 | 06/01/1986 | OTHER | Other - Misc. Documents | MATHIES, NORMA L | MATHIES, NORMA L | | | $0.00 | 61652 | 86001087 |
| 4 | 08/01/1984 | QCD | Quit Claim Deed | GROCHOW, LILLIAN T | MATHIES, NORMA L | | | $0.00 | 42440 | 84002138 |
| 5 | 01/01/1900 | OTHER | Other - Misc. Documents | Unknown | GROCHOW, LILLIAN T | | | $0.00 | 0 | 0 |
Payout Agreement
| No payout information available.. |