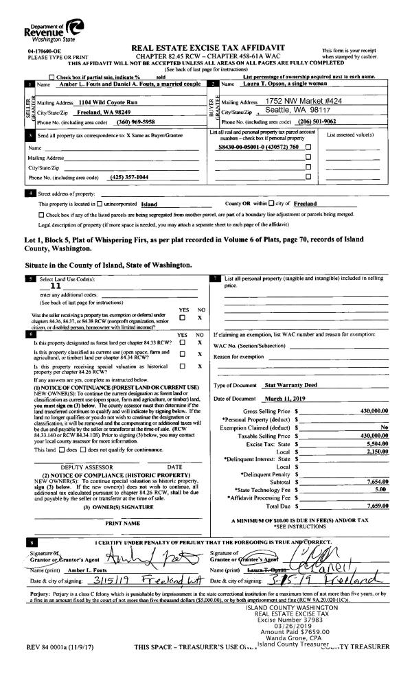
Property
Account |
| Property ID: | 286504 | Abbreviated Legal Description: | JUNIPER BCH LOTS 3 & 4 & W4' OF N66' OF LOT 5 BLK 5 |
| Geographic ID: | S7260-00-05003-0 | Agent Code: | |
| Type: | Real | | |
| Tax Area: | 580 - APPRAISER-Stan/Cam Schl Dist, Special Dist, improved & less than 1 acre | Land Use Code | 11 |
| Open Space: | N | DFL | N |
| Historic Property: | N | Remodel Property: | N |
| Multi-Family Redevelopment: | N | | |
| Township: | | Section: | |
| Range: | |
Location |
| Address: | 1473 JUNIPER LN CAMANO ISLAND, WA 98282 | Mapsco: | |
| Neighborhood: | Cycle 5 | Map ID: | 981 |
| Neighborhood CD: | 5 |
Owner |
| Name: | HJERVIKEN LEGACY, LLC | Owner ID: | 288867 |
| Mailing Address: | 18302 NE 107TH ST REDMOND, WA 98052 | % Ownership: | 100.0000000000% |
| | | Exemptions: | |
Taxes and Assessment Details
Values
| (+) Improvement Homesite Value: | + | $0 | |
| (+) Improvement Non-Homesite Value: | + | $368,095 | |
| (+) Land Homesite Value: | + | $0 | |
| (+) Land Non-Homesite Value: | + | $212,500 | |
| (+) Curr Use (HS): | + | $0 | $0 |
| (+) Curr Use (NHS): | + | $0 | $0 |
| | | -------------------------- | |
| (=) Market Value: | = | $580,595 | |
| (–) Productivity Loss: | – | $0 | |
| | | -------------------------- | |
| (=) Subtotal: | = | $580,595 | |
| (+) Senior Appraised Value: | + | $0 | |
| (+) Non-Senior Appraised Value: | + | $580,595 | |
| | | -------------------------- | |
| (=) Total Appraised Value: | = | $580,595 | |
| (–) Senior Exemption Loss: | – | $0 | |
| (–) Exemption Loss: | – | $0 | |
| | | -------------------------- | |
| (=) Taxable Value: | = | $580,595 | |
Taxing Jurisdiction
| Owner: | HJERVIKEN LEGACY, LLC | | |
| % Ownership: | 100.0000000000% | | |
| Total Value: | $580,595 | | |
| Tax Area: | 580 - APPRAISER-Stan/Cam Schl Dist, Special Dist, improved & less than 1 acre |
| CF | Conservation Futures | 0.0316035091 | $580,595 | $580,595 | $18.35 | | |
| EMS1 | Fire & Rescue Dist #1 Camano GEN (EMS) | 0.3677864386 | $580,595 | $580,595 | $213.53 | | |
| FIRE1 | Fire & Rescue Dist #1 Camano GEN | 1.2502910536 | $580,595 | $580,595 | $725.91 | | |
| FIRE1BOND | Fire & Rescue Dist #1 Camano BOND | 0.1570001679 | $580,595 | $580,595 | $91.15 | | |
| CE | County Current Expense | 0.3708482477 | $580,595 | $580,595 | $215.31 | | |
| CR | County Roads | 0.4584763726 | $580,595 | $580,595 | $266.19 | | |
| LCIB | Library Sno-Isle BOND (Camano Island) | 0.0396325772 | $580,595 | $580,595 | $23.01 | | |
| LIB | Library Sno-Isle GEN | 0.3153421757 | $580,595 | $580,595 | $183.09 | | |
| SCH205_401 | School 205-401 Enrichment | 1.2698420524 | $580,595 | $580,595 | $737.26 | | |
| SCH205BOND | School 205-401 BOND | 0.9396497583 | $580,595 | $580,595 | $545.56 | | |
| ST | State School | 1.3035497053 | $580,595 | $580,595 | $756.83 | | |
| ST2 | State School Part 2 | 0.8169543533 | $580,595 | $580,595 | $474.32 | | |
| | Total Tax Rate: | 7.3209764117 | | | | | |
| | | | | Taxes w/Current Exemptions: | $4,250.51 | | |
| | | | | Taxes w/o Exemptions: | $4,250.51 | | |
Improvement / Building
| Improvement #1: | RESIDENTIAL | State Code: | Y | 2451.0 sqft | Value: | $368,095 |
| Bathrooms: | 2.5 | Bedrooms: | 2 | | Ceiling: | DRYWALL PAINTED | Exterior Wall/Cover: | CEMENT FIBER | | Floor Covering: | (NONE) | Floor Structure: | WOOD W/SUBFLOOR | | Foundation: | CONCRETE | Heating: | HEAT PUMP | | Interior Finish: | DRYWALL PAINT | Plumbing Fixture Cnt: | 12 | | Roof Slope: | 8" IN 12" | Roof Structure/Cover: | CJ METAL |
|
| | Type | Description | Class CD | Sub Class CD | Year Built | Area |
| | BAS | BASE/MAIN FLOOR | 3 | 0 | 2025 | 1105.5 |
| | UPS | UPPER STORY | 3 | 0 | 2025 | 1129.5 |
| | DWN | DOWNSTAIRS LIVING AREA | 3 | 0 | 2025 | 216.0 |
| | OWR | OPEN WOOD PORCH W/STEPS/ROOF | 3 | 0 | 2025 | 108.0 |
| | OWR | OPEN WOOD PORCH W/STEPS/ROOF | 3 | 0 | 2025 | 135.0 |
| | OP4 | OPEN PORCH W/CEILING-ROOF | 3 | 0 | 2025 | 60.0 |
Sketch
| No sketches available for this property. |
Property Image
Land
| 1 | 13 | SQ (06001-08000) | 0.0000 | 0.00 | 0.00 | 0.00 | 1.00 | $212,500 | $0 |
Roll Value History
| 2026 | N/A | N/A | N/A | N/A | N/A |
| 2025 | $368,095 | $212,500 | $0 | $580,595 | $580,595 |
| 2024 | $101,610 | $240,000 | $0 | $341,610 | $341,610 |
| 2023 | $103,483 | $210,000 | $0 | $313,483 | $313,483 |
| 2022 | $95,404 | $210,000 | $0 | $305,404 | $305,404 |
| 2021 | $80,008 | $160,000 | $0 | $240,008 | $240,008 |
| 2020 | $78,367 | $130,000 | $0 | $208,367 | $208,367 |
| 2019 | $55,511 | $170,000 | $0 | $225,511 | $225,511 |
| 2018 | $55,759 | $120,000 | $0 | $175,759 | $175,759 |
| 2017 | $52,402 | $100,000 | $0 | $152,402 | $152,402 |
| 2016 | $53,322 | $100,000 | $0 | $153,322 | $153,322 |
| 2015 | $24,520 | $100,000 | $0 | $124,520 | $124,520 |
| 2014 | $24,520 | $100,000 | $0 | $124,520 | $124,520 |
| 2013 | $25,317 | $100,000 | $0 | $125,317 | $125,317 |
| 2012 | $26,117 | $100,000 | $0 | $126,117 | $126,117 |
| 2011 | $26,915 | $125,000 | $0 | $151,915 | $151,915 |
| 2010 | $37,344 | $125,000 | $0 | $162,344 | $162,344 |
| 2009 | $37,553 | $150,000 | $0 | $187,553 | $187,553 |
| 2008 | $38,389 | $150,000 | $0 | $188,389 | $188,389 |
| 2007 | $39,225 | $150,000 | $0 | $189,225 | $189,225 |
Deed and Sales History
| 1 | 01/02/2019 | TRUSTEED | Trustee's Deed | HENDRON TRUSTEE, MARY ANN | HJERVIKEN LEGACY, LLC | | | $0.00 | 37658 | 4459597 |
| 2 | 03/30/2011 | CPADC | Comm Prop Agmnt & Death Cert | HENDRON, JOHN A & MARY A | HENDRON, MARY A | | | | 82015 | |
| 3 | 03/21/2011 | QCD | Quit Claim Deed | HENDRON, MARY A | HENDRON TRUSTEE, MARY ANN | | | $0.00 | 4078 | 4293456 |
| 4 | 07/01/1997 | WD | Warranty Deed | BENSON, LINDA C | HENDRON, JOHN A | | | $106,000.00 | 72623 | 97012387 |
| 5 | 05/01/1994 | WD | Warranty Deed | HIGHNAM, GEORGE F | BENSON, LINDA C | | | $0.00 | 41887 | 94011086 |
| 6 | 01/01/1900 | OTHER | Other - Misc. Documents | Unknown | HIGHNAM, GEORGE F | | | $0.00 | 0 | 0 |
Payout Agreement
| No payout information available.. |