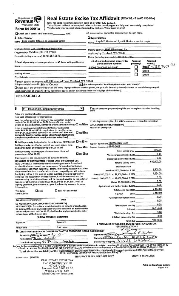
Property
Account |
| Property ID: | 286719 | Abbreviated Legal Description: | JUNIPER BCH LOT 15 & E10' OF LOT 14 BLK 7 TGW PT LOT 14: BG SWCR LOT 14 N78*E30.72' N1*E38 .91' TPB N12*W5.16' N2*W TO NLN LOT 14 71.16' N61*E ALG SD NLN 7.10' TO WLN OF E10' OF LOT 14 S1*W79.52' TPB EX PT LOT 14: BG SWCR LOT 14 N78*E30.72' TPB N1*E ALG |
| Geographic ID: | S7260-00-07015-0 | Agent Code: | |
| Type: | Real | | |
| Tax Area: | 580 - APPRAISER-Stan/Cam Schl Dist, Special Dist, improved & less than 1 acre | Land Use Code | 11 |
| Open Space: | N | DFL | N |
| Historic Property: | N | Remodel Property: | N |
| Multi-Family Redevelopment: | N | | |
| Township: | | Section: | |
| Range: | |
Location |
| Address: | 1487 SIMPSON LN CAMANO ISLAND, WA 98282 | Mapsco: | |
| Neighborhood: | Cycle 5 | Map ID: | 981 |
| Neighborhood CD: | 5 |
Owner |
| Name: | COREY, THEODORE J | Owner ID: | 280174 |
| Mailing Address: | 1487 SIMPSON CAMANO ISLAND, WA 98282 | % Ownership: | 100.0000000000% |
| | | Exemptions: | |
Taxes and Assessment Details
Values
| (+) Improvement Homesite Value: | + | $0 | |
| (+) Improvement Non-Homesite Value: | + | $170,019 | |
| (+) Land Homesite Value: | + | $0 | |
| (+) Land Non-Homesite Value: | + | $220,000 | |
| (+) Curr Use (HS): | + | $0 | $0 |
| (+) Curr Use (NHS): | + | $0 | $0 |
| | | -------------------------- | |
| (=) Market Value: | = | $390,019 | |
| (–) Productivity Loss: | – | $0 | |
| | | -------------------------- | |
| (=) Subtotal: | = | $390,019 | |
| (+) Senior Appraised Value: | + | $0 | |
| (+) Non-Senior Appraised Value: | + | $390,019 | |
| | | -------------------------- | |
| (=) Total Appraised Value: | = | $390,019 | |
| (–) Senior Exemption Loss: | – | $0 | |
| (–) Exemption Loss: | – | $0 | |
| | | -------------------------- | |
| (=) Taxable Value: | = | $390,019 | |
Taxing Jurisdiction
| Owner: | COREY, THEODORE J | | |
| % Ownership: | 100.0000000000% | | |
| Total Value: | $390,019 | | |
| Tax Area: | 580 - APPRAISER-Stan/Cam Schl Dist, Special Dist, improved & less than 1 acre |
| CF | Conservation Futures | 0.0316035091 | $390,019 | $390,019 | $12.33 | | |
| EMS1 | Fire & Rescue Dist #1 Camano GEN (EMS) | 0.3677864386 | $390,019 | $390,019 | $143.44 | | |
| FIRE1 | Fire & Rescue Dist #1 Camano GEN | 1.2502910536 | $390,019 | $390,019 | $487.64 | | |
| FIRE1BOND | Fire & Rescue Dist #1 Camano BOND | 0.1570001679 | $390,019 | $390,019 | $61.23 | | |
| CE | County Current Expense | 0.3708482477 | $390,019 | $390,019 | $144.64 | | |
| CR | County Roads | 0.4584763726 | $390,019 | $390,019 | $178.81 | | |
| LCIB | Library Sno-Isle BOND (Camano Island) | 0.0396325772 | $390,019 | $390,019 | $15.46 | | |
| LIB | Library Sno-Isle GEN | 0.3153421757 | $390,019 | $390,019 | $122.99 | | |
| SCH205_401 | School 205-401 Enrichment | 1.2698420524 | $390,019 | $390,019 | $495.26 | | |
| SCH205BOND | School 205-401 BOND | 0.9396497583 | $390,019 | $390,019 | $366.48 | | |
| ST | State School | 1.3035497053 | $390,019 | $390,019 | $508.41 | | |
| ST2 | State School Part 2 | 0.8169543533 | $390,019 | $390,019 | $318.63 | | |
| | Total Tax Rate: | 7.3209764117 | | | | | |
| | | | | Taxes w/Current Exemptions: | $2,855.32 | | |
| | | | | Taxes w/o Exemptions: | $2,855.32 | | |
Improvement / Building
| Improvement #1: | RESIDENTIAL | State Code: | Y | 1158.5 sqft | Value: | $170,019 |
| Bathrooms: | 1 | Bedrooms: | 2 | | Ceiling: | DRYWALL PAINTED | Exterior Wall/Cover: | WOOD SIDING | | Floor Covering: | CARPET/VINYL 80-20 | Floor Structure: | WOOD W/SUBFLOOR | | Foundation: | CONCRETE | Heating: | WALL HEAT ELECTRIC | | Interior Finish: | DRYWALL PAINT | Plumbing Fixture Cnt: | 6 | | Roof Slope: | 3" IN 12" | Roof Structure/Cover: | CJ ASPHALT |
|
| | Type | Description | Class CD | Sub Class CD | Year Built | Area |
| | BAS | BASE/MAIN FLOOR | 3 | 0 | 1925 | 758.5 |
| | UB6 | BASEMENT UNFINISHED 6" | 3 | 0 | 1925 | 102.0 |
| | DWN | DOWNSTAIRS LIVING AREA | 3 | 0 | 1925 | 400.0 |
| | OP4 | OPEN PORCH W/CEILING-ROOF | 3 | 0 | 1925 | 91.5 |
| | OWP | OPEN WOOD PORCH W/STEPS | 3 | 0 | 1925 | 103.0 |
| | OWR | OPEN WOOD PORCH W/STEPS/ROOF | 3 | 0 | 1925 | 105.0 |
| | OWC | OPEN WOOD PORCH W/STEPS/ROOF/C | 3 | 0 | 1925 | 230.0 |
Sketch
Property Image
Land
| 1 | 12 | SQ (00000-06000) | 0.0000 | 0.00 | 0.00 | 0.00 | 1.00 | $220,000 | $0 |
Roll Value History
| 2026 | N/A | N/A | N/A | N/A | N/A |
| 2025 | $170,019 | $220,000 | $0 | $390,019 | $390,019 |
| 2024 | $172,339 | $210,000 | $0 | $382,339 | $382,339 |
| 2023 | $174,660 | $210,000 | $0 | $384,660 | $384,660 |
| 2022 | $160,263 | $210,000 | $0 | $370,263 | $370,263 |
| 2021 | $139,729 | $160,000 | $0 | $299,729 | $299,729 |
| 2020 | $135,993 | $130,000 | $0 | $265,993 | $265,993 |
| 2019 | $94,783 | $170,000 | $0 | $264,783 | $264,783 |
| 2018 | $95,092 | $120,000 | $0 | $215,092 | $215,092 |
| 2017 | $95,679 | $100,000 | $0 | $195,679 | $195,679 |
| 2016 | $96,921 | $100,000 | $0 | $196,921 | $196,921 |
| 2015 | $66,229 | $100,000 | $0 | $166,229 | $166,229 |
| 2014 | $67,352 | $100,000 | $0 | $167,352 | $167,352 |
| 2013 | $68,474 | $100,000 | $0 | $168,474 | $168,474 |
| 2012 | $69,597 | $100,000 | $0 | $169,597 | $169,597 |
| 2011 | $70,718 | $125,000 | $0 | $195,718 | $195,718 |
| 2010 | $78,234 | $125,000 | $0 | $203,234 | $203,234 |
| 2009 | $69,055 | $150,000 | $0 | $219,055 | $219,055 |
| 2008 | $69,055 | $150,000 | $0 | $219,055 | $219,055 |
| 2007 | $70,166 | $150,000 | $0 | $220,166 | $220,166 |
Deed and Sales History
| 1 | 05/24/2017 | WD | Warranty Deed | RASMUSSEN, GENE R | COREY, THEODORE J | | | $244,500.00 | 29530 | 4423455 |
|   | |
| 2 | 04/01/1994 | WD | Warranty Deed | SIMPSON, CLIFFORD | RASMUSSEN, GENE R | | | $36,100.00 | 41733 | 94010281 |
| 3 | 10/01/1984 | OTHER | Other - Misc. Documents | SIMPSON, MARYON | SIMPSON, CLIFFORD | | | $0.00 | 60846 | 0 |
| 4 | 08/01/1982 | CD | DNU - Correction Deed | Unknown | SIMPSON, MARYON | | | $0.00 | 22243 | 400801 |
Payout Agreement
| No payout information available.. |