Property
Account |
| Property ID: | 286862 | Abbreviated Legal Description: | KENWOOD AC LOT 8 |
| Geographic ID: | S7265-00-00008-0 | Agent Code: | |
| Type: | Real | | |
| Tax Area: | 510 - APPRAISER-Stan/Cam Schl Dist, improved & 1 acre or less | Land Use Code | 11 |
| Open Space: | N | DFL | N |
| Historic Property: | N | Remodel Property: | N |
| Multi-Family Redevelopment: | N | | |
| Township: | | Section: | |
| Range: | |
Location |
| Address: | 944 NNW CAMANO DR CAMANO ISLAND, WA 98282 | Mapsco: | |
| Neighborhood: | North Camano | Map ID: | 554 |
| Neighborhood CD: | 06-C |
Owner |
| Name: | AVERY, DAMA LEE | Owner ID: | 282007 |
| Mailing Address: | JEFFREY ALLEN BISNET 944 NW CAMANO DRIVE CAMANO ISLAND, WA 98282 | % Ownership: | 100.0000000000% |
| | | Exemptions: | |
Taxes and Assessment Details
Values
| (+) Improvement Homesite Value: | + | $0 | |
| (+) Improvement Non-Homesite Value: | + | $207,986 | |
| (+) Land Homesite Value: | + | $0 | |
| (+) Land Non-Homesite Value: | + | $260,000 | |
| (+) Curr Use (HS): | + | $0 | $0 |
| (+) Curr Use (NHS): | + | $0 | $0 |
| | | -------------------------- | |
| (=) Market Value: | = | $467,986 | |
| (–) Productivity Loss: | – | $0 | |
| | | -------------------------- | |
| (=) Subtotal: | = | $467,986 | |
| (+) Senior Appraised Value: | + | $0 | |
| (+) Non-Senior Appraised Value: | + | $467,986 | |
| | | -------------------------- | |
| (=) Total Appraised Value: | = | $467,986 | |
| (–) Senior Exemption Loss: | – | $0 | |
| (–) Exemption Loss: | – | $0 | |
| | | -------------------------- | |
| (=) Taxable Value: | = | $467,986 | |
Taxing Jurisdiction
| Owner: | AVERY, DAMA LEE | | |
| % Ownership: | 100.0000000000% | | |
| Total Value: | $467,986 | | |
| Tax Area: | 510 - APPRAISER-Stan/Cam Schl Dist, improved & 1 acre or less |
| CF | Conservation Futures | 0.0316035091 | $467,986 | $467,986 | $14.79 | | |
| EMS1 | Fire & Rescue Dist #1 Camano GEN (EMS) | 0.3677864386 | $467,986 | $467,986 | $172.12 | | |
| FIRE1 | Fire & Rescue Dist #1 Camano GEN | 1.2502910536 | $467,986 | $467,986 | $585.12 | | |
| FIRE1BOND | Fire & Rescue Dist #1 Camano BOND | 0.1570001679 | $467,986 | $467,986 | $73.47 | | |
| CE | County Current Expense | 0.3708482477 | $467,986 | $467,986 | $173.55 | | |
| CR | County Roads | 0.4584763726 | $467,986 | $467,986 | $214.56 | | |
| LCIB | Library Sno-Isle BOND (Camano Island) | 0.0396325772 | $467,986 | $467,986 | $18.55 | | |
| LIB | Library Sno-Isle GEN | 0.3153421757 | $467,986 | $467,986 | $147.58 | | |
| SCH205_401 | School 205-401 Enrichment | 1.2698420524 | $467,986 | $467,986 | $594.27 | | |
| SCH205BOND | School 205-401 BOND | 0.9396497583 | $467,986 | $467,986 | $439.74 | | |
| ST | State School | 1.3035497053 | $467,986 | $467,986 | $610.04 | | |
| ST2 | State School Part 2 | 0.8169543533 | $467,986 | $467,986 | $382.32 | | |
| | Total Tax Rate: | 7.3209764117 | | | | | |
| | | | | Taxes w/Current Exemptions: | $3,426.11 | | |
| | | | | Taxes w/o Exemptions: | $3,426.11 | | |
Improvement / Building
| Improvement #1: | MANUFACTURED HOME | State Code: | Y | 1620.0 sqft | Value: | $207,986 |
| Bathrooms: | 2 | Bedrooms: | 3 | | Ceiling: | PLASTER PAINTED | Cooling: | EVAP NO DUCT | | Exterior Wall/Cover: | VINYL | Floor Covering: | CARPET 100% | | Floor Structure: | SLAB ON GRADE | Foundation: | SLAB | | Heating: | FHA ELECTRIC | Interior Finish: | PLASTER | | Roof Slope: | FLAT | Roof Structure/Cover: | CJ ALUMINIUM HEAVY |
|
| | Type | Description | Class CD | Sub Class CD | Year Built | Area |
| | BAS | BASE/MAIN FLOOR | 4 | 0 | 2018 | 1620.0 |
| | DGR | DETACHED GARAGE | 4 | 0 | 2018 | 576.0 |
| | UTY | STORAGE/UTILITY | 4 | 0 | 2018 | 120.0 |
| | OP2 | OPEN PORCH W/STEPS | 4 | 0 | 2018 | 24.0 |
| | OP2 | OPEN PORCH W/STEPS | 4 | 0 | 2018 | 542.5 |
Sketch
Property Image
Land
| 1 | 15 | SQ (12001-21780) | 0.0000 | 0.00 | 0.00 | 0.00 | 1.00 | $260,000 | $0 |
Roll Value History
| 2026 | N/A | N/A | N/A | N/A | N/A |
| 2025 | $207,986 | $260,000 | $0 | $467,986 | $467,986 |
| 2024 | $210,246 | $250,000 | $0 | $460,246 | $460,246 |
| 2023 | $184,800 | $250,000 | $0 | $434,800 | $434,800 |
| 2022 | $170,892 | $210,000 | $0 | $380,892 | $380,892 |
| 2021 | $150,160 | $160,000 | $0 | $310,160 | $310,160 |
| 2020 | $147,224 | $130,000 | $0 | $277,224 | $277,224 |
| 2019 | $117,229 | $170,000 | $0 | $287,229 | $287,229 |
| 2018 | $0 | $95,000 | $0 | $95,000 | $95,000 |
| 2017 | $0 | $85,000 | $0 | $85,000 | $85,000 |
| 2016 | $0 | $85,000 | $0 | $85,000 | $85,000 |
| 2015 | $0 | $85,000 | $0 | $85,000 | $85,000 |
| 2014 | $0 | $85,000 | $0 | $85,000 | $85,000 |
| 2013 | $0 | $85,000 | $0 | $85,000 | $85,000 |
| 2012 | $0 | $80,000 | $0 | $80,000 | $80,000 |
| 2011 | $0 | $80,000 | $0 | $80,000 | $80,000 |
| 2010 | $0 | $80,000 | $0 | $80,000 | $80,000 |
| 2009 | $0 | $100,000 | $0 | $100,000 | $100,000 |
| 2008 | $0 | $130,000 | $0 | $130,000 | $130,000 |
| 2007 | $0 | $130,000 | $0 | $130,000 | $130,000 |
Deed and Sales History
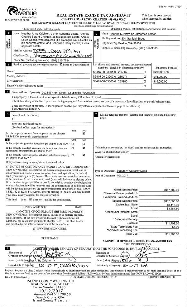
| 1 | 09/14/2017 | WD | Warranty Deed | HELLER, KAY F | AVERY, DAMA LEE | | | $95,000.00 | 31140 | 4430432 |
| 2 | 10/20/2014 | TOD | Transfer On Death Deed | HELLER, JOHN H | HELLER, KAY F | | | | 84997 | |
| 3 | 07/14/2006 | WD | Warranty Deed | CAMPBELL, CLAY A | HELLER, JOHN H | | | $175,000.00 | 63433 | 4178478 |
| 4 | 03/22/2002 | WD | Warranty Deed | Unknown | CAMPBELL, CLAY A | | | $33,750.00 | 21250 | 4015967 |
Payout Agreement
| No payout information available.. |