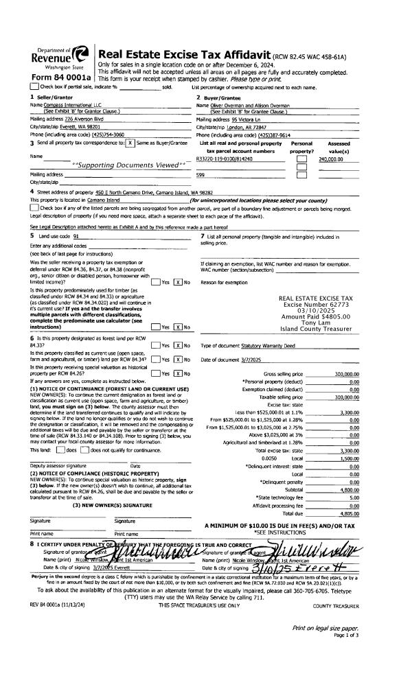
Property
Account |
| Property ID: | 28696 | Abbreviated Legal Description: | 88 ALEX DC - BG 16.5'W OF NECR ALEX DC S10*W92.8' N74*W95.35' N15*E67.5' E90 .9' TPB EX E30.35' & EX W29' |
| Geographic ID: | R13233-406-3930 | Agent Code: | |
| Type: | Real | | |
| Tax Area: | 300 - APPRAISER-Cpvl Schl Dist, in Cpvl | Land Use Code | 79 |
| Open Space: | N | DFL | N |
| Historic Property: | N | Remodel Property: | N |
| Multi-Family Redevelopment: | N | | |
| Township: | 32 | Section: | 33 |
| Range: | R1 |
Location |
| Address: | COUPEVILLE, WA 98239 | Mapsco: | |
| Neighborhood: | 2 Front Street Comercial | Map ID: | 176 |
| Neighborhood CD: | 21cCPfront |
Owner |
| Name: | TOWN OF COUPEVILLE | Owner ID: | 200817 |
| Mailing Address: | 4 NE 7TH ST COUPEVILLE, WA 98239 | % Ownership: | 100.0000000000% |
| | | Exemptions: | EX |
Taxes and Assessment Details
Property Tax Information as of
10/22/2025
Click on "Statement Details" to expand or collapse a tax statement.
* Please enter a valid date ** Please enter a valid date *
Statement Details |
| 2025 | 1621 | ST - State School | $0.00 | $0.00 | $0.00 | $0.00 | $0.00 | $0.00 |
| 2025 | 1621 | Island County - Island County General Fund | $0.00 | $0.00 | $0.00 | $0.00 | $0.00 | $0.00 |
| 2025 | 1621 | CICPVL - City: Town of Coupeville | $0.00 | $0.00 | $0.00 | $0.00 | $0.00 | $0.00 |
| 2025 | 1621 | PRTCPVL - Port of Coupeville | $0.00 | $0.00 | $0.00 | $0.00 | $0.00 | $0.00 |
| 2025 | 1621 | SCH204 - School 204 Coupeville | $0.00 | $0.00 | $0.00 | $0.00 | $0.00 | $0.00 |
| 2025 | 1621 | CEM2 - Cemetery #2 Central Whidbey | $0.00 | $0.00 | $0.00 | $0.00 | $0.00 | $0.00 |
| 2025 | 1621 | FIRE5 - Fire & Rescue Dist #5 Central Whidbey | $0.00 | $0.00 | $0.00 | $0.00 | $0.00 | $0.00 |
| 2025 | 1621 | LIB - Library Sno-Isle Regional | $0.00 | $0.00 | $0.00 | $0.00 | $0.00 | $0.00 |
| 2025 | 1621 | HOSPEMS - Whidbey Health EMS Island County | $0.00 | $0.00 | $0.00 | $0.00 | $0.00 | $0.00 |
| 2025 | 1621 | HOSP - Whidbey Health | $0.00 | $0.00 | $0.00 | $0.00 | $0.00 | $0.00 |
| 2025 | 1621 | CF - Island County Conservation Futures | $0.00 | $0.00 | $0.00 | $0.00 | $0.00 | $0.00 |
| 2025 | 1621 | TOTAL: | $0.00 | $0.00 | $0.00 | $0.00 | $0.00 | $0.00 |
|
| 2025 | 1621 | $0.00 | $0.00 | $0.00 | $0.00 | $0.00 | $0.00 |
Statement Details |
| 2016 | 1640 | WDBYCNV - Whidbey Conservation District | $0.00 | $0.00 | $0.00 | $0.00 | $0.00 | $0.00 |
| 2016 | 1640 | TOTAL: | $0.00 | $0.00 | $0.00 | $0.00 | $0.00 | $0.00 |
|
| 2016 | 1640 | $0.00 | $0.00 | $0.00 | $0.00 | $0.00 | $0.00 |
Values
| (+) Improvement Homesite Value: | + | $0 | |
| (+) Improvement Non-Homesite Value: | + | $0 | |
| (+) Land Homesite Value: | + | $0 | |
| (+) Land Non-Homesite Value: | + | $50,000 | |
| (+) Curr Use (HS): | + | $0 | $0 |
| (+) Curr Use (NHS): | + | $0 | $0 |
| | | -------------------------- | |
| (=) Market Value: | = | $50,000 | |
| (–) Productivity Loss: | – | $0 | |
| | | -------------------------- | |
| (=) Subtotal: | = | $50,000 | |
| (+) Senior Appraised Value: | + | $0 | |
| (+) Non-Senior Appraised Value: | + | $50,000 | |
| | | -------------------------- | |
| (=) Total Appraised Value: | = | $50,000 | |
| (–) Senior Exemption Loss: | – | $0 | |
| (–) Exemption Loss: | – | $50,000 | |
| | | -------------------------- | |
| (=) Taxable Value: | = | $0 | |
Taxing Jurisdiction
| Owner: | TOWN OF COUPEVILLE | | |
| % Ownership: | 100.0000000000% | | |
| Total Value: | $50,000 | | |
| Tax Area: | 300 - APPRAISER-Cpvl Schl Dist, in Cpvl |
| CF | Conservation Futures | 0.0316035091 | $50,000 | $0 | $0.00 | | |
| CEM2 | Cemetery #2 | 0.0095056933 | $50,000 | $0 | $0.00 | | |
| COUP | City: Town of Coupeville | 0.8426414490 | $50,000 | $0 | $0.00 | | |
| FIRE5 | Fire & Rescue Dist #5 C Whidbey GEN | 1.2008080668 | $50,000 | $0 | $0.00 | | |
| FIRE5BOND | Fire & Rescue Dist #5 C Whidbey BOND | 0.1400090713 | $50,000 | $0 | $0.00 | | |
| HOBOND | Hospital BOND | 0.1910887512 | $50,000 | $0 | $0.00 | | |
| HOGEN | Hospital GEN | 0.3902502903 | $50,000 | $0 | $0.00 | | |
| CE | County Current Expense | 0.3708482477 | $50,000 | $0 | $0.00 | | |
| ISLANDEMS | Hospital GEN (EMS) | 0.5000000000 | $50,000 | $0 | $0.00 | | |
| LIB | Library Sno-Isle GEN | 0.3153421757 | $50,000 | $0 | $0.00 | | |
| LIBCAP | Library Sno-Isle BOND (Cap Fac Imp Area) | 0.0543427938 | $50,000 | $0 | $0.00 | | |
| POCOUP | Port of Coupeville GEN | 0.1093371703 | $50,000 | $0 | $0.00 | | |
| POCOUPIDD | Port of Coupeville IDD | 0.3409740022 | $50,000 | $0 | $0.00 | | |
| COUPSDTECH | School 204 CP (TECH) | 0.7545480007 | $50,000 | $0 | $0.00 | | |
| SCH204MO | School 204 Enrichment | 0.6716186034 | $50,000 | $0 | $0.00 | | |
| ST | State School | 1.3035497053 | $50,000 | $0 | $0.00 | | |
| ST2 | State School Part 2 | 0.8169543533 | $50,000 | $0 | $0.00 | | |
| | Total Tax Rate: | 8.0434218834 | | | | | |
| | | | | Taxes w/Current Exemptions: | $0.00 | | |
| | | | | Taxes w/o Exemptions: | $402.18 | | |
Improvement / Building
Sketch
| No sketches available for this property. |
Property Image
Land
| 1 | 68 | COMMERCIAL RETAIL | 0.0593 | 2583.11 | 33.50 | 0.00 | 1.00 | $50,000 | $0 |
Roll Value History
| 2026 | N/A | N/A | N/A | N/A | N/A |
| 2025 | $0 | $50,000 | $0 | $50,000 | $0 |
| 2024 | $0 | $150,000 | $0 | $150,000 | $0 |
| 2023 | $0 | $150,000 | $0 | $150,000 | $0 |
| 2022 | $0 | $150,000 | $0 | $150,000 | $0 |
| 2021 | $0 | $150,000 | $0 | $150,000 | $0 |
| 2020 | $0 | $150,000 | $0 | $150,000 | $0 |
| 2019 | $0 | $150,000 | $0 | $150,000 | $0 |
| 2018 | $0 | $150,000 | $0 | $150,000 | $0 |
| 2017 | $0 | $160,000 | $0 | $160,000 | $0 |
| 2016 | $0 | $160,000 | $0 | $160,000 | $0 |
| 2015 | $0 | $67,320 | $0 | $67,320 | $0 |
| 2014 | $0 | $67,320 | $0 | $67,320 | $0 |
| 2013 | $0 | $67,320 | $0 | $67,320 | $0 |
| 2012 | $0 | $63,222 | $0 | $63,222 | $0 |
| 2011 | $0 | $63,222 | $0 | $63,222 | $0 |
| 2010 | $0 | $63,222 | $0 | $63,222 | $0 |
| 2009 | $0 | $85,320 | $0 | $85,320 | $0 |
Deed and Sales History
| 1 | 03/04/2008 | WD | Warranty Deed | FRONT STREET HOLDINGS LTD, | TOWN OF COUPEVILLE, | | | $192,780.00 | 80530 | 4222386 |
| 2 | 05/10/2004 | QCD | Quit Claim Deed | CIP INC, | FRONT STREET HOLDINGS LTD, | | | $0.00 | 41925 | 4099977 |
| 3 | 08/04/1998 | QCD | Quit Claim Deed | CHEESEBURGER, IN P | CIP INC, | | | $0.00 | 83079 | 98016082 |
| 4 | 03/01/1997 | WD | Warranty Deed | INTER-ISLAND, PREGNANCY C | CHEESEBURGER, IN P | | | $40,000.00 | 70942 | 97004319 |
| 5 | 12/01/1995 | QCD | Quit Claim Deed | GEYER, ROBERT G | INTER-ISLAND, PREGNANCY C | | | $0.00 | 54375 | 95020187 |
| 6 | 08/01/1990 | WD | Warranty Deed | BAME, JOHN D | GEYER, ROBERT G | | | $45,000.00 | 5041 | 90016791 |
| 7 | 05/01/1985 | WD | Warranty Deed | BROSSEAU, MAHLON | BAME, JOHN D | | | $32,500.00 | 51235 | 85005030 |
| 8 | 01/01/1900 | OTHER | Other - Misc. Documents | Unknown | BROSSEAU, MAHLON | | | $0.00 | 0 | 0 |
Payout Agreement
| No payout information available.. |