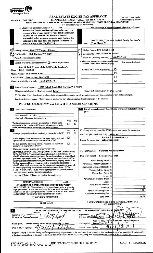
Property
Account |
| Property ID: | 287068 | Abbreviated Legal Description: | KIMBALL HTS 1 LOT 2 BLK 3 |
| Geographic ID: | S7275-00-03002-0 | Agent Code: | |
| Type: | Real | | |
| Tax Area: | 100 - APPRAISER-OH Schl Dist, in OH | Land Use Code | 11 |
| Open Space: | N | DFL | N |
| Historic Property: | N | Remodel Property: | N |
| Multi-Family Redevelopment: | N | | |
| Township: | | Section: | |
| Range: | |
Location |
| Address: | 497 SW JUDSON DR OAK HARBOR, WA 98277 | Mapsco: | |
| Neighborhood: | Cycle 1 | Map ID: | 92 |
| Neighborhood CD: | 1 |
Owner |
| Name: | MCFARLANE, MATTHEW CHARLES | Owner ID: | 296006 |
| Mailing Address: | JESSICA WILSON-MCFARLANE 497 SW JUDSON DR OAK HARBOR, WA 98277 | % Ownership: | 100.0000000000% |
| | | Exemptions: | |
Taxes and Assessment Details
Values
| (+) Improvement Homesite Value: | + | $0 | |
| (+) Improvement Non-Homesite Value: | + | $300,424 | |
| (+) Land Homesite Value: | + | $0 | |
| (+) Land Non-Homesite Value: | + | $190,000 | |
| (+) Curr Use (HS): | + | $0 | $0 |
| (+) Curr Use (NHS): | + | $0 | $0 |
| | | -------------------------- | |
| (=) Market Value: | = | $490,424 | |
| (–) Productivity Loss: | – | $0 | |
| | | -------------------------- | |
| (=) Subtotal: | = | $490,424 | |
| (+) Senior Appraised Value: | + | $0 | |
| (+) Non-Senior Appraised Value: | + | $490,424 | |
| | | -------------------------- | |
| (=) Total Appraised Value: | = | $490,424 | |
| (–) Senior Exemption Loss: | – | $0 | |
| (–) Exemption Loss: | – | $0 | |
| | | -------------------------- | |
| (=) Taxable Value: | = | $490,424 | |
Taxing Jurisdiction
| Owner: | MCFARLANE, MATTHEW CHARLES | | |
| % Ownership: | 100.0000000000% | | |
| Total Value: | $490,424 | | |
| Tax Area: | 100 - APPRAISER-OH Schl Dist, in OH |
| CF | Conservation Futures | 0.0316035091 | $490,424 | $490,424 | $15.50 | | |
| CEM1 | Cemetery #1 | 0.0040320932 | $490,424 | $490,424 | $1.98 | | |
| COH | City of Oak Harbor | 2.3001546061 | $490,424 | $490,424 | $1,128.05 | | |
| OAKBOND | City of Oak Harbor BOND | 0.1926904192 | $490,424 | $490,424 | $94.50 | | |
| HOBOND | Hospital BOND | 0.1910887512 | $490,424 | $490,424 | $93.71 | | |
| HOGEN | Hospital GEN | 0.3902502903 | $490,424 | $490,424 | $191.39 | | |
| CE | County Current Expense | 0.3708482477 | $490,424 | $490,424 | $181.87 | | |
| ISLANDEMS | Hospital GEN (EMS) | 0.5000000000 | $490,424 | $490,424 | $245.21 | | |
| LIB | Library Sno-Isle GEN | 0.3153421757 | $490,424 | $490,424 | $154.65 | | |
| NWHIDPRMT | P & R N Whidbey GEN | 0.2004466701 | $490,424 | $490,424 | $98.30 | | |
| SCH201MO | School 201 Enrichment | 1.8559231640 | $490,424 | $490,424 | $910.19 | | |
| ST | State School | 1.3035497053 | $490,424 | $490,424 | $639.29 | | |
| ST2 | State School Part 2 | 0.8169543533 | $490,424 | $490,424 | $400.65 | | |
| | Total Tax Rate: | 8.4728839852 | | | | | |
| | | | | Taxes w/Current Exemptions: | $4,155.29 | | |
| | | | | Taxes w/o Exemptions: | $4,155.29 | | |
Improvement / Building
| Improvement #1: | RESIDENTIAL | State Code: | Y | 1921.0 sqft | Value: | $300,424 |
| Bathrooms: | 2 | Bedrooms: | 4 | | Ceiling: | DRY WALL SPRAYED | Exterior Wall/Cover: | PLY/HARDBOARD T-111 | | Floor Covering: | HARDWOOD/CARP 20-80 | Floor Structure: | WOOD W/SUBFLOOR | | Foundation: | CONCRETE | Heating: | FHA GAS | | Interior Finish: | DRYWALL PAINT | Plumbing Fixture Cnt: | 10 | | Roof Slope: | 4" IN 12" | Roof Structure/Cover: | CJ ASPHALT |
|
| | Type | Description | Class CD | Sub Class CD | Year Built | Area |
| | BAS | BASE/MAIN FLOOR | 3 | 0 | 1967 | 1921.0 |
| | OP1 | OPEN PORCH SLAB | 3 | 0 | 1967 | 540.0 |
| | OP4 | OPEN PORCH W/CEILING-ROOF | 3 | 0 | 1967 | 54.0 |
| | AGR | ATTACHED GARAGE | 3 | 0 | 1967 | 506.0 |
Sketch
Property Image
Land
| 1 | 15 | SQ (12001-21780) | 0.0000 | 0.00 | 0.00 | 0.00 | 1.00 | $190,000 | $0 |
Roll Value History
| 2026 | N/A | N/A | N/A | N/A | N/A |
| 2025 | $300,424 | $190,000 | $0 | $490,424 | $490,424 |
| 2024 | $304,215 | $180,000 | $0 | $484,215 | $484,215 |
| 2023 | $300,424 | $190,000 | $0 | $490,424 | $490,424 |
| 2022 | $275,469 | $180,000 | $0 | $455,469 | $455,469 |
| 2021 | $242,527 | $120,000 | $0 | $362,527 | $362,527 |
| 2020 | $236,559 | $100,000 | $0 | $336,559 | $336,559 |
| 2019 | $178,754 | $150,000 | $0 | $328,754 | $328,754 |
| 2018 | $179,290 | $130,000 | $0 | $309,290 | $309,290 |
| 2017 | $180,027 | $110,000 | $0 | $290,027 | $290,027 |
| 2016 | $182,279 | $90,000 | $0 | $272,279 | $272,279 |
| 2015 | $172,205 | $70,000 | $0 | $242,205 | $242,205 |
| 2014 | $174,414 | $55,000 | $0 | $229,414 | $229,414 |
| 2013 | $176,621 | $55,000 | $0 | $231,621 | $231,621 |
| 2012 | $178,829 | $60,000 | $0 | $238,829 | $238,829 |
| 2011 | $183,082 | $50,000 | $0 | $233,082 | $233,082 |
| 2010 | $192,425 | $50,000 | $0 | $242,425 | $242,425 |
| 2009 | $200,601 | $60,000 | $0 | $260,601 | $260,601 |
| 2008 | $203,208 | $68,000 | $0 | $271,208 | $271,208 |
| 2007 | $205,737 | $68,000 | $0 | $273,737 | $273,737 |
Deed and Sales History
| 1 | 08/25/2020 | QCD | Quit Claim Deed | MCFARLANE, MATTHEW CHARLES | MCFARLANE, MATTHEW CHARLES | | | $0.00 | 44638 | 4495902 |
| 2 | 06/28/2018 | WD | Warranty Deed | ROSS, RICHARD A | MCFARLANE, MATTHEW CHARLES | | | $335,000.00 | 35046 | 4448215 |
| 3 | 01/15/2015 | WD | Warranty Deed | MIODUSKI, HENRY X | ROSS, RICHARD A | | | $279,000.00 | 18262 | 4372044 |
| 4 | 04/30/2003 | WD | Warranty Deed | TREPANIER, THOMAS W | MIODUSKI, HENRY X | | | $185,000.00 | 31847 | 4057278 |
| 5 | 09/01/1992 | WD | Warranty Deed | PAYNE, PATRICK E | TREPANIER, THOMAS W | | | $131,000.00 | 23788 | 92018294 |
| 6 | 12/01/1989 | WD | Warranty Deed | WREN, MICHAEL P | PAYNE, PATRICK E | | | $101,500.00 | 95827 | 89018727 |
| 7 | 11/01/1986 | REC | Real Estate Contract | ANDERSON, CECIL C | WREN, MICHAEL P | | | $80,500.00 | 63351 | 86015131 |
| 8 | 01/01/1900 | OTHER | Other - Misc. Documents | Unknown | ANDERSON, CECIL C | | | $0.00 | 0 | 0 |
Payout Agreement
| No payout information available.. |