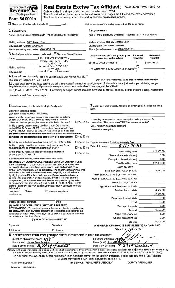
Property
Account |
| Property ID: | 287193 | Abbreviated Legal Description: | KIMBALL HTS 2 LOT 10 BLK 3 & SLY 5' LOT 9 BLK 3 |
| Geographic ID: | S7275-02-03010-0 | Agent Code: | |
| Type: | Real | | |
| Tax Area: | 100 - APPRAISER-OH Schl Dist, in OH | Land Use Code | 11 |
| Open Space: | N | DFL | N |
| Historic Property: | N | Remodel Property: | N |
| Multi-Family Redevelopment: | N | | |
| Township: | | Section: | |
| Range: | |
Location |
| Address: | 1190 SW LOPEZ DR OAK HARBOR, WA 98277 | Mapsco: | |
| Neighborhood: | Cycle 1 | Map ID: | 92 |
| Neighborhood CD: | 1 |
Owner |
| Name: | MAYS, JOHN F | Owner ID: | 77294 |
| Mailing Address: | JOANNE M MAYS 1190 SW LOPEZ DR OAK HARBOR, WA 98277-2275 | % Ownership: | 100.0000000000% |
| | | Exemptions: | |
Taxes and Assessment Details
Values
| (+) Improvement Homesite Value: | + | $0 | |
| (+) Improvement Non-Homesite Value: | + | $321,689 | |
| (+) Land Homesite Value: | + | $0 | |
| (+) Land Non-Homesite Value: | + | $190,000 | |
| (+) Curr Use (HS): | + | $0 | $0 |
| (+) Curr Use (NHS): | + | $0 | $0 |
| | | -------------------------- | |
| (=) Market Value: | = | $511,689 | |
| (–) Productivity Loss: | – | $0 | |
| | | -------------------------- | |
| (=) Subtotal: | = | $511,689 | |
| (+) Senior Appraised Value: | + | $0 | |
| (+) Non-Senior Appraised Value: | + | $511,689 | |
| | | -------------------------- | |
| (=) Total Appraised Value: | = | $511,689 | |
| (–) Senior Exemption Loss: | – | $0 | |
| (–) Exemption Loss: | – | $0 | |
| | | -------------------------- | |
| (=) Taxable Value: | = | $511,689 | |
Taxing Jurisdiction
| Owner: | MAYS, JOHN F | | |
| % Ownership: | 100.0000000000% | | |
| Total Value: | $511,689 | | |
| Tax Area: | 100 - APPRAISER-OH Schl Dist, in OH |
| CF | Conservation Futures | 0.0316035091 | $511,689 | $511,689 | $16.17 | | |
| CEM1 | Cemetery #1 | 0.0040320932 | $511,689 | $511,689 | $2.06 | | |
| COH | City of Oak Harbor | 2.3001546061 | $511,689 | $511,689 | $1,176.96 | | |
| OAKBOND | City of Oak Harbor BOND | 0.1926904192 | $511,689 | $511,689 | $98.60 | | |
| HOBOND | Hospital BOND | 0.1910887512 | $511,689 | $511,689 | $97.78 | | |
| HOGEN | Hospital GEN | 0.3902502903 | $511,689 | $511,689 | $199.69 | | |
| CE | County Current Expense | 0.3708482477 | $511,689 | $511,689 | $189.76 | | |
| ISLANDEMS | Hospital GEN (EMS) | 0.5000000000 | $511,689 | $511,689 | $255.84 | | |
| LIB | Library Sno-Isle GEN | 0.3153421757 | $511,689 | $511,689 | $161.36 | | |
| NWHIDPRMT | P & R N Whidbey GEN | 0.2004466701 | $511,689 | $511,689 | $102.57 | | |
| SCH201MO | School 201 Enrichment | 1.8559231640 | $511,689 | $511,689 | $949.66 | | |
| ST | State School | 1.3035497053 | $511,689 | $511,689 | $667.01 | | |
| ST2 | State School Part 2 | 0.8169543533 | $511,689 | $511,689 | $418.03 | | |
| | Total Tax Rate: | 8.4728839852 | | | | | |
| | | | | Taxes w/Current Exemptions: | $4,335.49 | | |
| | | | | Taxes w/o Exemptions: | $4,335.49 | | |
Improvement / Building
| Improvement #1: | RESIDENTIAL | State Code: | Y | 2024.6 sqft | Value: | $321,689 |
| Bathrooms: | 2.5 | Bedrooms: | 4 | | Ceiling: | DRYWALL PAINTED | Exterior Wall/Cover: | PLY/HARDBOARD T-111 | | Floor Covering: | HARDWOOD/CARP 80-20 | Floor Structure: | WOOD W/SUBFLOOR | | Foundation: | CONCRETE BLOCKS | Heating: | FHA OIL | | Interior Finish: | DRYWALL PAINT | Plumbing Fixture Cnt: | 11 | | Roof Slope: | 6" IN 12" | Roof Structure/Cover: | CJ ASPHALT |
|
| | Type | Description | Class CD | Sub Class CD | Year Built | Area |
| | BAS | BASE/MAIN FLOOR | 3 | 0 | 1969 | 2024.6 |
| | OP4 | OPEN PORCH W/CEILING-ROOF | 3 | 0 | 1969 | 42.6 |
| | AGR | ATTACHED GARAGE | 3 | 0 | 1969 | 586.9 |
| | OWP | OPEN WOOD PORCH W/STEPS | 3 | 0 | 1969 | 517.9 |
| | OWC | OPEN WOOD PORCH W/STEPS/ROOF/C | 3 | 0 | 1969 | 38.5 |
Sketch
Property Image
Land
| 1 | 15 | SQ (12001-21780) | 0.0000 | 0.00 | 0.00 | 0.00 | 1.00 | $190,000 | $0 |
Roll Value History
| 2026 | N/A | N/A | N/A | N/A | N/A |
| 2025 | $321,689 | $190,000 | $0 | $511,689 | $511,689 |
| 2024 | $326,269 | $180,000 | $0 | $506,269 | $506,269 |
| 2023 | $321,689 | $190,000 | $0 | $511,689 | $511,689 |
| 2022 | $295,445 | $180,000 | $0 | $475,445 | $475,445 |
| 2021 | $260,510 | $120,000 | $0 | $380,510 | $380,510 |
| 2020 | $254,560 | $100,000 | $0 | $354,560 | $354,560 |
| 2019 | $194,863 | $150,000 | $0 | $344,863 | $344,863 |
| 2018 | $195,520 | $130,000 | $0 | $325,520 | $325,520 |
| 2017 | $184,002 | $110,000 | $0 | $294,002 | $294,002 |
| 2016 | $186,559 | $90,000 | $0 | $276,559 | $276,559 |
| 2015 | $189,114 | $70,000 | $0 | $259,114 | $259,114 |
| 2014 | $191,671 | $55,000 | $0 | $246,671 | $246,671 |
| 2013 | $194,226 | $55,000 | $0 | $249,226 | $249,226 |
| 2012 | $196,781 | $60,000 | $0 | $256,781 | $256,781 |
| 2011 | $194,700 | $50,000 | $0 | $244,700 | $244,700 |
| 2010 | $214,454 | $50,000 | $0 | $264,454 | $264,454 |
| 2009 | $221,380 | $60,000 | $0 | $281,380 | $281,380 |
| 2008 | $224,697 | $68,000 | $0 | $292,697 | $292,697 |
| 2007 | $228,016 | $68,000 | $0 | $296,016 | $296,016 |
Deed and Sales History
| 1 | 09/21/2004 | WD | Warranty Deed | BURGIN, JOE C | MAYS, JOHN F | | | $263,000.00 | 44531 | 4114048 |
| 2 | 05/01/1988 | WD | Warranty Deed | MEYER, WILLIAM | BURGIN, JOE C | | | $104,000.00 | 81542 | 88005856 |
| 3 | 03/01/1983 | WD | Warranty Deed | ECKERT, WHITFORD | MEYER, WILLIAM | | | $110,000.00 | 30510 | 406524 |
| 4 | 01/01/1900 | OTHER | Other - Misc. Documents | Unknown | ECKERT, WHITFORD | | | $0.00 | 0 | 0 |
Payout Agreement
| No payout information available.. |