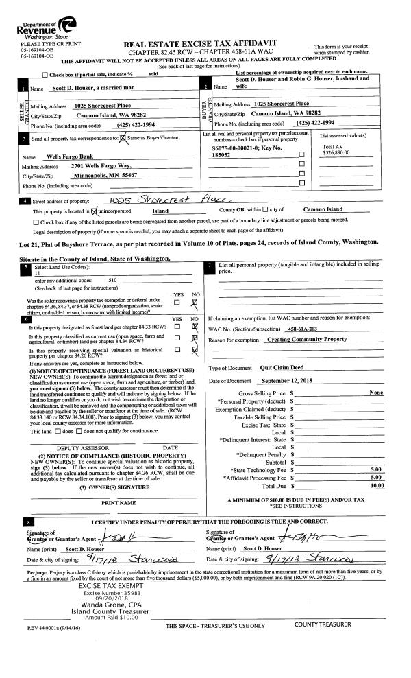
Property
Account |
| Property ID: | 28767 | Abbreviated Legal Description: | 5 ALEX DC - BG NECR ALEX DLC N83*W ALG ML 213' TPB S8*W45.78' S12*W2.05' N82*W2.85' S7*W9.88' S76*E1.01' S13*W5.39' S82*E2.52' S8*W4.03' TO NLN FRONT ST N83*W ALG NLN FRONT ST 65.14' N3*E67.08' TO SD ML S83*E ALG MLN 71' TPB |
| Geographic ID: | R13233-410-3750 | Agent Code: | |
| Type: | Real | | |
| Tax Area: | 300 - APPRAISER-Cpvl Schl Dist, in Cpvl | Land Use Code | 53 |
| Open Space: | N | DFL | N |
| Historic Property: | N | Remodel Property: | N |
| Multi-Family Redevelopment: | N | | |
| Township: | 32 | Section: | 33 |
| Range: | R1 |
Location |
| Address: | 12 NW FRONT ST COUPEVILLE, WA 98239 | Mapsco: | |
| Neighborhood: | 2 Front Street Comercial | Map ID: | 176 |
| Neighborhood CD: | 21cCPfront |
Owner |
| Name: | SALTY VONS, LLC | Owner ID: | 291631 |
| Mailing Address: | PO BOX 549 COUPEVILLE, WA 98239 | % Ownership: | 100.0000000000% |
| | | Exemptions: | |
Taxes and Assessment Details
Values
| (+) Improvement Homesite Value: | + | $0 | |
| (+) Improvement Non-Homesite Value: | + | $0 | |
| (+) Land Homesite Value: | + | $0 | |
| (+) Land Non-Homesite Value: | + | $0 | |
| (+) Curr Use (HS): | + | $0 | $0 |
| (+) Curr Use (NHS): | + | $0 | $0 |
| | | -------------------------- | |
| (=) Market Value: | = | $0 | |
| (–) Productivity Loss: | – | $0 | |
| | | -------------------------- | |
| (=) Subtotal: | = | $0 | |
| (+) Senior Appraised Value: | + | $0 | |
| (+) Non-Senior Appraised Value: | + | $0 | |
| | | -------------------------- | |
| (=) Total Appraised Value: | = | $0 | |
| (–) Senior Exemption Loss: | – | $0 | |
| (–) Exemption Loss: | – | $0 | |
| | | -------------------------- | |
| (=) Taxable Value: | = | $0 | |
Taxing Jurisdiction
| Owner: | SALTY VONS, LLC | | |
| % Ownership: | 100.0000000000% | | |
| Total Value: | $0 | | |
| Tax Area: | 300 - APPRAISER-Cpvl Schl Dist, in Cpvl |
| CF | Conservation Futures | 0.0316035091 | $0 | $0 | $0.00 | | |
| CEM2 | Cemetery #2 | 0.0095056933 | $0 | $0 | $0.00 | | |
| COUP | City: Town of Coupeville | 0.8426414490 | $0 | $0 | $0.00 | | |
| FIRE5 | Fire & Rescue Dist #5 C Whidbey GEN | 1.2008080668 | $0 | $0 | $0.00 | | |
| FIRE5BOND | Fire & Rescue Dist #5 C Whidbey BOND | 0.1400090713 | $0 | $0 | $0.00 | | |
| HOBOND | Hospital BOND | 0.1910887512 | $0 | $0 | $0.00 | | |
| HOGEN | Hospital GEN | 0.3902502903 | $0 | $0 | $0.00 | | |
| CE | County Current Expense | 0.3708482477 | $0 | $0 | $0.00 | | |
| ISLANDEMS | Hospital GEN (EMS) | 0.5000000000 | $0 | $0 | $0.00 | | |
| LIB | Library Sno-Isle GEN | 0.3153421757 | $0 | $0 | $0.00 | | |
| LIBCAP | Library Sno-Isle BOND (Cap Fac Imp Area) | 0.0543427938 | $0 | $0 | $0.00 | | |
| POCOUP | Port of Coupeville GEN | 0.1093371703 | $0 | $0 | $0.00 | | |
| POCOUPIDD | Port of Coupeville IDD | 0.3409740022 | $0 | $0 | $0.00 | | |
| COUPSDTECH | School 204 CP (TECH) | 0.7545480007 | $0 | $0 | $0.00 | | |
| SCH204MO | School 204 Enrichment | 0.6716186034 | $0 | $0 | $0.00 | | |
| ST | State School | 1.3035497053 | $0 | $0 | $0.00 | | |
| ST2 | State School Part 2 | 0.8169543533 | $0 | $0 | $0.00 | | |
| | Total Tax Rate: | 8.0434218834 | | | | | |
| | | | | Taxes w/Current Exemptions: | $0.00 | | |
| | | | | Taxes w/o Exemptions: | $0.00 | | |
Improvement / Building
| Improvement #1: | COMMERCIAL | State Code: | F1 | 4774.2 sqft | Value: | $0 |
| Bathrooms: | 0 | Bedrooms: | 0 | | Ceiling: | DRYWALL PAINTED | Exterior Wall/Cover: | WD SIDING/WOOD FRAME | | Floor Covering: | VINYL 100% | Floor Structure: | WOOD ON WOOD JOIST | | Foundation: | CONCRETE | Heating: | HEAT PUMP | | Interior Finish: | RETAIL | Plumbing Fixture Cnt: | 14 | | Roof Structure/Cover: | COMP OPEN WOOD |   |   |
|
| | Type | Description | Class CD | Sub Class CD | Year Built | Area |
| | BAS | BASE/MAIN FLOOR | 3 | 0 | 1885 | 1774.2 |
| | OP3 | OPEN PORCH W/ROOF | 3 | 0 | 1885 | 25.8 |
| | OWP | OPEN WOOD PORCH W/STEPS | 3 | 0 | 1885 | 545.8 |
| | UPS | UPPER STORY | 3 | 0 | 1885 | 1800.0 |
| | DWN | DOWNSTAIRS LIVING AREA | 3 | 0 | 1885 | 1200.0 |
Sketch
Property Image
Land
| 1 | 68 | COMMERCIAL RETAIL | 0.1000 | 4356.00 | 68.00 | 0.00 | 1.00 | $0 | $0 |
Roll Value History
| 2026 | N/A | N/A | N/A | N/A | N/A |
| 2025 | $0 | $0 | $0 | $0 | $0 |
| 2024 | $0 | $0 | $0 | $0 | $0 |
| 2023 | $0 | $0 | $0 | $0 | $0 |
| 2022 | $613,094 | $450,000 | $0 | $1,063,094 | $1,063,094 |
| 2021 | $411,226 | $450,000 | $0 | $861,226 | $861,226 |
| 2020 | $403,926 | $450,000 | $0 | $853,926 | $853,926 |
| 2019 | $373,965 | $450,000 | $0 | $823,965 | $823,965 |
| 2018 | $349,036 | $450,000 | $0 | $799,036 | $799,036 |
| 2017 | $349,099 | $200,000 | $0 | $549,099 | $549,099 |
| 2016 | $349,244 | $200,000 | $0 | $549,244 | $549,244 |
| 2015 | $366,359 | $200,000 | $0 | $566,359 | $566,359 |
| 2014 | $373,076 | $200,000 | $0 | $573,076 | $573,076 |
| 2013 | $304,801 | $205,920 | $0 | $510,721 | $510,721 |
| 2012 | $326,042 | $221,078 | $0 | $547,120 | $547,120 |
| 2011 | $326,042 | $221,078 | $0 | $547,120 | $547,120 |
| 2010 | $397,057 | $182,096 | $0 | $579,153 | $579,153 |
| 2009 | $402,944 | $245,836 | $0 | $648,780 | $648,780 |
| 2008 | $408,831 | $245,836 | $0 | $654,667 | $654,667 |
| 2007 | $414,718 | $245,836 | $0 | $660,554 | $660,554 |
Deed and Sales History
| 1 | 08/27/2019 | WD | Warranty Deed | STAN & OLLIE, LLC | SALTY VONS, LLC | | | $850,000.00 | 40112 | 4470697 |
| 2 | 08/27/2018 | QCD | Quit Claim Deed | STAN & OLLIE, LLC | STAN & OLLIE, LLC | | | $0.00 | 35923 | 4451834 |
| 3 | 09/14/2017 | QCD | Quit Claim Deed | FONDA, MILDRED E | STAN & OLLIE, LLC | | | $0.00 | 31421 | 4431599 |
| 4 | 09/08/2017 | QCD | Quit Claim Deed | FONDA, MILDRED E | FONDA, MILDRED E | | | $0.00 | 31419 | 4431598 |
| 5 | 06/22/2006 | OTHER | Other - Misc. Documents | COLLINS JTWROS, JOHN R | FONDA, MILDRED E | | | $0.00 | 70967 | 0 |
| 6 | 10/28/2005 | 5 | DNU - Marriage License/Name Change | COLLINS, JOHN R | COLLINS JTWROS, JOHN R | | | $0.00 | 55606 | 4153153 |
| 7 | 11/03/2004 | QCD | Quit Claim Deed | COLLINS, JOHN R | COLLINS, JOHN R | | | $0.00 | 51223 | 4129518 |
| 8 | 11/03/2004 | QCD | Quit Claim Deed | STAN, & O | COLLINS, JOHN R | | | $0.00 | 45207 | 4117252 |
| 9 | 06/01/1997 | WD | Warranty Deed | KROLL, KENNETH M | STAN, & O | | | $420,000.00 | 72107 | 97009886 |
| 10 | 11/01/1992 | DECREE | Divorce Decree/Legal Separation | KROLL, KENNETH M | KROLL, KENNETH M | | | $0.00 | 24745 | 92023347 |
| 11 | 02/01/1991 | DECREE | Divorce Decree/Legal Separation | KROLL, KENNETH M | KROLL, KENNETH M | | | $0.00 | 11287 | 91005589 |
| 12 | 03/01/1987 | QCD | Quit Claim Deed | KROLL, KENNETH M | KROLL, KENNETH M | | | $0.00 | 70560 | 87003311 |
| 13 | 01/01/1900 | OTHER | Other - Misc. Documents | Unknown | KROLL, KENNETH M | | | $0.00 | 0 | 261115 |
Payout Agreement
| No payout information available.. |