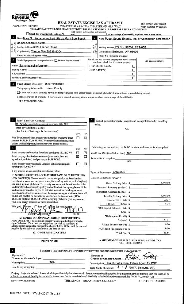
Property
Account |
| Property ID: | 288076 | Abbreviated Legal Description: | KOETJE ADD E/2 LOT 16 BLK C EX N40' |
| Geographic ID: | S7285-00-0C016-1 | Agent Code: | |
| Type: | Real | | |
| Tax Area: | 100 - APPRAISER-OH Schl Dist, in OH | Land Use Code | 11 |
| Open Space: | N | DFL | N |
| Historic Property: | N | Remodel Property: | N |
| Multi-Family Redevelopment: | N | | |
| Township: | | Section: | |
| Range: | |
Location |
| Address: | 580 E WHIDBEY AVE OAK HARBOR, WA 98277 | Mapsco: | |
| Neighborhood: | 6BcOH-whidbey ave | Map ID: | 256 |
| Neighborhood CD: | 6BcOHwhdby |
Owner |
| Name: | GRAYHAWK PARTNERS, LLC | Owner ID: | 280080 |
| Mailing Address: | 1849 WEST BEACH RD OAK HARBOR, WA 98277 | % Ownership: | 100.0000000000% |
| | | Exemptions: | |
Taxes and Assessment Details
Values
| (+) Improvement Homesite Value: | + | $0 | |
| (+) Improvement Non-Homesite Value: | + | $127,657 | |
| (+) Land Homesite Value: | + | $0 | |
| (+) Land Non-Homesite Value: | + | $180,000 | |
| (+) Curr Use (HS): | + | $0 | $0 |
| (+) Curr Use (NHS): | + | $0 | $0 |
| | | -------------------------- | |
| (=) Market Value: | = | $307,657 | |
| (–) Productivity Loss: | – | $0 | |
| | | -------------------------- | |
| (=) Subtotal: | = | $307,657 | |
| (+) Senior Appraised Value: | + | $0 | |
| (+) Non-Senior Appraised Value: | + | $307,657 | |
| | | -------------------------- | |
| (=) Total Appraised Value: | = | $307,657 | |
| (–) Senior Exemption Loss: | – | $0 | |
| (–) Exemption Loss: | – | $0 | |
| | | -------------------------- | |
| (=) Taxable Value: | = | $307,657 | |
Taxing Jurisdiction
| Owner: | GRAYHAWK PARTNERS, LLC | | |
| % Ownership: | 100.0000000000% | | |
| Total Value: | $307,657 | | |
| Tax Area: | 100 - APPRAISER-OH Schl Dist, in OH |
| CF | Conservation Futures | 0.0316035091 | $307,657 | $307,657 | $9.72 | | |
| CEM1 | Cemetery #1 | 0.0040320932 | $307,657 | $307,657 | $1.24 | | |
| COH | City of Oak Harbor | 2.3001546061 | $307,657 | $307,657 | $707.66 | | |
| OAKBOND | City of Oak Harbor BOND | 0.1926904192 | $307,657 | $307,657 | $59.28 | | |
| HOBOND | Hospital BOND | 0.1910887512 | $307,657 | $307,657 | $58.79 | | |
| HOGEN | Hospital GEN | 0.3902502903 | $307,657 | $307,657 | $120.06 | | |
| CE | County Current Expense | 0.3708482477 | $307,657 | $307,657 | $114.09 | | |
| ISLANDEMS | Hospital GEN (EMS) | 0.5000000000 | $307,657 | $307,657 | $153.83 | | |
| LIB | Library Sno-Isle GEN | 0.3153421757 | $307,657 | $307,657 | $97.02 | | |
| NWHIDPRMT | P & R N Whidbey GEN | 0.2004466701 | $307,657 | $307,657 | $61.67 | | |
| SCH201MO | School 201 Enrichment | 1.8559231640 | $307,657 | $307,657 | $570.99 | | |
| ST | State School | 1.3035497053 | $307,657 | $307,657 | $401.05 | | |
| ST2 | State School Part 2 | 0.8169543533 | $307,657 | $307,657 | $251.34 | | |
| | Total Tax Rate: | 8.4728839852 | | | | | |
| | | | | Taxes w/Current Exemptions: | $2,606.74 | | |
| | | | | Taxes w/o Exemptions: | $2,606.74 | | |
Improvement / Building
| Improvement #1: | RESIDENTIAL | State Code: | Y | 745.0 sqft | Value: | $127,657 |
| Bathrooms: | 1 | Bedrooms: | 2 | | Ceiling: | DRYWALL PAINTED | Exterior Wall/Cover: | WOOD SIDING | | Floor Covering: | CARPET/VINYL 60-40 | Floor Structure: | WOOD W/SUBFLOOR | | Foundation: | CONCRETE | Heating: | FLOOR/WALL-OIL | | Interior Finish: | DRYWALL PAINT | Plumbing Fixture Cnt: | 6 | | Roof Slope: | 8" IN 12" | Roof Structure/Cover: | CJ ALUMINIUM HEAVY |
|
| | Type | Description | Class CD | Sub Class CD | Year Built | Area |
| | BAS | BASE/MAIN FLOOR | 3 | 0 | 1948 | 745.0 |
| | OP2 | OPEN PORCH W/STEPS | 3 | 0 | 1948 | 36.0 |
| | OP3 | OPEN PORCH W/ROOF | 3 | 0 | 1948 | 27.8 |
| | DGR | DETACHED GARAGE | 3 | 0 | 1948 | 480.0 |
| | UTY | STORAGE/UTILITY | 3 | 0 | 1948 | 153.0 |
Sketch
Property Image
Land
| 1 | 15 | SQ (12001-21780) | 0.4477 | 19501.81 | 0.00 | 0.00 | 1.00 | $180,000 | $0 |
Roll Value History
| 2026 | N/A | N/A | N/A | N/A | N/A |
| 2025 | $127,657 | $180,000 | $0 | $307,657 | $307,657 |
| 2024 | $129,811 | $180,000 | $0 | $309,811 | $309,811 |
| 2023 | $131,965 | $150,000 | $0 | $281,965 | $281,965 |
| 2022 | $93,672 | $125,000 | $0 | $218,672 | $218,672 |
| 2021 | $82,848 | $125,000 | $0 | $207,848 | $207,848 |
| 2020 | $81,033 | $100,000 | $0 | $181,033 | $181,033 |
| 2019 | $57,888 | $150,000 | $0 | $207,888 | $207,888 |
| 2018 | $58,125 | $125,000 | $0 | $183,125 | $183,125 |
| 2017 | $58,597 | $136,513 | $0 | $195,110 | $195,110 |
| 2016 | $26,610 | $136,513 | $0 | $163,123 | $163,123 |
| 2015 | $26,610 | $89,115 | $0 | $115,725 | $115,725 |
| 2014 | $26,610 | $89,115 | $0 | $115,725 | $115,725 |
| 2013 | $26,610 | $89,115 | $0 | $115,725 | $115,725 |
| 2012 | $26,610 | $89,115 | $0 | $115,725 | $115,725 |
| 2011 | $26,610 | $89,115 | $0 | $115,725 | $115,725 |
| 2010 | $68,434 | $89,115 | $0 | $157,549 | $157,549 |
| 2009 | $71,326 | $115,440 | $0 | $186,766 | $186,766 |
| 2008 | $72,398 | $115,440 | $0 | $187,838 | $187,838 |
| 2007 | $73,471 | $115,440 | $0 | $188,911 | $188,911 |
Deed and Sales History
| 1 | 05/23/2017 | WD | Warranty Deed | ROYCE, JOHN C | GRAYHAWK PARTNERS, LLC | | | $225,000.00 | 29466 | 4423220 |
| 2 | 06/09/2008 | PRD | Personal Representatives Deed | ROYCE, JOHN C | ROYCE, JOHN C | | | $0.00 | 81476 | 4230323 |
| 3 | 03/18/2008 | WD | Warranty Deed | TECHAIRA, MANUEL L G | ROYCE, JOHN C | | | $200,000.00 | 80649 | 4224338 |
| 4 | 01/01/1900 | WD | Warranty Deed | Unknown | TECHAIRA, MANUEL L G | | | $0.00 | 0 | 0 |
Payout Agreement
| No payout information available.. |