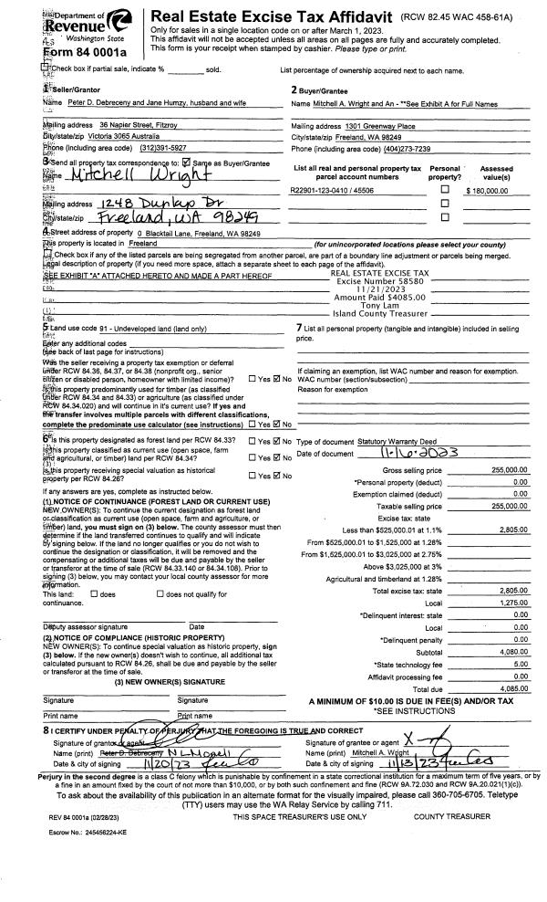
Property
Account |
| Property ID: | 288174 | Abbreviated Legal Description: | KOETJES REPLAT LOT 3 BLK C LOT 1 |
| Geographic ID: | S7285-03-0C001-0 | Agent Code: | |
| Type: | Real | | |
| Tax Area: | 100 - APPRAISER-OH Schl Dist, in OH | Land Use Code | 13 |
| Open Space: | N | DFL | N |
| Historic Property: | N | Remodel Property: | N |
| Multi-Family Redevelopment: | N | | |
| Township: | | Section: | |
| Range: | |
Location |
| Address: | 393 NE KETTLE ST OAK HARBOR, WA 98277 | Mapsco: | |
| Neighborhood: | 6AcOH-nekettle st | Map ID: | 257 |
| Neighborhood CD: | 6AcOHnektl |
Owner |
| Name: | MASSEY, WILLIAM L | Owner ID: | 308030 |
| Mailing Address: | KATHLEEN A MASSEY LINDA R MASSEY 41 NE MIDWAY BLVD SUITE 101 OAK HARBOR, WA 98277 | % Ownership: | 100.0000000000% |
| | | Exemptions: | |
Taxes and Assessment Details
Values
| (+) Improvement Homesite Value: | + | $0 | |
| (+) Improvement Non-Homesite Value: | + | $770,252 | |
| (+) Land Homesite Value: | + | $0 | |
| (+) Land Non-Homesite Value: | + | $822,369 | |
| (+) Curr Use (HS): | + | $0 | $0 |
| (+) Curr Use (NHS): | + | $0 | $0 |
| | | -------------------------- | |
| (=) Market Value: | = | $1,592,621 | |
| (–) Productivity Loss: | – | $0 | |
| | | -------------------------- | |
| (=) Subtotal: | = | $1,592,621 | |
| (+) Senior Appraised Value: | + | $0 | |
| (+) Non-Senior Appraised Value: | + | $1,592,621 | |
| | | -------------------------- | |
| (=) Total Appraised Value: | = | $1,592,621 | |
| (–) Senior Exemption Loss: | – | $0 | |
| (–) Exemption Loss: | – | $0 | |
| | | -------------------------- | |
| (=) Taxable Value: | = | $1,592,621 | |
Taxing Jurisdiction
| Owner: | MASSEY, WILLIAM L | | |
| % Ownership: | 100.0000000000% | | |
| Total Value: | $1,592,621 | | |
| Tax Area: | 100 - APPRAISER-OH Schl Dist, in OH |
| CF | Conservation Futures | 0.0316035091 | $1,592,621 | $1,592,621 | $50.33 | | |
| CEM1 | Cemetery #1 | 0.0040320932 | $1,592,621 | $1,592,621 | $6.42 | | |
| COH | City of Oak Harbor | 2.3001546061 | $1,592,621 | $1,592,621 | $3,663.27 | | |
| OAKBOND | City of Oak Harbor BOND | 0.1926904192 | $1,592,621 | $1,592,621 | $306.88 | | |
| HOBOND | Hospital BOND | 0.1910887512 | $1,592,621 | $1,592,621 | $304.33 | | |
| HOGEN | Hospital GEN | 0.3902502903 | $1,592,621 | $1,592,621 | $621.52 | | |
| CE | County Current Expense | 0.3708482477 | $1,592,621 | $1,592,621 | $590.62 | | |
| ISLANDEMS | Hospital GEN (EMS) | 0.5000000000 | $1,592,621 | $1,592,621 | $796.31 | | |
| LIB | Library Sno-Isle GEN | 0.3153421757 | $1,592,621 | $1,592,621 | $502.22 | | |
| NWHIDPRMT | P & R N Whidbey GEN | 0.2004466701 | $1,592,621 | $1,592,621 | $319.24 | | |
| SCH201MO | School 201 Enrichment | 1.8559231640 | $1,592,621 | $1,592,621 | $2,955.78 | | |
| ST | State School | 1.3035497053 | $1,592,621 | $1,592,621 | $2,076.06 | | |
| ST2 | State School Part 2 | 0.8169543533 | $1,592,621 | $1,592,621 | $1,301.10 | | |
| | Total Tax Rate: | 8.4728839852 | | | | | |
| | | | | Taxes w/Current Exemptions: | $13,494.08 | | |
| | | | | Taxes w/o Exemptions: | $13,494.08 | | |
Improvement / Building
| Improvement #1: | COMMERCIAL | State Code: | B1 | 4992.0 sqft | Value: | $344,122 |
| Bathrooms: | 8 | Bedrooms: | 12 | | Ceiling: | DRY WALL SPRAYED | Exterior Wall/Cover: | PLY/HARDBOARD T-111 | | Floor Covering: | CARPET/VINYL 80-20 | Floor Structure: | WOOD W/SUBFLOOR | | Foundation: | CONCRETE | Heating: | BASEBOARD ELECTRIC | | Interior Finish: | DRYWALL PAINT | Plumbing Fixture Cnt: | 40 | | Roof Slope: | 5" IN 12" | Roof Structure/Cover: | CJ ASPHALT |
|
| | Type | Description | Class CD | Sub Class CD | Year Built | Area |
| | BAS | BASE/MAIN FLOOR | 3 | 0 | 1977 | 2496.0 |
| | UPS | UPPER STORY | 3 | 0 | 1977 | 2496.0 |
| | OWP | OPEN WOOD PORCH W/STEPS | 3 | 0 | 1977 | 62.5 |
| | OWP | OPEN WOOD PORCH W/STEPS | 3 | 0 | 1977 | 62.5 |
| | OWP | OPEN WOOD PORCH W/STEPS | 3 | 0 | 1977 | 62.5 |
| | OWP | OPEN WOOD PORCH W/STEPS | 3 | 0 | 1977 | 679.0 |
| | OP1 | OPEN PORCH SLAB | 3 | 0 | 1977 | 488.0 |
| | oPV1 | PV/ASPH 2" | 3 | 0 | 1977 | 8568.0 |
| Improvement #2: | COMMERCIAL | State Code: | B1 | 6588.0 sqft | Value: | $426,130 |
| Bathrooms: | 10 | Bedrooms: | 20 | | Ceiling: | DRY WALL SPRAYED | Exterior Wall/Cover: | PLY/HARDBOARD T-111 | | Floor Covering: | CARPET/VINYL 80-20 | Floor Structure: | WOOD W/SUBFLOOR | | Foundation: | CONCRETE | Heating: | BASEBOARD ELECTRIC | | Interior Finish: | DRYWALL PAINT | Plumbing Fixture Cnt: | 52 | | Roof Slope: | 5" IN 12" | Roof Structure/Cover: | CJ ASPHALT |
|
| | Type | Description | Class CD | Sub Class CD | Year Built | Area |
| | BAS | BASE/MAIN FLOOR | 3 | 0 | 1977 | 3294.0 |
| | UTY | STORAGE/UTILITY | 3 | 0 | 1977 | 144.0 |
| | UPS | UPPER STORY | 3 | 0 | 1977 | 3294.0 |
| | OWP | OPEN WOOD PORCH W/STEPS | 3 | 0 | 1977 | 65.0 |
| | OWP | OPEN WOOD PORCH W/STEPS | 3 | 0 | 1977 | 65.0 |
| | OWP | OPEN WOOD PORCH W/STEPS | 3 | 0 | 1977 | 65.0 |
| | OWP | OPEN WOOD PORCH W/STEPS | 3 | 0 | 1977 | 65.0 |
| | OWP | OPEN WOOD PORCH W/STEPS | 3 | 0 | 1977 | 624.0 |
| | OP1 | OPEN PORCH SLAB | 3 | 0 | 1977 | 648.0 |
Sketch
Property Image
Land
| 1 | 61 | MULTIPLE RESIDENCES | 0.8990 | 39160.44 | 0.00 | 0.00 | 1.00 | $822,369 | $0 |
Roll Value History
| 2026 | N/A | N/A | N/A | N/A | N/A |
| 2025 | $770,252 | $822,369 | $0 | $1,592,621 | $1,592,621 |
| 2024 | $815,608 | $822,369 | $0 | $1,637,977 | $1,637,977 |
| 2023 | $845,522 | $822,369 | $0 | $1,667,891 | $1,667,891 |
| 2022 | $663,640 | $822,369 | $0 | $1,486,009 | $1,486,009 |
| 2021 | $659,176 | $822,369 | $0 | $1,481,545 | $1,481,545 |
| 2020 | $658,360 | $822,369 | $0 | $1,480,729 | $1,480,729 |
| 2019 | $655,554 | $822,369 | $0 | $1,477,923 | $1,477,923 |
| 2018 | $655,651 | $717,720 | $0 | $1,373,371 | $1,373,371 |
| 2017 | $655,831 | $125,639 | $0 | $781,470 | $781,470 |
| 2016 | $673,410 | $125,639 | $0 | $799,049 | $799,049 |
| 2015 | $673,410 | $125,639 | $0 | $799,049 | $799,049 |
| 2014 | $673,410 | $125,639 | $0 | $799,049 | $799,049 |
| 2013 | $673,410 | $125,639 | $0 | $799,049 | $799,049 |
| 2012 | $673,410 | $125,639 | $0 | $799,049 | $799,049 |
| 2011 | $673,410 | $125,639 | $0 | $799,049 | $799,049 |
| 2010 | $672,825 | $139,018 | $0 | $811,843 | $811,843 |
| 2009 | $680,888 | $180,996 | $0 | $861,884 | $861,884 |
| 2008 | $688,286 | $180,136 | $0 | $868,422 | $868,422 |
| 2007 | $697,209 | $180,136 | $0 | $877,345 | $877,345 |
Deed and Sales History
| 1 | 03/29/2023 | WD | Warranty Deed | MASSEY, LINDA R | MASSEY, WILLIAM L | | | $750,000.00 | 56282 | 4558331 |
| 2 | 03/17/2023 | QCD | Quit Claim Deed | PINEWOOD APARTMENTS LLC | MASSEY, WILLIAM L | | | $0.00 | 56155 | 4557913 |
| 3 | 01/22/2003 | QCD | Quit Claim Deed | MASSEY, RAYMOND G | APPARTMENTS LLC, PINEWOOD | | | $0.00 | 30267 | 4045248 |
| 4 | 01/01/1900 | OTHER | Other - Misc. Documents | Unknown | MASSEY, RAYMOND G | | | $0.00 | 0 | 0 |
Payout Agreement
| No payout information available.. |