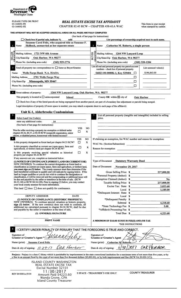
Property
Account |
| Property ID: | 288343 | Abbreviated Legal Description: | KOETJE 2ND REPLAT LOT 6 |
| Geographic ID: | S7285-21-00006-0 | Agent Code: | |
| Type: | Real | | |
| Tax Area: | 100 - APPRAISER-OH Schl Dist, in OH | Land Use Code | 11 |
| Open Space: | N | DFL | N |
| Historic Property: | N | Remodel Property: | N |
| Multi-Family Redevelopment: | N | | |
| Township: | | Section: | |
| Range: | |
Location |
| Address: | 225 NE HARVEST DR OAK HARBOR, WA 98277 | Mapsco: | |
| Neighborhood: | Cycle 1 | Map ID: | 256 |
| Neighborhood CD: | 1 |
Owner |
| Name: | WESTMAN, CHRISTINE | Owner ID: | 282151 |
| Mailing Address: | 225 NE HARVEST DR OAK HARBOR, WA 98277 | % Ownership: | 100.0000000000% |
| | | Exemptions: | |
Taxes and Assessment Details
Values
| (+) Improvement Homesite Value: | + | $0 | |
| (+) Improvement Non-Homesite Value: | + | $216,891 | |
| (+) Land Homesite Value: | + | $0 | |
| (+) Land Non-Homesite Value: | + | $180,000 | |
| (+) Curr Use (HS): | + | $0 | $0 |
| (+) Curr Use (NHS): | + | $0 | $0 |
| | | -------------------------- | |
| (=) Market Value: | = | $396,891 | |
| (–) Productivity Loss: | – | $0 | |
| | | -------------------------- | |
| (=) Subtotal: | = | $396,891 | |
| (+) Senior Appraised Value: | + | $0 | |
| (+) Non-Senior Appraised Value: | + | $396,891 | |
| | | -------------------------- | |
| (=) Total Appraised Value: | = | $396,891 | |
| (–) Senior Exemption Loss: | – | $0 | |
| (–) Exemption Loss: | – | $0 | |
| | | -------------------------- | |
| (=) Taxable Value: | = | $396,891 | |
Taxing Jurisdiction
| Owner: | WESTMAN, CHRISTINE | | |
| % Ownership: | 100.0000000000% | | |
| Total Value: | $396,891 | | |
| Tax Area: | 100 - APPRAISER-OH Schl Dist, in OH |
| CF | Conservation Futures | 0.0316035091 | $396,891 | $396,891 | $12.54 | | |
| CEM1 | Cemetery #1 | 0.0040320932 | $396,891 | $396,891 | $1.60 | | |
| COH | City of Oak Harbor | 2.3001546061 | $396,891 | $396,891 | $912.91 | | |
| OAKBOND | City of Oak Harbor BOND | 0.1926904192 | $396,891 | $396,891 | $76.48 | | |
| HOBOND | Hospital BOND | 0.1910887512 | $396,891 | $396,891 | $75.84 | | |
| HOGEN | Hospital GEN | 0.3902502903 | $396,891 | $396,891 | $154.89 | | |
| CE | County Current Expense | 0.3708482477 | $396,891 | $396,891 | $147.19 | | |
| ISLANDEMS | Hospital GEN (EMS) | 0.5000000000 | $396,891 | $396,891 | $198.45 | | |
| LIB | Library Sno-Isle GEN | 0.3153421757 | $396,891 | $396,891 | $125.16 | | |
| NWHIDPRMT | P & R N Whidbey GEN | 0.2004466701 | $396,891 | $396,891 | $79.56 | | |
| SCH201MO | School 201 Enrichment | 1.8559231640 | $396,891 | $396,891 | $736.60 | | |
| ST | State School | 1.3035497053 | $396,891 | $396,891 | $517.37 | | |
| ST2 | State School Part 2 | 0.8169543533 | $396,891 | $396,891 | $324.24 | | |
| | Total Tax Rate: | 8.4728839852 | | | | | |
| | | | | Taxes w/Current Exemptions: | $3,362.83 | | |
| | | | | Taxes w/o Exemptions: | $3,362.83 | | |
Improvement / Building
| Improvement #1: | RESIDENTIAL | State Code: | Y | 1266.0 sqft | Value: | $216,891 |
| Bathrooms: | 1 | Bedrooms: | 2 | | Ceiling: | DRYWALL PAINTED | Exterior Wall/Cover: | PLY/HARDBOARD T-111 | | Floor Covering: | CARPET/VINYL 80-20 | Floor Structure: | WOOD W/SUBFLOOR | | Foundation: | CONCRETE BLOCKS | Heating: | BASEBOARD ELECTRIC | | Interior Finish: | DRYWALL PAINT | Plumbing Fixture Cnt: | 6 | | Roof Slope: | 6" IN 12" | Roof Structure/Cover: | CJ ASPHALT |
|
| | Type | Description | Class CD | Sub Class CD | Year Built | Area |
| | BAS | BASE/MAIN FLOOR | 3 | 0 | 1950 | 1266.0 |
| | OP3 | OPEN PORCH W/ROOF | 3 | 0 | 1950 | 308.0 |
| | OP3 | OPEN PORCH W/ROOF | 3 | 0 | 1950 | 308.0 |
| | AGR | ATTACHED GARAGE | 3 | 0 | 1950 | 360.0 |
| | ATF | ATTIC FINISHED | 3 | 0 | 1950 | 272.0 |
Sketch
Property Image
Land
| 1 | 14 | SQ (08001-12000) | 0.0000 | 0.00 | 0.00 | 0.00 | 1.00 | $180,000 | $0 |
Roll Value History
| 2026 | N/A | N/A | N/A | N/A | N/A |
| 2025 | $216,891 | $180,000 | $0 | $396,891 | $396,891 |
| 2024 | $224,704 | $170,000 | $0 | $394,704 | $394,704 |
| 2023 | $212,683 | $170,000 | $0 | $382,683 | $382,683 |
| 2022 | $195,220 | $160,000 | $0 | $355,220 | $355,220 |
| 2021 | $172,041 | $125,000 | $0 | $297,041 | $297,041 |
| 2020 | $168,072 | $100,000 | $0 | $268,072 | $268,072 |
| 2019 | $122,274 | $140,000 | $0 | $262,274 | $262,274 |
| 2018 | $122,670 | $125,000 | $0 | $247,670 | $247,670 |
| 2017 | $83,168 | $110,000 | $0 | $193,168 | $193,168 |
| 2016 | $84,626 | $90,000 | $0 | $174,626 | $174,626 |
| 2015 | $86,086 | $70,000 | $0 | $156,086 | $156,086 |
| 2014 | $87,546 | $55,000 | $0 | $142,546 | $142,546 |
| 2013 | $89,005 | $55,000 | $0 | $144,005 | $144,005 |
| 2012 | $90,464 | $60,000 | $0 | $150,464 | $150,464 |
| 2011 | $72,532 | $50,000 | $0 | $122,532 | $122,532 |
| 2010 | $81,815 | $50,000 | $0 | $131,815 | $131,815 |
| 2009 | $85,856 | $75,000 | $0 | $160,856 | $160,856 |
| 2008 | $87,411 | $85,000 | $0 | $172,411 | $172,411 |
| 2007 | $88,966 | $75,000 | $0 | $163,966 | $163,966 |
Deed and Sales History
| 1 | 09/27/2017 | WD | Warranty Deed | DICKERSON, ALLEN H | WESTMAN, CHRISTINE | | | $240,000.00 | 31261 | 4430968 |
| 2 | 01/21/2015 | WD | Warranty Deed | CAYS, TERRY R | DICKERSON, ALLEN H | | | $166,000.00 | 18292 | 4372114 |
| 3 | 11/26/2014 | QCD | Quit Claim Deed | CAYS, PERRY R | CAYS, TERRY R | | | $0.00 | 17688 | 4369045 |
Payout Agreement
| No payout information available.. |