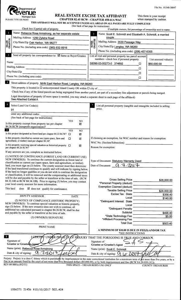
Property
Account |
| Property ID: | 288842 | Abbreviated Legal Description: | KOETJE 3RD LOT 4 BLK 1 |
| Geographic ID: | S7285-30-01004-0 | Agent Code: | |
| Type: | Real | | |
| Tax Area: | 100 - APPRAISER-OH Schl Dist, in OH | Land Use Code | 11 |
| Open Space: | N | DFL | N |
| Historic Property: | N | Remodel Property: | N |
| Multi-Family Redevelopment: | N | | |
| Township: | | Section: | |
| Range: | |
Location |
| Address: | 1640 NE 11TH AVE OAK HARBOR, WA 98277 | Mapsco: | |
| Neighborhood: | Cycle 1 | Map ID: | 259 |
| Neighborhood CD: | 1 |
Owner |
| Name: | THOMPSON JR, JOHNNY A | Owner ID: | 77502 |
| Mailing Address: | VICTORIA ANN THOMPSON 1640 NE 11TH AVE OAK HARBOR, WA 98277-4820 | % Ownership: | 100.0000000000% |
| | | Exemptions: | |
Taxes and Assessment Details
Values
| (+) Improvement Homesite Value: | + | $0 | |
| (+) Improvement Non-Homesite Value: | + | $233,004 | |
| (+) Land Homesite Value: | + | $0 | |
| (+) Land Non-Homesite Value: | + | $180,000 | |
| (+) Curr Use (HS): | + | $0 | $0 |
| (+) Curr Use (NHS): | + | $0 | $0 |
| | | -------------------------- | |
| (=) Market Value: | = | $413,004 | |
| (–) Productivity Loss: | – | $0 | |
| | | -------------------------- | |
| (=) Subtotal: | = | $413,004 | |
| (+) Senior Appraised Value: | + | $0 | |
| (+) Non-Senior Appraised Value: | + | $413,004 | |
| | | -------------------------- | |
| (=) Total Appraised Value: | = | $413,004 | |
| (–) Senior Exemption Loss: | – | $0 | |
| (–) Exemption Loss: | – | $0 | |
| | | -------------------------- | |
| (=) Taxable Value: | = | $413,004 | |
Taxing Jurisdiction
| Owner: | THOMPSON JR, JOHNNY A | | |
| % Ownership: | 100.0000000000% | | |
| Total Value: | $413,004 | | |
| Tax Area: | 100 - APPRAISER-OH Schl Dist, in OH |
| CF | Conservation Futures | 0.0316035091 | $413,004 | $413,004 | $13.05 | | |
| CEM1 | Cemetery #1 | 0.0040320932 | $413,004 | $413,004 | $1.67 | | |
| COH | City of Oak Harbor | 2.3001546061 | $413,004 | $413,004 | $949.97 | | |
| OAKBOND | City of Oak Harbor BOND | 0.1926904192 | $413,004 | $413,004 | $79.58 | | |
| HOBOND | Hospital BOND | 0.1910887512 | $413,004 | $413,004 | $78.92 | | |
| HOGEN | Hospital GEN | 0.3902502903 | $413,004 | $413,004 | $161.17 | | |
| CE | County Current Expense | 0.3708482477 | $413,004 | $413,004 | $153.16 | | |
| ISLANDEMS | Hospital GEN (EMS) | 0.5000000000 | $413,004 | $413,004 | $206.50 | | |
| LIB | Library Sno-Isle GEN | 0.3153421757 | $413,004 | $413,004 | $130.24 | | |
| NWHIDPRMT | P & R N Whidbey GEN | 0.2004466701 | $413,004 | $413,004 | $82.79 | | |
| SCH201MO | School 201 Enrichment | 1.8559231640 | $413,004 | $413,004 | $766.50 | | |
| ST | State School | 1.3035497053 | $413,004 | $413,004 | $538.37 | | |
| ST2 | State School Part 2 | 0.8169543533 | $413,004 | $413,004 | $337.41 | | |
| | Total Tax Rate: | 8.4728839852 | | | | | |
| | | | | Taxes w/Current Exemptions: | $3,499.33 | | |
| | | | | Taxes w/o Exemptions: | $3,499.33 | | |
Improvement / Building
| Improvement #1: | RESIDENTIAL | State Code: | Y | 1360.0 sqft | Value: | $233,004 |
| Bathrooms: | 2 | Bedrooms: | 3 | | Ceiling: | DRYWALL PAINTED | Exterior Wall/Cover: | WOOD SIDING | | Floor Covering: | HARDWOOD 100% | Floor Structure: | WOOD W/SUBFLOOR | | Foundation: | CONCRETE | Heating: | FHA GAS | | Interior Finish: | DRYWALL PAINT | Plumbing Fixture Cnt: | 8 | | Roof Slope: | 4" IN 12" | Roof Structure/Cover: | CJ ALUMINIUM HEAVY |
|
| | Type | Description | Class CD | Sub Class CD | Year Built | Area |
| | BAS | BASE/MAIN FLOOR | 3 | 0 | 1962 | 1360.0 |
| | OP4 | OPEN PORCH W/CEILING-ROOF | 3 | 0 | 1962 | 20.0 |
| | AGR | ATTACHED GARAGE | 3 | 0 | 1962 | 250.0 |
| | UTY | STORAGE/UTILITY | 3 | 0 | 1962 | 150.0 |
| | UTY | STORAGE/UTILITY | 3 | 0 | 1962 | 44.0 |
| | OWP | OPEN WOOD PORCH W/STEPS | 3 | 0 | 1962 | 352.0 |
Sketch
Property Image
Land
| 1 | 14 | SQ (08001-12000) | 0.0000 | 0.00 | 0.00 | 0.00 | 1.00 | $180,000 | $0 |
Roll Value History
| 2026 | N/A | N/A | N/A | N/A | N/A |
| 2025 | $233,004 | $180,000 | $0 | $413,004 | $413,004 |
| 2024 | $236,275 | $170,000 | $0 | $406,275 | $406,275 |
| 2023 | $210,986 | $170,000 | $0 | $380,986 | $380,986 |
| 2022 | $193,890 | $160,000 | $0 | $353,890 | $353,890 |
| 2021 | $171,075 | $125,000 | $0 | $296,075 | $296,075 |
| 2020 | $167,191 | $100,000 | $0 | $267,191 | $267,191 |
| 2019 | $121,648 | $140,000 | $0 | $261,648 | $261,648 |
| 2018 | $122,075 | $125,000 | $0 | $247,075 | $247,075 |
| 2017 | $87,299 | $110,000 | $0 | $197,299 | $197,299 |
| 2016 | $88,830 | $90,000 | $0 | $178,830 | $178,830 |
| 2015 | $90,361 | $70,000 | $0 | $160,361 | $160,361 |
| 2014 | $91,893 | $55,000 | $0 | $146,893 | $146,893 |
| 2013 | $93,424 | $55,000 | $0 | $148,424 | $148,424 |
| 2012 | $94,955 | $60,000 | $0 | $154,955 | $154,955 |
| 2011 | $80,436 | $50,000 | $0 | $130,436 | $130,436 |
| 2010 | $94,253 | $50,000 | $0 | $144,253 | $144,253 |
| 2009 | $98,668 | $118,000 | $0 | $216,668 | $216,668 |
| 2008 | $98,763 | $120,000 | $0 | $218,763 | $218,763 |
| 2007 | $100,440 | $108,750 | $0 | $209,190 | $209,190 |
Deed and Sales History
| 1 | 02/22/2007 | WD | Warranty Deed | ABRAHAMSE, ARLYS J | THOMPSON, VICTORIA ANN | | | $220,000.00 | 70582 | 4194803 |
| 2 | 01/12/2001 | QCD | Quit Claim Deed | Unknown | GILMORE, WM J | | | $0.00 | 0 | 0 |
| 3 | 01/09/2001 | WD | Warranty Deed | GILMORE, WM J | ABRAHAMSE, ARLYS J | | | $132,000.00 | 10152 | 20023518 |
Payout Agreement
| No payout information available.. |