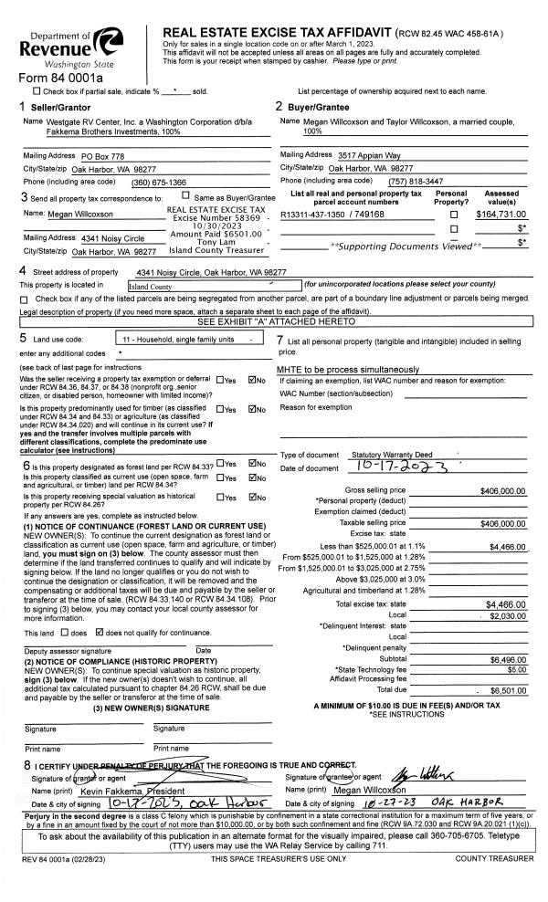
Property
Account |
| Property ID: | 289011 | Abbreviated Legal Description: | KOETJE 3RD LOT 14 BLK 2 |
| Geographic ID: | S7285-30-02014-0 | Agent Code: | |
| Type: | Real | | |
| Tax Area: | 100 - APPRAISER-OH Schl Dist, in OH | Land Use Code | 11 |
| Open Space: | N | DFL | N |
| Historic Property: | N | Remodel Property: | N |
| Multi-Family Redevelopment: | N | | |
| Township: | | Section: | |
| Range: | |
Location |
| Address: | 1660 NE 10TH AVE OAK HARBOR, WA 98277 | Mapsco: | |
| Neighborhood: | Cycle 1 | Map ID: | 259 |
| Neighborhood CD: | 1 |
Owner |
| Name: | KEITH JTWROS, RE'BEKKA-RAYE | Owner ID: | 306979 |
| Mailing Address: | SCOTT AND SHARLA PHILLIPS JTWROS 1660 NE 10TH AVE OAK HARBOR, WA 98277 | % Ownership: | 100.0000000000% |
| | | Exemptions: | |
Taxes and Assessment Details
Values
| (+) Improvement Homesite Value: | + | $0 | |
| (+) Improvement Non-Homesite Value: | + | $198,338 | |
| (+) Land Homesite Value: | + | $0 | |
| (+) Land Non-Homesite Value: | + | $180,000 | |
| (+) Curr Use (HS): | + | $0 | $0 |
| (+) Curr Use (NHS): | + | $0 | $0 |
| | | -------------------------- | |
| (=) Market Value: | = | $378,338 | |
| (–) Productivity Loss: | – | $0 | |
| | | -------------------------- | |
| (=) Subtotal: | = | $378,338 | |
| (+) Senior Appraised Value: | + | $0 | |
| (+) Non-Senior Appraised Value: | + | $378,338 | |
| | | -------------------------- | |
| (=) Total Appraised Value: | = | $378,338 | |
| (–) Senior Exemption Loss: | – | $0 | |
| (–) Exemption Loss: | – | $0 | |
| | | -------------------------- | |
| (=) Taxable Value: | = | $378,338 | |
Taxing Jurisdiction
| Owner: | KEITH JTWROS, RE'BEKKA-RAYE | | |
| % Ownership: | 100.0000000000% | | |
| Total Value: | $378,338 | | |
| Tax Area: | 100 - APPRAISER-OH Schl Dist, in OH |
| CF | Conservation Futures | 0.0316035091 | $378,338 | $378,338 | $11.96 | | |
| CEM1 | Cemetery #1 | 0.0040320932 | $378,338 | $378,338 | $1.53 | | |
| COH | City of Oak Harbor | 2.3001546061 | $378,338 | $378,338 | $870.24 | | |
| OAKBOND | City of Oak Harbor BOND | 0.1926904192 | $378,338 | $378,338 | $72.90 | | |
| HOBOND | Hospital BOND | 0.1910887512 | $378,338 | $378,338 | $72.30 | | |
| HOGEN | Hospital GEN | 0.3902502903 | $378,338 | $378,338 | $147.65 | | |
| CE | County Current Expense | 0.3708482477 | $378,338 | $378,338 | $140.31 | | |
| ISLANDEMS | Hospital GEN (EMS) | 0.5000000000 | $378,338 | $378,338 | $189.17 | | |
| LIB | Library Sno-Isle GEN | 0.3153421757 | $378,338 | $378,338 | $119.31 | | |
| NWHIDPRMT | P & R N Whidbey GEN | 0.2004466701 | $378,338 | $378,338 | $75.84 | | |
| SCH201MO | School 201 Enrichment | 1.8559231640 | $378,338 | $378,338 | $702.17 | | |
| ST | State School | 1.3035497053 | $378,338 | $378,338 | $493.18 | | |
| ST2 | State School Part 2 | 0.8169543533 | $378,338 | $378,338 | $309.08 | | |
| | Total Tax Rate: | 8.4728839852 | | | | | |
| | | | | Taxes w/Current Exemptions: | $3,205.64 | | |
| | | | | Taxes w/o Exemptions: | $3,205.64 | | |
Improvement / Building
| Improvement #1: | RESIDENTIAL | State Code: | Y | 1365.0 sqft | Value: | $198,338 |
| Bathrooms: | 1 | Bedrooms: | 4 | | Ceiling: | DRYWALL PAINTED | Exterior Wall/Cover: | PLY/HARDBOARD T-111 | | Floor Covering: | CARPET/VINYL 80-20 | Floor Structure: | WOOD W/SUBFLOOR | | Foundation: | CONCRETE BLOCKS | Heating: | BASEBOARD ELECTRIC | | Interior Finish: | DRYWALL PAINT | Plumbing Fixture Cnt: | 6 | | Roof Slope: | 4" IN 12" | Roof Structure/Cover: | CJ ASPHALT |
|
| | Type | Description | Class CD | Sub Class CD | Year Built | Area |
| | BAS | BASE/MAIN FLOOR | 3 | 0 | 1960 | 1365.0 |
| | OP2 | OPEN PORCH W/STEPS | 3 | 0 | 1960 | 85.0 |
| | AGR | ATTACHED GARAGE | 3 | 0 | 1960 | 392.0 |
Sketch
Property Image
Land
| 1 | 14 | SQ (08001-12000) | 0.0000 | 0.00 | 0.00 | 0.00 | 1.00 | $180,000 | $0 |
Roll Value History
| 2026 | N/A | N/A | N/A | N/A | N/A |
| 2025 | $198,338 | $180,000 | $0 | $378,338 | $378,338 |
| 2024 | $205,602 | $170,000 | $0 | $375,602 | $375,602 |
| 2023 | $204,069 | $170,000 | $0 | $374,069 | $374,069 |
| 2022 | $187,271 | $160,000 | $0 | $347,271 | $347,271 |
| 2021 | $165,009 | $125,000 | $0 | $290,009 | $290,009 |
| 2020 | $161,230 | $100,000 | $0 | $261,230 | $261,230 |
| 2019 | $118,156 | $140,000 | $0 | $258,156 | $258,156 |
| 2018 | $118,533 | $125,000 | $0 | $243,533 | $243,533 |
| 2017 | $83,625 | $110,000 | $0 | $193,625 | $193,625 |
| 2016 | $85,093 | $90,000 | $0 | $175,093 | $175,093 |
| 2015 | $86,559 | $70,000 | $0 | $156,559 | $156,559 |
| 2014 | $88,026 | $55,000 | $0 | $143,026 | $143,026 |
| 2013 | $89,492 | $55,000 | $0 | $144,492 | $144,492 |
| 2012 | $90,961 | $60,000 | $0 | $150,961 | $150,961 |
| 2011 | $73,356 | $50,000 | $0 | $123,356 | $123,356 |
| 2010 | $86,000 | $50,000 | $0 | $136,000 | $136,000 |
| 2009 | $90,150 | $118,000 | $0 | $208,150 | $208,150 |
| 2008 | $91,761 | $120,000 | $0 | $211,761 | $211,761 |
| 2007 | $93,371 | $108,750 | $0 | $202,121 | $202,121 |
Deed and Sales History
| 1 | 12/14/2022 | WD | Warranty Deed | CROSS, LESLIE A | KEITH JTWROS, RE'BEKKA-RAYE | | | $350,000.00 | 55402 | 4554876 |
| 2 | 01/01/1900 | OTHER | Other - Misc. Documents | Unknown | CROSS, LESLIE A | | | $0.00 | 0 | 0 |
Payout Agreement
| No payout information available.. |