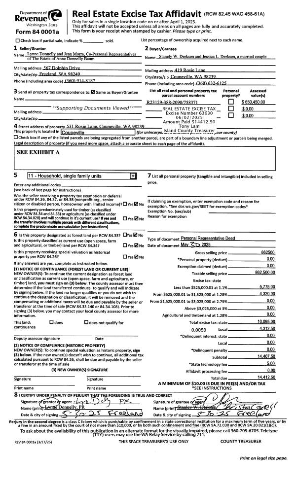
Property
Account |
| Property ID: | 289119 | Abbreviated Legal Description: | KOETJE 3RD LOT 8 BLK 3 |
| Geographic ID: | S7285-30-03008-0 | Agent Code: | |
| Type: | Real | | |
| Tax Area: | 100 - APPRAISER-OH Schl Dist, in OH | Land Use Code | 11 |
| Open Space: | N | DFL | N |
| Historic Property: | N | Remodel Property: | N |
| Multi-Family Redevelopment: | N | | |
| Township: | | Section: | |
| Range: | |
Location |
| Address: | 1521 NE 10TH AVE OAK HARBOR, WA 98277 | Mapsco: | |
| Neighborhood: | Cycle 1 | Map ID: | 259 |
| Neighborhood CD: | 1 |
Owner |
| Name: | MAZERES, LINDA BETH | Owner ID: | 313924 |
| Mailing Address: | 1521 NE 10TH AVE OAK HARBOR, WA 98277 | % Ownership: | 100.0000000000% |
| | | Exemptions: | |
Taxes and Assessment Details
Values
| (+) Improvement Homesite Value: | + | $0 | |
| (+) Improvement Non-Homesite Value: | + | $310,840 | |
| (+) Land Homesite Value: | + | $0 | |
| (+) Land Non-Homesite Value: | + | $180,000 | |
| (+) Curr Use (HS): | + | $0 | $0 |
| (+) Curr Use (NHS): | + | $0 | $0 |
| | | -------------------------- | |
| (=) Market Value: | = | $490,840 | |
| (–) Productivity Loss: | – | $0 | |
| | | -------------------------- | |
| (=) Subtotal: | = | $490,840 | |
| (+) Senior Appraised Value: | + | $0 | |
| (+) Non-Senior Appraised Value: | + | $490,840 | |
| | | -------------------------- | |
| (=) Total Appraised Value: | = | $490,840 | |
| (–) Senior Exemption Loss: | – | $0 | |
| (–) Exemption Loss: | – | $0 | |
| | | -------------------------- | |
| (=) Taxable Value: | = | $490,840 | |
Taxing Jurisdiction
| Owner: | MAZERES, LINDA BETH | | |
| % Ownership: | 100.0000000000% | | |
| Total Value: | $490,840 | | |
| Tax Area: | 100 - APPRAISER-OH Schl Dist, in OH |
| CF | Conservation Futures | 0.0316035091 | $490,840 | $490,840 | $15.51 | | |
| CEM1 | Cemetery #1 | 0.0040320932 | $490,840 | $490,840 | $1.98 | | |
| COH | City of Oak Harbor | 2.3001546061 | $490,840 | $490,840 | $1,129.01 | | |
| OAKBOND | City of Oak Harbor BOND | 0.1926904192 | $490,840 | $490,840 | $94.58 | | |
| HOBOND | Hospital BOND | 0.1910887512 | $490,840 | $490,840 | $93.79 | | |
| HOGEN | Hospital GEN | 0.3902502903 | $490,840 | $490,840 | $191.55 | | |
| CE | County Current Expense | 0.3708482477 | $490,840 | $490,840 | $182.03 | | |
| ISLANDEMS | Hospital GEN (EMS) | 0.5000000000 | $490,840 | $490,840 | $245.42 | | |
| LIB | Library Sno-Isle GEN | 0.3153421757 | $490,840 | $490,840 | $154.78 | | |
| NWHIDPRMT | P & R N Whidbey GEN | 0.2004466701 | $490,840 | $490,840 | $98.39 | | |
| SCH201MO | School 201 Enrichment | 1.8559231640 | $490,840 | $490,840 | $910.96 | | |
| ST | State School | 1.3035497053 | $490,840 | $490,840 | $639.83 | | |
| ST2 | State School Part 2 | 0.8169543533 | $490,840 | $490,840 | $400.99 | | |
| | Total Tax Rate: | 8.4728839852 | | | | | |
| | | | | Taxes w/Current Exemptions: | $4,158.82 | | |
| | | | | Taxes w/o Exemptions: | $4,158.82 | | |
Improvement / Building
| Improvement #1: | RESIDENTIAL | State Code: | Y | 2086.0 sqft | Value: | $310,840 |
| Bathrooms: | 2 | Bedrooms: | 4 | | Ceiling: | DRYWALL PAINTED | Exterior Wall/Cover: | WOOD SIDING | | Floor Covering: | HARDWOOD/CARP 20-80 | Floor Structure: | WOOD W/SUBFLOOR | | Foundation: | CONCRETE BLOCKS | Heating: | FHA GAS | | Interior Finish: | DRYWALL PAINT | Plumbing Fixture Cnt: | 10 | | Roof Slope: | 5" IN 12" | Roof Structure/Cover: | CJ ASPHALT |
|
| | Type | Description | Class CD | Sub Class CD | Year Built | Area |
| | BAS | BASE/MAIN FLOOR | 3 | 0 | 1952 | 2086.0 |
| | OP1 | OPEN PORCH SLAB | 3 | 0 | 1952 | 315.0 |
| | OWC | OPEN WOOD PORCH W/STEPS/ROOF/C | 3 | 0 | 1952 | 60.0 |
| | AGR | ATTACHED GARAGE | 3 | 0 | 1952 | 600.0 |
| | OWP | OPEN WOOD PORCH W/STEPS | 3 | 0 | 1952 | 115.0 |
| | OP4 | OPEN PORCH W/CEILING-ROOF | 3 | 0 | 1952 | 16.0 |
Sketch
Property Image
Land
| 1 | 14 | SQ (08001-12000) | 0.0000 | 0.00 | 0.00 | 0.00 | 1.00 | $180,000 | $0 |
Roll Value History
| 2026 | N/A | N/A | N/A | N/A | N/A |
| 2025 | $310,840 | $180,000 | $0 | $490,840 | $490,840 |
| 2024 | $294,950 | $170,000 | $0 | $464,950 | $464,950 |
| 2023 | $291,057 | $170,000 | $0 | $461,057 | $461,057 |
| 2022 | $267,055 | $160,000 | $0 | $427,055 | $427,055 |
| 2021 | $235,266 | $125,000 | $0 | $360,266 | $360,266 |
| 2020 | $229,920 | $100,000 | $0 | $329,920 | $329,920 |
| 2019 | $177,011 | $140,000 | $0 | $317,011 | $317,011 |
| 2018 | $177,568 | $125,000 | $0 | $302,568 | $302,568 |
| 2017 | $126,093 | $110,000 | $0 | $236,093 | $236,093 |
| 2016 | $128,304 | $90,000 | $0 | $218,304 | $218,304 |
| 2015 | $130,517 | $70,000 | $0 | $200,517 | $200,517 |
| 2014 | $132,728 | $55,000 | $0 | $187,728 | $187,728 |
| 2013 | $134,940 | $55,000 | $0 | $189,940 | $189,940 |
| 2012 | $137,152 | $60,000 | $0 | $197,152 | $197,152 |
| 2011 | $108,731 | $50,000 | $0 | $158,731 | $158,731 |
| 2010 | $116,049 | $50,000 | $0 | $166,049 | $166,049 |
| 2009 | $122,102 | $118,000 | $0 | $240,102 | $240,102 |
| 2008 | $124,717 | $120,000 | $0 | $244,717 | $244,717 |
| 2007 | $127,276 | $108,750 | $0 | $236,026 | $236,026 |
Deed and Sales History
| 1 | 09/17/2024 | WD | Warranty Deed | FEWING, ADRIAN W | MAZERES, LINDA BETH | | | $485,000.00 | 61305 | 4577248 |
| 2 | 11/17/2023 | WD | Warranty Deed | BUDLER, ROBERT W & GRACE G | FEWING, ADRIAN W | | | $442,567.00 | 58577 | 4566925 |
Payout Agreement
| No payout information available.. |