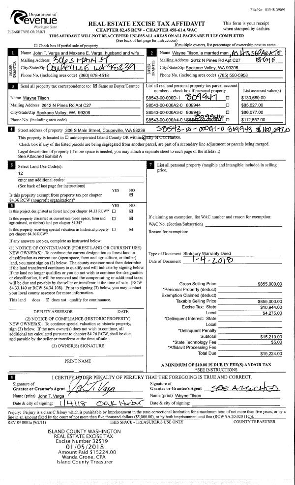
Property
Account |
| Property ID: | 289422 | Abbreviated Legal Description: | KOETJE 3RD LOT 7 BLK 5 |
| Geographic ID: | S7285-30-05007-0 | Agent Code: | |
| Type: | Real | | |
| Tax Area: | 100 - APPRAISER-OH Schl Dist, in OH | Land Use Code | 11 |
| Open Space: | N | DFL | N |
| Historic Property: | N | Remodel Property: | N |
| Multi-Family Redevelopment: | N | | |
| Township: | | Section: | |
| Range: | |
Location |
| Address: | 1551 NE 8TH AVE OAK HARBOR, WA 98277 | Mapsco: | |
| Neighborhood: | Cycle 1 | Map ID: | 259 |
| Neighborhood CD: | 1 |
Owner |
| Name: | GUNTER, CHRISTOPHER L | Owner ID: | 272437 |
| Mailing Address: | WENDY M GUNTER 1551 NE 8TH AVE OAK HARBOR, WA 98277 | % Ownership: | 100.0000000000% |
| | | Exemptions: | |
Taxes and Assessment Details
Values
| (+) Improvement Homesite Value: | + | $0 | |
| (+) Improvement Non-Homesite Value: | + | $239,270 | |
| (+) Land Homesite Value: | + | $0 | |
| (+) Land Non-Homesite Value: | + | $180,000 | |
| (+) Curr Use (HS): | + | $0 | $0 |
| (+) Curr Use (NHS): | + | $0 | $0 |
| | | -------------------------- | |
| (=) Market Value: | = | $419,270 | |
| (–) Productivity Loss: | – | $0 | |
| | | -------------------------- | |
| (=) Subtotal: | = | $419,270 | |
| (+) Senior Appraised Value: | + | $0 | |
| (+) Non-Senior Appraised Value: | + | $419,270 | |
| | | -------------------------- | |
| (=) Total Appraised Value: | = | $419,270 | |
| (–) Senior Exemption Loss: | – | $0 | |
| (–) Exemption Loss: | – | $0 | |
| | | -------------------------- | |
| (=) Taxable Value: | = | $419,270 | |
Taxing Jurisdiction
| Owner: | GUNTER, CHRISTOPHER L | | |
| % Ownership: | 100.0000000000% | | |
| Total Value: | $419,270 | | |
| Tax Area: | 100 - APPRAISER-OH Schl Dist, in OH |
| CF | Conservation Futures | 0.0316035091 | $419,270 | $419,270 | $13.25 | | |
| CEM1 | Cemetery #1 | 0.0040320932 | $419,270 | $419,270 | $1.69 | | |
| COH | City of Oak Harbor | 2.3001546061 | $419,270 | $419,270 | $964.39 | | |
| OAKBOND | City of Oak Harbor BOND | 0.1926904192 | $419,270 | $419,270 | $80.79 | | |
| HOBOND | Hospital BOND | 0.1910887512 | $419,270 | $419,270 | $80.12 | | |
| HOGEN | Hospital GEN | 0.3902502903 | $419,270 | $419,270 | $163.62 | | |
| CE | County Current Expense | 0.3708482477 | $419,270 | $419,270 | $155.49 | | |
| ISLANDEMS | Hospital GEN (EMS) | 0.5000000000 | $419,270 | $419,270 | $209.64 | | |
| LIB | Library Sno-Isle GEN | 0.3153421757 | $419,270 | $419,270 | $132.21 | | |
| NWHIDPRMT | P & R N Whidbey GEN | 0.2004466701 | $419,270 | $419,270 | $84.04 | | |
| SCH201MO | School 201 Enrichment | 1.8559231640 | $419,270 | $419,270 | $778.13 | | |
| ST | State School | 1.3035497053 | $419,270 | $419,270 | $546.54 | | |
| ST2 | State School Part 2 | 0.8169543533 | $419,270 | $419,270 | $342.52 | | |
| | Total Tax Rate: | 8.4728839852 | | | | | |
| | | | | Taxes w/Current Exemptions: | $3,552.43 | | |
| | | | | Taxes w/o Exemptions: | $3,552.43 | | |
Improvement / Building
| Improvement #1: | RESIDENTIAL | State Code: | Y | 1568.0 sqft | Value: | $239,270 |
| Bathrooms: | 1.5 | Bedrooms: | 4 | | Ceiling: | DRYWALL PAINTED | Exterior Wall/Cover: | WOOD SIDING | | Floor Covering: | VINYL/HARDWOOD 20-80 | Floor Structure: | WOOD W/SUBFLOOR | | Foundation: | CONCRETE BLOCKS | Heating: | B/B HOT WATER-GAS | | Interior Finish: | DRYWALL PAINT | Plumbing Fixture Cnt: | 8 | | Roof Slope: | 5" IN 12" | Roof Structure/Cover: | CJ ASPHALT |
|
| | Type | Description | Class CD | Sub Class CD | Year Built | Area |
| | BAS | BASE/MAIN FLOOR | 3 | 0 | 1959 | 1568.0 |
| | OP1 | OPEN PORCH SLAB | 3 | 0 | 1959 | 276.0 |
| | OP4 | OPEN PORCH W/CEILING-ROOF | 3 | 0 | 1959 | 72.0 |
| | UTY | STORAGE/UTILITY | 3 | 0 | 1959 | 160.0 |
Sketch
Property Image
Land
| 1 | 14 | SQ (08001-12000) | 0.0000 | 0.00 | 0.00 | 0.00 | 1.00 | $180,000 | $0 |
Roll Value History
| 2026 | N/A | N/A | N/A | N/A | N/A |
| 2025 | $239,270 | $180,000 | $0 | $419,270 | $419,270 |
| 2024 | $242,538 | $170,000 | $0 | $412,538 | $412,538 |
| 2023 | $236,004 | $170,000 | $0 | $406,004 | $406,004 |
| 2022 | $216,671 | $160,000 | $0 | $376,671 | $376,671 |
| 2021 | $190,983 | $125,000 | $0 | $315,983 | $315,983 |
| 2020 | $186,646 | $100,000 | $0 | $286,646 | $286,646 |
| 2019 | $137,471 | $140,000 | $0 | $277,471 | $277,471 |
| 2018 | $137,922 | $125,000 | $0 | $262,922 | $262,922 |
| 2017 | $138,823 | $110,000 | $0 | $248,823 | $248,823 |
| 2016 | $140,626 | $90,000 | $0 | $230,626 | $230,626 |
| 2015 | $105,385 | $70,000 | $0 | $175,385 | $175,385 |
| 2014 | $107,172 | $55,000 | $0 | $162,172 | $162,172 |
| 2013 | $108,958 | $55,000 | $0 | $163,958 | $163,958 |
| 2012 | $110,744 | $60,000 | $0 | $170,744 | $170,744 |
| 2011 | $100,360 | $50,000 | $0 | $150,360 | $150,360 |
| 2010 | $112,603 | $50,000 | $0 | $162,603 | $162,603 |
| 2009 | $117,843 | $118,000 | $0 | $235,843 | $235,843 |
| 2008 | $119,738 | $120,000 | $0 | $239,738 | $239,738 |
| 2007 | $121,665 | $108,750 | $0 | $230,415 | $230,415 |
Deed and Sales History
| 1 | 10/12/2015 | WD | Warranty Deed | MAHONEY, ANDREW P | GUNTER, CHRISTOPHER L | | | $222,999.00 | 21732 | 4387712 |
| 2 | 06/14/2007 | WD | Warranty Deed | BENNETT, BRANDY D | MAHONEY, ANDREW P | | | $237,100.00 | 72012 | 4204888 |
| 3 | 08/29/2005 | WD | Warranty Deed | LEDFORD, OSCAR J | BENNETT, BRANDY D | | | $209,900.00 | 54377 | 4146304 |
| 4 | 08/01/1988 | WD | Warranty Deed | VOTRY, FRANCIS A | LEDFORD, OSCAR J | | | $65,000.00 | 82775 | 88010452 |
| 5 | 09/01/1987 | QCD | Quit Claim Deed | CASH, MELVIN C | VOTRY, FRANCIS A | | | $0.00 | 73228 | 87014157 |
| 6 | 04/01/1986 | WD | Warranty Deed | VOTRY, FRANCIS A | CASH, MELVIN C | | | $57,000.00 | 60772 | 86003632 |
| 7 | 01/01/1900 | OTHER | Other - Misc. Documents | Unknown | VOTRY, FRANCIS A | | | $0.00 | 0 | 0 |
Payout Agreement
| No payout information available.. |