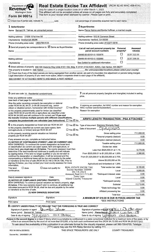
Property
Account |
| Property ID: | 289592 | Abbreviated Legal Description: | KOETJE 3RD LOT 1 BLK 8 |
| Geographic ID: | S7285-30-08001-0 | Agent Code: | |
| Type: | Real | | |
| Tax Area: | 100 - APPRAISER-OH Schl Dist, in OH | Land Use Code | 11 |
| Open Space: | N | DFL | N |
| Historic Property: | N | Remodel Property: | N |
| Multi-Family Redevelopment: | N | | |
| Township: | | Section: | |
| Range: | |
Location |
| Address: | 1781 NE 10TH AVE OAK HARBOR, WA 98277 | Mapsco: | |
| Neighborhood: | Cycle 1 | Map ID: | 262 |
| Neighborhood CD: | 1 |
Owner |
| Name: | TALKINGTON, STEPHANIE | Owner ID: | 307619 |
| Mailing Address: | 1781 NE 10TH AVE OAK HARBOR, WA 98277 | % Ownership: | 100.0000000000% |
| | | Exemptions: | |
Taxes and Assessment Details
Values
| (+) Improvement Homesite Value: | + | $0 | |
| (+) Improvement Non-Homesite Value: | + | $302,412 | |
| (+) Land Homesite Value: | + | $0 | |
| (+) Land Non-Homesite Value: | + | $180,000 | |
| (+) Curr Use (HS): | + | $0 | $0 |
| (+) Curr Use (NHS): | + | $0 | $0 |
| | | -------------------------- | |
| (=) Market Value: | = | $482,412 | |
| (–) Productivity Loss: | – | $0 | |
| | | -------------------------- | |
| (=) Subtotal: | = | $482,412 | |
| (+) Senior Appraised Value: | + | $0 | |
| (+) Non-Senior Appraised Value: | + | $482,412 | |
| | | -------------------------- | |
| (=) Total Appraised Value: | = | $482,412 | |
| (–) Senior Exemption Loss: | – | $0 | |
| (–) Exemption Loss: | – | $0 | |
| | | -------------------------- | |
| (=) Taxable Value: | = | $482,412 | |
Taxing Jurisdiction
| Owner: | TALKINGTON, STEPHANIE | | |
| % Ownership: | 100.0000000000% | | |
| Total Value: | $482,412 | | |
| Tax Area: | 100 - APPRAISER-OH Schl Dist, in OH |
| CF | Conservation Futures | 0.0316035091 | $482,412 | $482,412 | $15.25 | | |
| CEM1 | Cemetery #1 | 0.0040320932 | $482,412 | $482,412 | $1.95 | | |
| COH | City of Oak Harbor | 2.3001546061 | $482,412 | $482,412 | $1,109.62 | | |
| OAKBOND | City of Oak Harbor BOND | 0.1926904192 | $482,412 | $482,412 | $92.96 | | |
| HOBOND | Hospital BOND | 0.1910887512 | $482,412 | $482,412 | $92.18 | | |
| HOGEN | Hospital GEN | 0.3902502903 | $482,412 | $482,412 | $188.26 | | |
| CE | County Current Expense | 0.3708482477 | $482,412 | $482,412 | $178.90 | | |
| ISLANDEMS | Hospital GEN (EMS) | 0.5000000000 | $482,412 | $482,412 | $241.21 | | |
| LIB | Library Sno-Isle GEN | 0.3153421757 | $482,412 | $482,412 | $152.12 | | |
| NWHIDPRMT | P & R N Whidbey GEN | 0.2004466701 | $482,412 | $482,412 | $96.70 | | |
| SCH201MO | School 201 Enrichment | 1.8559231640 | $482,412 | $482,412 | $895.32 | | |
| ST | State School | 1.3035497053 | $482,412 | $482,412 | $628.85 | | |
| ST2 | State School Part 2 | 0.8169543533 | $482,412 | $482,412 | $394.11 | | |
| | Total Tax Rate: | 8.4728839852 | | | | | |
| | | | | Taxes w/Current Exemptions: | $4,087.43 | | |
| | | | | Taxes w/o Exemptions: | $4,087.43 | | |
Improvement / Building
| Improvement #1: | RESIDENTIAL | State Code: | Y | 1420.0 sqft | Value: | $302,412 |
| Bathrooms: | 2 | Bedrooms: | 3 | | Ceiling: | DRYWALL PAINTED | Exterior Wall/Cover: | COMMON BRICK VENEER | | Floor Covering: | CERAMIC TILE/HWD 40/60 | Floor Structure: | WOOD W/SUBFLOOR | | Foundation: | CONCRETE | Heating: | FHA GAS | | Interior Finish: | DRYWALL PAINT | Plumbing Fixture Cnt: | 10 | | Roof Slope: | 4" IN 12" | Roof Structure/Cover: | CJ ASPHALT |
|
| | Type | Description | Class CD | Sub Class CD | Year Built | Area |
| | BAS | BASE/MAIN FLOOR | 3 | 0 | 1959 | 1420.0 |
| | AGR | ATTACHED GARAGE | 3 | 0 | 1959 | 480.0 |
| | OP1 | OPEN PORCH SLAB | 3 | 0 | 1959 | 338.0 |
Sketch
Property Image
Land
| 1 | 14 | SQ (08001-12000) | 0.0000 | 0.00 | 0.00 | 0.00 | 1.00 | $180,000 | $0 |
Roll Value History
| 2026 | N/A | N/A | N/A | N/A | N/A |
| 2025 | $302,412 | $180,000 | $0 | $482,412 | $482,412 |
| 2024 | $306,181 | $170,000 | $0 | $476,181 | $476,181 |
| 2023 | $309,948 | $170,000 | $0 | $479,948 | $479,948 |
| 2022 | $258,946 | $160,000 | $0 | $418,946 | $418,946 |
| 2021 | $227,872 | $125,000 | $0 | $352,872 | $352,872 |
| 2020 | $222,253 | $100,000 | $0 | $322,253 | $322,253 |
| 2019 | $166,141 | $140,000 | $0 | $306,141 | $306,141 |
| 2018 | $166,622 | $125,000 | $0 | $291,622 | $291,622 |
| 2017 | $109,162 | $110,000 | $0 | $219,162 | $219,162 |
| 2016 | $111,076 | $90,000 | $0 | $201,076 | $201,076 |
| 2015 | $112,992 | $70,000 | $0 | $182,992 | $182,992 |
| 2014 | $114,908 | $55,000 | $0 | $169,908 | $169,908 |
| 2013 | $116,823 | $55,000 | $0 | $171,823 | $171,823 |
| 2012 | $123,281 | $60,000 | $0 | $183,281 | $183,281 |
| 2011 | $114,307 | $50,000 | $0 | $164,307 | $164,307 |
| 2010 | $130,149 | $50,000 | $0 | $180,149 | $180,149 |
| 2009 | $136,478 | $118,000 | $0 | $254,478 | $60,200 |
| 2008 | $138,865 | $120,000 | $0 | $258,865 | $60,200 |
| 2007 | $141,252 | $108,750 | $0 | $250,002 | $60,200 |
Deed and Sales History
| 1 | 02/13/2023 | WD | Warranty Deed | TANNAHILL, SHAUN | TALKINGTON, STEPHANIE | | | $460,000.00 | 55851 | 4556707 |
| 2 | 10/03/2017 | WD | Warranty Deed | PINNELL, ROBERT B | TANNAHILL, SHAUN | | | $289,500.00 | 31415 | 4431554 |
| 3 | 12/12/2012 | ESTSEPPROP | Establish Separate Property | PINNELL, ROBERT B | PINNELL, ROBERT B | | | $0.00 | 9804 | 4329534 |
| 4 | 12/18/2012 | WD | Warranty Deed | GROTZKE, HOWARD F | PINNELL, ROBERT B | | | $141,100.00 | 9803 | 4329533 |
Payout Agreement
| No payout information available.. |