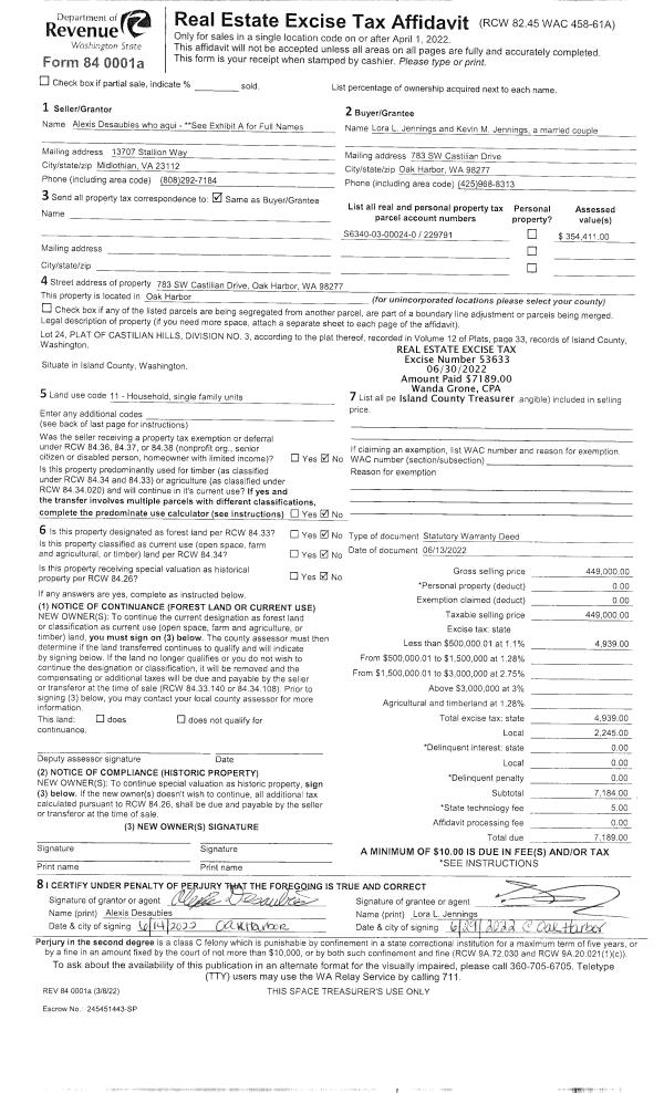
Property
Account |
| Property ID: | 289672 | Abbreviated Legal Description: | KOETJE 3RD LOT 3 BLK 9 |
| Geographic ID: | S7285-30-09003-0 | Agent Code: | |
| Type: | Real | | |
| Tax Area: | 100 - APPRAISER-OH Schl Dist, in OH | Land Use Code | 11 |
| Open Space: | N | DFL | N |
| Historic Property: | N | Remodel Property: | N |
| Multi-Family Redevelopment: | N | | |
| Township: | | Section: | |
| Range: | |
Location |
| Address: | 1841 NE 10TH AVE OAK HARBOR, WA 98277 | Mapsco: | |
| Neighborhood: | Cycle 1 | Map ID: | 262 |
| Neighborhood CD: | 1 |
Owner |
| Name: | UMAGUING, MICHELLE | Owner ID: | 302177 |
| Mailing Address: | EVELYN UMAGUING & CRESENCIO UMAGUING JR 1936 WAIMANO HM RD PEARL CITY, HI 96782 | % Ownership: | 100.0000000000% |
| | | Exemptions: | |
Taxes and Assessment Details
Values
| (+) Improvement Homesite Value: | + | $0 | |
| (+) Improvement Non-Homesite Value: | + | $338,204 | |
| (+) Land Homesite Value: | + | $0 | |
| (+) Land Non-Homesite Value: | + | $180,000 | |
| (+) Curr Use (HS): | + | $0 | $0 |
| (+) Curr Use (NHS): | + | $0 | $0 |
| | | -------------------------- | |
| (=) Market Value: | = | $518,204 | |
| (–) Productivity Loss: | – | $0 | |
| | | -------------------------- | |
| (=) Subtotal: | = | $518,204 | |
| (+) Senior Appraised Value: | + | $0 | |
| (+) Non-Senior Appraised Value: | + | $518,204 | |
| | | -------------------------- | |
| (=) Total Appraised Value: | = | $518,204 | |
| (–) Senior Exemption Loss: | – | $0 | |
| (–) Exemption Loss: | – | $0 | |
| | | -------------------------- | |
| (=) Taxable Value: | = | $518,204 | |
Taxing Jurisdiction
| Owner: | UMAGUING, MICHELLE | | |
| % Ownership: | 100.0000000000% | | |
| Total Value: | $518,204 | | |
| Tax Area: | 100 - APPRAISER-OH Schl Dist, in OH |
| CF | Conservation Futures | 0.0316035091 | $518,204 | $518,204 | $16.38 | | |
| CEM1 | Cemetery #1 | 0.0040320932 | $518,204 | $518,204 | $2.09 | | |
| COH | City of Oak Harbor | 2.3001546061 | $518,204 | $518,204 | $1,191.95 | | |
| OAKBOND | City of Oak Harbor BOND | 0.1926904192 | $518,204 | $518,204 | $99.85 | | |
| HOBOND | Hospital BOND | 0.1910887512 | $518,204 | $518,204 | $99.02 | | |
| HOGEN | Hospital GEN | 0.3902502903 | $518,204 | $518,204 | $202.23 | | |
| CE | County Current Expense | 0.3708482477 | $518,204 | $518,204 | $192.18 | | |
| ISLANDEMS | Hospital GEN (EMS) | 0.5000000000 | $518,204 | $518,204 | $259.10 | | |
| LIB | Library Sno-Isle GEN | 0.3153421757 | $518,204 | $518,204 | $163.41 | | |
| NWHIDPRMT | P & R N Whidbey GEN | 0.2004466701 | $518,204 | $518,204 | $103.87 | | |
| SCH201MO | School 201 Enrichment | 1.8559231640 | $518,204 | $518,204 | $961.75 | | |
| ST | State School | 1.3035497053 | $518,204 | $518,204 | $675.50 | | |
| ST2 | State School Part 2 | 0.8169543533 | $518,204 | $518,204 | $423.35 | | |
| | Total Tax Rate: | 8.4728839852 | | | | | |
| | | | | Taxes w/Current Exemptions: | $4,390.68 | | |
| | | | | Taxes w/o Exemptions: | $4,390.68 | | |
Improvement / Building
| Improvement #1: | RESIDENTIAL | State Code: | Y | 2397.5 sqft | Value: | $338,204 |
| Bathrooms: | 3 | Bedrooms: | 4 | | Ceiling: | DRYWALL PAINTED | Cooling: | HEAT PUMP/CONV/V | | Exterior Wall/Cover: | WOOD SIDING | Floor Covering: | CERAMIC TILE/HWD 40/60 | | Floor Structure: | WOOD W/SUBFLOOR | Foundation: | CONCRETE BLOCKS | | Interior Finish: | DRYWALL PAINT | Plumbing Fixture Cnt: | 12 | | Roof Slope: | 5" IN 12" | Roof Structure/Cover: | CJ ASPHALT |
|
| | Type | Description | Class CD | Sub Class CD | Year Built | Area |
| | BAS | BASE/MAIN FLOOR | 3 | 0 | 1958 | 2397.5 |
| | OP1 | OPEN PORCH SLAB | 3 | 0 | 1958 | 926.5 |
| | AGR | ATTACHED GARAGE | 3 | 0 | 1958 | 440.0 |
Sketch
Property Image
Land
| 1 | 14 | SQ (08001-12000) | 0.0000 | 0.00 | 0.00 | 0.00 | 1.00 | $180,000 | $0 |
Roll Value History
| 2026 | N/A | N/A | N/A | N/A | N/A |
| 2025 | $338,204 | $180,000 | $0 | $518,204 | $518,204 |
| 2024 | $342,950 | $170,000 | $0 | $512,950 | $512,950 |
| 2023 | $328,711 | $170,000 | $0 | $498,711 | $498,711 |
| 2022 | $301,958 | $160,000 | $0 | $461,958 | $461,958 |
| 2021 | $257,207 | $125,000 | $0 | $382,207 | $382,207 |
| 2020 | $251,506 | $100,000 | $0 | $351,506 | $351,506 |
| 2019 | $194,939 | $140,000 | $0 | $334,939 | $334,939 |
| 2018 | $195,603 | $125,000 | $0 | $320,603 | $320,603 |
| 2017 | $151,226 | $110,000 | $0 | $261,226 | $261,226 |
| 2016 | $153,880 | $90,000 | $0 | $243,880 | $243,880 |
| 2015 | $156,533 | $70,000 | $0 | $226,533 | $226,533 |
| 2014 | $159,186 | $55,000 | $0 | $214,186 | $214,186 |
| 2013 | $161,839 | $55,000 | $0 | $216,839 | $216,839 |
| 2012 | $164,492 | $60,000 | $0 | $224,492 | $224,492 |
| 2011 | $155,338 | $50,000 | $0 | $205,338 | $205,338 |
| 2010 | $162,902 | $50,000 | $0 | $212,902 | $212,902 |
| 2009 | $170,377 | $118,000 | $0 | $288,377 | $288,377 |
| 2008 | $173,076 | $120,000 | $0 | $293,076 | $293,076 |
| 2007 | $175,795 | $108,750 | $0 | $284,545 | $284,545 |
Deed and Sales History
| 1 | 11/02/2021 | WD | Warranty Deed | SHIPLEY, CARL N | UMAGUING, MICHELLE | | | $515,000.00 | 51130 | 4534886 |
| 2 | 08/21/2014 | WD | Warranty Deed | GIFFORD, ELTON C / KATHERINE | SHIPLEY, CARL N | | | $275,000.00 | 16623 | 4364764 |
| 3 | 09/01/1995 | WD | Warranty Deed | CHAPMAN, JOHN D | GIFFORD, ELTON C | | | $155,000.00 | 53170 | 95014559 |
| 4 | 08/01/1988 | QCD | Quit Claim Deed | CHAPMAN, JOHN D | CHAPMAN, JOHN D | | | $0.00 | 82766 | 88010416 |
| 5 | 01/01/1987 | DECREE | Divorce Decree/Legal Separation | CHAPMAN, J D | CHAPMAN, JOHN D | | | $0.00 | 70233 | 87001558 |
| 6 | 08/01/1979 | REC | Real Estate Contract | ST, STEPHENS E | CHAPMAN, J D | | | $56,500.00 | 94262 | 357897 |
| 7 | 01/01/1900 | OTHER | Other - Misc. Documents | Unknown | ST, STEPHENS E | | | $0.00 | 0 | 0 |
Payout Agreement
| No payout information available.. |