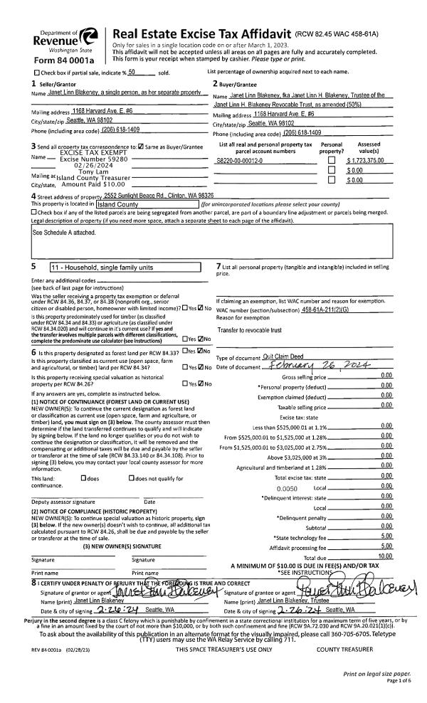
Property
Account |
| Property ID: | 289967 | Abbreviated Legal Description: | KOETJE EV ADD LOT 2 |
| Geographic ID: | S7295-00-00002-0 | Agent Code: | |
| Type: | Real | | |
| Tax Area: | 100 - APPRAISER-OH Schl Dist, in OH | Land Use Code | 11 |
| Open Space: | N | DFL | N |
| Historic Property: | N | Remodel Property: | N |
| Multi-Family Redevelopment: | N | | |
| Township: | | Section: | |
| Range: | |
Location |
| Address: | 1838 NE 6TH AVE OAK HARBOR, WA 98277 | Mapsco: | |
| Neighborhood: | Cycle 1 | Map ID: | 260 |
| Neighborhood CD: | 1 |
Owner |
| Name: | MEYER, CHRISTOPHER | Owner ID: | 295459 |
| Mailing Address: | 1838 NE 6TH AVE OAK HARBOR, WA 98277 | % Ownership: | 100.0000000000% |
| | | Exemptions: | |
Taxes and Assessment Details
Values
| (+) Improvement Homesite Value: | + | $0 | |
| (+) Improvement Non-Homesite Value: | + | $279,323 | |
| (+) Land Homesite Value: | + | $0 | |
| (+) Land Non-Homesite Value: | + | $180,000 | |
| (+) Curr Use (HS): | + | $0 | $0 |
| (+) Curr Use (NHS): | + | $0 | $0 |
| | | -------------------------- | |
| (=) Market Value: | = | $459,323 | |
| (–) Productivity Loss: | – | $0 | |
| | | -------------------------- | |
| (=) Subtotal: | = | $459,323 | |
| (+) Senior Appraised Value: | + | $0 | |
| (+) Non-Senior Appraised Value: | + | $459,323 | |
| | | -------------------------- | |
| (=) Total Appraised Value: | = | $459,323 | |
| (–) Senior Exemption Loss: | – | $0 | |
| (–) Exemption Loss: | – | $0 | |
| | | -------------------------- | |
| (=) Taxable Value: | = | $459,323 | |
Taxing Jurisdiction
| Owner: | MEYER, CHRISTOPHER | | |
| % Ownership: | 100.0000000000% | | |
| Total Value: | $459,323 | | |
| Tax Area: | 100 - APPRAISER-OH Schl Dist, in OH |
| CF | Conservation Futures | 0.0316035091 | $459,323 | $459,323 | $14.52 | | |
| CEM1 | Cemetery #1 | 0.0040320932 | $459,323 | $459,323 | $1.85 | | |
| COH | City of Oak Harbor | 2.3001546061 | $459,323 | $459,323 | $1,056.51 | | |
| OAKBOND | City of Oak Harbor BOND | 0.1926904192 | $459,323 | $459,323 | $88.51 | | |
| HOBOND | Hospital BOND | 0.1910887512 | $459,323 | $459,323 | $87.77 | | |
| HOGEN | Hospital GEN | 0.3902502903 | $459,323 | $459,323 | $179.25 | | |
| CE | County Current Expense | 0.3708482477 | $459,323 | $459,323 | $170.34 | | |
| ISLANDEMS | Hospital GEN (EMS) | 0.5000000000 | $459,323 | $459,323 | $229.66 | | |
| LIB | Library Sno-Isle GEN | 0.3153421757 | $459,323 | $459,323 | $144.84 | | |
| NWHIDPRMT | P & R N Whidbey GEN | 0.2004466701 | $459,323 | $459,323 | $92.07 | | |
| SCH201MO | School 201 Enrichment | 1.8559231640 | $459,323 | $459,323 | $852.47 | | |
| ST | State School | 1.3035497053 | $459,323 | $459,323 | $598.75 | | |
| ST2 | State School Part 2 | 0.8169543533 | $459,323 | $459,323 | $375.25 | | |
| | Total Tax Rate: | 8.4728839852 | | | | | |
| | | | | Taxes w/Current Exemptions: | $3,891.79 | | |
| | | | | Taxes w/o Exemptions: | $3,891.79 | | |
Improvement / Building
| Improvement #1: | RESIDENTIAL | State Code: | Y | 1946.6 sqft | Value: | $279,323 |
| Bathrooms: | 2 | Bedrooms: | 3 | | Ceiling: | DRYWALL PAINTED | Exterior Wall/Cover: | WOOD SIDING | | Floor Covering: | CARPET 100% | Floor Structure: | WOOD W/SUBFLOOR | | Foundation: | CONCRETE | Heating: | FHA GAS | | Interior Finish: | DRYWALL PAINT | Plumbing Fixture Cnt: | 10 | | Roof Slope: | 5" IN 12" | Roof Structure/Cover: | CJ ASPHALT |
|
| | Type | Description | Class CD | Sub Class CD | Year Built | Area |
| | BAS | BASE/MAIN FLOOR | 3 | 0 | 1956 | 1946.6 |
| | AGR | ATTACHED GARAGE | 3 | 0 | 1956 | 408.0 |
| | OWP | OPEN WOOD PORCH W/STEPS | 3 | 0 | 1956 | 120.0 |
| | OP4 | OPEN PORCH W/CEILING-ROOF | 3 | 0 | 1956 | 24.0 |
| | OCP | OPEN CARPORT | 3 | 0 | 1956 | 192.0 |
Sketch
Property Image
Land
| 1 | 14 | SQ (08001-12000) | 0.0000 | 0.00 | 0.00 | 0.00 | 1.00 | $180,000 | $0 |
Roll Value History
| 2026 | N/A | N/A | N/A | N/A | N/A |
| 2025 | $279,323 | $180,000 | $0 | $459,323 | $459,323 |
| 2024 | $283,034 | $170,000 | $0 | $453,034 | $453,034 |
| 2023 | $289,287 | $170,000 | $0 | $459,287 | $459,287 |
| 2022 | $265,431 | $160,000 | $0 | $425,431 | $425,431 |
| 2021 | $233,839 | $125,000 | $0 | $358,839 | $358,839 |
| 2020 | $192,292 | $100,000 | $0 | $292,292 | $292,292 |
| 2019 | $146,861 | $140,000 | $0 | $286,861 | $286,861 |
| 2018 | $147,392 | $125,000 | $0 | $272,392 | $272,392 |
| 2017 | $124,028 | $110,000 | $0 | $234,028 | $234,028 |
| 2016 | $126,204 | $90,000 | $0 | $216,204 | $216,204 |
| 2015 | $128,380 | $70,000 | $0 | $198,380 | $198,380 |
| 2014 | $130,555 | $55,000 | $0 | $185,555 | $185,555 |
| 2013 | $132,731 | $55,000 | $0 | $187,731 | $187,731 |
| 2012 | $134,908 | $70,000 | $0 | $204,908 | $204,908 |
| 2011 | $136,477 | $80,000 | $0 | $216,477 | $216,477 |
| 2010 | $149,516 | $80,000 | $0 | $229,516 | $229,516 |
| 2009 | $156,270 | $97,000 | $0 | $253,270 | $253,270 |
| 2008 | $158,606 | $97,000 | $0 | $255,606 | $255,606 |
| 2007 | $160,942 | $97,000 | $0 | $257,942 | $257,942 |
Deed and Sales History
| 1 | 08/04/2020 | WD | Warranty Deed | WALLIN, MARTHA A | MEYER, CHRISTOPHER | | | $369,900.00 | 44076 | 4492924 |
| 2 | 01/28/2019 | PRD | Personal Representatives Deed | WALLIN, GARY L | WALLIN, MARTHA A | | | | 37425 | 4458493 |
Payout Agreement
| No payout information available.. |