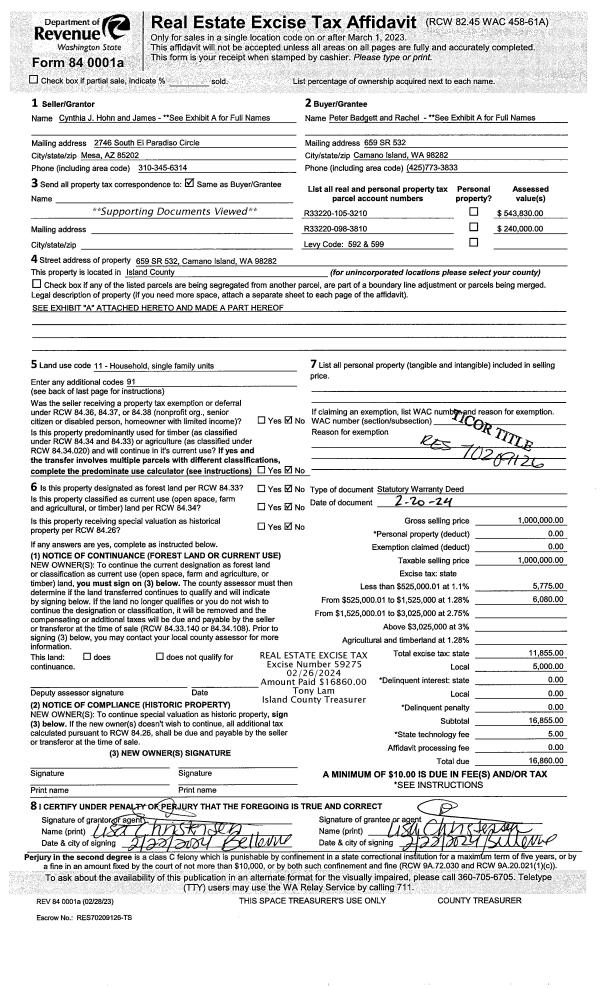
Property
Account |
| Property ID: | 290072 | Abbreviated Legal Description: | KOETJE EVERGREEN ADD LOT 13 |
| Geographic ID: | S7295-00-00013-0 | Agent Code: | |
| Type: | Real | | |
| Tax Area: | 100 - APPRAISER-OH Schl Dist, in OH | Land Use Code | 11 |
| Open Space: | N | DFL | N |
| Historic Property: | N | Remodel Property: | N |
| Multi-Family Redevelopment: | N | | |
| Township: | | Section: | |
| Range: | |
Location |
| Address: | 480 NE RONHAAR ST OAK HARBOR, WA 98277 | Mapsco: | |
| Neighborhood: | Cycle 1 | Map ID: | 260 |
| Neighborhood CD: | 1 |
Owner |
| Name: | HARRISON, ALEXANDER | Owner ID: | 310326 |
| Mailing Address: | AMANDA SEXTON 480 NE RONHAAR ST OAK HARBOR, WA 98277 | % Ownership: | 100.0000000000% |
| | | Exemptions: | |
Taxes and Assessment Details
Values
| (+) Improvement Homesite Value: | + | $266,162 | |
| (+) Improvement Non-Homesite Value: | + | $0 | |
| (+) Land Homesite Value: | + | $0 | |
| (+) Land Non-Homesite Value: | + | $180,000 | |
| (+) Curr Use (HS): | + | $0 | $0 |
| (+) Curr Use (NHS): | + | $0 | $0 |
| | | -------------------------- | |
| (=) Market Value: | = | $446,162 | |
| (–) Productivity Loss: | – | $0 | |
| | | -------------------------- | |
| (=) Subtotal: | = | $446,162 | |
| (+) Senior Appraised Value: | + | $0 | |
| (+) Non-Senior Appraised Value: | + | $446,162 | |
| | | -------------------------- | |
| (=) Total Appraised Value: | = | $446,162 | |
| (–) Senior Exemption Loss: | – | $0 | |
| (–) Exemption Loss: | – | $0 | |
| | | -------------------------- | |
| (=) Taxable Value: | = | $446,162 | |
Taxing Jurisdiction
| Owner: | HARRISON, ALEXANDER | | |
| % Ownership: | 100.0000000000% | | |
| Total Value: | $446,162 | | |
| Tax Area: | 100 - APPRAISER-OH Schl Dist, in OH |
| CF | Conservation Futures | 0.0316035091 | $446,162 | $446,162 | $14.10 | | |
| CEM1 | Cemetery #1 | 0.0040320932 | $446,162 | $446,162 | $1.80 | | |
| COH | City of Oak Harbor | 2.3001546061 | $446,162 | $446,162 | $1,026.24 | | |
| OAKBOND | City of Oak Harbor BOND | 0.1926904192 | $446,162 | $446,162 | $85.97 | | |
| HOBOND | Hospital BOND | 0.1910887512 | $446,162 | $446,162 | $85.26 | | |
| HOGEN | Hospital GEN | 0.3902502903 | $446,162 | $446,162 | $174.11 | | |
| CE | County Current Expense | 0.3708482477 | $446,162 | $446,162 | $165.46 | | |
| ISLANDEMS | Hospital GEN (EMS) | 0.5000000000 | $446,162 | $446,162 | $223.08 | | |
| LIB | Library Sno-Isle GEN | 0.3153421757 | $446,162 | $446,162 | $140.69 | | |
| NWHIDPRMT | P & R N Whidbey GEN | 0.2004466701 | $446,162 | $446,162 | $89.43 | | |
| SCH201MO | School 201 Enrichment | 1.8559231640 | $446,162 | $446,162 | $828.04 | | |
| ST | State School | 1.3035497053 | $446,162 | $446,162 | $581.59 | | |
| ST2 | State School Part 2 | 0.8169543533 | $446,162 | $446,162 | $364.49 | | |
| | Total Tax Rate: | 8.4728839852 | | | | | |
| | | | | Taxes w/Current Exemptions: | $3,780.26 | | |
| | | | | Taxes w/o Exemptions: | $3,780.26 | | |
Improvement / Building
| Improvement #1: | RESIDENTIAL | State Code: | Y | 1430.0 sqft | Value: | $266,162 |
| Bathrooms: | 2 | Bedrooms: | 3 | | Ceiling: | DRYWALL PAINTED | Exterior Wall/Cover: | CEMENT FIBER | | Floor Covering: | HARDWOOD/CARP 80-20 | Floor Structure: | WOOD W/SUBFLOOR | | Foundation: | CONCRETE | Heating: | FHA GAS | | Interior Finish: | DRYWALL PAINT | Plumbing Fixture Cnt: | 10 | | Roof Slope: | 4" IN 12" | Roof Structure/Cover: | CJ ASPHALT |
|
| | Type | Description | Class CD | Sub Class CD | Year Built | Area |
| | BAS | BASE/MAIN FLOOR | 3 | 0 | 1955 | 1430.0 |
| | AGR | ATTACHED GARAGE | 3 | 0 | 1955 | 550.0 |
| | OP4 | OPEN PORCH W/CEILING-ROOF | 3 | 0 | 1955 | 22.5 |
Sketch
Property Image
Land
| 1 | 13 | SQ (06001-08000) | 0.0000 | 0.00 | 0.00 | 0.00 | 1.00 | $180,000 | $0 |
Roll Value History
| 2026 | N/A | N/A | N/A | N/A | N/A |
| 2025 | $266,162 | $180,000 | $0 | $446,162 | $446,162 |
| 2024 | $269,520 | $170,000 | $0 | $439,520 | $439,520 |
| 2023 | $238,609 | $170,000 | $0 | $408,609 | $408,609 |
| 2022 | $219,052 | $160,000 | $0 | $379,052 | $379,052 |
| 2021 | $193,082 | $120,000 | $0 | $313,082 | $313,082 |
| 2020 | $188,199 | $100,000 | $0 | $288,199 | $288,199 |
| 2019 | $118,808 | $140,000 | $0 | $258,808 | $258,808 |
| 2018 | $119,197 | $125,000 | $0 | $244,197 | $244,197 |
| 2017 | $79,534 | $110,000 | $0 | $189,534 | $189,534 |
| 2016 | $81,019 | $90,000 | $0 | $171,019 | $171,019 |
| 2015 | $82,505 | $70,000 | $0 | $152,505 | $152,505 |
| 2014 | $83,991 | $55,000 | $0 | $138,991 | $138,991 |
| 2013 | $85,477 | $55,000 | $0 | $140,477 | $140,477 |
| 2012 | $86,962 | $70,000 | $0 | $156,962 | $156,962 |
| 2011 | $88,448 | $80,000 | $0 | $168,448 | $168,448 |
| 2010 | $99,863 | $80,000 | $0 | $179,863 | $179,863 |
| 2009 | $104,513 | $97,000 | $0 | $201,513 | $201,513 |
| 2008 | $106,244 | $97,000 | $0 | $203,244 | $203,244 |
| 2007 | $107,992 | $97,000 | $0 | $204,992 | $204,992 |
Deed and Sales History
| 1 | 10/07/2023 | WD | Warranty Deed | BURGOS, JOHAN | HARRISON, ALEXANDER | | | $449,000.00 | 58214 | 4565602 |
| 2 | 10/14/2019 | WD | Warranty Deed | LARUE, SUSAN | BURGOS, JOHAN | | | $315,000.00 | 40727 | 4473568 |
| 3 | 01/07/2013 | ESTSEPPROP | Establish Separate Property | LARUE, SUSAN | LARUE, SUSAN | | | $0.00 | 10105 | 4331158 |
| 4 | 01/07/2013 | WD | Warranty Deed | BURLINGTON, ADAN | LARUE, SUSAN | | | $155,000.00 | 10104 | 4331157 |
| 5 | 07/21/2008 | WD | Warranty Deed | BURLINGTON, ADAN | BURLINGTON, ADAN | | | $0.00 | 82072 | 4234535 |
| 6 | 07/21/2008 | QCD | Quit Claim Deed | BURLINGTON, ADAN | BURLINGTON, ADAN | | | $0.00 | 82071 | 4234534 |
| 7 | 07/21/2008 | ESTSEPPROP | Establish Separate Property | BURLINGTON, ADAN | BURLINGTON, ADAN | | | $0.00 | 81946 | 4233560 |
| 8 | 07/21/2008 | WD | Warranty Deed | LINDSTROM, DOUGLAS A | BURLINGTON, ADAN | | | $215,000.00 | 81945 | 4233559 |
| 9 | 07/13/2007 | WD | Warranty Deed | COUSER , JR, ROLAND J | LINDSTROM, DOUGLAS A | | | $207,000.00 | 72387 | 4207023 |
| 10 | 05/27/2005 | 5 | DNU - Marriage License/Name Change | COUSER, JR, ROLAND J | COUSER , JR, ROLAND J | | | $0.00 | 52519 | 4136107 |
| 11 | 04/13/2000 | ESTSEPPROP | Establish Separate Property | COUSER, JR, ROLAND J | COUSER, JR, ROLAND J | | | $0.00 | 1407 | 20006924 |
| 12 | 04/13/2000 | WD | Warranty Deed | MCLELLAN, SCOTT W | COUSER, JR, ROLAND J | | | $129,000.00 | 1408 | 20006925 |
| 13 | 07/01/1984 | WD | Warranty Deed | BAUM, MICHAEL R | MCLELLAN, SCOTT W | | | $56,000.00 | 42040 | 84000670 |
| 14 | 09/01/1983 | WD | Warranty Deed | BARRETT, JOHN J | BAUM, MICHAEL R | | | $50,000.00 | 32832 | 415528 |
| 15 | 01/01/1900 | OTHER | Other - Misc. Documents | Unknown | BARRETT, JOHN J | | | $0.00 | 0 | 0 |
Payout Agreement
| No payout information available.. |