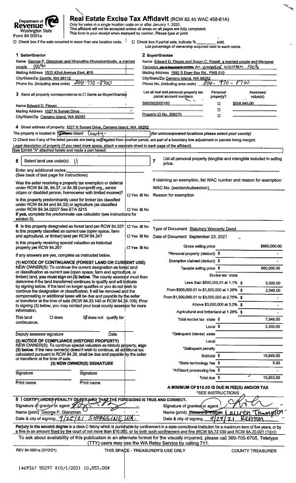
Property
Account |
| Property ID: | 290189 | Abbreviated Legal Description: | KOETJE EV ADD LOT 25 |
| Geographic ID: | S7295-00-00025-0 | Agent Code: | |
| Type: | Real | | |
| Tax Area: | 100 - APPRAISER-OH Schl Dist, in OH | Land Use Code | 11 |
| Open Space: | N | DFL | N |
| Historic Property: | N | Remodel Property: | N |
| Multi-Family Redevelopment: | N | | |
| Township: | | Section: | |
| Range: | |
Location |
| Address: | 393 NE REGATTA DR OAK HARBOR, WA 98277 | Mapsco: | |
| Neighborhood: | Cycle 1 | Map ID: | 260 |
| Neighborhood CD: | 1 |
Owner |
| Name: | REYNOLDS, DILLON JAMES | Owner ID: | 316358 |
| Mailing Address: | RILEY REYNOLDS 393 NE REGATTA DR OAK HARBOR, WA 98277 | % Ownership: | 100.0000000000% |
| | | Exemptions: | |
Taxes and Assessment Details
Values
| (+) Improvement Homesite Value: | + | $0 | |
| (+) Improvement Non-Homesite Value: | + | $276,430 | |
| (+) Land Homesite Value: | + | $0 | |
| (+) Land Non-Homesite Value: | + | $180,000 | |
| (+) Curr Use (HS): | + | $0 | $0 |
| (+) Curr Use (NHS): | + | $0 | $0 |
| | | -------------------------- | |
| (=) Market Value: | = | $456,430 | |
| (–) Productivity Loss: | – | $0 | |
| | | -------------------------- | |
| (=) Subtotal: | = | $456,430 | |
| (+) Senior Appraised Value: | + | $0 | |
| (+) Non-Senior Appraised Value: | + | $456,430 | |
| | | -------------------------- | |
| (=) Total Appraised Value: | = | $456,430 | |
| (–) Senior Exemption Loss: | – | $0 | |
| (–) Exemption Loss: | – | $0 | |
| | | -------------------------- | |
| (=) Taxable Value: | = | $456,430 | |
Taxing Jurisdiction
| Owner: | REYNOLDS, DILLON JAMES | | |
| % Ownership: | 100.0000000000% | | |
| Total Value: | $456,430 | | |
| Tax Area: | 100 - APPRAISER-OH Schl Dist, in OH |
| CF | Conservation Futures | 0.0316035091 | $456,430 | $456,430 | $14.42 | | |
| CEM1 | Cemetery #1 | 0.0040320932 | $456,430 | $456,430 | $1.84 | | |
| COH | City of Oak Harbor | 2.3001546061 | $456,430 | $456,430 | $1,049.86 | | |
| OAKBOND | City of Oak Harbor BOND | 0.1926904192 | $456,430 | $456,430 | $87.95 | | |
| HOBOND | Hospital BOND | 0.1910887512 | $456,430 | $456,430 | $87.22 | | |
| HOGEN | Hospital GEN | 0.3902502903 | $456,430 | $456,430 | $178.12 | | |
| CE | County Current Expense | 0.3708482477 | $456,430 | $456,430 | $169.27 | | |
| ISLANDEMS | Hospital GEN (EMS) | 0.5000000000 | $456,430 | $456,430 | $228.22 | | |
| LIB | Library Sno-Isle GEN | 0.3153421757 | $456,430 | $456,430 | $143.93 | | |
| NWHIDPRMT | P & R N Whidbey GEN | 0.2004466701 | $456,430 | $456,430 | $91.49 | | |
| SCH201MO | School 201 Enrichment | 1.8559231640 | $456,430 | $456,430 | $847.10 | | |
| ST | State School | 1.3035497053 | $456,430 | $456,430 | $594.98 | | |
| ST2 | State School Part 2 | 0.8169543533 | $456,430 | $456,430 | $372.88 | | |
| | Total Tax Rate: | 8.4728839852 | | | | | |
| | | | | Taxes w/Current Exemptions: | $3,867.28 | | |
| | | | | Taxes w/o Exemptions: | $3,867.28 | | |
Improvement / Building
| Improvement #1: | RESIDENTIAL | State Code: | Y | 1601.0 sqft | Value: | $276,430 |
| Bathrooms: | 2 | Bedrooms: | 3 | | Ceiling: | BEAM T&G | Exterior Wall/Cover: | WOOD SIDING | | Floor Covering: | CERAMIC TILE/HWD 40/60 | Floor Structure: | WOOD W/SUBFLOOR | | Foundation: | CONCRETE BLOCKS | Heating: | FHA GAS | | Interior Finish: | DRYWALL PAINT | Plumbing Fixture Cnt: | 9 | | Roof Slope: | 8" IN 12" | Roof Structure/Cover: | BEAM ASPHALT |
|
| | Type | Description | Class CD | Sub Class CD | Year Built | Area |
| | BAS | BASE/MAIN FLOOR | 3 | 0 | 1915 | 1024.0 |
| | UPH | HALF STORY | 3 | 0 | 1915 | 577.0 |
Sketch
| No sketches available for this property. |
Property Image
Land
| 1 | 14 | SQ (08001-12000) | 0.0000 | 0.00 | 0.00 | 0.00 | 1.00 | $180,000 | $0 |
Roll Value History
| 2026 | N/A | N/A | N/A | N/A | N/A |
| 2025 | $276,430 | $180,000 | $0 | $456,430 | $456,430 |
| 2024 | $272,647 | $170,000 | $0 | $442,647 | $442,647 |
| 2023 | $280,314 | $170,000 | $0 | $450,314 | $450,314 |
| 2022 | $256,913 | $160,000 | $0 | $416,913 | $416,913 |
| 2021 | $226,074 | $125,000 | $0 | $351,074 | $351,074 |
| 2020 | $203,831 | $100,000 | $0 | $303,831 | $303,831 |
| 2019 | $148,552 | $140,000 | $0 | $288,552 | $288,552 |
| 2018 | $135,864 | $125,000 | $0 | $260,864 | $260,864 |
| 2017 | $136,649 | $110,000 | $0 | $246,649 | $246,649 |
| 2016 | $97,789 | $90,000 | $0 | $187,789 | $187,789 |
| 2015 | $99,270 | $70,000 | $0 | $169,270 | $169,270 |
| 2014 | $100,752 | $55,000 | $0 | $155,752 | $155,752 |
| 2013 | $102,233 | $55,000 | $0 | $157,233 | $157,233 |
| 2012 | $103,715 | $70,000 | $0 | $173,715 | $173,715 |
| 2011 | $87,640 | $80,000 | $0 | $167,640 | $167,640 |
| 2010 | $97,041 | $80,000 | $0 | $177,041 | $177,041 |
| 2009 | $101,381 | $97,000 | $0 | $198,381 | $198,381 |
| 2008 | $101,477 | $97,000 | $0 | $198,477 | $198,477 |
| 2007 | $103,017 | $97,000 | $0 | $200,017 | $200,017 |
Deed and Sales History
| 1 | 04/28/2025 | WD | Warranty Deed | BERRY, TYLER C | REYNOLDS, DILLON JAMES | | | $455,000.00 | 63347 | 4585291 |
| 2 | 03/01/2021 | WD | Warranty Deed | WATSON JR, JAMES R | BERRY, TYLER C | | | $363,000.00 | 47270 | 4513076 |
| 3 | 07/25/2018 | WD | Warranty Deed | KRUSE, MARCUS | WATSON JR, JAMES R | | | $290,000.00 | 35231 | 4449004 |
| 4 | 06/06/2016 | WD | Warranty Deed | CORTZ, LEE | KRUSE, MARCUS | | | $246,000.00 | 24674 | 4400776 |
| 5 | 12/05/2014 | WD | Warranty Deed | TAFT, SHANE S | CORTZ, LEE | | | $189,500.00 | 17874 | 4370115 |
| 6 | 06/27/2012 | WD | Warranty Deed | LOFTON, LUCY | TAFT, SHANE S | | | $165,000.00 | 8144 | 4318586 |
| 7 | 09/28/2005 | ESTSEPPROP | Establish Separate Property | LOFTON, JASON T | LOFTON, LUCY | | | $0.00 | 54887 | 4149225 |
| 8 | 11/30/1999 | WD | Warranty Deed | RICHARDSON, LESTER G | LOFTON, JASON T | | | $117,500.00 | 94913 | 99027472 |
| 9 | 07/01/1995 | WD | Warranty Deed | SURBER, EDWARD L | RICHARDSON, LESTER G | | | $112,900.00 | 52353 | 95010839 |
| 10 | 03/01/1987 | WD | Warranty Deed | FORTUNE, JACQUELINE M | SURBER, EDWARD L | | | $43,000.00 | 70501 | 87003011 |
| 11 | 02/01/1986 | DECREE | Divorce Decree/Legal Separation | FORTUNE, ROBERT L | FORTUNE, JACQUELINE M | | | $0.00 | 60951 | 86004438 |
| 12 | 01/01/1900 | OTHER | Other - Misc. Documents | Unknown | FORTUNE, ROBERT L | | | $0.00 | 0 | 0 |
Payout Agreement
| No payout information available.. |