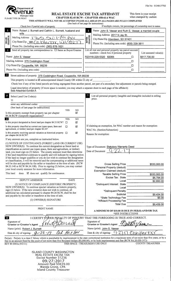
Property
Account |
| Property ID: | 290223 | Abbreviated Legal Description: | KOETJE EV ADD LOT 29 |
| Geographic ID: | S7295-00-00029-0 | Agent Code: | |
| Type: | Real | | |
| Tax Area: | 100 - APPRAISER-OH Schl Dist, in OH | Land Use Code | 11 |
| Open Space: | N | DFL | N |
| Historic Property: | N | Remodel Property: | N |
| Multi-Family Redevelopment: | N | | |
| Township: | | Section: | |
| Range: | |
Location |
| Address: | 327 NE REGATTA DR OAK HARBOR, WA 98277 | Mapsco: | |
| Neighborhood: | Cycle 1 | Map ID: | 260 |
| Neighborhood CD: | 1 |
Owner |
| Name: | DEPREY, JENNIFER L | Owner ID: | 304380 |
| Mailing Address: | 327 NORTHEAST REGATTA DR OAK HARBOR, WA 98277 | % Ownership: | 100.0000000000% |
| | | Exemptions: | |
Taxes and Assessment Details
Values
| (+) Improvement Homesite Value: | + | $0 | |
| (+) Improvement Non-Homesite Value: | + | $215,383 | |
| (+) Land Homesite Value: | + | $0 | |
| (+) Land Non-Homesite Value: | + | $180,000 | |
| (+) Curr Use (HS): | + | $0 | $0 |
| (+) Curr Use (NHS): | + | $0 | $0 |
| | | -------------------------- | |
| (=) Market Value: | = | $395,383 | |
| (–) Productivity Loss: | – | $0 | |
| | | -------------------------- | |
| (=) Subtotal: | = | $395,383 | |
| (+) Senior Appraised Value: | + | $0 | |
| (+) Non-Senior Appraised Value: | + | $395,383 | |
| | | -------------------------- | |
| (=) Total Appraised Value: | = | $395,383 | |
| (–) Senior Exemption Loss: | – | $0 | |
| (–) Exemption Loss: | – | $0 | |
| | | -------------------------- | |
| (=) Taxable Value: | = | $395,383 | |
Taxing Jurisdiction
| Owner: | DEPREY, JENNIFER L | | |
| % Ownership: | 100.0000000000% | | |
| Total Value: | $395,383 | | |
| Tax Area: | 100 - APPRAISER-OH Schl Dist, in OH |
| CF | Conservation Futures | 0.0316035091 | $395,383 | $395,383 | $12.50 | | |
| CEM1 | Cemetery #1 | 0.0040320932 | $395,383 | $395,383 | $1.59 | | |
| COH | City of Oak Harbor | 2.3001546061 | $395,383 | $395,383 | $909.44 | | |
| OAKBOND | City of Oak Harbor BOND | 0.1926904192 | $395,383 | $395,383 | $76.19 | | |
| HOBOND | Hospital BOND | 0.1910887512 | $395,383 | $395,383 | $75.55 | | |
| HOGEN | Hospital GEN | 0.3902502903 | $395,383 | $395,383 | $154.30 | | |
| CE | County Current Expense | 0.3708482477 | $395,383 | $395,383 | $146.63 | | |
| ISLANDEMS | Hospital GEN (EMS) | 0.5000000000 | $395,383 | $395,383 | $197.69 | | |
| LIB | Library Sno-Isle GEN | 0.3153421757 | $395,383 | $395,383 | $124.68 | | |
| NWHIDPRMT | P & R N Whidbey GEN | 0.2004466701 | $395,383 | $395,383 | $79.25 | | |
| SCH201MO | School 201 Enrichment | 1.8559231640 | $395,383 | $395,383 | $733.80 | | |
| ST | State School | 1.3035497053 | $395,383 | $395,383 | $515.40 | | |
| ST2 | State School Part 2 | 0.8169543533 | $395,383 | $395,383 | $323.01 | | |
| | Total Tax Rate: | 8.4728839852 | | | | | |
| | | | | Taxes w/Current Exemptions: | $3,350.03 | | |
| | | | | Taxes w/o Exemptions: | $3,350.03 | | |
Improvement / Building
| Improvement #1: | RESIDENTIAL | State Code: | Y | 1389.0 sqft | Value: | $215,383 |
| Bathrooms: | 1 | Bedrooms: | 3 | | Ceiling: | DRYWALL PAINTED | Exterior Wall/Cover: | COMMON BRICK VENEER | | Floor Covering: | HARDWOOD/CARP 60-40 | Floor Structure: | WOOD W/SUBFLOOR | | Foundation: | CONCRETE BLOCKS | Heating: | FHA GAS | | Interior Finish: | DRYWALL PAINT | Plumbing Fixture Cnt: | 6 | | Roof Slope: | 4" IN 12" | Roof Structure/Cover: | CJ ASPHALT |
|
| | Type | Description | Class CD | Sub Class CD | Year Built | Area |
| | BAS | BASE/MAIN FLOOR | 3 | 0 | 1954 | 1389.0 |
| | OP1 | OPEN PORCH SLAB | 3 | 0 | 1954 | 234.0 |
| | OCP | OPEN CARPORT | 3 | 0 | 1954 | 240.0 |
| | OP4 | OPEN PORCH W/CEILING-ROOF | 3 | 0 | 1954 | 24.0 |
Sketch
Property Image
Land
| 1 | 14 | SQ (08001-12000) | 0.0000 | 0.00 | 0.00 | 0.00 | 1.00 | $180,000 | $0 |
Roll Value History
| 2026 | N/A | N/A | N/A | N/A | N/A |
| 2025 | $215,383 | $180,000 | $0 | $395,383 | $395,383 |
| 2024 | $218,364 | $170,000 | $0 | $388,364 | $388,364 |
| 2023 | $212,412 | $170,000 | $0 | $382,412 | $382,412 |
| 2022 | $194,999 | $160,000 | $0 | $354,999 | $354,999 |
| 2021 | $171,885 | $125,000 | $0 | $296,885 | $296,885 |
| 2020 | $168,140 | $100,000 | $0 | $268,140 | $268,140 |
| 2019 | $124,026 | $140,000 | $0 | $264,026 | $264,026 |
| 2018 | $124,432 | $125,000 | $0 | $249,432 | $249,432 |
| 2017 | $71,885 | $110,000 | $0 | $181,885 | $181,885 |
| 2016 | $73,416 | $90,000 | $0 | $163,416 | $163,416 |
| 2015 | $74,944 | $70,000 | $0 | $144,944 | $144,944 |
| 2014 | $76,475 | $55,000 | $0 | $131,475 | $131,475 |
| 2013 | $78,005 | $55,000 | $0 | $133,005 | $133,005 |
| 2012 | $79,533 | $70,000 | $0 | $149,533 | $149,533 |
| 2011 | $81,757 | $80,000 | $0 | $161,757 | $161,757 |
| 2010 | $93,696 | $80,000 | $0 | $173,696 | $173,696 |
| 2009 | $96,603 | $97,000 | $0 | $193,603 | $193,603 |
| 2008 | $98,269 | $97,000 | $0 | $195,269 | $195,269 |
| 2007 | $99,936 | $97,000 | $0 | $196,936 | $196,936 |
Deed and Sales History
| 1 | 05/17/2022 | WD | Warranty Deed | WIN, THU | DEPREY, JENNIFER L | | | $435,000.00 | 53189 | 4545510 |
| 2 | 10/24/2017 | WD | Warranty Deed | REICHLE, ROBERT T / CHERI A | WIN, THU | | | $249,700.00 | 31690 | 4432948 |
| 3 | 04/23/1998 | WD | Warranty Deed | BOON, RICHARD G | REICHLE, ROBERT T/CHERI A | | | $112,500.00 | 81551 | 98008421 |
| 4 | 01/01/1900 | OTHER | Other - Misc. Documents | Unknown | BOON, RICHARD G | | | $0.00 | 0 | 0 |
| 5 | 01/01/1900 | OTHER | Other - Misc. Documents | BOON, RICHARD G | REICHLE, ROBERT T | | | $0.00 | 81551 | 98008421 |
| 6 | 01/01/1900 | OTHER | Other - Misc. Documents | REICHLE, ROBERT T | BOON, RICHARD G | | | $0.00 | 0 | 0 |
Payout Agreement
| No payout information available.. |