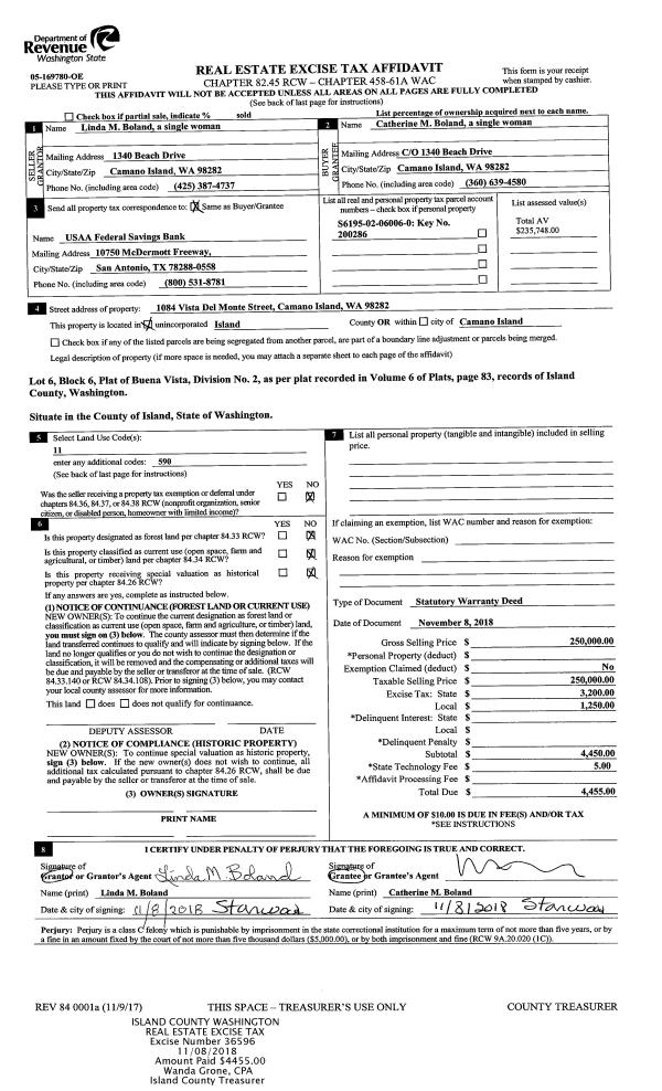
Property
Account |
| Property ID: | 29025 | Abbreviated Legal Description: | 55 - W380'OF E/2 NE SE |
| Geographic ID: | R13234-199-4810 | Agent Code: | |
| Type: | Real | | |
| Tax Area: | 319 - APPRAISER-Cpvl Schl Dist, outside Cpvl, vacant & 50 acres or less | Land Use Code | 88 |
| Open Space: | N | DFL | Y |
| Historic Property: | N | Remodel Property: | N |
| Multi-Family Redevelopment: | N | | |
| Township: | 32 | Section: | 34 |
| Range: | R1 |
Location |
| Address: | | Mapsco: | |
| Neighborhood: | Cycle 2 | Map ID: | 178 |
| Neighborhood CD: | 2 |
Owner |
| Name: | BAILEY, JACK A | Owner ID: | 7404 |
| Mailing Address: | 1803 NE PARKER RD COUPEVILLE, WA 98239-9507 | % Ownership: | 100.0000000000% |
| | | Exemptions: | |
Taxes and Assessment Details
Values
| (+) Improvement Homesite Value: | + | $0 | |
| (+) Improvement Non-Homesite Value: | + | $0 | |
| (+) Land Homesite Value: | + | $0 | |
| (+) Land Non-Homesite Value: | + | $0 | |
| (+) Curr Use (HS): | + | $0 | $0 |
| (+) Curr Use (NHS): | + | $266,983 | $1,472 |
| | | -------------------------- | |
| (=) Market Value: | = | $266,983 | |
| (–) Productivity Loss: | – | $265,511 | |
| | | -------------------------- | |
| (=) Subtotal: | = | $1,472 | |
| (+) Senior Appraised Value: | + | $0 | |
| (+) Non-Senior Appraised Value: | + | $1,472 | |
| | | -------------------------- | |
| (=) Total Appraised Value: | = | $1,472 | |
| (–) Senior Exemption Loss: | – | $0 | |
| (–) Exemption Loss: | – | $0 | |
| | | -------------------------- | |
| (=) Taxable Value: | = | $1,472 | |
Taxing Jurisdiction
| Owner: | BAILEY, JACK A | | |
| % Ownership: | 100.0000000000% | | |
| Total Value: | $266,983 | | |
| Tax Area: | 319 - APPRAISER-Cpvl Schl Dist, outside Cpvl, vacant & 50 acres or less |
| CF | Conservation Futures | 0.0316035091 | $1,472 | $1,472 | $0.05 | | |
| CEM2 | Cemetery #2 | 0.0095056933 | $1,472 | $1,472 | $0.01 | | |
| HOBOND | Hospital BOND | 0.1910887512 | $1,472 | $1,472 | $0.28 | | |
| HOGEN | Hospital GEN | 0.3902502903 | $1,472 | $1,472 | $0.57 | | |
| CE | County Current Expense | 0.3708482477 | $1,472 | $1,472 | $0.55 | | |
| CR | County Roads | 0.4584763726 | $1,472 | $1,472 | $0.67 | | |
| ISLANDEMS | Hospital GEN (EMS) | 0.5000000000 | $1,472 | $1,472 | $0.74 | | |
| LIB | Library Sno-Isle GEN | 0.3153421757 | $1,472 | $1,472 | $0.46 | | |
| LIBCAP | Library Sno-Isle BOND (Cap Fac Imp Area) | 0.0543427938 | $1,472 | $1,472 | $0.08 | | |
| POCOUP | Port of Coupeville GEN | 0.1093371703 | $1,472 | $1,472 | $0.16 | | |
| POCOUPIDD | Port of Coupeville IDD | 0.3409740022 | $1,472 | $1,472 | $0.50 | | |
| COUPSDTECH | School 204 CP (TECH) | 0.7545480007 | $1,472 | $1,472 | $1.11 | | |
| SCH204MO | School 204 Enrichment | 0.6716186034 | $1,472 | $1,472 | $0.99 | | |
| ST | State School | 1.3035497053 | $1,472 | $1,472 | $1.92 | | |
| ST2 | State School Part 2 | 0.8169543533 | $1,472 | $1,472 | $1.20 | | |
| | Total Tax Rate: | 6.3184396689 | | | | | |
| | | | | Taxes w/Current Exemptions: | $9.29 | | |
| | | | | Taxes w/o Exemptions: | $9.29 | | |
Improvement / Building
Sketch
| No sketches available for this property. |
Property Image
Land
| 1 | 35 | AC (10.00-30.99) | 3.9500 | 172062.00 | 0.00 | 0.00 | 1.00 | $91,703 | $589 |
| 2 | 35 | AC (10.00-30.99) | 7.5500 | 328878.00 | 0.00 | 0.00 | 1.00 | $175,280 | $883 |
Roll Value History
| 2026 | N/A | N/A | N/A | N/A | N/A |
| 2025 | $0 | $266,983 | $1,472 | $1,472 | $1,472 |
| 2024 | $0 | $250,000 | $1,476 | $1,476 | $1,476 |
| 2023 | $0 | $240,000 | $1,415 | $1,415 | $1,415 |
| 2022 | $0 | $200,000 | $1,415 | $1,415 | $1,415 |
| 2021 | $0 | $170,000 | $1,415 | $1,415 | $1,415 |
| 2020 | $0 | $135,000 | $1,415 | $1,415 | $1,415 |
| 2019 | $0 | $135,000 | $1,364 | $1,364 | $1,364 |
| 2018 | $0 | $135,000 | $1,341 | $1,341 | $1,341 |
| 2017 | $0 | $135,000 | $1,341 | $1,341 | $1,341 |
| 2016 | $0 | $135,000 | $1,127 | $1,127 | $1,127 |
| 2015 | $0 | $127,075 | $1,127 | $1,127 | $1,127 |
| 2014 | $0 | $127,075 | $1,127 | $1,127 | $1,127 |
| 2013 | $0 | $127,075 | $1,127 | $1,127 | $1,127 |
| 2012 | $0 | $127,075 | $1,127 | $1,127 | $1,127 |
| 2011 | $0 | $149,500 | $1,127 | $1,127 | $1,127 |
| 2010 | $0 | $149,500 | $1,127 | $1,127 | $1,127 |
| 2009 | $0 | $230,000 | $1,127 | $1,127 | $1,127 |
| 2008 | $0 | $195,500 | $1,127 | $1,127 | $1,127 |
| 2007 | $0 | $126,500 | $1,127 | $1,127 | $1,127 |
Deed and Sales History
| 1 | 01/01/1900 | OTHER | Other - Misc. Documents | Unknown | BAILEY, JACK A | | | $0.00 | 0 | 0 |
Payout Agreement
| No payout information available.. |