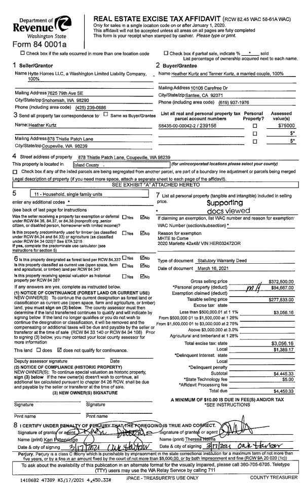
Property
Account |
| Property ID: | 290438 | Abbreviated Legal Description: | KOHLWES 1ST LOT 14 |
| Geographic ID: | S7300-00-00014-0 | Agent Code: | |
| Type: | Real | | |
| Tax Area: | 810 - APPRAISER-S Whid Schl Dist, Diking District#1, improved & 1 acre or less | Land Use Code | 11 |
| Open Space: | N | DFL | N |
| Historic Property: | N | Remodel Property: | N |
| Multi-Family Redevelopment: | N | | |
| Township: | | Section: | |
| Range: | |
Location |
| Address: | | Mapsco: | |
| Neighborhood: | Cycle 4 | Map ID: | 789 |
| Neighborhood CD: | 4 |
Owner |
| Name: | WINQUIST INVESTMENTS LLC | Owner ID: | 190983 |
| Mailing Address: | 2311 5TH AVE N SEATTLE, WA 98109-2118 | % Ownership: | 100.0000000000% |
| | | Exemptions: | |
Taxes and Assessment Details
Values
| (+) Improvement Homesite Value: | + | $0 | |
| (+) Improvement Non-Homesite Value: | + | $2,000 | |
| (+) Land Homesite Value: | + | $0 | |
| (+) Land Non-Homesite Value: | + | $190,000 | |
| (+) Curr Use (HS): | + | $0 | $0 |
| (+) Curr Use (NHS): | + | $0 | $0 |
| | | -------------------------- | |
| (=) Market Value: | = | $192,000 | |
| (–) Productivity Loss: | – | $0 | |
| | | -------------------------- | |
| (=) Subtotal: | = | $192,000 | |
| (+) Senior Appraised Value: | + | $0 | |
| (+) Non-Senior Appraised Value: | + | $192,000 | |
| | | -------------------------- | |
| (=) Total Appraised Value: | = | $192,000 | |
| (–) Senior Exemption Loss: | – | $0 | |
| (–) Exemption Loss: | – | $0 | |
| | | -------------------------- | |
| (=) Taxable Value: | = | $192,000 | |
Taxing Jurisdiction
| Owner: | WINQUIST INVESTMENTS LLC | | |
| % Ownership: | 100.0000000000% | | |
| Total Value: | $192,000 | | |
| Tax Area: | 810 - APPRAISER-S Whid Schl Dist, Diking District#1, improved & 1 acre or less |
| CF | Conservation Futures | 0.0316035091 | $192,000 | $192,000 | $6.07 | | |
| FIRE3 | Fire & Rescue Dist #3 S Whidbey GEN | 1.2004855531 | $192,000 | $192,000 | $230.49 | | |
| HOBOND | Hospital BOND | 0.1910887512 | $192,000 | $192,000 | $36.69 | | |
| HOGEN | Hospital GEN | 0.3902502903 | $192,000 | $192,000 | $74.93 | | |
| CE | County Current Expense | 0.3708482477 | $192,000 | $192,000 | $71.20 | | |
| CR | County Roads | 0.4584763726 | $192,000 | $192,000 | $88.03 | | |
| ISLANDEMS | Hospital GEN (EMS) | 0.5000000000 | $192,000 | $192,000 | $96.00 | | |
| LIB | Library Sno-Isle GEN | 0.3153421757 | $192,000 | $192,000 | $60.55 | | |
| PORTWHID | Port of S Whidbey GEN | 0.1094540357 | $192,000 | $192,000 | $21.02 | | |
| SCH206BOND | School 206 BOND | 0.3161759235 | $192,000 | $192,000 | $60.71 | | |
| SCH206MO | School 206 Enrichment | 0.4547169547 | $192,000 | $192,000 | $87.31 | | |
| ST | State School | 1.3035497053 | $192,000 | $192,000 | $250.28 | | |
| ST2 | State School Part 2 | 0.8169543533 | $192,000 | $192,000 | $156.86 | | |
| SWHIDPRBD | P & R S Whidbey BOND | 0.0152817568 | $192,000 | $192,000 | $2.93 | | |
| SWHIDPRBD2 | P & R S Whidbey BOND2 | 0.0138911264 | $192,000 | $192,000 | $2.67 | | |
| SWHIDPRMT | P & R S Whidbey GEN | 0.2053334452 | $192,000 | $192,000 | $39.42 | | |
| | Total Tax Rate: | 6.6934522006 | | | | | |
| | | | | Taxes w/Current Exemptions: | $1,285.16 | | |
| | | | | Taxes w/o Exemptions: | $1,285.16 | | |
Improvement / Building
| Improvement #1: | RESIDENTIAL | State Code: | Y | 0.0 sqft | Value: | $2,000 |
Sketch
Property Image
Land
| 1 | 13 | SQ (06001-08000) | 0.0000 | 0.00 | 0.00 | 0.00 | 1.00 | $190,000 | $0 |
Roll Value History
| 2026 | N/A | N/A | N/A | N/A | N/A |
| 2025 | $2,000 | $190,000 | $0 | $192,000 | $192,000 |
| 2024 | $2,000 | $200,000 | $0 | $202,000 | $202,000 |
| 2023 | $2,000 | $200,000 | $0 | $202,000 | $202,000 |
| 2022 | $2,000 | $180,000 | $0 | $182,000 | $182,000 |
| 2021 | $2,000 | $100,000 | $0 | $102,000 | $102,000 |
| 2020 | $2,000 | $100,000 | $0 | $102,000 | $102,000 |
| 2019 | $2,000 | $100,000 | $0 | $102,000 | $102,000 |
| 2018 | $2,000 | $100,000 | $0 | $102,000 | $102,000 |
| 2017 | $2,000 | $100,000 | $0 | $102,000 | $102,000 |
| 2016 | $2,000 | $100,000 | $0 | $102,000 | $102,000 |
| 2015 | $2,000 | $100,000 | $0 | $102,000 | $102,000 |
| 2014 | $4,221 | $85,000 | $0 | $89,221 | $89,221 |
| 2013 | $4,238 | $67,150 | $0 | $71,388 | $71,388 |
| 2012 | $4,256 | $67,150 | $0 | $71,406 | $71,406 |
| 2011 | $4,273 | $79,000 | $0 | $83,273 | $83,273 |
| 2010 | $2,681 | $79,000 | $0 | $81,681 | $81,681 |
| 2009 | $0 | $80,000 | $0 | $80,000 | $80,000 |
| 2008 | $0 | $82,345 | $0 | $82,345 | $82,345 |
| 2007 | $0 | $82,345 | $0 | $82,345 | $82,345 |
Deed and Sales History
| 1 | 08/18/2004 | WD | Warranty Deed | PIPER, GARY A | WINQUIST INVESTMENTS LLC, | | | $0.00 | 44070 | 4111446 |
| 2 | 08/09/2004 | WD | Warranty Deed | MASCHMEDT, COLLEEN | PIPER, GARY A | | | $190,000.00 | 44069 | 4111445 |
| 3 | 08/27/2003 | WD | Warranty Deed | ORTH, GREG O | MASCHMEDT, COLLEEN | | | $79,500.00 | 33935 | 4073511 |
| 4 | 06/01/1995 | DECREE | Divorce Decree/Legal Separation | ORTH, GREG O | ORTH, GREG O | | | $0.00 | 66469 | 0 |
| 5 | 10/01/1992 | QCD | Quit Claim Deed | ORTH, G O | ORTH, GREG O | | | $0.00 | 24048 | 92019689 |
| 6 | 05/01/1978 | OTHER | Other - Misc. Documents | Unknown | ORTH, G O | | | $10,000.00 | 82399 | 333440 |
Payout Agreement
| No payout information available.. |