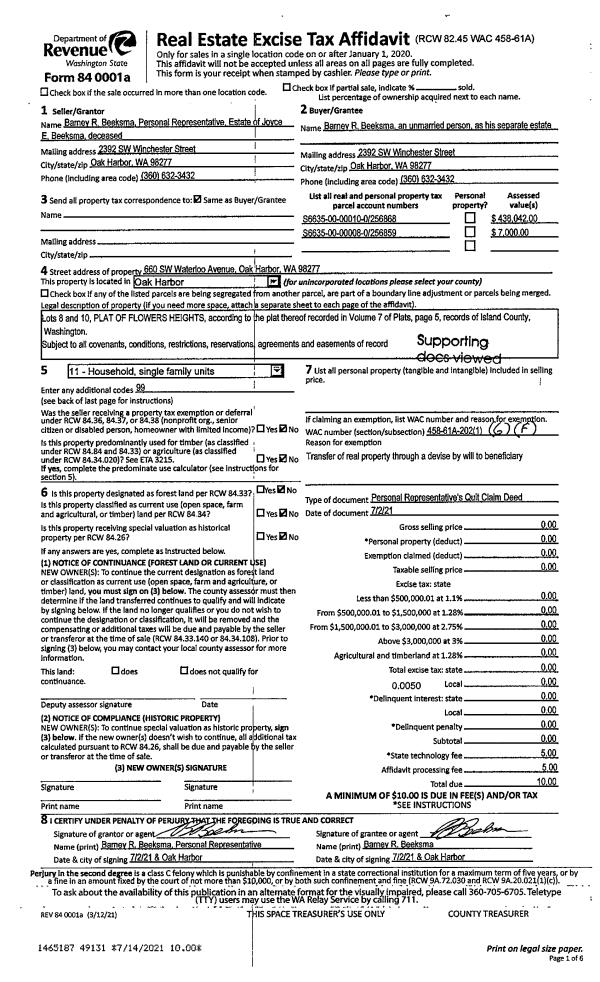
Property
Account |
| Property ID: | 290474 | Abbreviated Legal Description: | KOHLWES 1ST LOT 16 & EZ LOT 27 SUNLIGHT BCH |
| Geographic ID: | S7300-00-00016-0 | Agent Code: | |
| Type: | Real | | |
| Tax Area: | 810 - APPRAISER-S Whid Schl Dist, Diking District#1, improved & 1 acre or less | Land Use Code | 11 |
| Open Space: | N | DFL | N |
| Historic Property: | N | Remodel Property: | N |
| Multi-Family Redevelopment: | N | | |
| Township: | | Section: | |
| Range: | |
Location |
| Address: | 2577 SUNLIGHT BEACH RD CLINTON, WA 98236 | Mapsco: | |
| Neighborhood: | Cycle 4 | Map ID: | 789 |
| Neighborhood CD: | 4 |
Owner |
| Name: | CARNER, EDWARD A | Owner ID: | 294095 |
| Mailing Address: | 2577 SUNLIGHT BEACH RD CLINTON, WA 98236 | % Ownership: | 100.0000000000% |
| | | Exemptions: | |
Taxes and Assessment Details
Values
| (+) Improvement Homesite Value: | + | $0 | |
| (+) Improvement Non-Homesite Value: | + | $307,753 | |
| (+) Land Homesite Value: | + | $0 | |
| (+) Land Non-Homesite Value: | + | $420,000 | |
| (+) Curr Use (HS): | + | $0 | $0 |
| (+) Curr Use (NHS): | + | $0 | $0 |
| | | -------------------------- | |
| (=) Market Value: | = | $727,753 | |
| (–) Productivity Loss: | – | $0 | |
| | | -------------------------- | |
| (=) Subtotal: | = | $727,753 | |
| (+) Senior Appraised Value: | + | $0 | |
| (+) Non-Senior Appraised Value: | + | $727,753 | |
| | | -------------------------- | |
| (=) Total Appraised Value: | = | $727,753 | |
| (–) Senior Exemption Loss: | – | $0 | |
| (–) Exemption Loss: | – | $0 | |
| | | -------------------------- | |
| (=) Taxable Value: | = | $727,753 | |
Taxing Jurisdiction
| Owner: | CARNER, EDWARD A | | |
| % Ownership: | 100.0000000000% | | |
| Total Value: | $727,753 | | |
| Tax Area: | 810 - APPRAISER-S Whid Schl Dist, Diking District#1, improved & 1 acre or less |
| CF | Conservation Futures | 0.0316035091 | $727,753 | $727,753 | $23.00 | | |
| FIRE3 | Fire & Rescue Dist #3 S Whidbey GEN | 1.2004855531 | $727,753 | $727,753 | $873.66 | | |
| HOBOND | Hospital BOND | 0.1910887512 | $727,753 | $727,753 | $139.07 | | |
| HOGEN | Hospital GEN | 0.3902502903 | $727,753 | $727,753 | $284.01 | | |
| CE | County Current Expense | 0.3708482477 | $727,753 | $727,753 | $269.89 | | |
| CR | County Roads | 0.4584763726 | $727,753 | $727,753 | $333.66 | | |
| ISLANDEMS | Hospital GEN (EMS) | 0.5000000000 | $727,753 | $727,753 | $363.88 | | |
| LIB | Library Sno-Isle GEN | 0.3153421757 | $727,753 | $727,753 | $229.49 | | |
| PORTWHID | Port of S Whidbey GEN | 0.1094540357 | $727,753 | $727,753 | $79.66 | | |
| SCH206BOND | School 206 BOND | 0.3161759235 | $727,753 | $727,753 | $230.10 | | |
| SCH206MO | School 206 Enrichment | 0.4547169547 | $727,753 | $727,753 | $330.92 | | |
| ST | State School | 1.3035497053 | $727,753 | $727,753 | $948.66 | | |
| ST2 | State School Part 2 | 0.8169543533 | $727,753 | $727,753 | $594.54 | | |
| SWHIDPRBD | P & R S Whidbey BOND | 0.0152817568 | $727,753 | $727,753 | $11.12 | | |
| SWHIDPRBD2 | P & R S Whidbey BOND2 | 0.0138911264 | $727,753 | $727,753 | $10.11 | | |
| SWHIDPRMT | P & R S Whidbey GEN | 0.2053334452 | $727,753 | $727,753 | $149.43 | | |
| | Total Tax Rate: | 6.6934522006 | | | | | |
| | | | | Taxes w/Current Exemptions: | $4,871.20 | | |
| | | | | Taxes w/o Exemptions: | $4,871.20 | | |
Improvement / Building
| Improvement #1: | RESIDENTIAL | State Code: | Y | 1676.8 sqft | Value: | $307,753 |
| Bathrooms: | 2 | Bedrooms: | 3 | | Ceiling: | TONGUE & GROOVE | Exterior Wall/Cover: | WOOD SIDING | | Floor Covering: | CARPET/VINYL 80-20 | Floor Structure: | WOOD W/SUBFLOOR | | Foundation: | CONCRETE | Heating: | FHA OIL | | Interior Finish: | DRYWALL PAINT | Plumbing Fixture Cnt: | 9 | | Roof Slope: | 3" IN 12" | Roof Structure/Cover: | BEAM BUILT-UP ROCK |
|
| | Type | Description | Class CD | Sub Class CD | Year Built | Area |
| | BAS | BASE/MAIN FLOOR | 4 | 0 | 1962 | 838.4 |
| | OP1 | OPEN PORCH SLAB | 4 | 0 | 1962 | 256.0 |
| | OWP | OPEN WOOD PORCH W/STEPS | 4 | 0 | 1962 | 256.0 |
| | DWN | DOWNSTAIRS LIVING AREA | 4 | 0 | 1962 | 838.4 |
| | UTY | STORAGE/UTILITY | 4 | 0 | 1962 | 128.0 |
Sketch
Property Image
Land
| 1 | 13 | SQ (06001-08000) | 0.0000 | 0.00 | 0.00 | 0.00 | 1.00 | $420,000 | $0 |
Roll Value History
| 2026 | N/A | N/A | N/A | N/A | N/A |
| 2025 | $307,753 | $420,000 | $0 | $727,753 | $727,753 |
| 2024 | $311,542 | $440,000 | $0 | $751,542 | $751,542 |
| 2023 | $315,329 | $430,000 | $0 | $745,329 | $745,329 |
| 2022 | $288,962 | $310,000 | $0 | $598,962 | $598,962 |
| 2021 | $254,259 | $280,000 | $0 | $534,259 | $534,259 |
| 2020 | $247,780 | $280,000 | $0 | $527,780 | $527,780 |
| 2019 | $184,032 | $280,000 | $0 | $464,032 | $464,032 |
| 2018 | $184,561 | $260,000 | $0 | $444,561 | $444,561 |
| 2017 | $123,573 | $220,000 | $0 | $343,573 | $343,573 |
| 2016 | $125,290 | $200,000 | $0 | $325,290 | $325,290 |
| 2015 | $127,005 | $200,000 | $0 | $327,005 | $327,005 |
| 2014 | $89,202 | $200,000 | $0 | $289,202 | $289,202 |
| 2013 | $90,789 | $200,000 | $0 | $290,789 | $290,789 |
| 2012 | $92,377 | $140,250 | $0 | $232,627 | $232,627 |
| 2011 | $93,964 | $165,000 | $0 | $258,964 | $258,964 |
| 2010 | $106,652 | $165,000 | $0 | $271,652 | $271,652 |
| 2009 | $111,391 | $180,000 | $0 | $291,391 | $291,391 |
| 2008 | $118,136 | $221,900 | $0 | $340,036 | $340,036 |
| 2007 | $119,836 | $221,900 | $0 | $341,736 | $341,736 |
Deed and Sales History
| 1 | 04/04/2020 | QCD | Quit Claim Deed | CARNER, EDWARD A | CARNER, EDWARD A | | | $0.00 | 42939 | 4486162 |
| 2 | 04/04/2020 | QCD | Quit Claim Deed | CARNER, EDWARD A | CARNER, EDWARD A | | | $0.00 | 42862 | 4485699 |
| 3 | 06/23/2015 | WD | Warranty Deed | MCGRATH ET AL, JEFFREY | CARNER, EDWARD A | | | $348,000.00 | 20408 | 4381970 |
| 4 | 05/01/1996 | WD | Warranty Deed | SMITH, G J | MCGRATH, JEFFREY E | | | $130,000.00 | 61674 | 96008357 |
| 5 | 11/01/1995 | OTHER | Other - Misc. Documents | SMITH, ROBERT L | SMITH, G J | | | $0.00 | 66727 | 95018914 |
| 6 | 01/01/1900 | OTHER | Other - Misc. Documents | Unknown | SMITH, ROBERT L | | | $0.00 | 0 | 0 |
Payout Agreement
| No payout information available.. |