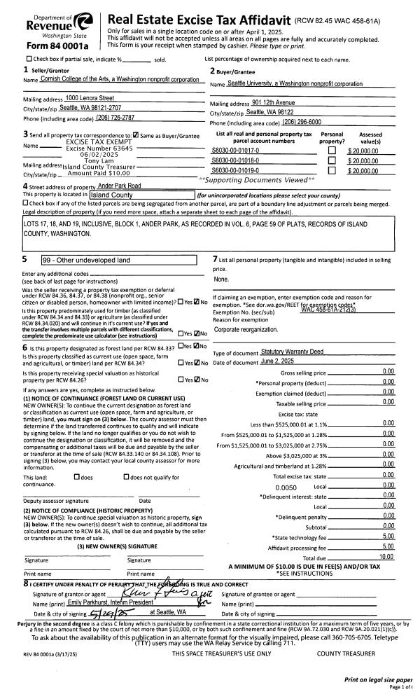
Property
Account |
| Property ID: | 29070 | Abbreviated Legal Description: | 13 COUPE DC - W70' OF N148' (.24) OF FOLL DESC: BG SLN 6TH (4TH) & WLN VAC OTIS ST S300' W200' N300' E200'TPB |
| Geographic ID: | R13234-259-0510 | Agent Code: | |
| Type: | Real | | |
| Tax Area: | 300 - APPRAISER-Cpvl Schl Dist, in Cpvl | Land Use Code | 71 |
| Open Space: | N | DFL | N |
| Historic Property: | N | Remodel Property: | N |
| Multi-Family Redevelopment: | N | | |
| Township: | 32 | Section: | 34 |
| Range: | R1 |
Location |
| Address: | COUPEVILLE, WA 98239 | Mapsco: | |
| Neighborhood: | Area 2 Commercial South East | Map ID: | 177 |
| Neighborhood CD: | 21cCPeast |
Owner |
| Name: | COUPEVILLE COMMUNITY BIBLE CHURCH | Owner ID: | 196857 |
| Mailing Address: | 502 NE OTIS ST COUPEVILLE, WA 98239-3560 | % Ownership: | 100.0000000000% |
| | | Exemptions: | |
Taxes and Assessment Details
Values
| (+) Improvement Homesite Value: | + | $0 | |
| (+) Improvement Non-Homesite Value: | + | $0 | |
| (+) Land Homesite Value: | + | $0 | |
| (+) Land Non-Homesite Value: | + | $42,424 | |
| (+) Curr Use (HS): | + | $0 | $0 |
| (+) Curr Use (NHS): | + | $0 | $0 |
| | | -------------------------- | |
| (=) Market Value: | = | $42,424 | |
| (–) Productivity Loss: | – | $0 | |
| | | -------------------------- | |
| (=) Subtotal: | = | $42,424 | |
| (+) Senior Appraised Value: | + | $0 | |
| (+) Non-Senior Appraised Value: | + | $42,424 | |
| | | -------------------------- | |
| (=) Total Appraised Value: | = | $42,424 | |
| (–) Senior Exemption Loss: | – | $0 | |
| (–) Exemption Loss: | – | $0 | |
| | | -------------------------- | |
| (=) Taxable Value: | = | $42,424 | |
Taxing Jurisdiction
| Owner: | COUPEVILLE COMMUNITY BIBLE CHURCH | | |
| % Ownership: | 100.0000000000% | | |
| Total Value: | $42,424 | | |
| Tax Area: | 300 - APPRAISER-Cpvl Schl Dist, in Cpvl |
| CF | Conservation Futures | 0.0316035091 | $42,424 | $42,424 | $1.34 | | |
| CEM2 | Cemetery #2 | 0.0095056933 | $42,424 | $42,424 | $0.40 | | |
| COUP | City: Town of Coupeville | 0.8426414490 | $42,424 | $42,424 | $35.75 | | |
| FIRE5 | Fire & Rescue Dist #5 C Whidbey GEN | 1.2008080668 | $42,424 | $42,424 | $50.94 | | |
| FIRE5BOND | Fire & Rescue Dist #5 C Whidbey BOND | 0.1400090713 | $42,424 | $42,424 | $5.94 | | |
| HOBOND | Hospital BOND | 0.1910887512 | $42,424 | $42,424 | $8.11 | | |
| HOGEN | Hospital GEN | 0.3902502903 | $42,424 | $42,424 | $16.56 | | |
| CE | County Current Expense | 0.3708482477 | $42,424 | $42,424 | $15.73 | | |
| ISLANDEMS | Hospital GEN (EMS) | 0.5000000000 | $42,424 | $42,424 | $21.21 | | |
| LIB | Library Sno-Isle GEN | 0.3153421757 | $42,424 | $42,424 | $13.38 | | |
| LIBCAP | Library Sno-Isle BOND (Cap Fac Imp Area) | 0.0543427938 | $42,424 | $42,424 | $2.31 | | |
| POCOUP | Port of Coupeville GEN | 0.1093371703 | $42,424 | $42,424 | $4.64 | | |
| POCOUPIDD | Port of Coupeville IDD | 0.3409740022 | $42,424 | $42,424 | $14.47 | | |
| COUPSDTECH | School 204 CP (TECH) | 0.7545480007 | $42,424 | $42,424 | $32.01 | | |
| SCH204MO | School 204 Enrichment | 0.6716186034 | $42,424 | $42,424 | $28.49 | | |
| ST | State School | 1.3035497053 | $42,424 | $42,424 | $55.30 | | |
| ST2 | State School Part 2 | 0.8169543533 | $42,424 | $42,424 | $34.66 | | |
| | Total Tax Rate: | 8.0434218834 | | | | | |
| | | | | Taxes w/Current Exemptions: | $341.24 | | |
| | | | | Taxes w/o Exemptions: | $341.24 | | |
Improvement / Building
Sketch
| No sketches available for this property. |
Property Image
Land
| 1 | 17 | AC (01.01-02.00) | 0.2400 | 10454.40 | 0.00 | 0.00 | 1.00 | $42,424 | $0 |
Roll Value History
| 2026 | N/A | N/A | N/A | N/A | N/A |
| 2025 | $0 | $42,424 | $0 | $42,424 | $42,424 |
| 2024 | $0 | $78,484 | $0 | $78,484 | $78,484 |
| 2023 | $0 | $45,218 | $0 | $45,218 | $45,218 |
| 2022 | $0 | $31,363 | $0 | $31,363 | $31,363 |
| 2021 | $0 | $31,363 | $0 | $31,363 | $31,363 |
| 2020 | $0 | $31,363 | $0 | $31,363 | $31,363 |
| 2019 | $0 | $37,400 | $0 | $37,400 | $37,400 |
| 2018 | $0 | $104,544 | $0 | $104,544 | $104,544 |
| 2017 | $4,464 | $30,321 | $0 | $34,785 | $0 |
| 2016 | $4,464 | $30,321 | $0 | $34,785 | $0 |
| 2015 | $4,464 | $30,321 | $0 | $34,785 | $0 |
| 2014 | $4,464 | $30,321 | $0 | $34,785 | $0 |
| 2013 | $4,464 | $30,321 | $0 | $34,785 | $0 |
| 2012 | $4,464 | $45,218 | $0 | $49,682 | $0 |
| 2011 | $4,464 | $45,218 | $0 | $49,682 | $0 |
| 2010 | $4,464 | $45,218 | $0 | $49,682 | $0 |
| 2009 | $4,560 | $54,604 | $0 | $59,164 | $0 |
| 2008 | $4,656 | $54,604 | $0 | $59,260 | $0 |
| 2007 | $4,704 | $54,604 | $0 | $59,308 | $0 |
Deed and Sales History
| 1 | 01/01/1984 | OTHER | Other - Misc. Documents | COUPEVILLE, GOSPEL C | COUPEVILLE, COMMUNITY B | | | $0.00 | 60378 | 0 |
| 2 | 05/01/1964 | EXECUTORD | Executor Deed | Unknown | COUPEVILLE, GOSPEL C | | | $5,000.00 | 16358 | 0 |
| 3 | 01/01/1900 | OTHER | Other - Misc. Documents | COUPEVILLE, GOSPEL C | ALSOBROOK, MYRTLE F | | | $0.00 | 0 | 0 |
Payout Agreement
| No payout information available.. |