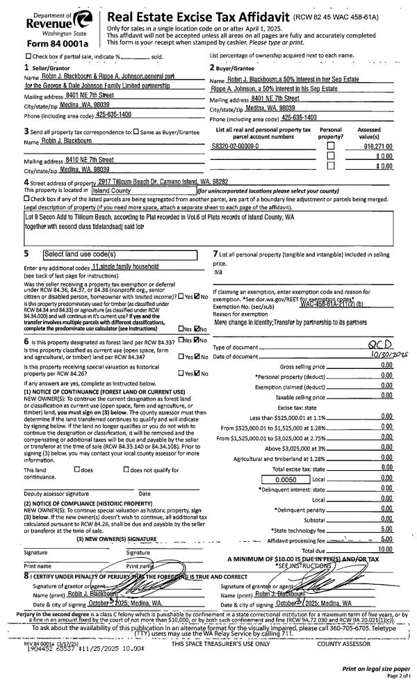
Property
Account |
| Property ID: | 291151 | Abbreviated Legal Description: | LAGOON PT (C) IN N PT OF BLK 1 INCL ADJ TIDES AKA: BG NWCR LOT 1 BLK 5 N18*E604.74' TPB N18*E63.66 N89*E434.25' S18*W63.62' S89*W434.36' TPB |
| Geographic ID: | S7310-00-01005-0 | Agent Code: | |
| Type: | Real | | |
| Tax Area: | 320 - APPRAISER-Cpvl Schl Dist, Special Dist, improved & less than 1 acre | Land Use Code | 11 |
| Open Space: | N | DFL | N |
| Historic Property: | N | Remodel Property: | N |
| Multi-Family Redevelopment: | N | | |
| Township: | | Section: | |
| Range: | |
Location |
| Address: | 3436 MARINE VIEW DR GREENBANK, WA 98253 | Mapsco: | |
| Neighborhood: | Cycle 3 | Map ID: | 388 |
| Neighborhood CD: | 3 |
Owner |
| Name: | HENDRICSON, SHIRLEY | Owner ID: | 293484 |
| Mailing Address: | 3436 MARINE VIEW DR GREENBANK, WA 98253 | % Ownership: | 100.0000000000% |
| | | Exemptions: | |
Taxes and Assessment Details
Values
| (+) Improvement Homesite Value: | + | $0 | |
| (+) Improvement Non-Homesite Value: | + | $298,677 | |
| (+) Land Homesite Value: | + | $0 | |
| (+) Land Non-Homesite Value: | + | $529,600 | |
| (+) Curr Use (HS): | + | $0 | $0 |
| (+) Curr Use (NHS): | + | $0 | $0 |
| | | -------------------------- | |
| (=) Market Value: | = | $828,277 | |
| (–) Productivity Loss: | – | $0 | |
| | | -------------------------- | |
| (=) Subtotal: | = | $828,277 | |
| (+) Senior Appraised Value: | + | $0 | |
| (+) Non-Senior Appraised Value: | + | $828,277 | |
| | | -------------------------- | |
| (=) Total Appraised Value: | = | $828,277 | |
| (–) Senior Exemption Loss: | – | $0 | |
| (–) Exemption Loss: | – | $0 | |
| | | -------------------------- | |
| (=) Taxable Value: | = | $828,277 | |
Taxing Jurisdiction
| Owner: | HENDRICSON, SHIRLEY | | |
| % Ownership: | 100.0000000000% | | |
| Total Value: | $828,277 | | |
| Tax Area: | 320 - APPRAISER-Cpvl Schl Dist, Special Dist, improved & less than 1 acre |
| CF | Conservation Futures | 0.0316035091 | $828,277 | $828,277 | $26.18 | | |
| CEM2 | Cemetery #2 | 0.0095056933 | $828,277 | $828,277 | $7.87 | | |
| FIRE5 | Fire & Rescue Dist #5 C Whidbey GEN | 1.2008080668 | $828,277 | $828,277 | $994.60 | | |
| FIRE5BOND | Fire & Rescue Dist #5 C Whidbey BOND | 0.1400090713 | $828,277 | $828,277 | $115.97 | | |
| HOBOND | Hospital BOND | 0.1910887512 | $828,277 | $828,277 | $158.27 | | |
| HOGEN | Hospital GEN | 0.3902502903 | $828,277 | $828,277 | $323.24 | | |
| CE | County Current Expense | 0.3708482477 | $828,277 | $828,277 | $307.17 | | |
| CR | County Roads | 0.4584763726 | $828,277 | $828,277 | $379.75 | | |
| ISLANDEMS | Hospital GEN (EMS) | 0.5000000000 | $828,277 | $828,277 | $414.14 | | |
| LIB | Library Sno-Isle GEN | 0.3153421757 | $828,277 | $828,277 | $261.19 | | |
| LIBCAP | Library Sno-Isle BOND (Cap Fac Imp Area) | 0.0543427938 | $828,277 | $828,277 | $45.01 | | |
| POCOUP | Port of Coupeville GEN | 0.1093371703 | $828,277 | $828,277 | $90.56 | | |
| POCOUPIDD | Port of Coupeville IDD | 0.3409740022 | $828,277 | $828,277 | $282.42 | | |
| COUPSDTECH | School 204 CP (TECH) | 0.7545480007 | $828,277 | $828,277 | $624.97 | | |
| SCH204MO | School 204 Enrichment | 0.6716186034 | $828,277 | $828,277 | $556.29 | | |
| ST | State School | 1.3035497053 | $828,277 | $828,277 | $1,079.70 | | |
| ST2 | State School Part 2 | 0.8169543533 | $828,277 | $828,277 | $676.66 | | |
| | Total Tax Rate: | 7.6592568070 | | | | | |
| | | | | Taxes w/Current Exemptions: | $6,343.99 | | |
| | | | | Taxes w/o Exemptions: | $6,343.99 | | |
Improvement / Building
| Improvement #1: | RESIDENTIAL | State Code: | Y | 1649.0 sqft | Value: | $298,677 |
| Bathrooms: | 2 | Bedrooms: | 2 | | Ceiling: | DRYWALL PAINTED | Cooling: | HEAT PUMP/CONV/V | | Exterior Wall/Cover: | VINYL | Floor Covering: | HARDWOOD/CARP 20-80 | | Floor Structure: | WOOD W/SUBFLOOR | Foundation: | CONCRETE | | Interior Finish: | DRYWALL PAINT | Plumbing Fixture Cnt: | 13 | | Roof Slope: | 4" IN 12" | Roof Structure/Cover: | CJ ASPHALT |
|
| | Type | Description | Class CD | Sub Class CD | Year Built | Area |
| | BAS | BASE/MAIN FLOOR | 3 | 0 | 1990 | 1649.0 |
| | OP4 | OPEN PORCH W/CEILING-ROOF | 3 | 0 | 1990 | 36.0 |
| | AGR | ATTACHED GARAGE | 3 | 0 | 1990 | 576.0 |
| | OWP | OPEN WOOD PORCH W/STEPS | 3 | 0 | 1990 | 281.9 |
| | ENP | ENCLOSED PORCH | 3 | 0 | 1990 | 160.0 |
Sketch
Property Image
Land
| 1 | HB | HIGH BLUFF | 0.6400 | 27878.40 | 64.00 | 0.00 | 1.00 | $528,960 | $0 |
| 2 | 55 | TIDES | 0.0000 | 0.00 | 64.00 | 0.00 | 1.00 | $640 | $0 |
Roll Value History
| 2026 | N/A | N/A | N/A | N/A | N/A |
| 2025 | $298,677 | $529,600 | $0 | $828,277 | $828,277 |
| 2024 | $302,754 | $551,640 | $0 | $854,394 | $854,394 |
| 2023 | $306,832 | $525,640 | $0 | $832,472 | $832,472 |
| 2022 | $281,529 | $500,640 | $0 | $782,169 | $782,169 |
| 2021 | $248,013 | $350,640 | $0 | $598,653 | $598,653 |
| 2020 | $241,428 | $350,640 | $0 | $592,068 | $592,068 |
| 2019 | $148,637 | $350,640 | $0 | $499,277 | $499,277 |
| 2018 | $149,152 | $300,640 | $0 | $449,792 | $449,792 |
| 2017 | $150,170 | $250,640 | $0 | $400,810 | $400,810 |
| 2016 | $152,228 | $250,640 | $0 | $402,868 | $402,868 |
| 2015 | $154,284 | $250,640 | $0 | $404,924 | $404,924 |
| 2014 | $156,341 | $250,640 | $0 | $406,981 | $406,981 |
| 2013 | $160,890 | $204,521 | $0 | $365,411 | $365,411 |
| 2012 | $162,981 | $204,521 | $0 | $367,502 | $367,502 |
| 2011 | $165,069 | $204,521 | $0 | $369,590 | $369,590 |
| 2010 | $174,368 | $204,521 | $0 | $378,889 | $378,889 |
| 2009 | $179,783 | $272,481 | $0 | $452,264 | $452,264 |
| 2008 | $182,027 | $272,481 | $0 | $454,508 | $454,508 |
| 2007 | $184,088 | $172,243 | $0 | $356,331 | $356,331 |
Deed and Sales History
| 1 | 02/04/2020 | TOD | Transfer On Death Deed | HENDRICSON, MILDRED M | HENDRICSON, SHIRLEY | | | $0.00 | 42096 | 4419839 |
| 2 | 09/22/2004 | WD | Warranty Deed | QUINN, JOSEPH P | HENDRICSON, MILDRED M | | | $400,000.00 | 44556 | 4114135 |
| 3 | 12/01/1987 | WD | Warranty Deed | THOMPSON, HARRY L | QUINN, JOSEPH P | | | $43,000.00 | 73924 | 87017055 |
| 4 | 01/01/1900 | OTHER | Other - Misc. Documents | Unknown | THOMPSON, HARRY L | | | $0.00 | 0 | 0 |
Payout Agreement
| No payout information available.. |