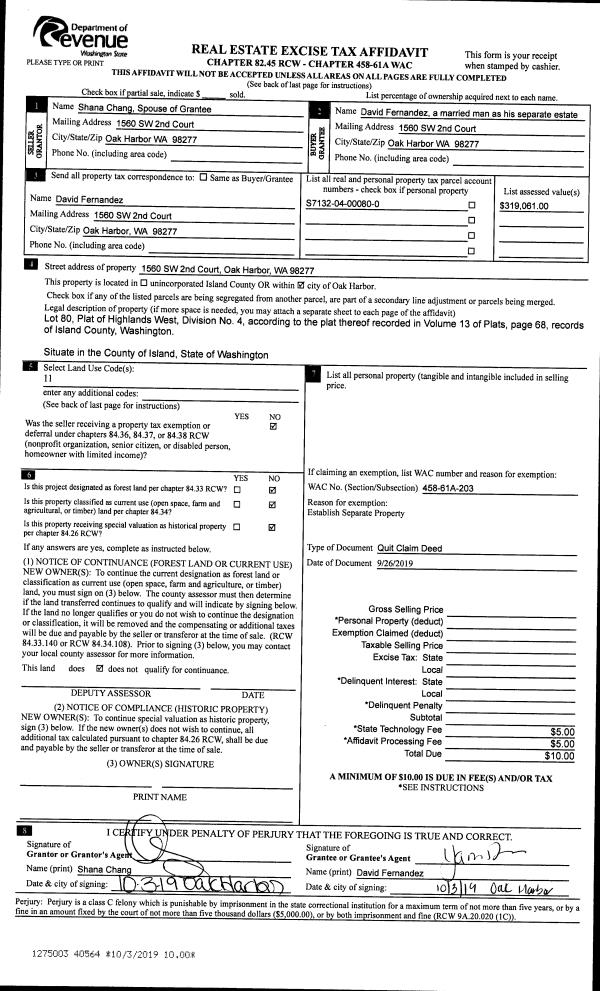
Property
Account |
| Property ID: | 291482 | Abbreviated Legal Description: | LAGOON PT LOT 5 BLK 3 |
| Geographic ID: | S7310-00-03005-2 | Agent Code: | |
| Type: | Real | | |
| Tax Area: | 320 - APPRAISER-Cpvl Schl Dist, Special Dist, improved & less than 1 acre | Land Use Code | 11 |
| Open Space: | N | DFL | N |
| Historic Property: | N | Remodel Property: | N |
| Multi-Family Redevelopment: | N | | |
| Township: | | Section: | |
| Range: | |
Location |
| Address: | 3606 SMUGGLERS COVE RD GREENBANK, WA 98253 | Mapsco: | |
| Neighborhood: | Cycle 3 | Map ID: | 394 |
| Neighborhood CD: | 3 |
Owner |
| Name: | HAMMER, CHARLES | Owner ID: | 54445 |
| Mailing Address: | SANDRA DUNCAN PARTNERSHIP 105 SALMON ST GREENBANK, WA 98253-9790 | % Ownership: | 100.0000000000% |
| | | Exemptions: | |
Taxes and Assessment Details
Values
| (+) Improvement Homesite Value: | + | $0 | |
| (+) Improvement Non-Homesite Value: | + | $45,000 | |
| (+) Land Homesite Value: | + | $0 | |
| (+) Land Non-Homesite Value: | + | $70,000 | |
| (+) Curr Use (HS): | + | $0 | $0 |
| (+) Curr Use (NHS): | + | $0 | $0 |
| | | -------------------------- | |
| (=) Market Value: | = | $115,000 | |
| (–) Productivity Loss: | – | $0 | |
| | | -------------------------- | |
| (=) Subtotal: | = | $115,000 | |
| (+) Senior Appraised Value: | + | $0 | |
| (+) Non-Senior Appraised Value: | + | $115,000 | |
| | | -------------------------- | |
| (=) Total Appraised Value: | = | $115,000 | |
| (–) Senior Exemption Loss: | – | $0 | |
| (–) Exemption Loss: | – | $0 | |
| | | -------------------------- | |
| (=) Taxable Value: | = | $115,000 | |
Taxing Jurisdiction
| Owner: | HAMMER, CHARLES | | |
| % Ownership: | 100.0000000000% | | |
| Total Value: | $115,000 | | |
| Tax Area: | 320 - APPRAISER-Cpvl Schl Dist, Special Dist, improved & less than 1 acre |
| CF | Conservation Futures | 0.0316035091 | $115,000 | $115,000 | $3.63 | | |
| CEM2 | Cemetery #2 | 0.0095056933 | $115,000 | $115,000 | $1.09 | | |
| FIRE5 | Fire & Rescue Dist #5 C Whidbey GEN | 1.2008080668 | $115,000 | $115,000 | $138.09 | | |
| FIRE5BOND | Fire & Rescue Dist #5 C Whidbey BOND | 0.1400090713 | $115,000 | $115,000 | $16.10 | | |
| HOBOND | Hospital BOND | 0.1910887512 | $115,000 | $115,000 | $21.98 | | |
| HOGEN | Hospital GEN | 0.3902502903 | $115,000 | $115,000 | $44.88 | | |
| CE | County Current Expense | 0.3708482477 | $115,000 | $115,000 | $42.65 | | |
| CR | County Roads | 0.4584763726 | $115,000 | $115,000 | $52.72 | | |
| ISLANDEMS | Hospital GEN (EMS) | 0.5000000000 | $115,000 | $115,000 | $57.50 | | |
| LIB | Library Sno-Isle GEN | 0.3153421757 | $115,000 | $115,000 | $36.26 | | |
| LIBCAP | Library Sno-Isle BOND (Cap Fac Imp Area) | 0.0543427938 | $115,000 | $115,000 | $6.25 | | |
| POCOUP | Port of Coupeville GEN | 0.1093371703 | $115,000 | $115,000 | $12.57 | | |
| POCOUPIDD | Port of Coupeville IDD | 0.3409740022 | $115,000 | $115,000 | $39.21 | | |
| COUPSDTECH | School 204 CP (TECH) | 0.7545480007 | $115,000 | $115,000 | $86.77 | | |
| SCH204MO | School 204 Enrichment | 0.6716186034 | $115,000 | $115,000 | $77.24 | | |
| ST | State School | 1.3035497053 | $115,000 | $115,000 | $149.91 | | |
| ST2 | State School Part 2 | 0.8169543533 | $115,000 | $115,000 | $93.95 | | |
| | Total Tax Rate: | 7.6592568070 | | | | | |
| | | | | Taxes w/Current Exemptions: | $880.80 | | |
| | | | | Taxes w/o Exemptions: | $880.80 | | |
Improvement / Building
| Improvement #1: | RESIDENTIAL | State Code: | Y | 0.0 sqft | Value: | $45,000 |
Sketch
Property Image
Land
| 1 | 13 | SQ (06001-08000) | 0.0000 | 0.00 | 0.00 | 0.00 | 1.00 | $70,000 | $0 |
Roll Value History
| 2026 | N/A | N/A | N/A | N/A | N/A |
| 2025 | $45,000 | $70,000 | $0 | $115,000 | $115,000 |
| 2024 | $45,000 | $70,000 | $0 | $115,000 | $115,000 |
| 2023 | $45,000 | $70,000 | $0 | $115,000 | $115,000 |
| 2022 | $45,000 | $70,000 | $0 | $115,000 | $115,000 |
| 2021 | $45,000 | $70,000 | $0 | $115,000 | $115,000 |
| 2020 | $45,000 | $70,000 | $0 | $115,000 | $115,000 |
| 2019 | $31,326 | $180,000 | $0 | $211,326 | $211,326 |
| 2018 | $31,328 | $150,000 | $0 | $181,328 | $181,328 |
| 2017 | $31,330 | $120,000 | $0 | $151,330 | $151,330 |
| 2016 | $31,336 | $90,000 | $0 | $121,336 | $121,336 |
| 2015 | $31,342 | $90,000 | $0 | $121,342 | $121,342 |
| 2014 | $31,348 | $85,000 | $0 | $116,348 | $116,348 |
| 2013 | $31,353 | $85,000 | $0 | $116,353 | $116,353 |
| 2012 | $31,359 | $76,500 | $0 | $107,859 | $107,859 |
| 2011 | $31,365 | $90,000 | $0 | $121,365 | $121,365 |
| 2010 | $30,986 | $90,000 | $0 | $120,986 | $120,986 |
| 2009 | $30,986 | $90,000 | $0 | $120,986 | $120,986 |
| 2008 | $30,986 | $95,000 | $0 | $125,986 | $125,986 |
| 2007 | $30,986 | $85,000 | $0 | $115,986 | $115,986 |
Deed and Sales History
| 1 | 02/05/2001 | QCD | Quit Claim Deed | HAMMER, CHARLES | HAMMER, CHARLES | | | $0.00 | 10410 | 20025035 |
| 2 | 01/02/2001 | WD | Warranty Deed | BARNETT, NORMAN R | HAMMER, CHARLES | | | $55,000.00 | 10012 | 20022741 |
| 3 | 06/01/2000 | WD | Warranty Deed | ISLAND, COUNTY F | BARNETT, NORMAN R | | | $32,667.00 | 2293 | 20010925 |
| 4 | 03/01/1984 | OTHER | Other - Misc. Documents | Unknown | ISLAND, COUNTY F | | | $0.00 | 60432 | 0 |
Payout Agreement
| No payout information available.. |