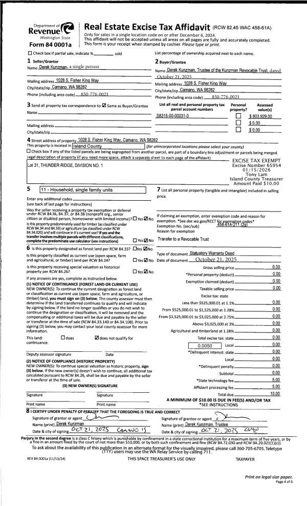
Property
Account |
| Property ID: | 292347 | Abbreviated Legal Description: | LAGOON PT LOT 7 BLK 6 INCL ADJ TIDES |
| Geographic ID: | S7310-00-06007-0 | Agent Code: | |
| Type: | Real | | |
| Tax Area: | 320 - APPRAISER-Cpvl Schl Dist, Special Dist, improved & less than 1 acre | Land Use Code | 11 |
| Open Space: | N | DFL | N |
| Historic Property: | N | Remodel Property: | N |
| Multi-Family Redevelopment: | N | | |
| Township: | | Section: | |
| Range: | |
Location |
| Address: | 3540 SEASHORE AVE GREENBANK, WA 98253 | Mapsco: | |
| Neighborhood: | Cycle 3 | Map ID: | 388 |
| Neighborhood CD: | 3 |
Owner |
| Name: | WEINBERG TRUSTEE, THOMAS LANGSTON | Owner ID: | 273912 |
| Mailing Address: | ALISON ANNE WEINBERG TRUSTEE 7015 LAKEWOOD BLVD DALLAS, TX 75215 | % Ownership: | 100.0000000000% |
| | | Exemptions: | |
Taxes and Assessment Details
Values
| (+) Improvement Homesite Value: | + | $0 | |
| (+) Improvement Non-Homesite Value: | + | $631,806 | |
| (+) Land Homesite Value: | + | $0 | |
| (+) Land Non-Homesite Value: | + | $690,600 | |
| (+) Curr Use (HS): | + | $0 | $0 |
| (+) Curr Use (NHS): | + | $0 | $0 |
| | | -------------------------- | |
| (=) Market Value: | = | $1,322,406 | |
| (–) Productivity Loss: | – | $0 | |
| | | -------------------------- | |
| (=) Subtotal: | = | $1,322,406 | |
| (+) Senior Appraised Value: | + | $0 | |
| (+) Non-Senior Appraised Value: | + | $1,322,406 | |
| | | -------------------------- | |
| (=) Total Appraised Value: | = | $1,322,406 | |
| (–) Senior Exemption Loss: | – | $0 | |
| (–) Exemption Loss: | – | $0 | |
| | | -------------------------- | |
| (=) Taxable Value: | = | $1,322,406 | |
Taxing Jurisdiction
| Owner: | WEINBERG TRUSTEE, THOMAS LANGSTON | | |
| % Ownership: | 100.0000000000% | | |
| Total Value: | $1,322,406 | | |
| Tax Area: | 320 - APPRAISER-Cpvl Schl Dist, Special Dist, improved & less than 1 acre |
| CF | Conservation Futures | 0.0316035091 | $1,322,406 | $1,322,406 | $41.79 | | |
| CEM2 | Cemetery #2 | 0.0095056933 | $1,322,406 | $1,322,406 | $12.57 | | |
| FIRE5 | Fire & Rescue Dist #5 C Whidbey GEN | 1.2008080668 | $1,322,406 | $1,322,406 | $1,587.96 | | |
| FIRE5BOND | Fire & Rescue Dist #5 C Whidbey BOND | 0.1400090713 | $1,322,406 | $1,322,406 | $185.15 | | |
| HOBOND | Hospital BOND | 0.1910887512 | $1,322,406 | $1,322,406 | $252.70 | | |
| HOGEN | Hospital GEN | 0.3902502903 | $1,322,406 | $1,322,406 | $516.07 | | |
| CE | County Current Expense | 0.3708482477 | $1,322,406 | $1,322,406 | $490.41 | | |
| CR | County Roads | 0.4584763726 | $1,322,406 | $1,322,406 | $606.29 | | |
| ISLANDEMS | Hospital GEN (EMS) | 0.5000000000 | $1,322,406 | $1,322,406 | $661.20 | | |
| LIB | Library Sno-Isle GEN | 0.3153421757 | $1,322,406 | $1,322,406 | $417.01 | | |
| LIBCAP | Library Sno-Isle BOND (Cap Fac Imp Area) | 0.0543427938 | $1,322,406 | $1,322,406 | $71.86 | | |
| POCOUP | Port of Coupeville GEN | 0.1093371703 | $1,322,406 | $1,322,406 | $144.59 | | |
| POCOUPIDD | Port of Coupeville IDD | 0.3409740022 | $1,322,406 | $1,322,406 | $450.91 | | |
| COUPSDTECH | School 204 CP (TECH) | 0.7545480007 | $1,322,406 | $1,322,406 | $997.82 | | |
| SCH204MO | School 204 Enrichment | 0.6716186034 | $1,322,406 | $1,322,406 | $888.15 | | |
| ST | State School | 1.3035497053 | $1,322,406 | $1,322,406 | $1,723.82 | | |
| ST2 | State School Part 2 | 0.8169543533 | $1,322,406 | $1,322,406 | $1,080.35 | | |
| | Total Tax Rate: | 7.6592568070 | | | | | |
| | | | | Taxes w/Current Exemptions: | $10,128.65 | | |
| | | | | Taxes w/o Exemptions: | $10,128.65 | | |
Improvement / Building
| Improvement #1: | RESIDENTIAL | State Code: | Y | 2968.1 sqft | Value: | $631,806 |
| Bathrooms: | 3.5 | Bedrooms: | 3 | | Ceiling: | DRY WALL SPRAYED | Exterior Wall/Cover: | SHINGLE | | Floor Covering: | HARDWOOD/CARP 80-20 | Floor Structure: | WOOD W/SUBFLOOR | | Foundation: | CONCRETE | Heating: | FHA ELECTRIC | | Interior Finish: | DRYWALL PAINT | Plumbing Fixture Cnt: | 10 | | Roof Slope: | 3" IN 12" | Roof Structure/Cover: | CJ ALUMINIUM HEAVY |
|
| | Type | Description | Class CD | Sub Class CD | Year Built | Area |
| | BAS | BASE/MAIN FLOOR | 4 | 0 | 2021 | 1484.2 |
| | UPS | UPPER STORY | 4 | 0 | 2021 | 1483.9 |
| | DGR | DETACHED GARAGE | 4 | 0 | 2021 | 288.0 |
| | OWR | OPEN WOOD PORCH W/STEPS/ROOF | 4 | 0 | 2021 | 312.0 |
| | BAI | BALCONY IRON RAIL | 4 | 0 | 2021 | 208.0 |
| | OWC | OPEN WOOD PORCH W/STEPS/ROOF/C | 4 | 0 | 2021 | 160.0 |
Sketch
Property Image
Land
| 1 | LB | LOW BANK | 0.0000 | 0.00 | 60.00 | 0.00 | 1.00 | $690,000 | $0 |
| 2 | 55 | TIDES | 0.0000 | 0.00 | 60.00 | 0.00 | 1.00 | $600 | $0 |
Roll Value History
| 2026 | N/A | N/A | N/A | N/A | N/A |
| 2025 | $631,806 | $690,600 | $0 | $1,322,406 | $1,322,406 |
| 2024 | $636,827 | $690,600 | $0 | $1,327,427 | $1,327,427 |
| 2023 | $643,513 | $690,600 | $0 | $1,334,113 | $1,334,113 |
| 2022 | $533,955 | $500,600 | $0 | $1,034,555 | $1,034,555 |
| 2021 | $86,967 | $500,600 | $0 | $587,567 | $587,567 |
| 2020 | $4,000 | $500,600 | $0 | $504,600 | $504,600 |
| 2019 | $4,000 | $500,600 | $0 | $504,600 | $504,600 |
| 2018 | $4,000 | $500,600 | $0 | $504,600 | $504,600 |
| 2017 | $4,000 | $500,600 | $0 | $504,600 | $504,600 |
| 2016 | $4,000 | $500,600 | $0 | $504,600 | $504,600 |
| 2015 | $3,000 | $450,600 | $0 | $453,600 | $453,600 |
| 2014 | $3,000 | $500,600 | $0 | $503,600 | $503,600 |
| 2013 | $3,000 | $421,458 | $0 | $424,458 | $424,458 |
| 2012 | $3,000 | $421,458 | $0 | $424,458 | $424,458 |
| 2011 | $3,000 | $421,458 | $0 | $424,458 | $424,458 |
| 2010 | $3,000 | $421,458 | $0 | $424,458 | $424,458 |
| 2009 | $3,000 | $603,150 | $0 | $606,150 | $606,150 |
| 2008 | $3,000 | $556,800 | $0 | $559,800 | $559,800 |
| 2007 | $3,000 | $556,380 | $0 | $559,380 | $559,380 |
Deed and Sales History
| 1 | 02/25/2016 | WD | Warranty Deed | BURNINGHAM TRUSTEE, JAMES E | WEINBERG TRUSTEE, THOMAS LANGSTON | | | $545,000.00 | 23341 | 4395013 |
| 2 | 01/16/2007 | 5 | DNU - Marriage License/Name Change | BURNINGHAM, JAMES E | BURNINGHAM TTEE, JAMES E | | | $0.00 | 10932 | 4197180 |
| 3 | 09/08/2005 | WD | Warranty Deed | MARTINS, JOSE S | BURNINGHAM, JAMES E | | | $500,000.00 | 54533 | 4147214 |
| 4 | 08/01/1989 | WD | Warranty Deed | TIPPERY, MILES W | MARTINS, JOSE S | | | $124,000.00 | 93394 | 89011376 |
| 5 | 06/01/1982 | TRUSTEED | Trustee's Deed | MUELLER, MARIE L | TIPPERY, MILES W | | | $78,000.00 | 21585 | 398066 |
| 6 | 01/01/1900 | OTHER | Other - Misc. Documents | Unknown | MUELLER, MARIE L | | | $0.00 | 0 | 0 |
Payout Agreement
| No payout information available.. |