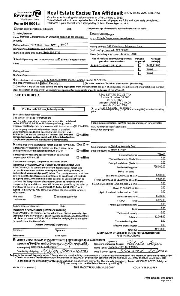
Property
Account |
| Property ID: | 292454 | Abbreviated Legal Description: | LAGOON PT LOT 18 BLK 6 INCL ADJ TIDES |
| Geographic ID: | S7310-00-06018-0 | Agent Code: | |
| Type: | Real | | |
| Tax Area: | 320 - APPRAISER-Cpvl Schl Dist, Special Dist, improved & less than 1 acre | Land Use Code | 11 |
| Open Space: | N | DFL | N |
| Historic Property: | N | Remodel Property: | N |
| Multi-Family Redevelopment: | N | | |
| Township: | | Section: | |
| Range: | |
Location |
| Address: | 3582 SEASHORE AVE GREENBANK, WA 98253 | Mapsco: | |
| Neighborhood: | Cycle 3 | Map ID: | 388 |
| Neighborhood CD: | 3 |
Owner |
| Name: | REX FAMILY LLC | Owner ID: | 302333 |
| Mailing Address: | 5150 NE LATIMER PL SEATTLE, WA 98105 | % Ownership: | 100.0000000000% |
| | | Exemptions: | |
Taxes and Assessment Details
Values
| (+) Improvement Homesite Value: | + | $0 | |
| (+) Improvement Non-Homesite Value: | + | $431,231 | |
| (+) Land Homesite Value: | + | $0 | |
| (+) Land Non-Homesite Value: | + | $690,600 | |
| (+) Curr Use (HS): | + | $0 | $0 |
| (+) Curr Use (NHS): | + | $0 | $0 |
| | | -------------------------- | |
| (=) Market Value: | = | $1,121,831 | |
| (–) Productivity Loss: | – | $0 | |
| | | -------------------------- | |
| (=) Subtotal: | = | $1,121,831 | |
| (+) Senior Appraised Value: | + | $0 | |
| (+) Non-Senior Appraised Value: | + | $1,121,831 | |
| | | -------------------------- | |
| (=) Total Appraised Value: | = | $1,121,831 | |
| (–) Senior Exemption Loss: | – | $0 | |
| (–) Exemption Loss: | – | $0 | |
| | | -------------------------- | |
| (=) Taxable Value: | = | $1,121,831 | |
Taxing Jurisdiction
| Owner: | REX FAMILY LLC | | |
| % Ownership: | 100.0000000000% | | |
| Total Value: | $1,121,831 | | |
| Tax Area: | 320 - APPRAISER-Cpvl Schl Dist, Special Dist, improved & less than 1 acre |
| CF | Conservation Futures | 0.0316035091 | $1,121,831 | $1,121,831 | $35.45 | | |
| CEM2 | Cemetery #2 | 0.0095056933 | $1,121,831 | $1,121,831 | $10.66 | | |
| FIRE5 | Fire & Rescue Dist #5 C Whidbey GEN | 1.2008080668 | $1,121,831 | $1,121,831 | $1,347.10 | | |
| FIRE5BOND | Fire & Rescue Dist #5 C Whidbey BOND | 0.1400090713 | $1,121,831 | $1,121,831 | $157.07 | | |
| HOBOND | Hospital BOND | 0.1910887512 | $1,121,831 | $1,121,831 | $214.37 | | |
| HOGEN | Hospital GEN | 0.3902502903 | $1,121,831 | $1,121,831 | $437.79 | | |
| CE | County Current Expense | 0.3708482477 | $1,121,831 | $1,121,831 | $416.03 | | |
| CR | County Roads | 0.4584763726 | $1,121,831 | $1,121,831 | $514.33 | | |
| ISLANDEMS | Hospital GEN (EMS) | 0.5000000000 | $1,121,831 | $1,121,831 | $560.92 | | |
| LIB | Library Sno-Isle GEN | 0.3153421757 | $1,121,831 | $1,121,831 | $353.76 | | |
| LIBCAP | Library Sno-Isle BOND (Cap Fac Imp Area) | 0.0543427938 | $1,121,831 | $1,121,831 | $60.96 | | |
| POCOUP | Port of Coupeville GEN | 0.1093371703 | $1,121,831 | $1,121,831 | $122.66 | | |
| POCOUPIDD | Port of Coupeville IDD | 0.3409740022 | $1,121,831 | $1,121,831 | $382.52 | | |
| COUPSDTECH | School 204 CP (TECH) | 0.7545480007 | $1,121,831 | $1,121,831 | $846.48 | | |
| SCH204MO | School 204 Enrichment | 0.6716186034 | $1,121,831 | $1,121,831 | $753.44 | | |
| ST | State School | 1.3035497053 | $1,121,831 | $1,121,831 | $1,462.36 | | |
| ST2 | State School Part 2 | 0.8169543533 | $1,121,831 | $1,121,831 | $916.48 | | |
| | Total Tax Rate: | 7.6592568070 | | | | | |
| | | | | Taxes w/Current Exemptions: | $8,592.38 | | |
| | | | | Taxes w/o Exemptions: | $8,592.38 | | |
Improvement / Building
| Improvement #1: | RESIDENTIAL | State Code: | Y | 2444.0 sqft | Value: | $431,231 |
| Bathrooms: | 3.5 | Bedrooms: | 4 | | Ceiling: | BEAM PAINTED | Cooling: | HEAT PUMP/CONV/V | | Exterior Wall/Cover: | WOOD SIDING | Floor Covering: | HARDWOOD/CARP 20-80 | | Floor Structure: | WOOD W/SUBFLOOR | Foundation: | CONCRETE | | Interior Finish: | DRYWALL PAINT | Plumbing Fixture Cnt: | 15 | | Roof Slope: | 12" IN 12" | Roof Structure/Cover: | CJ ASPHALT |
|
| | Type | Description | Class CD | Sub Class CD | Year Built | Area |
| | BAS | BASE/MAIN FLOOR | 4 | 0 | 1986 | 1547.0 |
| | DGR | DETACHED GARAGE | 4 | 0 | 1986 | 379.0 |
| | OWP | OPEN WOOD PORCH W/STEPS | 4 | 0 | 1986 | 45.2 |
| | OWP | OPEN WOOD PORCH W/STEPS | 4 | 0 | 1986 | 1374.0 |
| | UPS | UPPER STORY | 4 | 0 | 1986 | 897.0 |
Sketch
Property Image
Land
| 1 | LB | LOW BANK | 0.0000 | 0.00 | 60.00 | 0.00 | 1.00 | $690,000 | $0 |
| 2 | 55 | TIDES | 0.0000 | 0.00 | 60.00 | 0.00 | 1.00 | $600 | $0 |
Roll Value History
| 2026 | N/A | N/A | N/A | N/A | N/A |
| 2025 | $431,231 | $690,600 | $0 | $1,121,831 | $1,121,831 |
| 2024 | $430,692 | $690,600 | $0 | $1,121,292 | $1,121,292 |
| 2023 | $436,651 | $690,600 | $0 | $1,127,251 | $1,127,251 |
| 2022 | $400,802 | $660,600 | $0 | $1,061,402 | $1,061,402 |
| 2021 | $353,210 | $550,600 | $0 | $903,810 | $903,810 |
| 2020 | $344,440 | $550,600 | $0 | $895,040 | $895,040 |
| 2019 | $255,057 | $600,600 | $0 | $855,657 | $855,657 |
| 2018 | $126,491 | $500,600 | $0 | $627,091 | $627,091 |
| 2017 | $185,065 | $500,600 | $0 | $685,665 | $685,665 |
| 2016 | $187,707 | $500,600 | $0 | $688,307 | $688,307 |
| 2015 | $190,352 | $500,600 | $0 | $690,952 | $690,952 |
| 2014 | $192,995 | $500,600 | $0 | $693,595 | $693,595 |
| 2013 | $181,511 | $421,458 | $0 | $602,969 | $602,969 |
| 2012 | $184,016 | $421,458 | $0 | $605,474 | $605,474 |
| 2011 | $186,518 | $421,458 | $0 | $607,976 | $607,976 |
| 2010 | $196,262 | $421,458 | $0 | $617,720 | $617,720 |
| 2009 | $204,704 | $603,150 | $0 | $807,854 | $807,854 |
| 2008 | $214,942 | $556,800 | $0 | $771,742 | $771,742 |
| 2007 | $231,145 | $556,380 | $0 | $787,525 | $787,525 |
Deed and Sales History
| 1 | 10/15/2021 | WD | Warranty Deed | HALL TTEE, ANNE E | REX FAMILY LLC | | | $0.00 | 51299 | 4535788 |
| 2 | 04/23/2019 | WD | Warranty Deed | REX, WILLIAM J | HALL TTEE, ANNE E | | | $0.00 | 38120 | 4461596 |
Payout Agreement
| No payout information available.. |