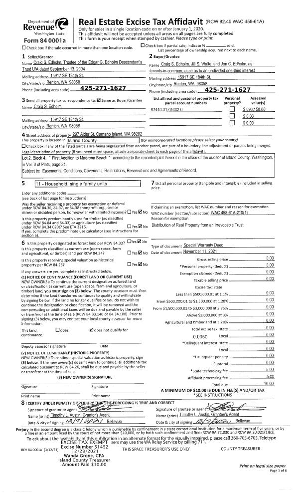
Property
Account |
| Property ID: | 292481 | Abbreviated Legal Description: | LAGOON PT LOT 21 BLK 6 |
| Geographic ID: | S7310-00-06021-0 | Agent Code: | |
| Type: | Real | | |
| Tax Area: | 320 - APPRAISER-Cpvl Schl Dist, Special Dist, improved & less than 1 acre | Land Use Code | 11 |
| Open Space: | N | DFL | N |
| Historic Property: | N | Remodel Property: | N |
| Multi-Family Redevelopment: | N | | |
| Township: | | Section: | |
| Range: | |
Location |
| Address: | 3594 SEASHORE AVE GREENBANK, WA 98253 | Mapsco: | |
| Neighborhood: | Cycle 3 | Map ID: | 388 |
| Neighborhood CD: | 3 |
Owner |
| Name: | SORENSEN, ORLIN | Owner ID: | 300764 |
| Mailing Address: | CARRIE SORENSEN 19014 171ST PL NE WOODINVILLE, WA 98072 | % Ownership: | 100.0000000000% |
| | | Exemptions: | |
Taxes and Assessment Details
Values
| (+) Improvement Homesite Value: | + | $0 | |
| (+) Improvement Non-Homesite Value: | + | $354,200 | |
| (+) Land Homesite Value: | + | $0 | |
| (+) Land Non-Homesite Value: | + | $690,600 | |
| (+) Curr Use (HS): | + | $0 | $0 |
| (+) Curr Use (NHS): | + | $0 | $0 |
| | | -------------------------- | |
| (=) Market Value: | = | $1,044,800 | |
| (–) Productivity Loss: | – | $0 | |
| | | -------------------------- | |
| (=) Subtotal: | = | $1,044,800 | |
| (+) Senior Appraised Value: | + | $0 | |
| (+) Non-Senior Appraised Value: | + | $1,044,800 | |
| | | -------------------------- | |
| (=) Total Appraised Value: | = | $1,044,800 | |
| (–) Senior Exemption Loss: | – | $0 | |
| (–) Exemption Loss: | – | $0 | |
| | | -------------------------- | |
| (=) Taxable Value: | = | $1,044,800 | |
Taxing Jurisdiction
| Owner: | SORENSEN, ORLIN | | |
| % Ownership: | 100.0000000000% | | |
| Total Value: | $1,044,800 | | |
| Tax Area: | 320 - APPRAISER-Cpvl Schl Dist, Special Dist, improved & less than 1 acre |
| CF | Conservation Futures | 0.0316035091 | $1,044,800 | $1,044,800 | $33.02 | | |
| CEM2 | Cemetery #2 | 0.0095056933 | $1,044,800 | $1,044,800 | $9.93 | | |
| FIRE5 | Fire & Rescue Dist #5 C Whidbey GEN | 1.2008080668 | $1,044,800 | $1,044,800 | $1,254.60 | | |
| FIRE5BOND | Fire & Rescue Dist #5 C Whidbey BOND | 0.1400090713 | $1,044,800 | $1,044,800 | $146.28 | | |
| HOBOND | Hospital BOND | 0.1910887512 | $1,044,800 | $1,044,800 | $199.65 | | |
| HOGEN | Hospital GEN | 0.3902502903 | $1,044,800 | $1,044,800 | $407.73 | | |
| CE | County Current Expense | 0.3708482477 | $1,044,800 | $1,044,800 | $387.46 | | |
| CR | County Roads | 0.4584763726 | $1,044,800 | $1,044,800 | $479.02 | | |
| ISLANDEMS | Hospital GEN (EMS) | 0.5000000000 | $1,044,800 | $1,044,800 | $522.40 | | |
| LIB | Library Sno-Isle GEN | 0.3153421757 | $1,044,800 | $1,044,800 | $329.47 | | |
| LIBCAP | Library Sno-Isle BOND (Cap Fac Imp Area) | 0.0543427938 | $1,044,800 | $1,044,800 | $56.78 | | |
| POCOUP | Port of Coupeville GEN | 0.1093371703 | $1,044,800 | $1,044,800 | $114.24 | | |
| POCOUPIDD | Port of Coupeville IDD | 0.3409740022 | $1,044,800 | $1,044,800 | $356.25 | | |
| COUPSDTECH | School 204 CP (TECH) | 0.7545480007 | $1,044,800 | $1,044,800 | $788.35 | | |
| SCH204MO | School 204 Enrichment | 0.6716186034 | $1,044,800 | $1,044,800 | $701.71 | | |
| ST | State School | 1.3035497053 | $1,044,800 | $1,044,800 | $1,361.95 | | |
| ST2 | State School Part 2 | 0.8169543533 | $1,044,800 | $1,044,800 | $853.55 | | |
| | Total Tax Rate: | 7.6592568070 | | | | | |
| | | | | Taxes w/Current Exemptions: | $8,002.39 | | |
| | | | | Taxes w/o Exemptions: | $8,002.39 | | |
Improvement / Building
| Improvement #1: | RESIDENTIAL | State Code: | Y | 2119.0 sqft | Value: | $354,200 |
| Bathrooms: | 3 | Bedrooms: | 2 | | Ceiling: | DRYWALL PAINTED | Exterior Wall/Cover: | WOOD SIDING | | Floor Covering: | CARPET/VINYL 80-20 | Floor Structure: | WOOD W/SUBFLOOR | | Foundation: | CONCRETE | Heating: | BASEBOARD ELECTRIC | | Interior Finish: | DRYWALL PAINT | Plumbing Fixture Cnt: | 13 | | Roof Slope: | 4" IN 12" | Roof Structure/Cover: | CJ ALUMINIUM HEAVY |
|
| | Type | Description | Class CD | Sub Class CD | Year Built | Area |
| | BAS | BASE/MAIN FLOOR | 4 | 0 | 1956 | 1313.0 |
| | BIG | BUILT IN GARAGE | 4 | 0 | 1956 | 338.0 |
| | BIG | BUILT IN GARAGE | 4 | 0 | 1956 | 338.0 |
| | UPS | UPPER STORY | 4 | 0 | 1956 | 806.0 |
| | OWP | OPEN WOOD PORCH W/STEPS | 4 | 0 | 1956 | 345.0 |
| | OWP | OPEN WOOD PORCH W/STEPS | 4 | 0 | 1956 | 24.0 |
| | CPD | OPEN CARPORT DIRT FLOOR | 4 | 0 | 1956 | 130.0 |
Sketch
Property Image
Land
| 1 | LB | LOW BANK | 0.0000 | 0.00 | 55.00 | 0.00 | 1.00 | $690,000 | $0 |
| 2 | 55 | TIDES | 0.0000 | 0.00 | 60.00 | 0.00 | 1.00 | $600 | $0 |
Roll Value History
| 2026 | N/A | N/A | N/A | N/A | N/A |
| 2025 | $354,200 | $690,600 | $0 | $1,044,800 | $1,044,800 |
| 2024 | $366,043 | $690,600 | $0 | $1,056,643 | $1,056,643 |
| 2023 | $371,108 | $690,600 | $0 | $1,061,708 | $1,061,708 |
| 2022 | $340,644 | $660,600 | $0 | $1,001,244 | $1,001,244 |
| 2021 | $218,894 | $550,600 | $0 | $769,494 | $769,494 |
| 2020 | $214,309 | $550,600 | $0 | $764,909 | $764,909 |
| 2019 | $164,522 | $600,600 | $0 | $765,122 | $765,122 |
| 2018 | $165,125 | $500,600 | $0 | $665,725 | $227,450 |
| 2017 | $166,328 | $500,600 | $0 | $666,928 | $227,450 |
| 2016 | $168,740 | $500,600 | $0 | $669,340 | $227,450 |
| 2015 | $171,149 | $500,600 | $0 | $671,749 | $227,450 |
| 2014 | $173,560 | $500,600 | $0 | $674,160 | $227,450 |
| 2013 | $175,972 | $390,244 | $0 | $566,216 | $226,486 |
| 2012 | $178,381 | $390,244 | $0 | $568,625 | $227,450 |
| 2011 | $180,795 | $390,244 | $0 | $571,039 | $571,039 |
| 2010 | $191,194 | $390,244 | $0 | $581,438 | $581,438 |
| 2009 | $199,444 | $558,461 | $0 | $757,905 | $757,905 |
| 2008 | $201,982 | $515,549 | $0 | $717,531 | $717,531 |
| 2007 | $190,616 | $515,129 | $0 | $705,745 | $705,745 |
Deed and Sales History
| 1 | 08/17/2021 | WD | Warranty Deed | BRENT, JENNIFER E | SORENSEN, ORLIN | | | $1,200,000.00 | 49692 | 4527214 |
| 2 | 06/20/2018 | QCD | Quit Claim Deed | BRENT, JENNIFER E | BRENT, JENNIFER E | | | $0.00 | 34715 | 4446940 |
| 3 | 11/20/2017 | QCD | Quit Claim Deed | BRENT, JENNIFER E | BRENT, JENNIFER E | | | $0.00 | 34163 | 4444724 |
| 4 | 02/07/2001 | QCD | Quit Claim Deed | BRENT, JENNIFER E | BRENT, JENNIFER E | | | $0.00 | 10458 | 20025386 |
| 5 | 10/01/1987 | WD | Warranty Deed | BENTLER, BILLY J | BRENT, JENNIFER E | | | $110,000.00 | 73557 | 87015510 |
| 6 | 04/01/1987 | OTHER | Other - Misc. Documents | MAPLES, WAYNE D | BENTLER, BILLY J | | | $0.00 | 62122 | 0 |
| 7 | 05/01/1983 | TTAXD | Treasurer's Tax Deed | BENTLER, BILLY J | MAPLES, WAYNE D | | | $0.00 | 60025 | 409540 |
| 8 | 01/01/1900 | OTHER | Other - Misc. Documents | Unknown | BENTLER, BILLY J | | | $0.00 | 0 | 0 |
Payout Agreement
| No payout information available.. |