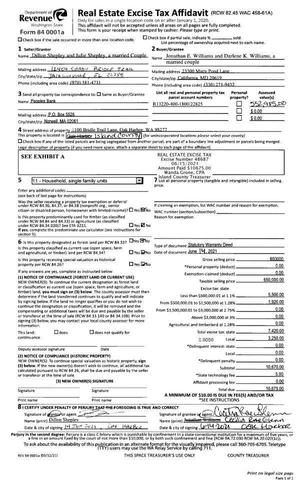
Property
Account |
| Property ID: | 292855 | Abbreviated Legal Description: | LAGOON PT LOT 7 BLK 8 |
| Geographic ID: | S7310-00-08007-0 | Agent Code: | |
| Type: | Real | | |
| Tax Area: | 320 - APPRAISER-Cpvl Schl Dist, Special Dist, improved & less than 1 acre | Land Use Code | 11 |
| Open Space: | N | DFL | N |
| Historic Property: | N | Remodel Property: | N |
| Multi-Family Redevelopment: | N | | |
| Township: | | Section: | |
| Range: | |
Location |
| Address: | 3670 SMUGGLERS COVE RD GREENBANK, WA 98253 | Mapsco: | |
| Neighborhood: | Cycle 3 | Map ID: | 394 |
| Neighborhood CD: | 3 |
Owner |
| Name: | GALLANT, NATHAN JORDAN JAMES | Owner ID: | 315862 |
| Mailing Address: | BETHANY ROSE PRATT 3670 SMUGGLERS COVE RD GREENBANK, WA 98253 | % Ownership: | 100.0000000000% |
| | | Exemptions: | |
Taxes and Assessment Details
Values
| (+) Improvement Homesite Value: | + | $0 | |
| (+) Improvement Non-Homesite Value: | + | $101,090 | |
| (+) Land Homesite Value: | + | $0 | |
| (+) Land Non-Homesite Value: | + | $220,000 | |
| (+) Curr Use (HS): | + | $0 | $0 |
| (+) Curr Use (NHS): | + | $0 | $0 |
| | | -------------------------- | |
| (=) Market Value: | = | $321,090 | |
| (–) Productivity Loss: | – | $0 | |
| | | -------------------------- | |
| (=) Subtotal: | = | $321,090 | |
| (+) Senior Appraised Value: | + | $0 | |
| (+) Non-Senior Appraised Value: | + | $321,090 | |
| | | -------------------------- | |
| (=) Total Appraised Value: | = | $321,090 | |
| (–) Senior Exemption Loss: | – | $0 | |
| (–) Exemption Loss: | – | $0 | |
| | | -------------------------- | |
| (=) Taxable Value: | = | $321,090 | |
Taxing Jurisdiction
| Owner: | GALLANT, NATHAN JORDAN JAMES | | |
| % Ownership: | 100.0000000000% | | |
| Total Value: | $321,090 | | |
| Tax Area: | 320 - APPRAISER-Cpvl Schl Dist, Special Dist, improved & less than 1 acre |
| CF | Conservation Futures | 0.0316035091 | $321,090 | $321,090 | $10.15 | | |
| CEM2 | Cemetery #2 | 0.0095056933 | $321,090 | $321,090 | $3.05 | | |
| FIRE5 | Fire & Rescue Dist #5 C Whidbey GEN | 1.2008080668 | $321,090 | $321,090 | $385.57 | | |
| FIRE5BOND | Fire & Rescue Dist #5 C Whidbey BOND | 0.1400090713 | $321,090 | $321,090 | $44.96 | | |
| HOBOND | Hospital BOND | 0.1910887512 | $321,090 | $321,090 | $61.36 | | |
| HOGEN | Hospital GEN | 0.3902502903 | $321,090 | $321,090 | $125.31 | | |
| CE | County Current Expense | 0.3708482477 | $321,090 | $321,090 | $119.08 | | |
| CR | County Roads | 0.4584763726 | $321,090 | $321,090 | $147.21 | | |
| ISLANDEMS | Hospital GEN (EMS) | 0.5000000000 | $321,090 | $321,090 | $160.55 | | |
| LIB | Library Sno-Isle GEN | 0.3153421757 | $321,090 | $321,090 | $101.25 | | |
| LIBCAP | Library Sno-Isle BOND (Cap Fac Imp Area) | 0.0543427938 | $321,090 | $321,090 | $17.45 | | |
| POCOUP | Port of Coupeville GEN | 0.1093371703 | $321,090 | $321,090 | $35.11 | | |
| POCOUPIDD | Port of Coupeville IDD | 0.3409740022 | $321,090 | $321,090 | $109.48 | | |
| COUPSDTECH | School 204 CP (TECH) | 0.7545480007 | $321,090 | $321,090 | $242.28 | | |
| SCH204MO | School 204 Enrichment | 0.6716186034 | $321,090 | $321,090 | $215.65 | | |
| ST | State School | 1.3035497053 | $321,090 | $321,090 | $418.56 | | |
| ST2 | State School Part 2 | 0.8169543533 | $321,090 | $321,090 | $262.32 | | |
| | Total Tax Rate: | 7.6592568070 | | | | | |
| | | | | Taxes w/Current Exemptions: | $2,459.34 | | |
| | | | | Taxes w/o Exemptions: | $2,459.34 | | |
Improvement / Building
| Improvement #1: | MANUFACTURED HOME | State Code: | Y | 1296.0 sqft | Value: | $101,090 |
| Bathrooms: | 2 | Bedrooms: | 3 | | Ceiling: | PLASTER PAINTED | Cooling: | EVAP NO DUCT | | Exterior Wall/Cover: | VINYL | Floor Covering: | CARPET 100% | | Floor Structure: | SLAB ON GRADE | Foundation: | SLAB | | Heating: | FHA ELECTRIC | Interior Finish: | PLASTER | | Plumbing Fixture Cnt: | 1 | Roof Slope: | FLAT | | Roof Structure/Cover: | CJ ALUMINIUM HEAVY |   |   |
|
| | Type | Description | Class CD | Sub Class CD | Year Built | Area |
| | BAS | BASE/MAIN FLOOR | 4 | 0 | 2001 | 1296.0 |
| | OWP | OPEN WOOD PORCH W/STEPS | 4 | 0 | 2001 | 144.0 |
| | UTY | STORAGE/UTILITY | 4 | 0 | 2001 | 120.0 |
Sketch
Property Image
Land
| 1 | 14 | SQ (08001-12000) | 0.0000 | 0.00 | 0.00 | 0.00 | 1.00 | $220,000 | $0 |
Roll Value History
| 2026 | N/A | N/A | N/A | N/A | N/A |
| 2025 | $101,090 | $220,000 | $0 | $321,090 | $321,090 |
| 2024 | $104,064 | $240,000 | $0 | $344,064 | $344,064 |
| 2023 | $93,074 | $240,000 | $0 | $333,074 | $333,074 |
| 2022 | $85,452 | $240,000 | $0 | $325,452 | $325,452 |
| 2021 | $71,248 | $140,000 | $0 | $211,248 | $211,248 |
| 2020 | $71,148 | $115,000 | $0 | $186,148 | $186,148 |
| 2019 | $59,171 | $180,000 | $0 | $239,171 | $239,171 |
| 2018 | $60,680 | $150,000 | $0 | $210,680 | $25,765 |
| 2017 | $62,189 | $120,000 | $0 | $182,189 | $25,765 |
| 2016 | $63,698 | $90,000 | $0 | $153,698 | $25,765 |
| 2015 | $65,207 | $90,000 | $0 | $155,207 | $25,765 |
| 2014 | $66,716 | $85,000 | $0 | $151,716 | $151,716 |
| 2013 | $69,263 | $85,000 | $0 | $154,263 | $25,766 |
| 2012 | $69,977 | $85,000 | $0 | $154,977 | $25,766 |
| 2011 | $70,691 | $100,000 | $0 | $170,691 | $25,766 |
| 2010 | $69,817 | $100,000 | $0 | $169,817 | $25,766 |
| 2009 | $73,540 | $150,000 | $0 | $223,540 | $35,766 |
| 2008 | $75,349 | $84,968 | $0 | $160,317 | $25,765 |
| 2007 | $75,095 | $84,682 | $0 | $159,777 | $25,765 |
Deed and Sales History
| 1 | 03/19/2025 | WD | Warranty Deed | BOOTH, JAMES DORSET | GALLANT, NATHAN JORDAN JAMES | | | $425,000.00 | 62869 | 4583461 |
| 2 | 01/15/2021 | WD | Warranty Deed | NOVELLI, DOLPHINA R | BOOTH, JAMES DORSET | | | $318,400.00 | 46659 | 4508803 |
| 3 | 04/29/2016 | QCD | Quit Claim Deed | NOVELLI LE, DOLPHINA R | NOVELLI, DOLPHINA R | | | $0.00 | 24083 | 4398406 |
| 4 | 10/24/2005 | QCD | Quit Claim Deed | NOVELLI, DOLPHINA R | NOVELLI LE, DOLPHINA R | | | $0.00 | 55370 | 4151961 |
| 5 | 01/01/1995 | WD | Warranty Deed | HUNT, JOHN R | NOVELLI, DOLPHINA R | | | $30,000.00 | 50044 | 95000212 |
| 6 | 12/01/1986 | TRUSTEED | Trustee's Deed | CORTEZ, HERMAN | HUNT, JOHN R | | | $0.00 | 63755 | 86016700 |
| 7 | 08/01/1982 | QCD | Quit Claim Deed | CORTEZ, HERMAN | CORTEZ, HERMAN | | | $0.00 | 32050 | 412510 |
| 8 | 06/01/1980 | TRUSTEED | Trustee's Deed | EDGEKOSKI, HELEN D | CORTEZ, HERMAN | | | $9,075.00 | 2109 | 370303 |
| 9 | 01/01/1900 | OTHER | Other - Misc. Documents | Unknown | EDGEKOSKI, HELEN D | | | $0.00 | 0 | 0 |
Payout Agreement
| No payout information available.. |