Property
Account |
| Property ID: | 293275 | Abbreviated Legal Description: | LAGOON PT LOT 23 & NLY 5'LOT 22 BLK 9 TGW EZ AF#94023905 |
| Geographic ID: | S7310-00-09023-0 | Agent Code: | |
| Type: | Real | | |
| Tax Area: | 320 - APPRAISER-Cpvl Schl Dist, Special Dist, improved & less than 1 acre | Land Use Code | 11 |
| Open Space: | N | DFL | N |
| Historic Property: | N | Remodel Property: | N |
| Multi-Family Redevelopment: | N | | |
| Township: | | Section: | |
| Range: | |
Location |
| Address: | 3589 SHOREWOOD AVE GREENBANK, WA 98253 | Mapsco: | |
| Neighborhood: | Cycle 3 | Map ID: | 388 |
| Neighborhood CD: | 3 |
Owner |
| Name: | PETERSON, JESSE | Owner ID: | 284153 |
| Mailing Address: | JAMIE PETERSON 2120 W MUKILTEO BLVD EVERETT, WA 98203 | % Ownership: | 100.0000000000% |
| | | Exemptions: | |
Taxes and Assessment Details
Values
| (+) Improvement Homesite Value: | + | $0 | |
| (+) Improvement Non-Homesite Value: | + | $144,379 | |
| (+) Land Homesite Value: | + | $0 | |
| (+) Land Non-Homesite Value: | + | $370,000 | |
| (+) Curr Use (HS): | + | $0 | $0 |
| (+) Curr Use (NHS): | + | $0 | $0 |
| | | -------------------------- | |
| (=) Market Value: | = | $514,379 | |
| (–) Productivity Loss: | – | $0 | |
| | | -------------------------- | |
| (=) Subtotal: | = | $514,379 | |
| (+) Senior Appraised Value: | + | $0 | |
| (+) Non-Senior Appraised Value: | + | $514,379 | |
| | | -------------------------- | |
| (=) Total Appraised Value: | = | $514,379 | |
| (–) Senior Exemption Loss: | – | $0 | |
| (–) Exemption Loss: | – | $0 | |
| | | -------------------------- | |
| (=) Taxable Value: | = | $514,379 | |
Taxing Jurisdiction
| Owner: | PETERSON, JESSE | | |
| % Ownership: | 100.0000000000% | | |
| Total Value: | $514,379 | | |
| Tax Area: | 320 - APPRAISER-Cpvl Schl Dist, Special Dist, improved & less than 1 acre |
| CF | Conservation Futures | 0.0316035091 | $514,379 | $514,379 | $16.26 | | |
| CEM2 | Cemetery #2 | 0.0095056933 | $514,379 | $514,379 | $4.89 | | |
| FIRE5 | Fire & Rescue Dist #5 C Whidbey GEN | 1.2008080668 | $514,379 | $514,379 | $617.67 | | |
| FIRE5BOND | Fire & Rescue Dist #5 C Whidbey BOND | 0.1400090713 | $514,379 | $514,379 | $72.02 | | |
| HOBOND | Hospital BOND | 0.1910887512 | $514,379 | $514,379 | $98.29 | | |
| HOGEN | Hospital GEN | 0.3902502903 | $514,379 | $514,379 | $200.74 | | |
| CE | County Current Expense | 0.3708482477 | $514,379 | $514,379 | $190.76 | | |
| CR | County Roads | 0.4584763726 | $514,379 | $514,379 | $235.83 | | |
| ISLANDEMS | Hospital GEN (EMS) | 0.5000000000 | $514,379 | $514,379 | $257.19 | | |
| LIB | Library Sno-Isle GEN | 0.3153421757 | $514,379 | $514,379 | $162.21 | | |
| LIBCAP | Library Sno-Isle BOND (Cap Fac Imp Area) | 0.0543427938 | $514,379 | $514,379 | $27.95 | | |
| POCOUP | Port of Coupeville GEN | 0.1093371703 | $514,379 | $514,379 | $56.24 | | |
| POCOUPIDD | Port of Coupeville IDD | 0.3409740022 | $514,379 | $514,379 | $175.39 | | |
| COUPSDTECH | School 204 CP (TECH) | 0.7545480007 | $514,379 | $514,379 | $388.12 | | |
| SCH204MO | School 204 Enrichment | 0.6716186034 | $514,379 | $514,379 | $345.47 | | |
| ST | State School | 1.3035497053 | $514,379 | $514,379 | $670.52 | | |
| ST2 | State School Part 2 | 0.8169543533 | $514,379 | $514,379 | $420.22 | | |
| | Total Tax Rate: | 7.6592568070 | | | | | |
| | | | | Taxes w/Current Exemptions: | $3,939.77 | | |
| | | | | Taxes w/o Exemptions: | $3,939.77 | | |
Improvement / Building
| Improvement #1: | RESIDENTIAL | State Code: | Y | 873.6 sqft | Value: | $144,379 |
| Bathrooms: | 1 | Bedrooms: | 2 | | Ceiling: | BEAM PAINTED | Exterior Wall/Cover: | WOOD SIDING | | Floor Covering: | SOFTWOOD 100% | Floor Structure: | WOOD W/SUBFLOOR | | Foundation: | WOOD BLOCKS | Heating: | WALL HEAT ELECTRIC | | Interior Finish: | DRYWALL PAINT | Plumbing Fixture Cnt: | 5 | | Roof Slope: | FLAT | Roof Structure/Cover: | BEAM BUILT-UP ROCK |
|
| | Type | Description | Class CD | Sub Class CD | Year Built | Area |
| | BAS | BASE/MAIN FLOOR | 3 | 0 | 1951 | 873.6 |
| | UB8 | BASEMENT UNFINISHED 8" | 3 | 0 | 1951 | 434.0 |
| | OWP | OPEN WOOD PORCH W/STEPS | 3 | 0 | 1951 | 163.4 |
| | OWR | OPEN WOOD PORCH W/STEPS/ROOF | 3 | 0 | 1951 | 32.0 |
Sketch
Property Image
Land
| 1 | 14 | SQ (08001-12000) | 0.0000 | 0.00 | 0.00 | 0.00 | 1.00 | $370,000 | $0 |
Roll Value History
| 2026 | N/A | N/A | N/A | N/A | N/A |
| 2025 | $144,379 | $370,000 | $0 | $514,379 | $514,379 |
| 2024 | $143,593 | $370,000 | $0 | $513,593 | $513,593 |
| 2023 | $145,528 | $370,000 | $0 | $515,528 | $515,528 |
| 2022 | $133,525 | $360,000 | $0 | $493,525 | $493,525 |
| 2021 | $117,636 | $260,000 | $0 | $377,636 | $377,636 |
| 2020 | $114,687 | $260,000 | $0 | $374,687 | $374,687 |
| 2019 | $80,595 | $220,000 | $0 | $300,595 | $300,595 |
| 2018 | $80,848 | $190,000 | $0 | $270,848 | $270,848 |
| 2017 | $53,664 | $120,000 | $0 | $173,664 | $173,664 |
| 2016 | $54,530 | $90,000 | $0 | $144,530 | $144,530 |
| 2015 | $55,395 | $90,000 | $0 | $145,395 | $145,395 |
| 2014 | $56,260 | $85,000 | $0 | $141,260 | $141,260 |
| 2013 | $40,055 | $85,000 | $0 | $125,055 | $125,055 |
| 2012 | $40,824 | $85,000 | $0 | $125,824 | $125,824 |
| 2011 | $41,595 | $100,000 | $0 | $141,595 | $141,595 |
| 2010 | $48,074 | $100,000 | $0 | $148,074 | $148,074 |
| 2009 | $50,357 | $150,000 | $0 | $200,357 | $200,357 |
| 2008 | $51,199 | $190,000 | $0 | $241,199 | $241,199 |
| 2007 | $51,203 | $180,000 | $0 | $231,203 | $231,203 |
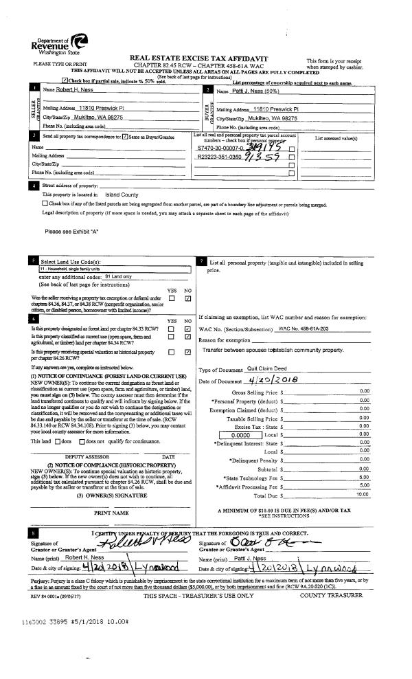
Deed and Sales History
| 1 | 03/02/2018 | WD | Warranty Deed | CONGDON, JEANNE R | PETERSON, JESSE | | | $280,000.00 | 33199 | 4440363 |
| 2 | 10/02/2017 | QCD | Quit Claim Deed | CONGDON, JEANNE R | CONGDON, JEANNE R | | | $0.00 | 33198 | 4440362 |
| 3 | 08/02/2005 | WD | Warranty Deed | CHAN, CHRISTOPHER E | CONGDON, JEANNE R | | | $235,000.00 | 53789 | 4142993 |
| 4 | 03/30/1998 | QCD | Quit Claim Deed | CHAN, CHRISTOPHER E | CHAN, CHRISTOPHER E | | | $0.00 | 81332 | 98007286 |
| 5 | 06/01/1986 | WD | Warranty Deed | CHAN, HENRY T | CHAN, CHRISTOPHER E | | | $42,000.00 | 61636 | 86007693 |
| 6 | 01/01/1900 | OTHER | Other - Misc. Documents | Unknown | CHAN, CHRISTOPHER E | | | $0.00 | 81332 | 98007286 |
| 7 | 01/01/1900 | OTHER | Other - Misc. Documents | CHAN, CHRISTOPHER E | CHAN, HENRY T | | | $0.00 | 0 | 0 |
Payout Agreement
| No payout information available.. |