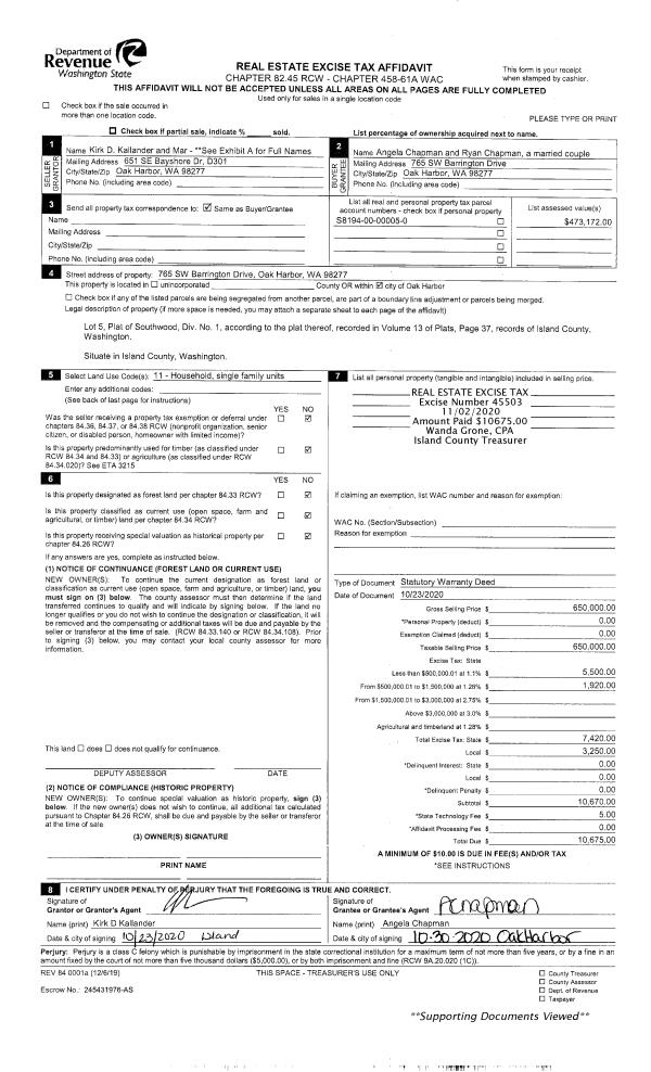
Property
Account |
| Property ID: | 293453 | Abbreviated Legal Description: | LAGOON PT LOT 6 BLK 11 |
| Geographic ID: | S7310-00-11006-0 | Agent Code: | |
| Type: | Real | | |
| Tax Area: | 320 - APPRAISER-Cpvl Schl Dist, Special Dist, improved & less than 1 acre | Land Use Code | 11 |
| Open Space: | N | DFL | N |
| Historic Property: | N | Remodel Property: | N |
| Multi-Family Redevelopment: | N | | |
| Township: | | Section: | |
| Range: | |
Location |
| Address: | 3713 SHOREWOOD AVE GREENBANK, WA 98253 | Mapsco: | |
| Neighborhood: | Cycle 3 | Map ID: | 394 |
| Neighborhood CD: | 3 |
Owner |
| Name: | SCHAEFFER, JOHN MICHAEL | Owner ID: | 272923 |
| Mailing Address: | CONNI STROPE 6474 E MERCER WAY MERCER ISLAND, WA 98040 | % Ownership: | 100.0000000000% |
| | | Exemptions: | |
Taxes and Assessment Details
Values
| (+) Improvement Homesite Value: | + | $0 | |
| (+) Improvement Non-Homesite Value: | + | $296,423 | |
| (+) Land Homesite Value: | + | $0 | |
| (+) Land Non-Homesite Value: | + | $220,000 | |
| (+) Curr Use (HS): | + | $0 | $0 |
| (+) Curr Use (NHS): | + | $0 | $0 |
| | | -------------------------- | |
| (=) Market Value: | = | $516,423 | |
| (–) Productivity Loss: | – | $0 | |
| | | -------------------------- | |
| (=) Subtotal: | = | $516,423 | |
| (+) Senior Appraised Value: | + | $0 | |
| (+) Non-Senior Appraised Value: | + | $516,423 | |
| | | -------------------------- | |
| (=) Total Appraised Value: | = | $516,423 | |
| (–) Senior Exemption Loss: | – | $0 | |
| (–) Exemption Loss: | – | $0 | |
| | | -------------------------- | |
| (=) Taxable Value: | = | $516,423 | |
Taxing Jurisdiction
| Owner: | SCHAEFFER, JOHN MICHAEL | | |
| % Ownership: | 100.0000000000% | | |
| Total Value: | $516,423 | | |
| Tax Area: | 320 - APPRAISER-Cpvl Schl Dist, Special Dist, improved & less than 1 acre |
| CF | Conservation Futures | 0.0316035091 | $516,423 | $516,423 | $16.32 | | |
| CEM2 | Cemetery #2 | 0.0095056933 | $516,423 | $516,423 | $4.91 | | |
| FIRE5 | Fire & Rescue Dist #5 C Whidbey GEN | 1.2008080668 | $516,423 | $516,423 | $620.12 | | |
| FIRE5BOND | Fire & Rescue Dist #5 C Whidbey BOND | 0.1400090713 | $516,423 | $516,423 | $72.30 | | |
| HOBOND | Hospital BOND | 0.1910887512 | $516,423 | $516,423 | $98.68 | | |
| HOGEN | Hospital GEN | 0.3902502903 | $516,423 | $516,423 | $201.53 | | |
| CE | County Current Expense | 0.3708482477 | $516,423 | $516,423 | $191.51 | | |
| CR | County Roads | 0.4584763726 | $516,423 | $516,423 | $236.77 | | |
| ISLANDEMS | Hospital GEN (EMS) | 0.5000000000 | $516,423 | $516,423 | $258.21 | | |
| LIB | Library Sno-Isle GEN | 0.3153421757 | $516,423 | $516,423 | $162.85 | | |
| LIBCAP | Library Sno-Isle BOND (Cap Fac Imp Area) | 0.0543427938 | $516,423 | $516,423 | $28.06 | | |
| POCOUP | Port of Coupeville GEN | 0.1093371703 | $516,423 | $516,423 | $56.46 | | |
| POCOUPIDD | Port of Coupeville IDD | 0.3409740022 | $516,423 | $516,423 | $176.09 | | |
| COUPSDTECH | School 204 CP (TECH) | 0.7545480007 | $516,423 | $516,423 | $389.67 | | |
| SCH204MO | School 204 Enrichment | 0.6716186034 | $516,423 | $516,423 | $346.84 | | |
| ST | State School | 1.3035497053 | $516,423 | $516,423 | $673.18 | | |
| ST2 | State School Part 2 | 0.8169543533 | $516,423 | $516,423 | $421.89 | | |
| | Total Tax Rate: | 7.6592568070 | | | | | |
| | | | | Taxes w/Current Exemptions: | $3,955.39 | | |
| | | | | Taxes w/o Exemptions: | $3,955.39 | | |
Improvement / Building
| Improvement #1: | RESIDENTIAL | State Code: | Y | 1232.0 sqft | Value: | $296,423 |
| Bathrooms: | 2 | Bedrooms: | 2 | | Ceiling: | DRYWALL PAINTED | Cooling: | HEAT PUMP/CONV/V | | Exterior Wall/Cover: | CEMENT FIBER | Floor Covering: | HARDWOOD/CARP 20-80 | | Floor Structure: | WOOD W/SUBFLOOR | Foundation: | CONCRETE | | Interior Finish: | DRYWALL PAINT | Plumbing Fixture Cnt: | 9 | | Roof Slope: | FLAT | Roof Structure/Cover: | CJ ALUMINIUM HEAVY |
|
| | Type | Description | Class CD | Sub Class CD | Year Built | Area |
| | BAS | BASE/MAIN FLOOR | 3 | 0 | 2018 | 400.0 |
| | UPS | UPPER STORY | 3 | 0 | 2018 | 832.0 |
| | AGR | ATTACHED GARAGE | 3 | 0 | 2018 | 432.0 |
| | OP3 | OPEN PORCH W/ROOF | 3 | 0 | 2018 | 128.0 |
| | OWC | OPEN WOOD PORCH W/STEPS/ROOF/C | 3 | 0 | 2018 | 272.0 |
| | OP2 | OPEN PORCH W/STEPS | 3 | 0 | 2018 | 87.8 |
| | OWP | OPEN WOOD PORCH W/STEPS | 3 | 0 | 2018 | 142.0 |
Sketch
Property Image
Land
| 1 | 15 | SQ (12001-21780) | 0.0000 | 0.00 | 0.00 | 0.00 | 1.00 | $220,000 | $0 |
Roll Value History
| 2026 | N/A | N/A | N/A | N/A | N/A |
| 2025 | $296,423 | $220,000 | $0 | $516,423 | $516,423 |
| 2024 | $298,832 | $240,000 | $0 | $538,832 | $538,832 |
| 2023 | $301,244 | $240,000 | $0 | $541,244 | $541,244 |
| 2022 | $274,962 | $240,000 | $0 | $514,962 | $514,962 |
| 2021 | $240,998 | $140,000 | $0 | $380,998 | $380,998 |
| 2020 | $234,206 | $115,000 | $0 | $349,206 | $349,206 |
| 2019 | $170,435 | $180,000 | $0 | $350,435 | $350,435 |
| 2018 | $94,618 | $150,000 | $0 | $244,618 | $244,618 |
| 2017 | $0 | $50,000 | $0 | $50,000 | $50,000 |
| 2016 | $0 | $50,000 | $0 | $50,000 | $50,000 |
| 2015 | $0 | $50,000 | $0 | $50,000 | $50,000 |
| 2014 | $0 | $50,000 | $0 | $50,000 | $50,000 |
| 2013 | $0 | $50,000 | $0 | $50,000 | $50,000 |
| 2012 | $0 | $50,000 | $0 | $50,000 | $50,000 |
| 2011 | $0 | $50,000 | $0 | $50,000 | $50,000 |
| 2010 | $0 | $50,000 | $0 | $50,000 | $50,000 |
| 2009 | $0 | $45,000 | $0 | $45,000 | $45,000 |
| 2008 | $0 | $45,000 | $0 | $45,000 | $45,000 |
| 2007 | $0 | $45,000 | $0 | $45,000 | $45,000 |
Deed and Sales History
| 1 | 12/01/2015 | WD | Warranty Deed | RATCLIFF, JIM | SCHAEFFER, JOHN MICHAEL | | | $59,000.00 | 22342 | 4390376 |
| 2 | 10/27/1999 | WD | Warranty Deed | BERGLUND, MARVEL D | RATCLIFF, JIM | | | $13,751.00 | 94588 | 99025298 |
| 3 | 02/25/1998 | QCD | Quit Claim Deed | BERGLUND, A R | BERGLUND, MARVEL D | | | $0.00 | 92768 | 99016522 |
| 4 | 12/01/1985 | QCD | Quit Claim Deed | BERGLUND, A R | BERGLUND, A R | | | $0.00 | 60228 | 86001258 |
| 5 | 01/01/1900 | OTHER | Other - Misc. Documents | Unknown | BERGLUND, A R | | | $0.00 | 0 | 0 |
Payout Agreement
| No payout information available.. |