Property
Account |
| Property ID: | 293694 | Abbreviated Legal Description: | LAGOON PT LOT 1 BLK 12 |
| Geographic ID: | S7310-00-12001-0 | Agent Code: | |
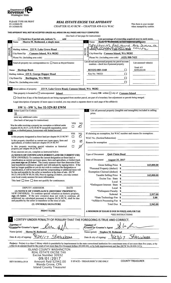
| Type: | Real | | |
| Tax Area: | 320 - APPRAISER-Cpvl Schl Dist, Special Dist, improved & less than 1 acre | Land Use Code | 11 |
| Open Space: | N | DFL | N |
| Historic Property: | N | Remodel Property: | N |
| Multi-Family Redevelopment: | N | | |
| Township: | | Section: | |
| Range: | |
Location |
| Address: | 3798 OCEANSIDE DR GREENBANK, WA 98253 | Mapsco: | |
| Neighborhood: | Cycle 3 | Map ID: | 394 |
| Neighborhood CD: | 3 |
Owner |
| Name: | MEHABOOB, MOHAMMED ALI SHEIK | Owner ID: | 281714 |
| Mailing Address: | 3798 OCEANSIDE DR GREENBANK, WA 98253 | % Ownership: | 100.0000000000% |
| | | Exemptions: | |
Taxes and Assessment Details
Values
| (+) Improvement Homesite Value: | + | $0 | |
| (+) Improvement Non-Homesite Value: | + | $270,459 | |
| (+) Land Homesite Value: | + | $0 | |
| (+) Land Non-Homesite Value: | + | $755,000 | |
| (+) Curr Use (HS): | + | $0 | $0 |
| (+) Curr Use (NHS): | + | $0 | $0 |
| | | -------------------------- | |
| (=) Market Value: | = | $1,025,459 | |
| (–) Productivity Loss: | – | $0 | |
| | | -------------------------- | |
| (=) Subtotal: | = | $1,025,459 | |
| (+) Senior Appraised Value: | + | $0 | |
| (+) Non-Senior Appraised Value: | + | $1,025,459 | |
| | | -------------------------- | |
| (=) Total Appraised Value: | = | $1,025,459 | |
| (–) Senior Exemption Loss: | – | $0 | |
| (–) Exemption Loss: | – | $0 | |
| | | -------------------------- | |
| (=) Taxable Value: | = | $1,025,459 | |
Taxing Jurisdiction
| Owner: | MEHABOOB, MOHAMMED ALI SHEIK | | |
| % Ownership: | 100.0000000000% | | |
| Total Value: | $1,025,459 | | |
| Tax Area: | 320 - APPRAISER-Cpvl Schl Dist, Special Dist, improved & less than 1 acre |
| CF | Conservation Futures | 0.0316035091 | $1,025,459 | $1,025,459 | $32.41 | | |
| CEM2 | Cemetery #2 | 0.0095056933 | $1,025,459 | $1,025,459 | $9.75 | | |
| FIRE5 | Fire & Rescue Dist #5 C Whidbey GEN | 1.2008080668 | $1,025,459 | $1,025,459 | $1,231.38 | | |
| FIRE5BOND | Fire & Rescue Dist #5 C Whidbey BOND | 0.1400090713 | $1,025,459 | $1,025,459 | $143.57 | | |
| HOBOND | Hospital BOND | 0.1910887512 | $1,025,459 | $1,025,459 | $195.95 | | |
| HOGEN | Hospital GEN | 0.3902502903 | $1,025,459 | $1,025,459 | $400.19 | | |
| CE | County Current Expense | 0.3708482477 | $1,025,459 | $1,025,459 | $380.29 | | |
| CR | County Roads | 0.4584763726 | $1,025,459 | $1,025,459 | $470.15 | | |
| ISLANDEMS | Hospital GEN (EMS) | 0.5000000000 | $1,025,459 | $1,025,459 | $512.73 | | |
| LIB | Library Sno-Isle GEN | 0.3153421757 | $1,025,459 | $1,025,459 | $323.37 | | |
| LIBCAP | Library Sno-Isle BOND (Cap Fac Imp Area) | 0.0543427938 | $1,025,459 | $1,025,459 | $55.73 | | |
| POCOUP | Port of Coupeville GEN | 0.1093371703 | $1,025,459 | $1,025,459 | $112.12 | | |
| POCOUPIDD | Port of Coupeville IDD | 0.3409740022 | $1,025,459 | $1,025,459 | $349.65 | | |
| COUPSDTECH | School 204 CP (TECH) | 0.7545480007 | $1,025,459 | $1,025,459 | $773.76 | | |
| SCH204MO | School 204 Enrichment | 0.6716186034 | $1,025,459 | $1,025,459 | $688.72 | | |
| ST | State School | 1.3035497053 | $1,025,459 | $1,025,459 | $1,336.74 | | |
| ST2 | State School Part 2 | 0.8169543533 | $1,025,459 | $1,025,459 | $837.75 | | |
| | Total Tax Rate: | 7.6592568070 | | | | | |
| | | | | Taxes w/Current Exemptions: | $7,854.26 | | |
| | | | | Taxes w/o Exemptions: | $7,854.26 | | |
Improvement / Building
| Improvement #1: | RESIDENTIAL | State Code: | Y | 1236.0 sqft | Value: | $270,459 |
| Bathrooms: | 3 | Bedrooms: | 2 | | Ceiling: | DRYWALL PAINTED | Exterior Wall/Cover: | PLY/HARDBOARD T-111 | | Floor Covering: | CARPET/VINYL 80-20 | Floor Structure: | WOOD W/SUBFLOOR | | Foundation: | CONCRETE | Heating: | WALL HEAT ELECTRIC | | Interior Finish: | DRYWALL PAINT | Plumbing Fixture Cnt: | 14 | | Roof Slope: | 4" IN 12" | Roof Structure/Cover: | CJ ASPHALT |
|
| | Type | Description | Class CD | Sub Class CD | Year Built | Area |
| | BAS | BASE/MAIN FLOOR | 3 | 0 | 1952 | 1236.0 |
| | OWP | OPEN WOOD PORCH W/STEPS | 3 | 0 | 1952 | 232.0 |
| | OWP | OPEN WOOD PORCH W/STEPS | 3 | 0 | 1952 | 452.0 |
| | OWR | OPEN WOOD PORCH W/STEPS/ROOF | 3 | 0 | 1952 | 48.0 |
| | DGR | DETACHED GARAGE | 3 | 0 | 1952 | 576.0 |
Sketch
Property Image
Land
| 1 | LB | LOW BANK | 0.0000 | 0.00 | 56.00 | 0.00 | 1.00 | $755,000 | $0 |
Roll Value History
| 2026 | N/A | N/A | N/A | N/A | N/A |
| 2025 | $270,459 | $755,000 | $0 | $1,025,459 | $1,025,459 |
| 2024 | $273,872 | $755,000 | $0 | $1,028,872 | $1,028,872 |
| 2023 | $277,284 | $755,000 | $0 | $1,032,284 | $1,032,284 |
| 2022 | $254,180 | $720,000 | $0 | $974,180 | $974,180 |
| 2021 | $223,699 | $600,000 | $0 | $823,699 | $823,699 |
| 2020 | $216,584 | $600,000 | $0 | $816,584 | $816,584 |
| 2019 | $149,257 | $600,000 | $0 | $749,257 | $749,257 |
| 2018 | $84,590 | $500,000 | $0 | $584,590 | $584,590 |
| 2017 | $109,212 | $500,000 | $0 | $609,212 | $609,212 |
| 2016 | $110,648 | $500,000 | $0 | $610,648 | $610,648 |
| 2015 | $112,083 | $500,000 | $0 | $612,083 | $612,083 |
| 2014 | $113,520 | $500,000 | $0 | $613,520 | $613,520 |
| 2013 | $96,293 | $396,729 | $0 | $493,022 | $493,022 |
| 2012 | $97,728 | $396,729 | $0 | $494,457 | $494,457 |
| 2011 | $99,163 | $396,729 | $0 | $495,892 | $495,892 |
| 2010 | $108,103 | $396,729 | $0 | $504,832 | $504,832 |
| 2009 | $112,634 | $568,004 | $0 | $680,638 | $680,638 |
| 2008 | $114,332 | $524,311 | $0 | $638,643 | $638,643 |
| 2007 | $112,152 | $524,311 | $0 | $636,463 | $636,463 |
Deed and Sales History
| 1 | 08/29/2017 | WD | Warranty Deed | EAGAN, ROBERT K | MEHABOOB, MOHAMMED ALI SHEIK | | | $613,000.00 | 30898 | 4429290 |
| 2 | 10/01/1995 | WD | Warranty Deed | SANKEY, JAMES A | EAGAN, ROBERT K | | | $315,000.00 | 53547 | 95016293 |
| 3 | 02/01/1992 | QCD | Quit Claim Deed | SANKEY, JAMES A | SANKEY, JAMES A | | | $0.00 | 20529 | 92002581 |
| 4 | 06/01/1991 | DECREE | Divorce Decree/Legal Separation | SANKEY, JAMES A | SANKEY, JAMES A | | | $0.00 | 12020 | 91008575 |
| 5 | 03/01/1984 | WD | Warranty Deed | DANIELSON, FRED | SANKEY, JAMES A | | | $105,000.00 | 40631 | 421999 |
| 6 | 01/01/1900 | OTHER | Other - Misc. Documents | Unknown | DANIELSON, FRED | | | $0.00 | 0 | 0 |
Payout Agreement
| No payout information available.. |