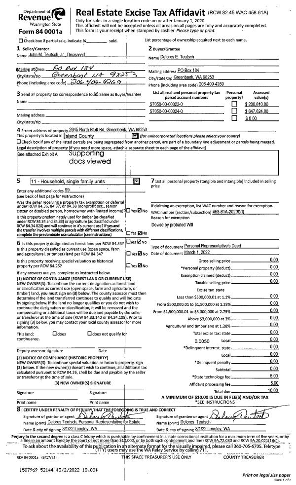
Property
Account |
| Property ID: | 293738 | Abbreviated Legal Description: | LAGOON PT LOT 5 BLK 12 INCL ADJ TIDES |
| Geographic ID: | S7310-00-12005-0 | Agent Code: | |
| Type: | Real | | |
| Tax Area: | 320 - APPRAISER-Cpvl Schl Dist, Special Dist, improved & less than 1 acre | Land Use Code | 11 |
| Open Space: | N | DFL | N |
| Historic Property: | N | Remodel Property: | N |
| Multi-Family Redevelopment: | N | | |
| Township: | | Section: | |
| Range: | |
Location |
| Address: | 3784 OCEANSIDE DR GREENBANK, WA 98253 | Mapsco: | |
| Neighborhood: | Cycle 3 | Map ID: | 394 |
| Neighborhood CD: | 3 |
Owner |
| Name: | ROBINSON, WILLIAM K | Owner ID: | 301591 |
| Mailing Address: | MICHELLE M ROBINSON 2675 BISHOP PL W SEATTLE, WA 98199 | % Ownership: | 100.0000000000% |
| | | Exemptions: | |
Taxes and Assessment Details
Values
| (+) Improvement Homesite Value: | + | $0 | |
| (+) Improvement Non-Homesite Value: | + | $326,510 | |
| (+) Land Homesite Value: | + | $0 | |
| (+) Land Non-Homesite Value: | + | $690,600 | |
| (+) Curr Use (HS): | + | $0 | $0 |
| (+) Curr Use (NHS): | + | $0 | $0 |
| | | -------------------------- | |
| (=) Market Value: | = | $1,017,110 | |
| (–) Productivity Loss: | – | $0 | |
| | | -------------------------- | |
| (=) Subtotal: | = | $1,017,110 | |
| (+) Senior Appraised Value: | + | $0 | |
| (+) Non-Senior Appraised Value: | + | $1,017,110 | |
| | | -------------------------- | |
| (=) Total Appraised Value: | = | $1,017,110 | |
| (–) Senior Exemption Loss: | – | $0 | |
| (–) Exemption Loss: | – | $0 | |
| | | -------------------------- | |
| (=) Taxable Value: | = | $1,017,110 | |
Taxing Jurisdiction
| Owner: | ROBINSON, WILLIAM K | | |
| % Ownership: | 100.0000000000% | | |
| Total Value: | $1,017,110 | | |
| Tax Area: | 320 - APPRAISER-Cpvl Schl Dist, Special Dist, improved & less than 1 acre |
| CF | Conservation Futures | 0.0316035091 | $1,017,110 | $1,017,110 | $32.14 | | |
| CEM2 | Cemetery #2 | 0.0095056933 | $1,017,110 | $1,017,110 | $9.67 | | |
| FIRE5 | Fire & Rescue Dist #5 C Whidbey GEN | 1.2008080668 | $1,017,110 | $1,017,110 | $1,221.35 | | |
| FIRE5BOND | Fire & Rescue Dist #5 C Whidbey BOND | 0.1400090713 | $1,017,110 | $1,017,110 | $142.40 | | |
| HOBOND | Hospital BOND | 0.1910887512 | $1,017,110 | $1,017,110 | $194.36 | | |
| HOGEN | Hospital GEN | 0.3902502903 | $1,017,110 | $1,017,110 | $396.93 | | |
| CE | County Current Expense | 0.3708482477 | $1,017,110 | $1,017,110 | $377.19 | | |
| CR | County Roads | 0.4584763726 | $1,017,110 | $1,017,110 | $466.32 | | |
| ISLANDEMS | Hospital GEN (EMS) | 0.5000000000 | $1,017,110 | $1,017,110 | $508.56 | | |
| LIB | Library Sno-Isle GEN | 0.3153421757 | $1,017,110 | $1,017,110 | $320.74 | | |
| LIBCAP | Library Sno-Isle BOND (Cap Fac Imp Area) | 0.0543427938 | $1,017,110 | $1,017,110 | $55.27 | | |
| POCOUP | Port of Coupeville GEN | 0.1093371703 | $1,017,110 | $1,017,110 | $111.21 | | |
| POCOUPIDD | Port of Coupeville IDD | 0.3409740022 | $1,017,110 | $1,017,110 | $346.81 | | |
| COUPSDTECH | School 204 CP (TECH) | 0.7545480007 | $1,017,110 | $1,017,110 | $767.46 | | |
| SCH204MO | School 204 Enrichment | 0.6716186034 | $1,017,110 | $1,017,110 | $683.11 | | |
| ST | State School | 1.3035497053 | $1,017,110 | $1,017,110 | $1,325.85 | | |
| ST2 | State School Part 2 | 0.8169543533 | $1,017,110 | $1,017,110 | $830.93 | | |
| | Total Tax Rate: | 7.6592568070 | | | | | |
| | | | | Taxes w/Current Exemptions: | $7,790.30 | | |
| | | | | Taxes w/o Exemptions: | $7,790.30 | | |
Improvement / Building
| Improvement #1: | RESIDENTIAL | State Code: | Y | 2586.4 sqft | Value: | $326,510 |
| Bathrooms: | 3 | Bedrooms: | 3 | | Ceiling: | DRYWALL PAINTED | Exterior Wall/Cover: | WOOD SIDING | | Floor Covering: | CARPET/VINYL 80-20 | Floor Structure: | WOOD W/SUBFLOOR | | Foundation: | CONCRETE | Heating: | WALL HEAT ELECTRIC | | Interior Finish: | DRYWALL PAINT | Plumbing Fixture Cnt: | 12 | | Roof Slope: | 6" IN 12" | Roof Structure/Cover: | CJ ASPHALT |
|
| | Type | Description | Class CD | Sub Class CD | Year Built | Area |
| | BAS | BASE/MAIN FLOOR | 3 | 0 | 1990 | 1176.4 |
| | OP4 | OPEN PORCH W/CEILING-ROOF | 3 | 0 | 1990 | 54.0 |
| | BIG | BUILT IN GARAGE | 3 | 0 | 1990 | 280.0 |
| | UPS | UPPER STORY | 3 | 0 | 1990 | 1410.0 |
| | BAW | BALCONY WOOD RAIL | 3 | 0 | 1990 | 24.0 |
Sketch
Property Image
Land
| 1 | LB | LOW BANK | 0.0000 | 0.00 | 60.00 | 0.00 | 1.00 | $690,000 | $0 |
| 2 | 55 | TIDES | 0.0000 | 0.00 | 60.00 | 0.00 | 1.00 | $600 | $0 |
Roll Value History
| 2026 | N/A | N/A | N/A | N/A | N/A |
| 2025 | $326,510 | $690,600 | $0 | $1,017,110 | $1,017,110 |
| 2024 | $330,849 | $690,600 | $0 | $1,021,449 | $1,021,449 |
| 2023 | $335,188 | $690,600 | $0 | $1,025,788 | $1,025,788 |
| 2022 | $307,452 | $660,600 | $0 | $968,052 | $968,052 |
| 2021 | $270,751 | $550,600 | $0 | $821,351 | $821,351 |
| 2020 | $264,364 | $550,600 | $0 | $814,964 | $814,964 |
| 2019 | $191,694 | $600,600 | $0 | $792,294 | $792,294 |
| 2018 | $192,348 | $500,600 | $0 | $692,948 | $692,948 |
| 2017 | $193,625 | $500,600 | $0 | $694,225 | $694,225 |
| 2016 | $196,244 | $500,600 | $0 | $696,844 | $696,844 |
| 2015 | $198,860 | $500,600 | $0 | $699,460 | $699,460 |
| 2014 | $201,478 | $500,600 | $0 | $702,078 | $702,078 |
| 2013 | $198,860 | $421,458 | $0 | $620,318 | $620,318 |
| 2012 | $201,478 | $421,458 | $0 | $622,936 | $622,936 |
| 2011 | $204,092 | $421,458 | $0 | $625,550 | $625,550 |
| 2010 | $211,484 | $421,458 | $0 | $632,942 | $632,942 |
| 2009 | $220,536 | $603,150 | $0 | $823,686 | $823,686 |
| 2008 | $223,152 | $556,800 | $0 | $779,952 | $779,952 |
| 2007 | $225,762 | $556,380 | $0 | $782,142 | $782,142 |
Deed and Sales History
| 1 | 10/15/2021 | WD | Warranty Deed | ROBINSON, WILLIAM K | ROBINSON, WILLIAM K | | | $463,496.00 | 50488 | 4531507 |
| 2 | 10/11/2021 | QCD | Quit Claim Deed | ROBINSON, WILLIAM K | ROBINSON, WILLIAM K | | | $0.00 | 50487 | 4531506 |
| 3 | 03/26/2002 | WD | Warranty Deed | MORGAN, JAMES M | MORGAN, JAMES M | | | $0.00 | 21418 | 4017273 |
| 4 | 03/26/2001 | WD | Warranty Deed | Unknown | MORGAN, JAMES M | | | $0.00 | 11464 | 20030777 |
| 5 | 03/01/1996 | WD | Warranty Deed | MORGAN, JAMES W | MORGAN, JAMES M | | | $0.00 | 60874 | 96004552 |
| 6 | 04/01/1989 | WD | Warranty Deed | MORGAN, JAMES M | MORGAN, JAMES W | | | $95,000.00 | 91309 | 89004625 |
| 7 | 04/01/1989 | WD | Warranty Deed | CHAN, GREGORY K | MORGAN, JAMES M | | | $0.00 | 91839 | 89006411 |
| 8 | 01/01/1900 | OTHER | Other - Misc. Documents | MORGAN, JAMES M | CHAN, GREGORY K | | | $0.00 | 0 | 0 |
Payout Agreement
| No payout information available.. |