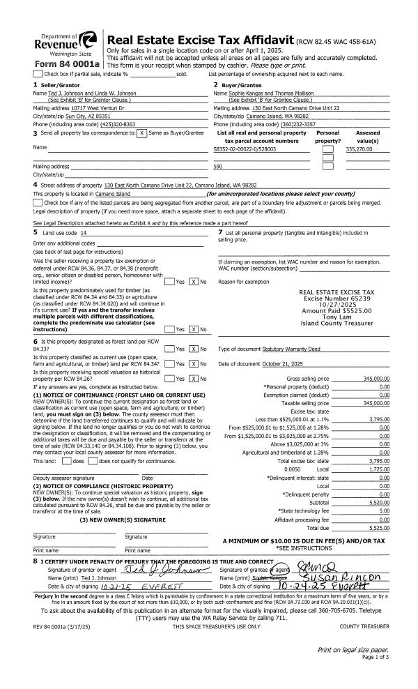
Property
Account |
| Property ID: | 29383 | Abbreviated Legal Description: | 4 - GL5:BG SE CR LT 4 COUPE HD TR E30' N88.7' E350.55' TPB E94.85' N120' W71.85' ALG CUR/L 39.27' S93' TPB TGW: ALL INT TO ANY REAL PROP LY WLY OF LN DESC: BG SWCR L4 COUP HMST TR E30' N88.70' E350.55' E96.85'TO SECR TR D N120' W2'TPB SD LN S PARA/W ELN |
| Geographic ID: | R13234-387-2690 | Agent Code: | |
| Type: | Real | | |
| Tax Area: | 300 - APPRAISER-Cpvl Schl Dist, in Cpvl | Land Use Code | 11 |
| Open Space: | N | DFL | N |
| Historic Property: | N | Remodel Property: | N |
| Multi-Family Redevelopment: | N | | |
| Township: | 32 | Section: | 34 |
| Range: | R1 |
Location |
| Address: | 1203 NE PARKER RD COUPEVILLE, WA 98239 | Mapsco: | |
| Neighborhood: | Cycle 2 | Map ID: | 179 |
| Neighborhood CD: | 2 |
Owner |
| Name: | HUNT, DANA | Owner ID: | 315769 |
| Mailing Address: | 1203 PARKER RD NE COUPEVILLE, WA 98239 | % Ownership: | 100.0000000000% |
| | | Exemptions: | |
Taxes and Assessment Details
Values
| (+) Improvement Homesite Value: | + | $0 | |
| (+) Improvement Non-Homesite Value: | + | $227,471 | |
| (+) Land Homesite Value: | + | $0 | |
| (+) Land Non-Homesite Value: | + | $209,000 | |
| (+) Curr Use (HS): | + | $0 | $0 |
| (+) Curr Use (NHS): | + | $0 | $0 |
| | | -------------------------- | |
| (=) Market Value: | = | $436,471 | |
| (–) Productivity Loss: | – | $0 | |
| | | -------------------------- | |
| (=) Subtotal: | = | $436,471 | |
| (+) Senior Appraised Value: | + | $0 | |
| (+) Non-Senior Appraised Value: | + | $436,471 | |
| | | -------------------------- | |
| (=) Total Appraised Value: | = | $436,471 | |
| (–) Senior Exemption Loss: | – | $0 | |
| (–) Exemption Loss: | – | $0 | |
| | | -------------------------- | |
| (=) Taxable Value: | = | $436,471 | |
Taxing Jurisdiction
| Owner: | HUNT, DANA | | |
| % Ownership: | 100.0000000000% | | |
| Total Value: | $436,471 | | |
| Tax Area: | 300 - APPRAISER-Cpvl Schl Dist, in Cpvl |
| CF | Conservation Futures | 0.0316035091 | $436,471 | $436,471 | $13.79 | | |
| CEM2 | Cemetery #2 | 0.0095056933 | $436,471 | $436,471 | $4.15 | | |
| COUP | City: Town of Coupeville | 0.8426414490 | $436,471 | $436,471 | $367.79 | | |
| FIRE5 | Fire & Rescue Dist #5 C Whidbey GEN | 1.2008080668 | $436,471 | $436,471 | $524.12 | | |
| FIRE5BOND | Fire & Rescue Dist #5 C Whidbey BOND | 0.1400090713 | $436,471 | $436,471 | $61.11 | | |
| HOBOND | Hospital BOND | 0.1910887512 | $436,471 | $436,471 | $83.40 | | |
| HOGEN | Hospital GEN | 0.3902502903 | $436,471 | $436,471 | $170.33 | | |
| CE | County Current Expense | 0.3708482477 | $436,471 | $436,471 | $161.86 | | |
| ISLANDEMS | Hospital GEN (EMS) | 0.5000000000 | $436,471 | $436,471 | $218.24 | | |
| LIB | Library Sno-Isle GEN | 0.3153421757 | $436,471 | $436,471 | $137.64 | | |
| LIBCAP | Library Sno-Isle BOND (Cap Fac Imp Area) | 0.0543427938 | $436,471 | $436,471 | $23.72 | | |
| POCOUP | Port of Coupeville GEN | 0.1093371703 | $436,471 | $436,471 | $47.72 | | |
| POCOUPIDD | Port of Coupeville IDD | 0.3409740022 | $436,471 | $436,471 | $148.83 | | |
| COUPSDTECH | School 204 CP (TECH) | 0.7545480007 | $436,471 | $436,471 | $329.34 | | |
| SCH204MO | School 204 Enrichment | 0.6716186034 | $436,471 | $436,471 | $293.14 | | |
| ST | State School | 1.3035497053 | $436,471 | $436,471 | $568.96 | | |
| ST2 | State School Part 2 | 0.8169543533 | $436,471 | $436,471 | $356.58 | | |
| | Total Tax Rate: | 8.0434218834 | | | | | |
| | | | | Taxes w/Current Exemptions: | $3,510.72 | | |
| | | | | Taxes w/o Exemptions: | $3,510.72 | | |
Improvement / Building
| Improvement #1: | RESIDENTIAL | State Code: | Y | 1134.2 sqft | Value: | $227,471 |
| Bathrooms: | 1.75 | Bedrooms: | 2 | | Ceiling: | DRYWALL PAINTED | Exterior Wall/Cover: | PLY/HARDBOARD T-111 | | Floor Covering: | CARPET/VINYL 60-40 | Floor Structure: | WOOD W/SUBFLOOR | | Foundation: | CONCRETE | Heating: | FHA ELECTRIC | | Interior Finish: | DRYWALL PAINT | Plumbing Fixture Cnt: | 10 | | Roof Slope: | 4" IN 12" | Roof Structure/Cover: | CJ ASPHALT |
|
| | Type | Description | Class CD | Sub Class CD | Year Built | Area |
| | BAS | BASE/MAIN FLOOR | 3 | 0 | 1978 | 1134.2 |
| | AGR | ATTACHED GARAGE | 3 | 0 | 1978 | 462.0 |
| | OWP | OPEN WOOD PORCH W/STEPS | 3 | 0 | 1978 | 305.8 |
| | UTY | STORAGE/UTILITY | 3 | 0 | 1978 | 124.0 |
Sketch
Property Image
Land
| 1 | HS | HOMESITE | 0.2700 | 11761.20 | 0.00 | 0.00 | 1.00 | $209,000 | $0 |
Roll Value History
| 2026 | N/A | N/A | N/A | N/A | N/A |
| 2025 | $227,471 | $209,000 | $0 | $436,471 | $436,471 |
| 2024 | $207,883 | $200,000 | $0 | $407,883 | $407,883 |
| 2023 | $210,609 | $200,000 | $0 | $410,609 | $410,609 |
| 2022 | $193,174 | $200,000 | $0 | $393,174 | $393,174 |
| 2021 | $170,129 | $150,000 | $0 | $320,129 | $320,129 |
| 2020 | $165,458 | $130,000 | $0 | $295,458 | $295,458 |
| 2019 | $115,795 | $170,000 | $0 | $285,795 | $285,795 |
| 2018 | $89,850 | $150,000 | $0 | $239,850 | $239,850 |
| 2017 | $90,234 | $125,000 | $0 | $215,234 | $215,234 |
| 2016 | $91,405 | $115,000 | $0 | $206,405 | $206,405 |
| 2015 | $92,577 | $90,000 | $0 | $182,577 | $182,577 |
| 2014 | $93,750 | $85,000 | $0 | $178,750 | $178,750 |
| 2013 | $94,920 | $85,000 | $0 | $179,920 | $179,920 |
| 2012 | $93,880 | $90,950 | $0 | $184,830 | $184,830 |
| 2011 | $95,083 | $107,000 | $0 | $202,083 | $202,083 |
| 2010 | $99,041 | $107,000 | $0 | $206,041 | $206,041 |
| 2009 | $103,337 | $125,000 | $0 | $228,337 | $228,337 |
| 2008 | $104,576 | $125,000 | $0 | $229,576 | $229,576 |
| 2007 | $105,817 | $125,000 | $0 | $230,817 | $230,817 |
Deed and Sales History
| 1 | 03/13/2025 | WD | Warranty Deed | FORSTER TRUSTEE, FREDERICK J | HUNT, DANA | | | $500,000.00 | 62812 | 4583259 |
| 2 | 03/30/2016 | TRUSTEED | Trustee's Deed | FORSTER, FRED J | FORSTER TRUSTEE, FREDERICK J | | | $0.00 | 23709 | 4396702 |
| 3 | 05/07/2015 | WD | Warranty Deed | LEGAT, LEWIS J | FORSTER, FRED J | | | $224,000.00 | 19542 | 4378369 |
| 4 | 06/01/1983 | QCD | Quit Claim Deed | LEGAT, LEWIS J | LEGAT, LEWIS J | | | $0.00 | 32282 | 413490 |
| 5 | 01/01/1981 | TRUSTEED | Trustee's Deed | SHEEHAN, JOSEPH D | LEGAT, LEWIS J | | | $48,950.00 | 10030 | 378004 |
| 6 | 09/01/1979 | TRUSTEED | Trustee's Deed | MATTSON, MORRIS D | SHEEHAN, JOSEPH D | | | $44,500.00 | 94730 | 359414 |
| 7 | 01/01/1900 | OTHER | Other - Misc. Documents | Unknown | MATTSON, MORRIS D | | | $0.00 | 0 | 0 |
Payout Agreement
| No payout information available.. |