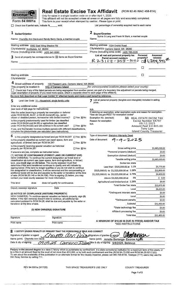
Property
Account |
| Property ID: | 29409 | Abbreviated Legal Description: | 43 - IN SW NE DESC: BG PT S30' FR NECR SW NE ON SLN CO RD W1234.45' TPB S125' E86' N125' W86' TPB TGW PT FOLL DESC LY ELY BDRY LN DESC AF#413490: BG SECR LOT 4 COUPEVILLE HOMESTEAD TRS E30' TO CTRLN VAC ST N88.70 E350.55' TPB E96.85' N120' W71.85' ALG CU |
| Geographic ID: | R13234-390-2760 | Agent Code: | |
| Type: | Real | | |
| Tax Area: | 300 - APPRAISER-Cpvl Schl Dist, in Cpvl | Land Use Code | 11 |
| Open Space: | N | DFL | N |
| Historic Property: | N | Remodel Property: | N |
| Multi-Family Redevelopment: | N | | |
| Township: | 32 | Section: | 34 |
| Range: | R1 |
Location |
| Address: | 1207 NE PARKER RD COUPEVILLE, WA 98239 | Mapsco: | |
| Neighborhood: | Cycle 2 | Map ID: | 180 |
| Neighborhood CD: | 2 |
Owner |
| Name: | NEAL, RICHARD | Owner ID: | 51971 |
| Mailing Address: | DEANNA NEAL 1207 NE PARKER RD COUPEVILLE, WA 98239-9589 | % Ownership: | 100.0000000000% |
| | | Exemptions: | |
Taxes and Assessment Details
Values
| (+) Improvement Homesite Value: | + | $0 | |
| (+) Improvement Non-Homesite Value: | + | $103,687 | |
| (+) Land Homesite Value: | + | $0 | |
| (+) Land Non-Homesite Value: | + | $207,000 | |
| (+) Curr Use (HS): | + | $0 | $0 |
| (+) Curr Use (NHS): | + | $0 | $0 |
| | | -------------------------- | |
| (=) Market Value: | = | $310,687 | |
| (–) Productivity Loss: | – | $0 | |
| | | -------------------------- | |
| (=) Subtotal: | = | $310,687 | |
| (+) Senior Appraised Value: | + | $0 | |
| (+) Non-Senior Appraised Value: | + | $310,687 | |
| | | -------------------------- | |
| (=) Total Appraised Value: | = | $310,687 | |
| (–) Senior Exemption Loss: | – | $0 | |
| (–) Exemption Loss: | – | $0 | |
| | | -------------------------- | |
| (=) Taxable Value: | = | $310,687 | |
Taxing Jurisdiction
| Owner: | NEAL, RICHARD | | |
| % Ownership: | 100.0000000000% | | |
| Total Value: | $310,687 | | |
| Tax Area: | 300 - APPRAISER-Cpvl Schl Dist, in Cpvl |
| CF | Conservation Futures | 0.0316035091 | $310,687 | $310,687 | $9.82 | | |
| CEM2 | Cemetery #2 | 0.0095056933 | $310,687 | $310,687 | $2.95 | | |
| COUP | City: Town of Coupeville | 0.8426414490 | $310,687 | $310,687 | $261.80 | | |
| FIRE5 | Fire & Rescue Dist #5 C Whidbey GEN | 1.2008080668 | $310,687 | $310,687 | $373.08 | | |
| FIRE5BOND | Fire & Rescue Dist #5 C Whidbey BOND | 0.1400090713 | $310,687 | $310,687 | $43.50 | | |
| HOBOND | Hospital BOND | 0.1910887512 | $310,687 | $310,687 | $59.37 | | |
| HOGEN | Hospital GEN | 0.3902502903 | $310,687 | $310,687 | $121.25 | | |
| CE | County Current Expense | 0.3708482477 | $310,687 | $310,687 | $115.22 | | |
| ISLANDEMS | Hospital GEN (EMS) | 0.5000000000 | $310,687 | $310,687 | $155.34 | | |
| LIB | Library Sno-Isle GEN | 0.3153421757 | $310,687 | $310,687 | $97.97 | | |
| LIBCAP | Library Sno-Isle BOND (Cap Fac Imp Area) | 0.0543427938 | $310,687 | $310,687 | $16.88 | | |
| POCOUP | Port of Coupeville GEN | 0.1093371703 | $310,687 | $310,687 | $33.97 | | |
| POCOUPIDD | Port of Coupeville IDD | 0.3409740022 | $310,687 | $310,687 | $105.94 | | |
| COUPSDTECH | School 204 CP (TECH) | 0.7545480007 | $310,687 | $310,687 | $234.43 | | |
| SCH204MO | School 204 Enrichment | 0.6716186034 | $310,687 | $310,687 | $208.66 | | |
| ST | State School | 1.3035497053 | $310,687 | $310,687 | $405.00 | | |
| ST2 | State School Part 2 | 0.8169543533 | $310,687 | $310,687 | $253.82 | | |
| | Total Tax Rate: | 8.0434218834 | | | | | |
| | | | | Taxes w/Current Exemptions: | $2,499.00 | | |
| | | | | Taxes w/o Exemptions: | $2,499.00 | | |
Improvement / Building
| Improvement #1: | RESIDENTIAL | State Code: | Y | 937.2 sqft | Value: | $103,687 |
| Bathrooms: | 1 | Bedrooms: | 2 | | Ceiling: | DRYWALL PAINTED | Exterior Wall/Cover: | ASBESTOES/ASPHALT | | Floor Covering: | CARPET/VINYL 60-40 | Floor Structure: | WOOD W/SUBFLOOR | | Foundation: | CONCRETE | Heating: | WALL HEAT ELECTRIC | | Interior Finish: | DRYWALL PAINT | Plumbing Fixture Cnt: | 6 | | Roof Slope: | 3" IN 12" | Roof Structure/Cover: | CJ ASPHALT |
|
| | Type | Description | Class CD | Sub Class CD | Year Built | Area |
| | BAS | BASE/MAIN FLOOR | 3 | 0 | 1947 | 937.2 |
| | OP3 | OPEN PORCH W/ROOF | 3 | 0 | 1947 | 138.6 |
| | DGR | DETACHED GARAGE | 3 | 0 | 1947 | 480.0 |
| | OWP | OPEN WOOD PORCH W/STEPS | 3 | 0 | 1947 | 80.9 |
Sketch
Property Image
Land
| 1 | HS | HOMESITE | 0.0000 | 0.00 | 0.00 | 0.00 | 1.00 | $207,000 | $0 |
Roll Value History
| 2026 | N/A | N/A | N/A | N/A | N/A |
| 2025 | $103,687 | $207,000 | $0 | $310,687 | $310,687 |
| 2024 | $105,882 | $200,000 | $0 | $305,882 | $305,882 |
| 2023 | $99,299 | $200,000 | $0 | $299,299 | $299,299 |
| 2022 | $91,902 | $200,000 | $0 | $291,902 | $291,902 |
| 2021 | $81,641 | $150,000 | $0 | $231,641 | $231,641 |
| 2020 | $80,193 | $130,000 | $0 | $210,193 | $210,193 |
| 2019 | $57,084 | $170,000 | $0 | $227,084 | $227,084 |
| 2018 | $50,420 | $150,000 | $0 | $200,420 | $200,420 |
| 2017 | $50,984 | $125,000 | $0 | $175,984 | $175,984 |
| 2016 | $52,143 | $115,000 | $0 | $167,143 | $167,143 |
| 2015 | $53,302 | $90,000 | $0 | $143,302 | $143,302 |
| 2014 | $54,460 | $85,000 | $0 | $139,460 | $139,460 |
| 2013 | $55,619 | $85,000 | $0 | $140,619 | $140,619 |
| 2012 | $57,365 | $90,950 | $0 | $148,315 | $148,315 |
| 2011 | $58,524 | $107,000 | $0 | $165,524 | $165,524 |
| 2010 | $67,775 | $107,000 | $0 | $174,775 | $174,775 |
| 2009 | $70,983 | $125,000 | $0 | $195,983 | $195,983 |
| 2008 | $72,185 | $125,000 | $0 | $197,185 | $197,185 |
| 2007 | $73,396 | $125,000 | $0 | $198,396 | $198,396 |
Deed and Sales History
| 1 | 12/09/2002 | WD | Warranty Deed | MCDONALD, HERBERT B | NEAL, RICHARD | | | $91,000.00 | 24949 | 4040256 |
| 2 | 06/01/1994 | WD | Warranty Deed | MENDENHALL, MARK W | MCDONALD, HERBERT B | | | $77,000.00 | 42753 | 94015088 |
| 3 | 05/01/1991 | WD | Warranty Deed | SECRETARY, VETERANS A | MENDENHALL, MARK W | | | $61,000.00 | 11806 | 91007755 |
| 4 | 03/01/1991 | SHERIFFD | Sheriff Deed | PEIFER, GLENN E | SECRETARY, VETERANS A | | | $0.00 | 10895 | 91003878 |
| 5 | 03/01/1987 | WD | Warranty Deed | PEIFER, GLENN E | PEIFER, GLENN E | | | $0.00 | 70460 | 87002836 |
| 6 | 02/01/1987 | WD | Warranty Deed | CRONIN, KEVIN J | PEIFER, GLENN E | | | $46,500.00 | 70434 | 87002710 |
| 7 | 09/01/1984 | WD | Warranty Deed | SMITH, JACK G | CRONIN, KEVIN J | | | $44,777.00 | 42835 | 84003747 |
| 8 | 06/01/1983 | QCD | Quit Claim Deed | SMITH, JACK G | SMITH, JACK G | | | $0.00 | 32282 | 413490 |
| 9 | 07/01/1979 | TRUSTEED | Trustee's Deed | DARNELL, GARY R | SMITH, JACK G | | | $35,900.00 | 93335 | 355336 |
| 10 | 04/01/1978 | OTHER | Other - Misc. Documents | Unknown | DARNELL, GARY R | | | $26,000.00 | 815700 | 33097000 |
Payout Agreement
| No payout information available.. |