Property
Account |
| Property ID: | 294318 | Abbreviated Legal Description: | LAGOON PT 2 LOT 25 INCL ADJ TIDES |
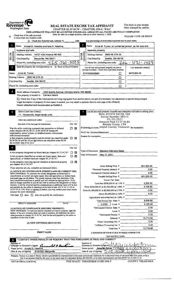
| Geographic ID: | S7310-02-00025-0 | Agent Code: | |
| Type: | Real | | |
| Tax Area: | 320 - APPRAISER-Cpvl Schl Dist, Special Dist, improved & less than 1 acre | Land Use Code | 11 |
| Open Space: | N | DFL | N |
| Historic Property: | N | Remodel Property: | N |
| Multi-Family Redevelopment: | N | | |
| Township: | | Section: | |
| Range: | |
Location |
| Address: | 3635 OCEANSIDE DR GREENBANK, WA 98253 | Mapsco: | |
| Neighborhood: | Cycle 3 | Map ID: | 394 |
| Neighborhood CD: | 3 |
Owner |
| Name: | KAMARA, DONNA | Owner ID: | 297652 |
| Mailing Address: | 3635 OCEANSIDE DR GREENBANK, WA 98253 | % Ownership: | 100.0000000000% |
| | | Exemptions: | |
Taxes and Assessment Details
Values
| (+) Improvement Homesite Value: | + | $0 | |
| (+) Improvement Non-Homesite Value: | + | $301,840 | |
| (+) Land Homesite Value: | + | $0 | |
| (+) Land Non-Homesite Value: | + | $729,000 | |
| (+) Curr Use (HS): | + | $0 | $0 |
| (+) Curr Use (NHS): | + | $0 | $0 |
| | | -------------------------- | |
| (=) Market Value: | = | $1,030,840 | |
| (–) Productivity Loss: | – | $0 | |
| | | -------------------------- | |
| (=) Subtotal: | = | $1,030,840 | |
| (+) Senior Appraised Value: | + | $0 | |
| (+) Non-Senior Appraised Value: | + | $1,030,840 | |
| | | -------------------------- | |
| (=) Total Appraised Value: | = | $1,030,840 | |
| (–) Senior Exemption Loss: | – | $0 | |
| (–) Exemption Loss: | – | $0 | |
| | | -------------------------- | |
| (=) Taxable Value: | = | $1,030,840 | |
Taxing Jurisdiction
| Owner: | KAMARA, DONNA | | |
| % Ownership: | 100.0000000000% | | |
| Total Value: | $1,030,840 | | |
| Tax Area: | 320 - APPRAISER-Cpvl Schl Dist, Special Dist, improved & less than 1 acre |
| CF | Conservation Futures | 0.0316035091 | $1,030,840 | $1,030,840 | $32.58 | | |
| CEM2 | Cemetery #2 | 0.0095056933 | $1,030,840 | $1,030,840 | $9.80 | | |
| FIRE5 | Fire & Rescue Dist #5 C Whidbey GEN | 1.2008080668 | $1,030,840 | $1,030,840 | $1,237.84 | | |
| FIRE5BOND | Fire & Rescue Dist #5 C Whidbey BOND | 0.1400090713 | $1,030,840 | $1,030,840 | $144.33 | | |
| HOBOND | Hospital BOND | 0.1910887512 | $1,030,840 | $1,030,840 | $196.98 | | |
| HOGEN | Hospital GEN | 0.3902502903 | $1,030,840 | $1,030,840 | $402.29 | | |
| CE | County Current Expense | 0.3708482477 | $1,030,840 | $1,030,840 | $382.29 | | |
| CR | County Roads | 0.4584763726 | $1,030,840 | $1,030,840 | $472.62 | | |
| ISLANDEMS | Hospital GEN (EMS) | 0.5000000000 | $1,030,840 | $1,030,840 | $515.42 | | |
| LIB | Library Sno-Isle GEN | 0.3153421757 | $1,030,840 | $1,030,840 | $325.07 | | |
| LIBCAP | Library Sno-Isle BOND (Cap Fac Imp Area) | 0.0543427938 | $1,030,840 | $1,030,840 | $56.02 | | |
| POCOUP | Port of Coupeville GEN | 0.1093371703 | $1,030,840 | $1,030,840 | $112.71 | | |
| POCOUPIDD | Port of Coupeville IDD | 0.3409740022 | $1,030,840 | $1,030,840 | $351.49 | | |
| COUPSDTECH | School 204 CP (TECH) | 0.7545480007 | $1,030,840 | $1,030,840 | $777.82 | | |
| SCH204MO | School 204 Enrichment | 0.6716186034 | $1,030,840 | $1,030,840 | $692.33 | | |
| ST | State School | 1.3035497053 | $1,030,840 | $1,030,840 | $1,343.75 | | |
| ST2 | State School Part 2 | 0.8169543533 | $1,030,840 | $1,030,840 | $842.15 | | |
| | Total Tax Rate: | 7.6592568070 | | | | | |
| | | | | Taxes w/Current Exemptions: | $7,895.49 | | |
| | | | | Taxes w/o Exemptions: | $7,895.49 | | |
Improvement / Building
| Improvement #1: | RESIDENTIAL | State Code: | Y | 2018.0 sqft | Value: | $301,840 |
| Bathrooms: | 2 | Bedrooms: | 1 | | Ceiling: | DRY WALL SPRAYED | Exterior Wall/Cover: | COMMON BRICK VENEER | | Floor Covering: | VINYL TILE/CARP 20-80 | Floor Structure: | WOOD W/SUBFLOOR | | Foundation: | CONCRETE | Heating: | BASEBOARD ELECTRIC | | Interior Finish: | DRYWALL PAINT | Plumbing Fixture Cnt: | 9 | | Roof Slope: | FLAT | Roof Structure/Cover: | CJ WOOD SHAKES |
|
| | Type | Description | Class CD | Sub Class CD | Year Built | Area |
| | BAS | BASE/MAIN FLOOR | 3 | 0 | 1971 | 993.0 |
| | AGR | ATTACHED GARAGE | 3 | 0 | 1971 | 700.0 |
| | UPS | UPPER STORY | 3 | 0 | 1971 | 1025.0 |
| | OWP | OPEN WOOD PORCH W/STEPS | 3 | 0 | 1971 | 717.0 |
| | OWR | OPEN WOOD PORCH W/STEPS/ROOF | 3 | 0 | 1971 | 348.0 |
| | oRAF | RAMP/FLOAT | 3 | 0 | 1971 | 0.0 |
Sketch
Property Image
Land
| 1 | LB | LOW BANK | 0.0000 | 0.00 | 71.00 | 0.00 | 1.00 | $728,000 | $0 |
| 2 | 55 | TIDES | 0.0000 | 0.00 | 100.00 | 0.00 | 1.00 | $1,000 | $0 |
Roll Value History
| 2026 | N/A | N/A | N/A | N/A | N/A |
| 2025 | $301,840 | $729,000 | $0 | $1,030,840 | $1,030,840 |
| 2024 | $311,852 | $729,000 | $0 | $1,040,852 | $1,040,852 |
| 2023 | $316,064 | $729,000 | $0 | $1,045,064 | $1,045,064 |
| 2022 | $291,517 | $701,000 | $0 | $992,517 | $992,517 |
| 2021 | $258,905 | $451,000 | $0 | $709,905 | $709,905 |
| 2020 | $253,615 | $451,000 | $0 | $704,615 | $704,615 |
| 2019 | $169,224 | $501,000 | $0 | $670,224 | $670,224 |
| 2018 | $169,787 | $501,000 | $0 | $670,787 | $670,787 |
| 2017 | $170,911 | $351,000 | $0 | $521,911 | $521,911 |
| 2016 | $173,160 | $241,000 | $0 | $414,160 | $414,160 |
| 2015 | $175,411 | $201,000 | $0 | $376,411 | $376,411 |
| 2014 | $177,662 | $201,000 | $0 | $378,662 | $378,662 |
| 2013 | $162,377 | $176,000 | $0 | $338,377 | $338,377 |
| 2012 | $164,740 | $216,002 | $0 | $380,742 | $380,742 |
| 2011 | $167,103 | $216,002 | $0 | $383,105 | $383,105 |
| 2010 | $179,256 | $216,002 | $0 | $395,258 | $395,258 |
| 2009 | $188,039 | $330,670 | $0 | $518,709 | $518,709 |
| 2008 | $191,735 | $330,670 | $0 | $522,405 | $522,405 |
| 2007 | $166,030 | $279,803 | $0 | $445,833 | $445,833 |
Deed and Sales History
| 1 | 12/31/2020 | QCD | Quit Claim Deed | KAMARA, ALVIN F / DONNA M | KAMARA, DONNA | | | $0.00 | 46476 | 4507290 |
| 2 | 07/01/1992 | WD | Warranty Deed | ANDERSON, CLINTON T | KAMARA, ALVIN F | | | $225,000.00 | 22542 | 92012222 |
| 3 | 01/01/1900 | OTHER | Other - Misc. Documents | Unknown | ANDERSON, CLINTON T | | | $0.00 | 0 | 0 |
Payout Agreement
| No payout information available.. |