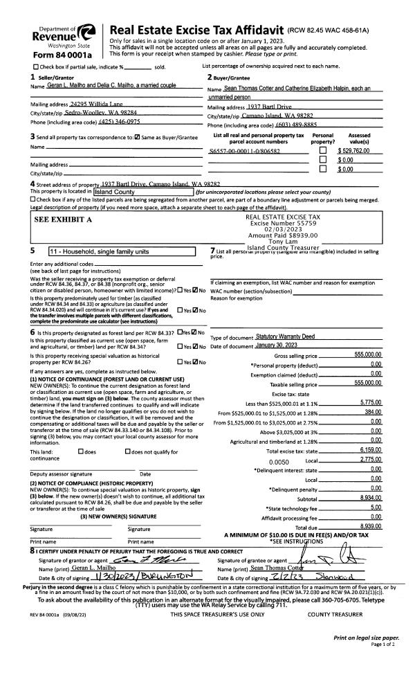
Property
Account |
| Property ID: | 294461 | Abbreviated Legal Description: | LAGOON PT 2 LOT 40 |
| Geographic ID: | S7310-02-00040-0 | Agent Code: | |
| Type: | Real | | |
| Tax Area: | 320 - APPRAISER-Cpvl Schl Dist, Special Dist, improved & less than 1 acre | Land Use Code | 11 |
| Open Space: | N | DFL | N |
| Historic Property: | N | Remodel Property: | N |
| Multi-Family Redevelopment: | N | | |
| Township: | | Section: | |
| Range: | |
Location |
| Address: | 3703 OCEANSIDE DR GREENBANK, WA 98253 | Mapsco: | |
| Neighborhood: | Cycle 3 | Map ID: | 394 |
| Neighborhood CD: | 3 |
Owner |
| Name: | ROBERTS TTEE, KATHRYN | Owner ID: | 306156 |
| Mailing Address: | 3703 OCEANSIDE DR GREENBANK, WA 98253 | % Ownership: | 100.0000000000% |
| | | Exemptions: | |
Taxes and Assessment Details
Values
| (+) Improvement Homesite Value: | + | $0 | |
| (+) Improvement Non-Homesite Value: | + | $366,934 | |
| (+) Land Homesite Value: | + | $0 | |
| (+) Land Non-Homesite Value: | + | $490,000 | |
| (+) Curr Use (HS): | + | $0 | $0 |
| (+) Curr Use (NHS): | + | $0 | $0 |
| | | -------------------------- | |
| (=) Market Value: | = | $856,934 | |
| (–) Productivity Loss: | – | $0 | |
| | | -------------------------- | |
| (=) Subtotal: | = | $856,934 | |
| (+) Senior Appraised Value: | + | $0 | |
| (+) Non-Senior Appraised Value: | + | $856,934 | |
| | | -------------------------- | |
| (=) Total Appraised Value: | = | $856,934 | |
| (–) Senior Exemption Loss: | – | $0 | |
| (–) Exemption Loss: | – | $0 | |
| | | -------------------------- | |
| (=) Taxable Value: | = | $856,934 | |
Taxing Jurisdiction
| Owner: | ROBERTS TTEE, KATHRYN | | |
| % Ownership: | 100.0000000000% | | |
| Total Value: | $856,934 | | |
| Tax Area: | 320 - APPRAISER-Cpvl Schl Dist, Special Dist, improved & less than 1 acre |
| CF | Conservation Futures | 0.0316035091 | $856,934 | $856,934 | $27.08 | | |
| CEM2 | Cemetery #2 | 0.0095056933 | $856,934 | $856,934 | $8.15 | | |
| FIRE5 | Fire & Rescue Dist #5 C Whidbey GEN | 1.2008080668 | $856,934 | $856,934 | $1,029.01 | | |
| FIRE5BOND | Fire & Rescue Dist #5 C Whidbey BOND | 0.1400090713 | $856,934 | $856,934 | $119.98 | | |
| HOBOND | Hospital BOND | 0.1910887512 | $856,934 | $856,934 | $163.75 | | |
| HOGEN | Hospital GEN | 0.3902502903 | $856,934 | $856,934 | $334.42 | | |
| CE | County Current Expense | 0.3708482477 | $856,934 | $856,934 | $317.79 | | |
| CR | County Roads | 0.4584763726 | $856,934 | $856,934 | $392.88 | | |
| ISLANDEMS | Hospital GEN (EMS) | 0.5000000000 | $856,934 | $856,934 | $428.47 | | |
| LIB | Library Sno-Isle GEN | 0.3153421757 | $856,934 | $856,934 | $270.23 | | |
| LIBCAP | Library Sno-Isle BOND (Cap Fac Imp Area) | 0.0543427938 | $856,934 | $856,934 | $46.57 | | |
| POCOUP | Port of Coupeville GEN | 0.1093371703 | $856,934 | $856,934 | $93.69 | | |
| POCOUPIDD | Port of Coupeville IDD | 0.3409740022 | $856,934 | $856,934 | $292.19 | | |
| COUPSDTECH | School 204 CP (TECH) | 0.7545480007 | $856,934 | $856,934 | $646.60 | | |
| SCH204MO | School 204 Enrichment | 0.6716186034 | $856,934 | $856,934 | $575.53 | | |
| ST | State School | 1.3035497053 | $856,934 | $856,934 | $1,117.06 | | |
| ST2 | State School Part 2 | 0.8169543533 | $856,934 | $856,934 | $700.08 | | |
| | Total Tax Rate: | 7.6592568070 | | | | | |
| | | | | Taxes w/Current Exemptions: | $6,563.48 | | |
| | | | | Taxes w/o Exemptions: | $6,563.48 | | |
Improvement / Building
| Improvement #1: | RESIDENTIAL | State Code: | Y | 2530.0 sqft | Value: | $366,934 |
| Bathrooms: | 2 | Bedrooms: | 2 | | Ceiling: | DRYWALL PAINTED | Exterior Wall/Cover: | SHINGLE | | Floor Covering: | HARDWOOD/CARP 20-80 | Floor Structure: | WOOD W/SUBFLOOR | | Foundation: | CONCRETE | Heating: | WALL HEAT ELECTRIC | | Interior Finish: | DRYWALL PAINT | Plumbing Fixture Cnt: | 9 | | Roof Slope: | FLAT | Roof Structure/Cover: | BEAM BUILT-UP ROCK |
|
| | Type | Description | Class CD | Sub Class CD | Year Built | Area |
| | BAS | BASE/MAIN FLOOR | 3 | 0 | 1995 | 1218.0 |
| | OP4 | OPEN PORCH W/CEILING-ROOF | 3 | 0 | 1995 | 30.0 |
| | OP4 | OPEN PORCH W/CEILING-ROOF | 3 | 0 | 1995 | 40.0 |
| | AGR | ATTACHED GARAGE | 3 | 0 | 1995 | 612.0 |
| | oRAF | RAMP/FLOAT | 3 | 0 | 1995 | 0.0 |
| | UPS | UPPER STORY | 3 | 0 | 1995 | 1312.0 |
Sketch
Property Image
Land
| 1 | LB | LOW BANK | 0.0000 | 0.00 | 61.00 | 0.00 | 1.00 | $490,000 | $0 |
Roll Value History
| 2026 | N/A | N/A | N/A | N/A | N/A |
| 2025 | $366,934 | $490,000 | $0 | $856,934 | $856,934 |
| 2024 | $371,413 | $490,000 | $0 | $861,413 | $861,413 |
| 2023 | $375,888 | $520,000 | $0 | $895,888 | $895,888 |
| 2022 | $347,267 | $500,000 | $0 | $847,267 | $847,267 |
| 2021 | $309,407 | $320,000 | $0 | $629,407 | $629,407 |
| 2020 | $303,228 | $320,000 | $0 | $623,228 | $623,228 |
| 2019 | $202,679 | $320,000 | $0 | $522,679 | $522,679 |
| 2018 | $203,322 | $300,000 | $0 | $503,322 | $503,322 |
| 2017 | $204,608 | $250,000 | $0 | $454,608 | $454,608 |
| 2016 | $207,187 | $240,000 | $0 | $447,187 | $447,187 |
| 2015 | $209,766 | $175,000 | $0 | $384,766 | $384,766 |
| 2014 | $212,345 | $150,000 | $0 | $362,345 | $362,345 |
| 2013 | $209,766 | $150,000 | $0 | $359,766 | $359,766 |
| 2012 | $212,345 | $188,490 | $0 | $400,835 | $400,835 |
| 2011 | $214,926 | $188,490 | $0 | $403,416 | $403,416 |
| 2010 | $223,120 | $188,490 | $0 | $411,610 | $411,610 |
| 2009 | $232,836 | $289,018 | $0 | $521,854 | $521,854 |
| 2008 | $235,745 | $289,018 | $0 | $524,763 | $524,763 |
| 2007 | $235,244 | $245,037 | $0 | $480,281 | $480,281 |
Deed and Sales History
| 1 | 06/23/2022 | QCD | Quit Claim Deed | BENNETT, KATHRYN | ROBERTS TTEE, KATHRYN | | | $0.00 | 53631 | 4547346 |
| 2 | 09/22/2022 | QCD | Quit Claim Deed | BENNETT, KATHRYN | ROBERTS TTEE, KATHRYN | | | $0.00 | 54683 | 4551802 |
| 3 | 12/06/2011 | PRD | Personal Representatives Deed | BENNETT, ROBERT | BENNETT, KATHRYN | | | $0.00 | 6385 | 4306369 |
| 4 | 08/01/1989 | WD | Warranty Deed | KOPP, BARBARA M | BENNETT, ROBERT | | | $46,000.00 | 93330 | 89011196 |
| 5 | 09/01/1986 | DECREE | Divorce Decree/Legal Separation | KOPP, GERALD G | KOPP, BARBARA M | | | $0.00 | 62980 | 86013457 |
| 6 | 01/01/1900 | OTHER | Other - Misc. Documents | Unknown | KOPP, GERALD G | | | $0.00 | 0 | 0 |
Payout Agreement
| No payout information available.. |