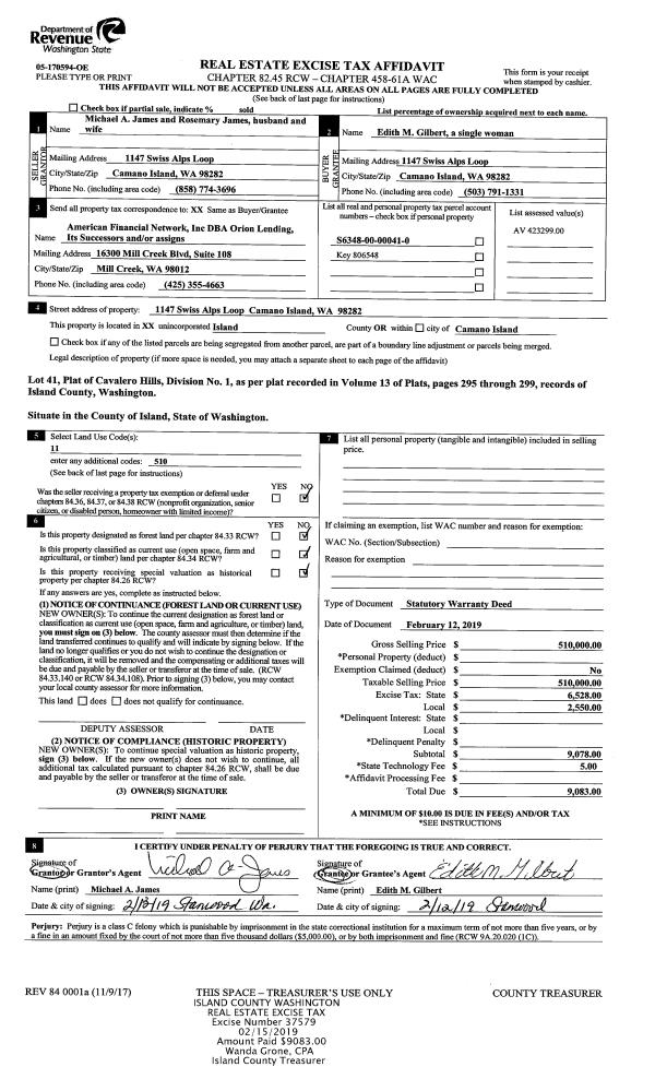
Property
Account |
| Property ID: | 294568 | Abbreviated Legal Description: | LAGOON PT 2 LOT 50 |
| Geographic ID: | S7310-02-00050-0 | Agent Code: | |
| Type: | Real | | |
| Tax Area: | 320 - APPRAISER-Cpvl Schl Dist, Special Dist, improved & less than 1 acre | Land Use Code | 11 |
| Open Space: | N | DFL | N |
| Historic Property: | N | Remodel Property: | N |
| Multi-Family Redevelopment: | N | | |
| Township: | | Section: | |
| Range: | |
Location |
| Address: | 3745 OCEANSIDE DR GREENBANK, WA 98253 | Mapsco: | |
| Neighborhood: | Cycle 3 | Map ID: | 394 |
| Neighborhood CD: | 3 |
Owner |
| Name: | ROCKWELL, GEORGE G | Owner ID: | 272351 |
| Mailing Address: | SUSAN M ROCKWELL 5645 NE 55TH ST SEATTLE, WA 98105 | % Ownership: | 100.0000000000% |
| | | Exemptions: | |
Taxes and Assessment Details
Values
| (+) Improvement Homesite Value: | + | $0 | |
| (+) Improvement Non-Homesite Value: | + | $34,000 | |
| (+) Land Homesite Value: | + | $0 | |
| (+) Land Non-Homesite Value: | + | $285,000 | |
| (+) Curr Use (HS): | + | $0 | $0 |
| (+) Curr Use (NHS): | + | $0 | $0 |
| | | -------------------------- | |
| (=) Market Value: | = | $319,000 | |
| (–) Productivity Loss: | – | $0 | |
| | | -------------------------- | |
| (=) Subtotal: | = | $319,000 | |
| (+) Senior Appraised Value: | + | $0 | |
| (+) Non-Senior Appraised Value: | + | $319,000 | |
| | | -------------------------- | |
| (=) Total Appraised Value: | = | $319,000 | |
| (–) Senior Exemption Loss: | – | $0 | |
| (–) Exemption Loss: | – | $0 | |
| | | -------------------------- | |
| (=) Taxable Value: | = | $319,000 | |
Taxing Jurisdiction
| Owner: | ROCKWELL, GEORGE G | | |
| % Ownership: | 100.0000000000% | | |
| Total Value: | $319,000 | | |
| Tax Area: | 320 - APPRAISER-Cpvl Schl Dist, Special Dist, improved & less than 1 acre |
| CF | Conservation Futures | 0.0316035091 | $319,000 | $319,000 | $10.08 | | |
| CEM2 | Cemetery #2 | 0.0095056933 | $319,000 | $319,000 | $3.03 | | |
| FIRE5 | Fire & Rescue Dist #5 C Whidbey GEN | 1.2008080668 | $319,000 | $319,000 | $383.06 | | |
| FIRE5BOND | Fire & Rescue Dist #5 C Whidbey BOND | 0.1400090713 | $319,000 | $319,000 | $44.66 | | |
| HOBOND | Hospital BOND | 0.1910887512 | $319,000 | $319,000 | $60.96 | | |
| HOGEN | Hospital GEN | 0.3902502903 | $319,000 | $319,000 | $124.49 | | |
| CE | County Current Expense | 0.3708482477 | $319,000 | $319,000 | $118.30 | | |
| CR | County Roads | 0.4584763726 | $319,000 | $319,000 | $146.25 | | |
| ISLANDEMS | Hospital GEN (EMS) | 0.5000000000 | $319,000 | $319,000 | $159.50 | | |
| LIB | Library Sno-Isle GEN | 0.3153421757 | $319,000 | $319,000 | $100.59 | | |
| LIBCAP | Library Sno-Isle BOND (Cap Fac Imp Area) | 0.0543427938 | $319,000 | $319,000 | $17.34 | | |
| POCOUP | Port of Coupeville GEN | 0.1093371703 | $319,000 | $319,000 | $34.88 | | |
| POCOUPIDD | Port of Coupeville IDD | 0.3409740022 | $319,000 | $319,000 | $108.77 | | |
| COUPSDTECH | School 204 CP (TECH) | 0.7545480007 | $319,000 | $319,000 | $240.70 | | |
| SCH204MO | School 204 Enrichment | 0.6716186034 | $319,000 | $319,000 | $214.25 | | |
| ST | State School | 1.3035497053 | $319,000 | $319,000 | $415.83 | | |
| ST2 | State School Part 2 | 0.8169543533 | $319,000 | $319,000 | $260.61 | | |
| | Total Tax Rate: | 7.6592568070 | | | | | |
| | | | | Taxes w/Current Exemptions: | $2,443.30 | | |
| | | | | Taxes w/o Exemptions: | $2,443.30 | | |
Improvement / Building
| Improvement #1: | RESIDENTIAL | State Code: | Y | 0.0 sqft | Value: | $34,000 |
Sketch
| No sketches available for this property. |
Property Image
Land
| 1 | LB | LOW BANK | 0.0000 | 0.00 | 60.00 | 0.00 | 1.00 | $285,000 | $0 |
Roll Value History
| 2026 | N/A | N/A | N/A | N/A | N/A |
| 2025 | $34,000 | $285,000 | $0 | $319,000 | $319,000 |
| 2024 | $34,000 | $285,000 | $0 | $319,000 | $319,000 |
| 2023 | $34,000 | $285,000 | $0 | $319,000 | $319,000 |
| 2022 | $34,000 | $275,000 | $0 | $309,000 | $309,000 |
| 2021 | $34,000 | $200,000 | $0 | $234,000 | $234,000 |
| 2020 | $34,000 | $200,000 | $0 | $234,000 | $234,000 |
| 2019 | $6,472 | $200,000 | $0 | $206,472 | $206,472 |
| 2018 | $6,472 | $180,000 | $0 | $186,472 | $186,472 |
| 2017 | $6,472 | $180,000 | $0 | $186,472 | $186,472 |
| 2016 | $6,472 | $140,000 | $0 | $146,472 | $146,472 |
| 2015 | $5,472 | $140,000 | $0 | $145,472 | $145,472 |
| 2014 | $5,472 | $150,000 | $0 | $155,472 | $155,472 |
| 2013 | $5,472 | $150,000 | $0 | $155,472 | $155,472 |
| 2012 | $5,472 | $185,400 | $0 | $190,872 | $190,872 |
| 2011 | $5,472 | $185,400 | $0 | $190,872 | $190,872 |
| 2010 | $5,472 | $185,400 | $0 | $190,872 | $190,872 |
| 2009 | $5,640 | $284,280 | $0 | $289,920 | $289,920 |
| 2008 | $5,808 | $284,280 | $0 | $290,088 | $290,088 |
| 2007 | $3,000 | $241,020 | $0 | $244,020 | $244,020 |
Deed and Sales History
| 1 | 05/01/2019 | WD | Warranty Deed | SCUDDER TRUSTEE, WALTER J | ROCKWELL, GEORGE G | | | $229,995.00 | 38313 | 4462479 |
| 2 | 08/23/2006 | 5 | DNU - Marriage License/Name Change | SCUDDER, WALTER J | SCUDDER TRUSTEE, WALTER J | | | $0.00 | 63491 | 4178954 |
| 3 | 04/01/1985 | WD | Warranty Deed | TODD, FRANK | SCUDDER, WALTER J | | | $42,000.00 | 51134 | 85004595 |
| 4 | 08/01/1983 | WD | Warranty Deed | WE, | TODD, FRANK | | | $40,000.00 | 32534 | 414587 |
| 5 | 01/01/1900 | OTHER | Other - Misc. Documents | ADAMS, RICHARD L | WE, | | | $0.00 | 380120 | 30000000 |
| 6 | 01/01/1900 | OTHER | Other - Misc. Documents | Unknown | ADAMS, RICHARD L | | | $0.00 | 0 | 0 |
Payout Agreement
| No payout information available.. |