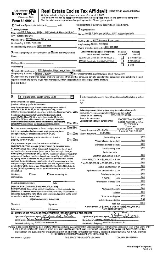
Property
Account |
| Property ID: | 294648 | Abbreviated Legal Description: | LAGOON PT 2 LOTS 58 & 59 |
| Geographic ID: | S7310-02-00058-0 | Agent Code: | |
| Type: | Real | | |
| Tax Area: | 320 - APPRAISER-Cpvl Schl Dist, Special Dist, improved & less than 1 acre | Land Use Code | 11 |
| Open Space: | N | DFL | N |
| Historic Property: | N | Remodel Property: | N |
| Multi-Family Redevelopment: | N | | |
| Township: | | Section: | |
| Range: | |
Location |
| Address: | 3787 OCEANSIDE DR GREENBANK, WA 98253 | Mapsco: | |
| Neighborhood: | Cycle 3 | Map ID: | 394 |
| Neighborhood CD: | 3 |
Owner |
| Name: | LUFT, DORIS RITA | Owner ID: | 316727 |
| Mailing Address: | 3783 OCEANSIDE DR GREENBANK, WA 98253 | % Ownership: | 100.0000000000% |
| | | Exemptions: | |
Taxes and Assessment Details
Values
| (+) Improvement Homesite Value: | + | $0 | |
| (+) Improvement Non-Homesite Value: | + | $639,969 | |
| (+) Land Homesite Value: | + | $0 | |
| (+) Land Non-Homesite Value: | + | $490,000 | |
| (+) Curr Use (HS): | + | $0 | $0 |
| (+) Curr Use (NHS): | + | $0 | $0 |
| | | -------------------------- | |
| (=) Market Value: | = | $1,129,969 | |
| (–) Productivity Loss: | – | $0 | |
| | | -------------------------- | |
| (=) Subtotal: | = | $1,129,969 | |
| (+) Senior Appraised Value: | + | $0 | |
| (+) Non-Senior Appraised Value: | + | $1,129,969 | |
| | | -------------------------- | |
| (=) Total Appraised Value: | = | $1,129,969 | |
| (–) Senior Exemption Loss: | – | $0 | |
| (–) Exemption Loss: | – | $0 | |
| | | -------------------------- | |
| (=) Taxable Value: | = | $1,129,969 | |
Taxing Jurisdiction
| Owner: | LUFT, DORIS RITA | | |
| % Ownership: | 100.0000000000% | | |
| Total Value: | $1,129,969 | | |
| Tax Area: | 320 - APPRAISER-Cpvl Schl Dist, Special Dist, improved & less than 1 acre |
| CF | Conservation Futures | 0.0316035091 | $1,129,969 | $1,129,969 | $35.71 | | |
| CEM2 | Cemetery #2 | 0.0095056933 | $1,129,969 | $1,129,969 | $10.74 | | |
| FIRE5 | Fire & Rescue Dist #5 C Whidbey GEN | 1.2008080668 | $1,129,969 | $1,129,969 | $1,356.88 | | |
| FIRE5BOND | Fire & Rescue Dist #5 C Whidbey BOND | 0.1400090713 | $1,129,969 | $1,129,969 | $158.21 | | |
| HOBOND | Hospital BOND | 0.1910887512 | $1,129,969 | $1,129,969 | $215.92 | | |
| HOGEN | Hospital GEN | 0.3902502903 | $1,129,969 | $1,129,969 | $440.97 | | |
| CE | County Current Expense | 0.3708482477 | $1,129,969 | $1,129,969 | $419.05 | | |
| CR | County Roads | 0.4584763726 | $1,129,969 | $1,129,969 | $518.06 | | |
| ISLANDEMS | Hospital GEN (EMS) | 0.5000000000 | $1,129,969 | $1,129,969 | $564.98 | | |
| LIB | Library Sno-Isle GEN | 0.3153421757 | $1,129,969 | $1,129,969 | $356.33 | | |
| LIBCAP | Library Sno-Isle BOND (Cap Fac Imp Area) | 0.0543427938 | $1,129,969 | $1,129,969 | $61.41 | | |
| POCOUP | Port of Coupeville GEN | 0.1093371703 | $1,129,969 | $1,129,969 | $123.55 | | |
| POCOUPIDD | Port of Coupeville IDD | 0.3409740022 | $1,129,969 | $1,129,969 | $385.29 | | |
| COUPSDTECH | School 204 CP (TECH) | 0.7545480007 | $1,129,969 | $1,129,969 | $852.62 | | |
| SCH204MO | School 204 Enrichment | 0.6716186034 | $1,129,969 | $1,129,969 | $758.91 | | |
| ST | State School | 1.3035497053 | $1,129,969 | $1,129,969 | $1,472.97 | | |
| ST2 | State School Part 2 | 0.8169543533 | $1,129,969 | $1,129,969 | $923.13 | | |
| | Total Tax Rate: | 7.6592568070 | | | | | |
| | | | | Taxes w/Current Exemptions: | $8,654.73 | | |
| | | | | Taxes w/o Exemptions: | $8,654.73 | | |
Improvement / Building
| Improvement #1: | RESIDENTIAL | State Code: | Y | 4140.0 sqft | Value: | $639,969 |
| Bathrooms: | 3.5 | Bedrooms: | 3 | | Ceiling: | DRYWALL PAINTED | Cooling: | HEAT PUMP/CONV/V | | Exterior Wall/Cover: | CEMENT FIBER | Floor Covering: | HARDWOOD/CARP 80-20 | | Floor Structure: | WOOD W/SUBFLOOR | Foundation: | CONCRETE | | Interior Finish: | DRYWALL PAINT | Plumbing Fixture Cnt: | 15 | | Roof Slope: | 4" IN 12" | Roof Structure/Cover: | CJ ALUMINIUM HEAVY |
|
| | Type | Description | Class CD | Sub Class CD | Year Built | Area |
| | BAS | BASE/MAIN FLOOR | 4 | 0 | 2006 | 2660.0 |
| | LOF | LOFT | 4 | 0 | 2006 | 888.0 |
| | OP4 | OPEN PORCH W/CEILING-ROOF | 4 | 0 | 2006 | 264.0 |
| | BIG | BUILT IN GARAGE | 4 | 0 | 2006 | 1480.0 |
| | UPS | UPPER STORY | 4 | 0 | 2006 | 592.0 |
| | OWC | OPEN WOOD PORCH W/STEPS/ROOF/C | 4 | 0 | 2006 | 108.0 |
| | oRAF | RAMP/FLOAT | 4 | 0 | 2006 | 0.0 |
| | UTY | STORAGE/UTILITY | 4 | 0 | 2006 | 32.0 |
Sketch
Property Image
Land
| 1 | LB | LOW BANK | 0.0000 | 0.00 | 60.00 | 0.00 | 1.00 | $490,000 | $0 |
Roll Value History
| 2026 | N/A | N/A | N/A | N/A | N/A |
| 2025 | $639,969 | $490,000 | $0 | $1,129,969 | $1,129,969 |
| 2024 | $647,296 | $490,000 | $0 | $1,137,296 | $1,137,296 |
| 2023 | $654,624 | $520,000 | $0 | $1,174,624 | $1,174,624 |
| 2022 | $602,227 | $500,000 | $0 | $1,102,227 | $1,102,227 |
| 2021 | $533,349 | $320,000 | $0 | $853,349 | $853,349 |
| 2020 | $521,725 | $320,000 | $0 | $841,725 | $841,725 |
| 2019 | $415,466 | $320,000 | $0 | $735,466 | $735,466 |
| 2018 | $416,600 | $300,000 | $0 | $716,600 | $716,600 |
| 2017 | $418,864 | $250,000 | $0 | $668,864 | $668,864 |
| 2016 | $423,397 | $240,000 | $0 | $663,397 | $663,397 |
| 2015 | $425,732 | $175,000 | $0 | $600,732 | $600,732 |
| 2014 | $430,260 | $150,000 | $0 | $580,260 | $580,260 |
| 2013 | $416,511 | $190,962 | $0 | $607,473 | $607,473 |
| 2012 | $420,841 | $190,962 | $0 | $611,803 | $611,803 |
| 2011 | $425,171 | $190,962 | $0 | $616,133 | $616,133 |
| 2010 | $439,266 | $190,962 | $0 | $630,228 | $630,228 |
| 2009 | $457,290 | $248,251 | $0 | $705,541 | $705,541 |
| 2008 | $473,009 | $248,251 | $0 | $721,260 | $721,260 |
| 2007 | $453,837 | $248,251 | $0 | $702,088 | $702,088 |
Deed and Sales History
| 1 | 05/20/2025 | PRD | Personal Representatives Deed | DORIS RITA LUFT, PR | LUFT TTEE, DORIS RITA | | | $0.00 | 63634 | 4586459 |
| 2 | 05/20/2025 | PRD | Personal Representatives Deed | DORIS RITA LUFT, PR | LUFT, DORIS RITA | | | $0.00 | 63633 | 4586456 |
| 3 | 12/19/2012 | PRD | Personal Representatives Deed | MESSER, ANDREW C | MESSER, ANDREW C | | | $0.00 | 10088 | 4331069 |
| 4 | 05/01/2006 | BLA | DNU - Boundary Line Adjustment | MESSER, ANDREW C | MESSER, ANDREW C | | | $0.00 | 70919 | 4142960 |
| 5 | 11/12/1999 | WD | Warranty Deed | BARNETT, NORMAN R | MESSER, ANDREW C | | | $110,000.00 | 94797 | 99026915 |
| 6 | 01/01/1900 | OTHER | Other - Misc. Documents | Unknown | BARNETT, NORMAN R | | | $0.00 | 0 | 0 |
Payout Agreement
| No payout information available.. |