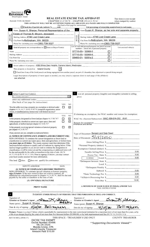
Property
Account |
| Property ID: | 294915 | Abbreviated Legal Description: | LAGOON PT 3 LOT 25 |
| Geographic ID: | S7310-03-00025-0 | Agent Code: | |
| Type: | Real | | |
| Tax Area: | 320 - APPRAISER-Cpvl Schl Dist, Special Dist, improved & less than 1 acre | Land Use Code | 11 |
| Open Space: | N | DFL | N |
| Historic Property: | N | Remodel Property: | N |
| Multi-Family Redevelopment: | N | | |
| Township: | | Section: | |
| Range: | |
Location |
| Address: | 3682 STEELHEAD DR GREENBANK, WA 98253 | Mapsco: | |
| Neighborhood: | Cycle 3 | Map ID: | 394 |
| Neighborhood CD: | 3 |
Owner |
| Name: | CONANT, HOWARD R | Owner ID: | 278071 |
| Mailing Address: | STEPHANIE A SERRELL-CONANT 3682 STEELHEAD DR GREENBANK, WA 98253 | % Ownership: | 100.0000000000% |
| | | Exemptions: | |
Taxes and Assessment Details
Values
| (+) Improvement Homesite Value: | + | $0 | |
| (+) Improvement Non-Homesite Value: | + | $490,422 | |
| (+) Land Homesite Value: | + | $0 | |
| (+) Land Non-Homesite Value: | + | $490,000 | |
| (+) Curr Use (HS): | + | $0 | $0 |
| (+) Curr Use (NHS): | + | $0 | $0 |
| | | -------------------------- | |
| (=) Market Value: | = | $980,422 | |
| (–) Productivity Loss: | – | $0 | |
| | | -------------------------- | |
| (=) Subtotal: | = | $980,422 | |
| (+) Senior Appraised Value: | + | $0 | |
| (+) Non-Senior Appraised Value: | + | $980,422 | |
| | | -------------------------- | |
| (=) Total Appraised Value: | = | $980,422 | |
| (–) Senior Exemption Loss: | – | $0 | |
| (–) Exemption Loss: | – | $0 | |
| | | -------------------------- | |
| (=) Taxable Value: | = | $980,422 | |
Taxing Jurisdiction
| Owner: | CONANT, HOWARD R | | |
| % Ownership: | 100.0000000000% | | |
| Total Value: | $980,422 | | |
| Tax Area: | 320 - APPRAISER-Cpvl Schl Dist, Special Dist, improved & less than 1 acre |
| CF | Conservation Futures | 0.0316035091 | $980,422 | $980,422 | $30.98 | | |
| CEM2 | Cemetery #2 | 0.0095056933 | $980,422 | $980,422 | $9.32 | | |
| FIRE5 | Fire & Rescue Dist #5 C Whidbey GEN | 1.2008080668 | $980,422 | $980,422 | $1,177.30 | | |
| FIRE5BOND | Fire & Rescue Dist #5 C Whidbey BOND | 0.1400090713 | $980,422 | $980,422 | $137.27 | | |
| HOBOND | Hospital BOND | 0.1910887512 | $980,422 | $980,422 | $187.35 | | |
| HOGEN | Hospital GEN | 0.3902502903 | $980,422 | $980,422 | $382.61 | | |
| CE | County Current Expense | 0.3708482477 | $980,422 | $980,422 | $363.59 | | |
| CR | County Roads | 0.4584763726 | $980,422 | $980,422 | $449.50 | | |
| ISLANDEMS | Hospital GEN (EMS) | 0.5000000000 | $980,422 | $980,422 | $490.21 | | |
| LIB | Library Sno-Isle GEN | 0.3153421757 | $980,422 | $980,422 | $309.17 | | |
| LIBCAP | Library Sno-Isle BOND (Cap Fac Imp Area) | 0.0543427938 | $980,422 | $980,422 | $53.28 | | |
| POCOUP | Port of Coupeville GEN | 0.1093371703 | $980,422 | $980,422 | $107.20 | | |
| POCOUPIDD | Port of Coupeville IDD | 0.3409740022 | $980,422 | $980,422 | $334.30 | | |
| COUPSDTECH | School 204 CP (TECH) | 0.7545480007 | $980,422 | $980,422 | $739.78 | | |
| SCH204MO | School 204 Enrichment | 0.6716186034 | $980,422 | $980,422 | $658.47 | | |
| ST | State School | 1.3035497053 | $980,422 | $980,422 | $1,278.03 | | |
| ST2 | State School Part 2 | 0.8169543533 | $980,422 | $980,422 | $800.96 | | |
| | Total Tax Rate: | 7.6592568070 | | | | | |
| | | | | Taxes w/Current Exemptions: | $7,509.32 | | |
| | | | | Taxes w/o Exemptions: | $7,509.32 | | |
Improvement / Building
| Improvement #1: | RESIDENTIAL | State Code: | Y | 2010.3 sqft | Value: | $490,422 |
| Bathrooms: | 2.5 | Bedrooms: | 2 | | Ceiling: | DRYWALL PAINTED | Cooling: | HEAT PUMP/CONV/V | | Exterior Wall/Cover: | PLY/HARDBOARD T-111 | Floor Covering: | HARDWOOD/CARP 20-80 | | Floor Structure: | WOOD W/SUBFLOOR | Foundation: | CONCRETE | | Interior Finish: | DRYWALL PAINT | Plumbing Fixture Cnt: | 14 | | Roof Slope: | 4" IN 12" | Roof Structure/Cover: | CJ ALUMINIUM HEAVY |
|
| | Type | Description | Class CD | Sub Class CD | Year Built | Area |
| | BAS | BASE/MAIN FLOOR | 4 | 0 | 1998 | 2010.3 |
| | OP4 | OPEN PORCH W/CEILING-ROOF | 4 | 0 | 1998 | 52.0 |
| | BGR | BASEMENT GARAGE | 4 | 0 | 1998 | 576.0 |
| | OWP | OPEN WOOD PORCH W/STEPS | 4 | 0 | 1998 | 411.4 |
| | OCP | OPEN CARPORT | 4 | 0 | 1998 | 336.0 |
| | oRAF | RAMP/FLOAT | 4 | 0 | 1998 | 576.0 |
Sketch
Property Image
Land
| 1 | LB | LOW BANK | 0.0000 | 0.00 | 60.00 | 0.00 | 1.00 | $490,000 | $0 |
Roll Value History
| 2026 | N/A | N/A | N/A | N/A | N/A |
| 2025 | $490,422 | $490,000 | $0 | $980,422 | $980,422 |
| 2024 | $496,282 | $490,000 | $0 | $986,282 | $986,282 |
| 2023 | $502,142 | $520,000 | $0 | $1,022,142 | $1,022,142 |
| 2022 | $462,470 | $500,000 | $0 | $962,470 | $962,470 |
| 2021 | $410,146 | $320,000 | $0 | $730,146 | $730,146 |
| 2020 | $399,776 | $320,000 | $0 | $719,776 | $719,776 |
| 2019 | $269,044 | $320,000 | $0 | $589,044 | $589,044 |
| 2018 | $269,834 | $300,000 | $0 | $569,834 | $569,834 |
| 2017 | $271,420 | $250,000 | $0 | $521,420 | $521,420 |
| 2016 | $274,576 | $180,000 | $0 | $454,576 | $454,576 |
| 2015 | $277,732 | $175,000 | $0 | $452,732 | $452,732 |
| 2014 | $280,888 | $150,000 | $0 | $430,888 | $430,888 |
| 2013 | $262,338 | $150,000 | $0 | $412,338 | $412,338 |
| 2012 | $265,421 | $185,400 | $0 | $450,821 | $450,821 |
| 2011 | $268,502 | $185,400 | $0 | $453,902 | $453,902 |
| 2010 | $278,734 | $185,400 | $0 | $464,134 | $464,134 |
| 2009 | $290,699 | $284,280 | $0 | $574,979 | $574,979 |
| 2008 | $300,626 | $284,280 | $0 | $584,906 | $584,906 |
| 2007 | $299,903 | $241,020 | $0 | $540,923 | $540,923 |
Deed and Sales History
| 1 | 12/09/2016 | WD | Warranty Deed | MILLER TRUSTEE, BRYAN L | CONANT, HOWARD R | | | $665,000.00 | 27552 | 4414327 |
| 2 | 01/23/2014 | WD | Warranty Deed | FIORE JR, JOSEPH J | MILLER TRUSTEE, BRYAN L | | | $511,000.00 | 14146 | 4354565 |
| 3 | 12/30/2003 | DECREE | Divorce Decree/Legal Separation | FIORE, JOSEPH J | FIORE JR, JOSEPH J | | | $0.00 | 40082 | 4107422 |
| 4 | 07/01/1997 | WD | Warranty Deed | NEWELL, RALPH | FIORE, JOSEPH J | | | $122,000.00 | 72331 | 97011020 |
| 5 | 09/01/1994 | WD | Warranty Deed | MARTIN, CURTIS/BEVERLEY & | NEWELL, RALPH | | | $127,500.00 | 43914 | 94020336 |
| 6 | 06/01/1992 | WD | Warranty Deed | MCQUEEN, ROBERT G | MARTIN, CURTIS/BEVERLEY & | | | $0.00 | 22717 | 92013113 |
| 7 | 06/01/1992 | WD | Warranty Deed | MARTIN, CURTIS/BEVERLEY & | MCQUEEN, ROBERT G | | | $65,000.00 | 23131 | 92015277 |
| 8 | 12/01/1991 | QCD | Quit Claim Deed | MARTIN, CURTIS & | MARTIN, CURTIS/BEVERLEY & | | | $0.00 | 14369 | 91019092 |
| 9 | 03/01/1988 | QCD | Quit Claim Deed | MARTIN, CURTIS & | MARTIN, CURTIS & | | | $0.00 | 82330 | 88008746 |
| 10 | 10/01/1982 | QCD | Quit Claim Deed | MARTIN, CURTIS | MARTIN, CURTIS & | | | $0.00 | 73541 | 87015445 |
| 11 | 04/01/1981 | EZ | Easement | DAWSON, RICHARD D | MARTIN, CURTIS | | | $36,500.00 | 11087 | 381739 |
Payout Agreement
| No payout information available.. |