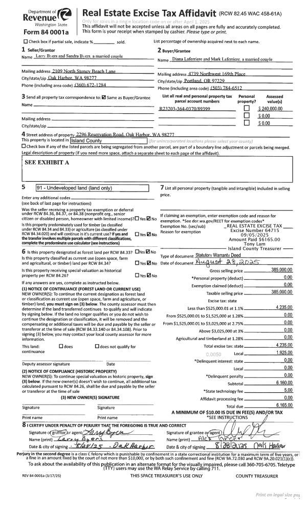
Property
Account |
| Property ID: | 29588 | Abbreviated Legal Description: | 40 COUPE DC - BG SWCR TL18 COUPE HSTD TRS E55' N291' TPB N TO ML SWLY ALG ML TP DUE W OF TPB E TPB THELMA L BENSON - LIFE EST |
| Geographic ID: | R13234-434-1330 | Agent Code: | |
| Type: | Real | | |
| Tax Area: | 300 - APPRAISER-Cpvl Schl Dist, in Cpvl | Land Use Code | 11 |
| Open Space: | N | DFL | N |
| Historic Property: | N | Remodel Property: | N |
| Multi-Family Redevelopment: | N | | |
| Township: | 32 | Section: | 34 |
| Range: | R1 |
Location |
| Address: | 1104 NE LEACH ST COUPEVILLE, WA 98239 | Mapsco: | |
| Neighborhood: | Area 2 Coupeville Waterfront Residential | Map ID: | 179 |
| Neighborhood CD: | 2CPV01R |
Owner |
| Name: | BENSON, BRANDY H | Owner ID: | 52196 |
| Mailing Address: | 1104 NE LEACH ST COUPEVILLE, WA 98239 | % Ownership: | 100.0000000000% |
| | | Exemptions: | |
Taxes and Assessment Details
Values
| (+) Improvement Homesite Value: | + | $0 | |
| (+) Improvement Non-Homesite Value: | + | $247,576 | |
| (+) Land Homesite Value: | + | $0 | |
| (+) Land Non-Homesite Value: | + | $590,000 | |
| (+) Curr Use (HS): | + | $0 | $0 |
| (+) Curr Use (NHS): | + | $0 | $0 |
| | | -------------------------- | |
| (=) Market Value: | = | $837,576 | |
| (–) Productivity Loss: | – | $0 | |
| | | -------------------------- | |
| (=) Subtotal: | = | $837,576 | |
| (+) Senior Appraised Value: | + | $0 | |
| (+) Non-Senior Appraised Value: | + | $837,576 | |
| | | -------------------------- | |
| (=) Total Appraised Value: | = | $837,576 | |
| (–) Senior Exemption Loss: | – | $0 | |
| (–) Exemption Loss: | – | $0 | |
| | | -------------------------- | |
| (=) Taxable Value: | = | $837,576 | |
Taxing Jurisdiction
| Owner: | BENSON, BRANDY H | | |
| % Ownership: | 100.0000000000% | | |
| Total Value: | $837,576 | | |
| Tax Area: | 300 - APPRAISER-Cpvl Schl Dist, in Cpvl |
| CF | Conservation Futures | 0.0316035091 | $837,576 | $837,576 | $26.47 | | |
| CEM2 | Cemetery #2 | 0.0095056933 | $837,576 | $837,576 | $7.96 | | |
| COUP | City: Town of Coupeville | 0.8426414490 | $837,576 | $837,576 | $705.78 | | |
| FIRE5 | Fire & Rescue Dist #5 C Whidbey GEN | 1.2008080668 | $837,576 | $837,576 | $1,005.77 | | |
| FIRE5BOND | Fire & Rescue Dist #5 C Whidbey BOND | 0.1400090713 | $837,576 | $837,576 | $117.27 | | |
| HOBOND | Hospital BOND | 0.1910887512 | $837,576 | $837,576 | $160.05 | | |
| HOGEN | Hospital GEN | 0.3902502903 | $837,576 | $837,576 | $326.86 | | |
| CE | County Current Expense | 0.3708482477 | $837,576 | $837,576 | $310.61 | | |
| ISLANDEMS | Hospital GEN (EMS) | 0.5000000000 | $837,576 | $837,576 | $418.79 | | |
| LIB | Library Sno-Isle GEN | 0.3153421757 | $837,576 | $837,576 | $264.12 | | |
| LIBCAP | Library Sno-Isle BOND (Cap Fac Imp Area) | 0.0543427938 | $837,576 | $837,576 | $45.52 | | |
| POCOUP | Port of Coupeville GEN | 0.1093371703 | $837,576 | $837,576 | $91.58 | | |
| POCOUPIDD | Port of Coupeville IDD | 0.3409740022 | $837,576 | $837,576 | $285.59 | | |
| COUPSDTECH | School 204 CP (TECH) | 0.7545480007 | $837,576 | $837,576 | $631.99 | | |
| SCH204MO | School 204 Enrichment | 0.6716186034 | $837,576 | $837,576 | $562.53 | | |
| ST | State School | 1.3035497053 | $837,576 | $837,576 | $1,091.82 | | |
| ST2 | State School Part 2 | 0.8169543533 | $837,576 | $837,576 | $684.26 | | |
| | Total Tax Rate: | 8.0434218834 | | | | | |
| | | | | Taxes w/Current Exemptions: | $6,736.97 | | |
| | | | | Taxes w/o Exemptions: | $6,736.97 | | |
Improvement / Building
| Improvement #1: | RESIDENTIAL | State Code: | Y | 1989.7 sqft | Value: | $247,576 |
| Bathrooms: | 1 | Bedrooms: | 2 | | Ceiling: | DRYWALL PAINTED | Exterior Wall/Cover: | SHINGLE | | Floor Covering: | CARPET/VINYL 60-40 | Floor Structure: | SLAB ON GRADE | | Foundation: | CONCRETE | Heating: | GAS HEATERS | | Interior Finish: | DRYWALL PAINT | Plumbing Fixture Cnt: | 6 | | Roof Slope: | 4" IN 12" | Roof Structure/Cover: | CJ ASPHALT |
|
| | Type | Description | Class CD | Sub Class CD | Year Built | Area |
| | BAS | BASE/MAIN FLOOR | 3 | 0 | 1908 | 1022.3 |
| | OP4 | OPEN PORCH W/CEILING-ROOF | 3 | 0 | 1908 | 35.0 |
| | AGR | ATTACHED GARAGE | 3 | 0 | 1908 | 315.0 |
| | UPS | UPPER STORY | 3 | 0 | 1908 | 967.4 |
| | OWR | OPEN WOOD PORCH W/STEPS/ROOF | 3 | 0 | 1908 | 43.4 |
| | OWP | OPEN WOOD PORCH W/STEPS | 3 | 0 | 1908 | 114.1 |
| | oOBD | Out Buildings | 3 | 0 | 1908 | 505.0 |
| | oOBD | Out Buildings | 3 | 0 | 1908 | 576.0 |
Sketch
| No sketches available for this property. |
Property Image
Land
| 1 | HB | HIGH BLUFF | 0.0000 | 0.00 | 230.00 | 0.00 | 1.00 | $590,000 | $0 |
Roll Value History
| 2026 | N/A | N/A | N/A | N/A | N/A |
| 2025 | $247,576 | $590,000 | $0 | $837,576 | $837,576 |
| 2024 | $244,339 | $575,000 | $0 | $819,339 | $819,339 |
| 2023 | $247,576 | $575,000 | $0 | $822,576 | $822,576 |
| 2022 | $229,958 | $575,000 | $0 | $804,958 | $804,958 |
| 2021 | $206,418 | $475,000 | $0 | $681,418 | $681,418 |
| 2020 | $202,892 | $450,000 | $0 | $652,892 | $652,892 |
| 2019 | $164,108 | $450,000 | $0 | $614,108 | $614,108 |
| 2018 | $161,216 | $400,000 | $0 | $561,216 | $561,216 |
| 2017 | $162,154 | $400,000 | $0 | $562,154 | $562,154 |
| 2016 | $164,041 | $400,000 | $0 | $564,041 | $564,041 |
| 2015 | $165,929 | $400,000 | $0 | $565,929 | $565,929 |
| 2014 | $167,815 | $400,000 | $0 | $567,815 | $567,815 |
| 2013 | $79,462 | $432,717 | $0 | $512,179 | $512,179 |
| 2012 | $71,618 | $432,717 | $0 | $504,335 | $504,335 |
| 2011 | $73,083 | $432,717 | $0 | $505,800 | $505,800 |
| 2010 | $83,716 | $432,717 | $0 | $516,433 | $516,433 |
| 2009 | $87,875 | $503,334 | $0 | $591,209 | $591,209 |
| 2008 | $89,485 | $503,334 | $0 | $592,819 | $592,819 |
| 2007 | $91,095 | $503,334 | $0 | $594,429 | $594,429 |
Deed and Sales History
| 1 | 11/01/1996 | PRD | Personal Representatives Deed | BENSON, RITCHIE A | BENSON, BRANDY H | | | $0.00 | 64117 | 96020084 |
| 2 | 07/01/1991 | DECREE | Divorce Decree/Legal Separation | BENSON, RITCHIE A | BENSON, RITCHIE A | | | $0.00 | 12390 | 91010220 |
| 3 | 02/01/1988 | WD | Warranty Deed | BENSON, RITCHIE & | BENSON, RITCHIE A | | | $0.00 | 80378 | 88001586 |
| 4 | 11/01/1983 | QCD | Quit Claim Deed | BENSON, RITCHIE & | BENSON, RITCHIE & | | | $8,000.00 | 33607 | 418499 |
| 5 | 04/01/1983 | WD | Warranty Deed | BOYER, FREEMAN J | BENSON, RITCHIE & | | | $65,000.00 | 31096 | 408828 |
| 6 | 01/01/1900 | OTHER | Other - Misc. Documents | Unknown | BOYER, FREEMAN J | | | $0.00 | 0 | 0 |
Payout Agreement
| No payout information available.. |