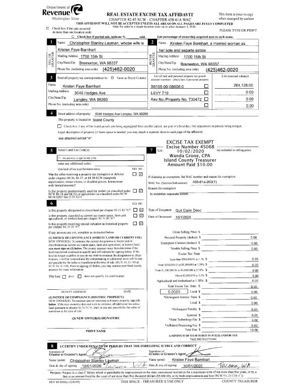
Property
Account |
| Property ID: | 296049 | Abbreviated Legal Description: | LAG PT VU TR LOT 2 |
| Geographic ID: | S7320-00-00002-0 | Agent Code: | |
| Type: | Real | | |
| Tax Area: | 320 - APPRAISER-Cpvl Schl Dist, Special Dist, improved & less than 1 acre | Land Use Code | 11 |
| Open Space: | N | DFL | N |
| Historic Property: | N | Remodel Property: | N |
| Multi-Family Redevelopment: | N | | |
| Township: | | Section: | |
| Range: | |
Location |
| Address: | 3706 SMUGGLERS COVE RD GREENBANK, WA 98253 | Mapsco: | |
| Neighborhood: | Cycle 3 | Map ID: | 394 |
| Neighborhood CD: | 3 |
Owner |
| Name: | HATCH, DONALD | Owner ID: | 315686 |
| Mailing Address: | KAREN HATCH 7210 7TH DR W EVERETT, WA 98203 | % Ownership: | 100.0000000000% |
| | | Exemptions: | |
Taxes and Assessment Details
Values
| (+) Improvement Homesite Value: | + | $0 | |
| (+) Improvement Non-Homesite Value: | + | $1,600 | |
| (+) Land Homesite Value: | + | $0 | |
| (+) Land Non-Homesite Value: | + | $199,000 | |
| (+) Curr Use (HS): | + | $0 | $0 |
| (+) Curr Use (NHS): | + | $0 | $0 |
| | | -------------------------- | |
| (=) Market Value: | = | $200,600 | |
| (–) Productivity Loss: | – | $0 | |
| | | -------------------------- | |
| (=) Subtotal: | = | $200,600 | |
| (+) Senior Appraised Value: | + | $0 | |
| (+) Non-Senior Appraised Value: | + | $200,600 | |
| | | -------------------------- | |
| (=) Total Appraised Value: | = | $200,600 | |
| (–) Senior Exemption Loss: | – | $0 | |
| (–) Exemption Loss: | – | $0 | |
| | | -------------------------- | |
| (=) Taxable Value: | = | $200,600 | |
Taxing Jurisdiction
| Owner: | HATCH, DONALD | | |
| % Ownership: | 100.0000000000% | | |
| Total Value: | $200,600 | | |
| Tax Area: | 320 - APPRAISER-Cpvl Schl Dist, Special Dist, improved & less than 1 acre |
| CF | Conservation Futures | 0.0316035091 | $200,600 | $200,600 | $6.34 | | |
| CEM2 | Cemetery #2 | 0.0095056933 | $200,600 | $200,600 | $1.91 | | |
| FIRE5 | Fire & Rescue Dist #5 C Whidbey GEN | 1.2008080668 | $200,600 | $200,600 | $240.88 | | |
| FIRE5BOND | Fire & Rescue Dist #5 C Whidbey BOND | 0.1400090713 | $200,600 | $200,600 | $28.09 | | |
| HOBOND | Hospital BOND | 0.1910887512 | $200,600 | $200,600 | $38.33 | | |
| HOGEN | Hospital GEN | 0.3902502903 | $200,600 | $200,600 | $78.28 | | |
| CE | County Current Expense | 0.3708482477 | $200,600 | $200,600 | $74.39 | | |
| CR | County Roads | 0.4584763726 | $200,600 | $200,600 | $91.97 | | |
| ISLANDEMS | Hospital GEN (EMS) | 0.5000000000 | $200,600 | $200,600 | $100.30 | | |
| LIB | Library Sno-Isle GEN | 0.3153421757 | $200,600 | $200,600 | $63.26 | | |
| LIBCAP | Library Sno-Isle BOND (Cap Fac Imp Area) | 0.0543427938 | $200,600 | $200,600 | $10.90 | | |
| POCOUP | Port of Coupeville GEN | 0.1093371703 | $200,600 | $200,600 | $21.93 | | |
| POCOUPIDD | Port of Coupeville IDD | 0.3409740022 | $200,600 | $200,600 | $68.40 | | |
| COUPSDTECH | School 204 CP (TECH) | 0.7545480007 | $200,600 | $200,600 | $151.36 | | |
| SCH204MO | School 204 Enrichment | 0.6716186034 | $200,600 | $200,600 | $134.73 | | |
| ST | State School | 1.3035497053 | $200,600 | $200,600 | $261.49 | | |
| ST2 | State School Part 2 | 0.8169543533 | $200,600 | $200,600 | $163.88 | | |
| | Total Tax Rate: | 7.6592568070 | | | | | |
| | | | | Taxes w/Current Exemptions: | $1,536.44 | | |
| | | | | Taxes w/o Exemptions: | $1,536.44 | | |
Improvement / Building
| Improvement #1: | RESIDENTIAL | State Code: | Y | 0.0 sqft | Value: | $1,600 |
Sketch
Property Image
Land
| 1 | HB | HIGH BLUFF | 0.0000 | 0.00 | 60.00 | 0.00 | 1.00 | $199,000 | $0 |
Roll Value History
| 2026 | N/A | N/A | N/A | N/A | N/A |
| 2025 | $1,600 | $199,000 | $0 | $200,600 | $200,600 |
| 2024 | $1,600 | $199,000 | $0 | $200,600 | $200,600 |
| 2023 | $1,600 | $190,000 | $0 | $191,600 | $191,600 |
| 2022 | $1,600 | $180,000 | $0 | $181,600 | $181,600 |
| 2021 | $1,600 | $150,000 | $0 | $151,600 | $151,600 |
| 2020 | $1,600 | $150,000 | $0 | $151,600 | $151,600 |
| 2019 | $0 | $120,000 | $0 | $120,000 | $120,000 |
| 2018 | $0 | $120,000 | $0 | $120,000 | $120,000 |
| 2017 | $0 | $120,000 | $0 | $120,000 | $120,000 |
| 2016 | $0 | $120,000 | $0 | $120,000 | $120,000 |
| 2015 | $0 | $120,000 | $0 | $120,000 | $120,000 |
| 2014 | $0 | $120,974 | $0 | $120,974 | $120,974 |
| 2013 | $0 | $120,974 | $0 | $120,974 | $120,974 |
| 2012 | $0 | $120,974 | $0 | $120,974 | $120,974 |
| 2011 | $0 | $120,974 | $0 | $120,974 | $120,974 |
| 2010 | $0 | $120,974 | $0 | $120,974 | $120,974 |
| 2009 | $0 | $161,298 | $0 | $161,298 | $161,298 |
| 2008 | $0 | $161,298 | $0 | $161,298 | $161,298 |
| 2007 | $0 | $161,298 | $0 | $161,298 | $161,298 |
Deed and Sales History
| 1 | 03/03/2025 | WD | Warranty Deed | RUTH A SMETHERS, PR | HATCH, DONALD | | | $235,000.00 | 62748 | 4583005 |
| 2 | 07/01/1981 | TRUSTEED | Trustee's Deed | DENNIS, MUNROE N | CHAN, THOMAS H | | | $30,000.00 | 12188 | 385535 |
| 3 | 01/01/1900 | OTHER | Other - Misc. Documents | Unknown | DENNIS, MUNROE N | | | $0.00 | 0 | 0 |
Payout Agreement
| No payout information available.. |