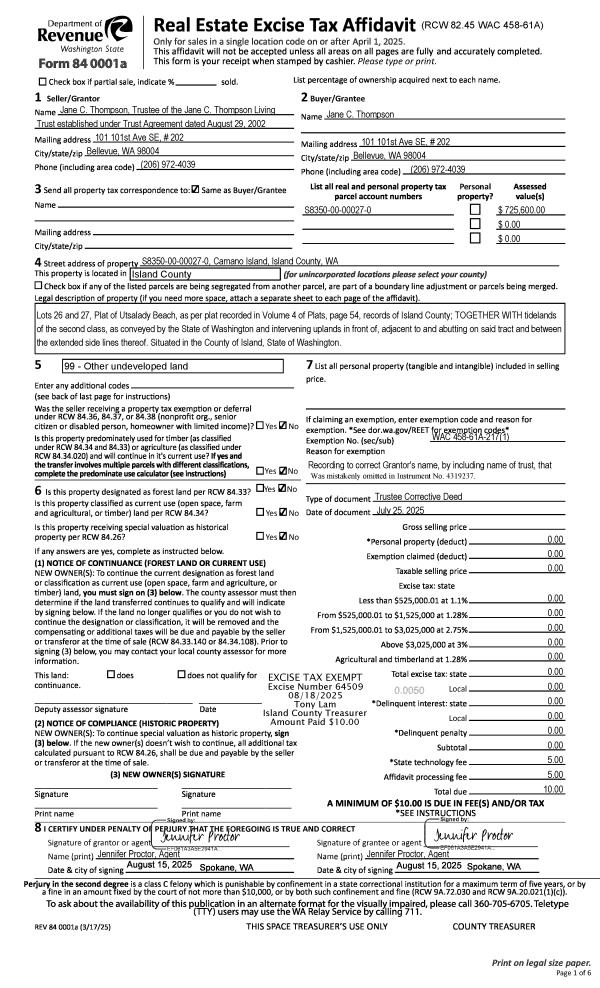
Property
Account |
| Property ID: | 296067 | Abbreviated Legal Description: | LAG PT VU TR LOTS 4 & 5 COMB 7/86 |
| Geographic ID: | S7320-00-00004-0 | Agent Code: | |
| Type: | Real | | |
| Tax Area: | 322 - APPRAISER-Cpvl Schl Dist, Special Dist, improved, greater than 1 acre | Land Use Code | 11 |
| Open Space: | N | DFL | N |
| Historic Property: | N | Remodel Property: | N |
| Multi-Family Redevelopment: | N | | |
| Township: | | Section: | |
| Range: | |
Location |
| Address: | 3716 SMUGGLERS COVE RD GREENBANK, WA 98253 | Mapsco: | |
| Neighborhood: | Cycle 3 | Map ID: | 394 |
| Neighborhood CD: | 3 |
Owner |
| Name: | HUGHES, CRISTI | Owner ID: | 315108 |
| Mailing Address: | 3716 SMUGGLERS COVE RD GREENBANK, WA 98253 | % Ownership: | 100.0000000000% |
| | | Exemptions: | |
Taxes and Assessment Details
Values
| (+) Improvement Homesite Value: | + | $0 | |
| (+) Improvement Non-Homesite Value: | + | $319,052 | |
| (+) Land Homesite Value: | + | $0 | |
| (+) Land Non-Homesite Value: | + | $393,750 | |
| (+) Curr Use (HS): | + | $0 | $0 |
| (+) Curr Use (NHS): | + | $0 | $0 |
| | | -------------------------- | |
| (=) Market Value: | = | $712,802 | |
| (–) Productivity Loss: | – | $0 | |
| | | -------------------------- | |
| (=) Subtotal: | = | $712,802 | |
| (+) Senior Appraised Value: | + | $0 | |
| (+) Non-Senior Appraised Value: | + | $712,802 | |
| | | -------------------------- | |
| (=) Total Appraised Value: | = | $712,802 | |
| (–) Senior Exemption Loss: | – | $0 | |
| (–) Exemption Loss: | – | $0 | |
| | | -------------------------- | |
| (=) Taxable Value: | = | $712,802 | |
Taxing Jurisdiction
| Owner: | HUGHES, CRISTI | | |
| % Ownership: | 100.0000000000% | | |
| Total Value: | $712,802 | | |
| Tax Area: | 322 - APPRAISER-Cpvl Schl Dist, Special Dist, improved, greater than 1 acre |
| CF | Conservation Futures | 0.0316035091 | $712,802 | $712,802 | $22.53 | | |
| CEM2 | Cemetery #2 | 0.0095056933 | $712,802 | $712,802 | $6.78 | | |
| FIRE5 | Fire & Rescue Dist #5 C Whidbey GEN | 1.2008080668 | $712,802 | $712,802 | $855.94 | | |
| FIRE5BOND | Fire & Rescue Dist #5 C Whidbey BOND | 0.1400090713 | $712,802 | $712,802 | $99.80 | | |
| HOBOND | Hospital BOND | 0.1910887512 | $712,802 | $712,802 | $136.21 | | |
| HOGEN | Hospital GEN | 0.3902502903 | $712,802 | $712,802 | $278.17 | | |
| CE | County Current Expense | 0.3708482477 | $712,802 | $712,802 | $264.34 | | |
| CR | County Roads | 0.4584763726 | $712,802 | $712,802 | $326.80 | | |
| ISLANDEMS | Hospital GEN (EMS) | 0.5000000000 | $712,802 | $712,802 | $356.40 | | |
| LIB | Library Sno-Isle GEN | 0.3153421757 | $712,802 | $712,802 | $224.78 | | |
| LIBCAP | Library Sno-Isle BOND (Cap Fac Imp Area) | 0.0543427938 | $712,802 | $712,802 | $38.74 | | |
| POCOUP | Port of Coupeville GEN | 0.1093371703 | $712,802 | $712,802 | $77.94 | | |
| POCOUPIDD | Port of Coupeville IDD | 0.3409740022 | $712,802 | $712,802 | $243.05 | | |
| COUPSDTECH | School 204 CP (TECH) | 0.7545480007 | $712,802 | $712,802 | $537.84 | | |
| SCH204MO | School 204 Enrichment | 0.6716186034 | $712,802 | $712,802 | $478.73 | | |
| ST | State School | 1.3035497053 | $712,802 | $712,802 | $929.17 | | |
| ST2 | State School Part 2 | 0.8169543533 | $712,802 | $712,802 | $582.33 | | |
| | Total Tax Rate: | 7.6592568070 | | | | | |
| | | | | Taxes w/Current Exemptions: | $5,459.55 | | |
| | | | | Taxes w/o Exemptions: | $5,459.55 | | |
Improvement / Building
| Improvement #1: | RESIDENTIAL | State Code: | Y | 2146.0 sqft | Value: | $319,052 |
| Bathrooms: | 2 | Bedrooms: | 2 | | Ceiling: | DRYWALL PAINTED | Exterior Wall/Cover: | WOOD SIDING | | Floor Covering: | VINYL TILE/CARP 20-80 | Floor Structure: | WOOD W/SUBFLOOR | | Foundation: | CONCRETE | Heating: | FHA GAS | | Interior Finish: | DRYWALL PAINT | Plumbing Fixture Cnt: | 10 | | Roof Slope: | 4" IN 12" | Roof Structure/Cover: | CJ ASPHALT |
|
| | Type | Description | Class CD | Sub Class CD | Year Built | Area |
| | BAS | BASE/MAIN FLOOR | 3 | 0 | 1960 | 2146.0 |
| | OWP | OPEN WOOD PORCH W/STEPS | 3 | 0 | 1960 | 406.0 |
| | OWR | OPEN WOOD PORCH W/STEPS/ROOF | 3 | 0 | 1960 | 120.0 |
| | UTY | STORAGE/UTILITY | 3 | 0 | 1960 | 320.0 |
| | DGR | DETACHED GARAGE | 3 | 0 | 1960 | 660.0 |
Sketch
Property Image
Land
| 1 | HB | HIGH BLUFF | 0.0000 | 0.00 | 120.00 | 0.00 | 1.00 | $393,750 | $0 |
Roll Value History
| 2026 | N/A | N/A | N/A | N/A | N/A |
| 2025 | $319,052 | $393,750 | $0 | $712,802 | $712,802 |
| 2024 | $323,409 | $393,750 | $0 | $717,159 | $717,159 |
| 2023 | $327,765 | $375,000 | $0 | $702,765 | $702,765 |
| 2022 | $300,749 | $360,000 | $0 | $660,749 | $660,749 |
| 2021 | $264,947 | $300,000 | $0 | $564,947 | $564,947 |
| 2020 | $258,805 | $300,000 | $0 | $558,805 | $558,805 |
| 2019 | $170,725 | $300,000 | $0 | $470,725 | $470,725 |
| 2018 | $171,297 | $300,000 | $0 | $471,297 | $471,297 |
| 2017 | $172,440 | $300,000 | $0 | $472,440 | $472,440 |
| 2016 | $174,727 | $300,000 | $0 | $474,727 | $474,727 |
| 2015 | $177,015 | $300,000 | $0 | $477,015 | $477,015 |
| 2014 | $179,303 | $344,048 | $0 | $523,351 | $523,351 |
| 2013 | $179,914 | $344,048 | $0 | $523,962 | $523,962 |
| 2012 | $182,135 | $344,048 | $0 | $526,183 | $526,183 |
| 2011 | $184,359 | $344,048 | $0 | $528,407 | $528,407 |
| 2010 | $193,371 | $344,048 | $0 | $537,419 | $537,419 |
| 2009 | $201,345 | $458,731 | $0 | $660,076 | $660,076 |
| 2008 | $203,774 | $458,731 | $0 | $662,505 | $662,505 |
| 2007 | $174,854 | $290,336 | $0 | $465,190 | $465,190 |
Deed and Sales History
| 1 | 01/09/2025 | QCD | Quit Claim Deed | HUGHES, WARREN | HUGHES, CRISTI | | | $0.00 | 62299 | 4581217 |
| 2 | 04/29/2003 | WD | Warranty Deed | STEEVES, MARY ANN/ROGER A | HUGHES, WARREN | | | $409,000.00 | 31865 | 4057463 |
| 3 | 11/02/1999 | WD | Warranty Deed | STEEVES, MARY A | STEEVES, MARY ANN/ROGER A | | | $0.00 | 94329 | 99023640 |
| 4 | 03/01/1998 | WD | Warranty Deed | HUNT, JOHN R | STEEVES, MARY A | | | $230,000.00 | 81132 | 98006192 |
| 5 | 11/01/1995 | QCD | Quit Claim Deed | HUNT, JOHN R | HUNT, JOHN R | | | $0.00 | 54304 | 95019885 |
| 6 | 07/01/1986 | OTHER | Other - Misc. Documents | HUNT, JOHN R | HUNT, JOHN R | | | $0.00 | 61740 | 86006314 |
| 7 | 02/01/1986 | TRUSTEED | Trustee's Deed | EHRINGER, WILLIAM J | HUNT, JOHN R | | | $0.00 | 60422 | 86002147 |
| 8 | 10/01/1977 | TRUSTEED | Trustee's Deed | CASH, WILFRED S | EHRINGER, WILLIAM J | | | $0.00 | 74495 | 0 |
| 9 | 01/01/1900 | OTHER | Other - Misc. Documents | Unknown | CASH, WILFRED S | | | $0.00 | 0 | 0 |
Payout Agreement
| No payout information available.. |