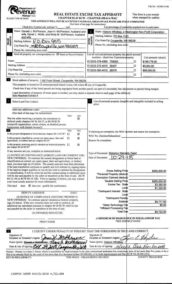
Property
Account |
| Property ID: | 29640 | Abbreviated Legal Description: | 28 - E100' OF W500' OF GL4 |
| Geographic ID: | R13234-439-4420 | Agent Code: | |
| Type: | Real | | |
| Tax Area: | 300 - APPRAISER-Cpvl Schl Dist, in Cpvl | Land Use Code | 11 |
| Open Space: | N | DFL | N |
| Historic Property: | N | Remodel Property: | N |
| Multi-Family Redevelopment: | N | | |
| Township: | 32 | Section: | 34 |
| Range: | R1 |
Location |
| Address: | 1610 NE PARKER RD COUPEVILLE, WA 98239 | Mapsco: | |
| Neighborhood: | Area 2 Coupeville Waterfront Residential | Map ID: | 180 |
| Neighborhood CD: | 2CPV01R |
Owner |
| Name: | THOMPSON TRUSTEE, ROBERT | Owner ID: | 274424 |
| Mailing Address: | PAMELA THOMPSON TRUSTEE 1610 PARKER RD COUPEVILLE, WA 98239 | % Ownership: | 100.0000000000% |
| | | Exemptions: | |
Taxes and Assessment Details
Values
| (+) Improvement Homesite Value: | + | $0 | |
| (+) Improvement Non-Homesite Value: | + | $840,618 | |
| (+) Land Homesite Value: | + | $0 | |
| (+) Land Non-Homesite Value: | + | $435,000 | |
| (+) Curr Use (HS): | + | $0 | $0 |
| (+) Curr Use (NHS): | + | $0 | $0 |
| | | -------------------------- | |
| (=) Market Value: | = | $1,275,618 | |
| (–) Productivity Loss: | – | $0 | |
| | | -------------------------- | |
| (=) Subtotal: | = | $1,275,618 | |
| (+) Senior Appraised Value: | + | $0 | |
| (+) Non-Senior Appraised Value: | + | $1,275,618 | |
| | | -------------------------- | |
| (=) Total Appraised Value: | = | $1,275,618 | |
| (–) Senior Exemption Loss: | – | $0 | |
| (–) Exemption Loss: | – | $0 | |
| | | -------------------------- | |
| (=) Taxable Value: | = | $1,275,618 | |
Taxing Jurisdiction
| Owner: | THOMPSON TRUSTEE, ROBERT | | |
| % Ownership: | 100.0000000000% | | |
| Total Value: | $1,275,618 | | |
| Tax Area: | 300 - APPRAISER-Cpvl Schl Dist, in Cpvl |
| CF | Conservation Futures | 0.0316035091 | $1,275,618 | $1,275,618 | $40.31 | | |
| CEM2 | Cemetery #2 | 0.0095056933 | $1,275,618 | $1,275,618 | $12.13 | | |
| COUP | City: Town of Coupeville | 0.8426414490 | $1,275,618 | $1,275,618 | $1,074.89 | | |
| FIRE5 | Fire & Rescue Dist #5 C Whidbey GEN | 1.2008080668 | $1,275,618 | $1,275,618 | $1,531.77 | | |
| FIRE5BOND | Fire & Rescue Dist #5 C Whidbey BOND | 0.1400090713 | $1,275,618 | $1,275,618 | $178.60 | | |
| HOBOND | Hospital BOND | 0.1910887512 | $1,275,618 | $1,275,618 | $243.76 | | |
| HOGEN | Hospital GEN | 0.3902502903 | $1,275,618 | $1,275,618 | $497.81 | | |
| CE | County Current Expense | 0.3708482477 | $1,275,618 | $1,275,618 | $473.06 | | |
| ISLANDEMS | Hospital GEN (EMS) | 0.5000000000 | $1,275,618 | $1,275,618 | $637.81 | | |
| LIB | Library Sno-Isle GEN | 0.3153421757 | $1,275,618 | $1,275,618 | $402.26 | | |
| LIBCAP | Library Sno-Isle BOND (Cap Fac Imp Area) | 0.0543427938 | $1,275,618 | $1,275,618 | $69.32 | | |
| POCOUP | Port of Coupeville GEN | 0.1093371703 | $1,275,618 | $1,275,618 | $139.47 | | |
| POCOUPIDD | Port of Coupeville IDD | 0.3409740022 | $1,275,618 | $1,275,618 | $434.95 | | |
| COUPSDTECH | School 204 CP (TECH) | 0.7545480007 | $1,275,618 | $1,275,618 | $962.52 | | |
| SCH204MO | School 204 Enrichment | 0.6716186034 | $1,275,618 | $1,275,618 | $856.73 | | |
| ST | State School | 1.3035497053 | $1,275,618 | $1,275,618 | $1,662.83 | | |
| ST2 | State School Part 2 | 0.8169543533 | $1,275,618 | $1,275,618 | $1,042.12 | | |
| | Total Tax Rate: | 8.0434218834 | | | | | |
| | | | | Taxes w/Current Exemptions: | $10,260.34 | | |
| | | | | Taxes w/o Exemptions: | $10,260.34 | | |
Improvement / Building
| Improvement #1: | RESIDENTIAL | State Code: | Y | 3227.5 sqft | Value: | $840,618 |
| Bathrooms: | 3.5 | Bedrooms: | 3 | | Ceiling: | DRYWALL PAINTED | Exterior Wall/Cover: | CEMENT FIBER | | Floor Covering: | HARDWOOD/CARP 60-40 | Floor Structure: | WOOD W/SUBFLOOR | | Foundation: | CONCRETE | Heating: | RADIANT FLOOR | | Interior Finish: | DRYWALL PAINT | Plumbing Fixture Cnt: | 18 | | Roof Slope: | 8" IN 12" | Roof Structure/Cover: | CJ ASPHALT |
|
| | Type | Description | Class CD | Sub Class CD | Year Built | Area |
| | BAS | BASE/MAIN FLOOR | 5 | 0 | 2005 | 1775.5 |
| | OP4 | OPEN PORCH W/CEILING-ROOF | 5 | 0 | 2005 | 85.0 |
| | AGR | ATTACHED GARAGE | 5 | 0 | 2005 | 798.0 |
| | UPS | UPPER STORY | 5 | 0 | 2005 | 1452.0 |
| | OWP | OPEN WOOD PORCH W/STEPS | 5 | 0 | 2005 | 899.0 |
| | OWP | OPEN WOOD PORCH W/STEPS | 5 | 0 | 2005 | 20.6 |
| | OWC | OPEN WOOD PORCH W/STEPS/ROOF/C | 5 | 0 | 2005 | 174.0 |
| | OWC | OPEN WOOD PORCH W/STEPS/ROOF/C | 5 | 0 | 2005 | 66.0 |
Sketch
Property Image
Land
| 1 | HB | HIGH BLUFF | 0.0000 | 0.00 | 100.00 | 0.00 | 1.00 | $435,000 | $0 |
Roll Value History
| 2026 | N/A | N/A | N/A | N/A | N/A |
| 2025 | $840,618 | $435,000 | $0 | $1,275,618 | $1,275,618 |
| 2024 | $830,982 | $410,000 | $0 | $1,240,982 | $1,240,982 |
| 2023 | $840,618 | $410,000 | $0 | $1,250,618 | $1,250,618 |
| 2022 | $769,917 | $390,000 | $0 | $1,159,917 | $1,159,917 |
| 2021 | $677,056 | $325,000 | $0 | $1,002,056 | $1,002,056 |
| 2020 | $656,881 | $300,000 | $0 | $956,881 | $956,881 |
| 2019 | $554,731 | $350,000 | $0 | $904,731 | $904,731 |
| 2018 | $544,092 | $325,000 | $0 | $869,092 | $869,092 |
| 2017 | $547,120 | $300,000 | $0 | $847,120 | $847,120 |
| 2016 | $553,200 | $300,000 | $0 | $853,200 | $853,200 |
| 2015 | $506,425 | $250,000 | $0 | $756,425 | $756,425 |
| 2014 | $512,118 | $250,000 | $0 | $762,118 | $762,118 |
| 2013 | $517,807 | $213,688 | $0 | $731,495 | $731,495 |
| 2012 | $576,487 | $213,688 | $0 | $790,175 | $790,175 |
| 2011 | $582,736 | $213,688 | $0 | $796,424 | $796,424 |
| 2010 | $598,664 | $213,688 | $0 | $812,352 | $812,352 |
| 2009 | $617,204 | $248,560 | $0 | $865,764 | $865,764 |
| 2008 | $623,736 | $248,560 | $0 | $872,296 | $872,296 |
| 2007 | $630,266 | $248,560 | $0 | $878,826 | $878,826 |
Deed and Sales History
| 1 | 01/24/2019 | QCD | Quit Claim Deed | THOMPSON TRUSTEE, ROBERT | THOMPSON TRUSTEE, ROBERT | | | $0.00 | 37566 | 4459162 |
| 2 | 07/31/2015 | TRUSTEED | Trustee's Deed | THE ROBERT & PAMELA THOMPSON FAMILY TRUST | THOMPSON TRUSTEE, ROBERT | | | $0.00 | 23896 | 4397575 |
| 3 | 07/31/2015 | WD | Warranty Deed | CHOCHON, JOAN E | THE ROBERT & PAMELA THOMPSON FAMILY TRUST | | | $925,000.00 | 20751 | 4383391 |
| 4 | 11/25/2014 | ESTSEPPROP | Establish Separate Property | CHOCHON, ALVIN M | CHOCHON, JOAN E | | | $0.00 | 17904 | 4370235 |
| 5 | 12/10/2002 | WD | Warranty Deed | BORN, RICHARD D | CHOCHON, ALVIN M | | | $140,000.00 | 25008 | 4040641 |
| 6 | 03/01/1991 | QCD | Quit Claim Deed | BORN, RICHARD D | BORN, RICHARD D | | | $0.00 | 10821 | 91003602 |
| 7 | 02/01/1991 | QCD | Quit Claim Deed | PAGE, SALLY I | BORN, RICHARD D | | | $0.00 | 10700 | 91002872 |
| 8 | 02/01/1991 | WD | Warranty Deed | BORN, RICHARD D | PAGE, SALLY I | | | $136,000.00 | 10822 | 91003606 |
| 9 | 02/01/1990 | WD | Warranty Deed | POORMAN, MARGARET E | BORN, RICHARD D | | | $56,000.00 | 754 | 90002475 |
| 10 | 09/01/1985 | WD | Warranty Deed | POORMAN, DEAN A | POORMAN, MARGARET E | | | $0.00 | 52724 | 85010783 |
| 11 | 01/01/1900 | OTHER | Other - Misc. Documents | Unknown | POORMAN, DEAN A | | | $0.00 | 0 | 0 |
Payout Agreement
| No payout information available.. |