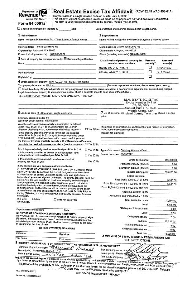
Property
Account |
| Property ID: | 296441 | Abbreviated Legal Description: | LAKE O WOODS LOT 23 |
| Geographic ID: | S7325-00-00023-0 | Agent Code: | |
| Type: | Real | | |
| Tax Area: | 710 - APPRAISER-S Whid Schl Dist, outside Langley, improved & 1 acre or less | Land Use Code | 11 |
| Open Space: | N | DFL | N |
| Historic Property: | N | Remodel Property: | N |
| Multi-Family Redevelopment: | N | | |
| Township: | | Section: | |
| Range: | |
Location |
| Address: | 4221 TIMBERLINE RD CLINTON, WA 98236 | Mapsco: | |
| Neighborhood: | Cycle 4 | Map ID: | 804 |
| Neighborhood CD: | 4 |
Owner |
| Name: | TAYLOR, ROBERT | Owner ID: | 302302 |
| Mailing Address: | 4221 TIMBERLINE RD CLINTON, WA 98236 | % Ownership: | 100.0000000000% |
| | | Exemptions: | |
Taxes and Assessment Details
Values
| (+) Improvement Homesite Value: | + | $0 | |
| (+) Improvement Non-Homesite Value: | + | $210,963 | |
| (+) Land Homesite Value: | + | $0 | |
| (+) Land Non-Homesite Value: | + | $230,000 | |
| (+) Curr Use (HS): | + | $0 | $0 |
| (+) Curr Use (NHS): | + | $0 | $0 |
| | | -------------------------- | |
| (=) Market Value: | = | $440,963 | |
| (–) Productivity Loss: | – | $0 | |
| | | -------------------------- | |
| (=) Subtotal: | = | $440,963 | |
| (+) Senior Appraised Value: | + | $0 | |
| (+) Non-Senior Appraised Value: | + | $440,963 | |
| | | -------------------------- | |
| (=) Total Appraised Value: | = | $440,963 | |
| (–) Senior Exemption Loss: | – | $0 | |
| (–) Exemption Loss: | – | $0 | |
| | | -------------------------- | |
| (=) Taxable Value: | = | $440,963 | |
Taxing Jurisdiction
| Owner: | TAYLOR, ROBERT | | |
| % Ownership: | 100.0000000000% | | |
| Total Value: | $440,963 | | |
| Tax Area: | 710 - APPRAISER-S Whid Schl Dist, outside Langley, improved & 1 acre or less |
| CF | Conservation Futures | 0.0316035091 | $440,963 | $440,963 | $13.94 | | |
| FIRE3 | Fire & Rescue Dist #3 S Whidbey GEN | 1.2004855531 | $440,963 | $440,963 | $529.37 | | |
| HOBOND | Hospital BOND | 0.1910887512 | $440,963 | $440,963 | $84.26 | | |
| HOGEN | Hospital GEN | 0.3902502903 | $440,963 | $440,963 | $172.09 | | |
| CE | County Current Expense | 0.3708482477 | $440,963 | $440,963 | $163.53 | | |
| CR | County Roads | 0.4584763726 | $440,963 | $440,963 | $202.17 | | |
| ISLANDEMS | Hospital GEN (EMS) | 0.5000000000 | $440,963 | $440,963 | $220.48 | | |
| LIB | Library Sno-Isle GEN | 0.3153421757 | $440,963 | $440,963 | $139.05 | | |
| PORTWHID | Port of S Whidbey GEN | 0.1094540357 | $440,963 | $440,963 | $48.27 | | |
| SCH206BOND | School 206 BOND | 0.3161759235 | $440,963 | $440,963 | $139.42 | | |
| SCH206MO | School 206 Enrichment | 0.4547169547 | $440,963 | $440,963 | $200.51 | | |
| ST | State School | 1.3035497053 | $440,963 | $440,963 | $574.82 | | |
| ST2 | State School Part 2 | 0.8169543533 | $440,963 | $440,963 | $360.25 | | |
| SWHIDPRBD | P & R S Whidbey BOND | 0.0152817568 | $440,963 | $440,963 | $6.74 | | |
| SWHIDPRBD2 | P & R S Whidbey BOND2 | 0.0138911264 | $440,963 | $440,963 | $6.13 | | |
| SWHIDPRMT | P & R S Whidbey GEN | 0.2053334452 | $440,963 | $440,963 | $90.54 | | |
| | Total Tax Rate: | 6.6934522006 | | | | | |
| | | | | Taxes w/Current Exemptions: | $2,951.57 | | |
| | | | | Taxes w/o Exemptions: | $2,951.57 | | |
Improvement / Building
| Improvement #1: | RESIDENTIAL | State Code: | Y | 936.0 sqft | Value: | $210,963 |
| Bathrooms: | 1 | Bedrooms: | 3 | | Ceiling: | DRY WALL SPRAYED | Cooling: | HEAT PUMP/CONV/V | | Exterior Wall/Cover: | WOOD SIDING | Floor Covering: | CARPET/VINYL 60-40 | | Floor Structure: | WOOD W/SUBFLOOR | Foundation: | CONCRETE | | Interior Finish: | DRYWALL PAINT | Plumbing Fixture Cnt: | 6 | | Roof Slope: | 4" IN 12" | Roof Structure/Cover: | CJ ASPHALT |
|
| | Type | Description | Class CD | Sub Class CD | Year Built | Area |
| | BAS | BASE/MAIN FLOOR | 3 | 0 | 1977 | 936.0 |
| | UB6 | BASEMENT UNFINISHED 6" | 3 | 0 | 1977 | 936.0 |
| | OWP | OPEN WOOD PORCH W/STEPS | 3 | 0 | 1977 | 180.0 |
| | OWC | OPEN WOOD PORCH W/STEPS/ROOF/C | 3 | 0 | 1977 | 120.0 |
| | UTY | STORAGE/UTILITY | 3 | 0 | 1977 | 192.0 |
Sketch
Property Image
Land
| 1 | 14 | SQ (08001-12000) | 0.0000 | 0.00 | 0.00 | 0.00 | 1.00 | $230,000 | $0 |
Roll Value History
| 2026 | N/A | N/A | N/A | N/A | N/A |
| 2025 | $210,963 | $230,000 | $0 | $440,963 | $440,963 |
| 2024 | $213,496 | $215,000 | $0 | $428,496 | $428,496 |
| 2023 | $216,031 | $230,000 | $0 | $446,031 | $446,031 |
| 2022 | $197,871 | $210,000 | $0 | $407,871 | $407,871 |
| 2021 | $158,094 | $150,000 | $0 | $308,094 | $308,094 |
| 2020 | $152,459 | $120,000 | $0 | $272,459 | $272,459 |
| 2019 | $105,386 | $155,000 | $0 | $260,386 | $260,386 |
| 2018 | $88,431 | $130,000 | $0 | $218,431 | $218,431 |
| 2017 | $89,097 | $110,000 | $0 | $199,097 | $199,097 |
| 2016 | $90,425 | $85,000 | $0 | $175,425 | $175,425 |
| 2015 | $91,754 | $55,000 | $0 | $146,754 | $146,754 |
| 2014 | $93,085 | $65,000 | $0 | $158,085 | $158,085 |
| 2013 | $69,194 | $65,000 | $0 | $134,194 | $134,194 |
| 2012 | $70,290 | $81,000 | $0 | $151,290 | $151,290 |
| 2011 | $71,391 | $90,000 | $0 | $161,391 | $161,391 |
| 2010 | $72,325 | $90,000 | $0 | $162,325 | $162,325 |
| 2009 | $75,981 | $100,000 | $0 | $175,981 | $175,981 |
| 2008 | $80,700 | $120,000 | $0 | $200,700 | $200,700 |
| 2007 | $82,227 | $120,000 | $0 | $202,227 | $202,227 |
Deed and Sales History
| 1 | 12/06/2021 | WD | Warranty Deed | BREEDLOVE, ADAM | TAYLOR, ROBERT | | | $452,500.00 | 51267 | 4535602 |
| 2 | 11/16/2015 | WD | Warranty Deed | CHAMBERLAND, ABRAHAM | BREEDLOVE, ADAM | | | $145,000.00 | 22179 | 4389639 |
| 3 | 02/06/2007 | PRD | Personal Representatives Deed | CHAMBERLAND, BRIAN R | CHAMBERLAND, ABRAHAM | | | $0.00 | 70438 | 4193747 |
| 4 | 02/01/1985 | WD | Warranty Deed | FULFER, JERRY L | CHAMBERLAND, BRIAN R | | | $45,000.00 | 50343 | 85001591 |
| 5 | 01/01/1900 | OTHER | Other - Misc. Documents | Unknown | FULFER, JERRY L | | | $0.00 | 0 | 0 |
Payout Agreement
| No payout information available.. |