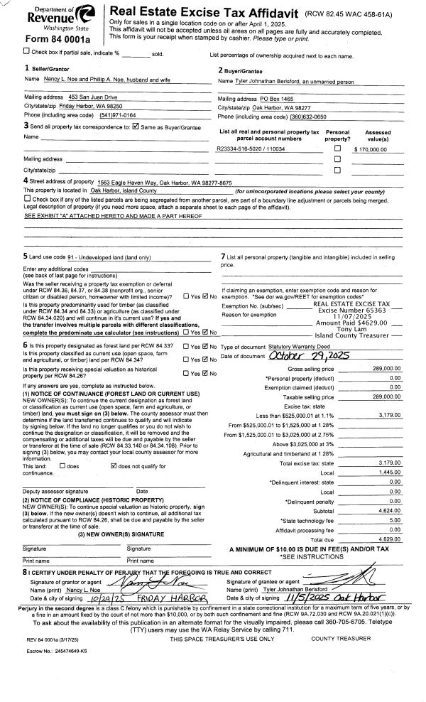
Property
Account |
| Property ID: | 29720 | Abbreviated Legal Description: | 38 - W97.24' N MEAS @ RA) OF:BG ML 575'E FR NE CR TR DES 15D508 SELY ALG ML 400' S724.87' S88*W389.02' M/L TP DUE S POB N825.83' TPB |
| Geographic ID: | R13234-450-3440 | Agent Code: | |
| Type: | Real | | |
| Tax Area: | 300 - APPRAISER-Cpvl Schl Dist, in Cpvl | Land Use Code | 11 |
| Open Space: | N | DFL | N |
| Historic Property: | N | Remodel Property: | N |
| Multi-Family Redevelopment: | N | | |
| Township: | 32 | Section: | 34 |
| Range: | R1 |
Location |
| Address: | 1404 NE PARKER RD COUPEVILLE, WA 98239 | Mapsco: | |
| Neighborhood: | Area 2 Coupeville Waterfront Residential | Map ID: | 180 |
| Neighborhood CD: | 2CPV01R |
Owner |
| Name: | GLENNOLA LLC | Owner ID: | 261372 |
| Mailing Address: | 20453 O'LEARY RD MOUNT VERNON, WA 98273 | % Ownership: | 100.0000000000% |
| | | Exemptions: | |
Taxes and Assessment Details
Values
| (+) Improvement Homesite Value: | + | $0 | |
| (+) Improvement Non-Homesite Value: | + | $18,628 | |
| (+) Land Homesite Value: | + | $0 | |
| (+) Land Non-Homesite Value: | + | $825,000 | |
| (+) Curr Use (HS): | + | $0 | $0 |
| (+) Curr Use (NHS): | + | $0 | $0 |
| | | -------------------------- | |
| (=) Market Value: | = | $843,628 | |
| (–) Productivity Loss: | – | $0 | |
| | | -------------------------- | |
| (=) Subtotal: | = | $843,628 | |
| (+) Senior Appraised Value: | + | $0 | |
| (+) Non-Senior Appraised Value: | + | $843,628 | |
| | | -------------------------- | |
| (=) Total Appraised Value: | = | $843,628 | |
| (–) Senior Exemption Loss: | – | $0 | |
| (–) Exemption Loss: | – | $0 | |
| | | -------------------------- | |
| (=) Taxable Value: | = | $843,628 | |
Taxing Jurisdiction
| Owner: | GLENNOLA LLC | | |
| % Ownership: | 100.0000000000% | | |
| Total Value: | $843,628 | | |
| Tax Area: | 300 - APPRAISER-Cpvl Schl Dist, in Cpvl |
| CF | Conservation Futures | 0.0316035091 | $843,628 | $843,628 | $26.66 | | |
| CEM2 | Cemetery #2 | 0.0095056933 | $843,628 | $843,628 | $8.02 | | |
| COUP | City: Town of Coupeville | 0.8426414490 | $843,628 | $843,628 | $710.88 | | |
| FIRE5 | Fire & Rescue Dist #5 C Whidbey GEN | 1.2008080668 | $843,628 | $843,628 | $1,013.04 | | |
| FIRE5BOND | Fire & Rescue Dist #5 C Whidbey BOND | 0.1400090713 | $843,628 | $843,628 | $118.12 | | |
| HOBOND | Hospital BOND | 0.1910887512 | $843,628 | $843,628 | $161.21 | | |
| HOGEN | Hospital GEN | 0.3902502903 | $843,628 | $843,628 | $329.23 | | |
| CE | County Current Expense | 0.3708482477 | $843,628 | $843,628 | $312.86 | | |
| ISLANDEMS | Hospital GEN (EMS) | 0.5000000000 | $843,628 | $843,628 | $421.81 | | |
| LIB | Library Sno-Isle GEN | 0.3153421757 | $843,628 | $843,628 | $266.03 | | |
| LIBCAP | Library Sno-Isle BOND (Cap Fac Imp Area) | 0.0543427938 | $843,628 | $843,628 | $45.85 | | |
| POCOUP | Port of Coupeville GEN | 0.1093371703 | $843,628 | $843,628 | $92.24 | | |
| POCOUPIDD | Port of Coupeville IDD | 0.3409740022 | $843,628 | $843,628 | $287.66 | | |
| COUPSDTECH | School 204 CP (TECH) | 0.7545480007 | $843,628 | $843,628 | $636.56 | | |
| SCH204MO | School 204 Enrichment | 0.6716186034 | $843,628 | $843,628 | $566.60 | | |
| ST | State School | 1.3035497053 | $843,628 | $843,628 | $1,099.71 | | |
| ST2 | State School Part 2 | 0.8169543533 | $843,628 | $843,628 | $689.21 | | |
| | Total Tax Rate: | 8.0434218834 | | | | | |
| | | | | Taxes w/Current Exemptions: | $6,785.69 | | |
| | | | | Taxes w/o Exemptions: | $6,785.69 | | |
Improvement / Building
| Improvement #1: | RESIDENTIAL | State Code: | Y | 319.0 sqft | Value: | $18,628 |
| Bathrooms: | 0 | Bedrooms: | 0 | | Ceiling: | PLYWOOD PAINTED | Exterior Wall/Cover: | PLY/HARDBOARD T-111 | | Floor Covering: | (NONE) | Floor Structure: | WOOD W/SUBFLOOR | | Foundation: | WOOD BLOCKS | Heating: | WALL HEAT ELECTRIC | | Interior Finish: | (NONE) | Plumbing Fixture Cnt: | 5 | | Roof Slope: | 4" IN 12" | Roof Structure/Cover: | CJ ASPHALT |
|
| | Type | Description | Class CD | Sub Class CD | Year Built | Area |
| | BAS | BASE/MAIN FLOOR | 1 | 0 | 1900 | 319.0 |
| | UTY | STORAGE/UTILITY | 1 | 0 | 1900 | 39.0 |
| | OWP | OPEN WOOD PORCH W/STEPS | 1 | 0 | 1900 | 100.0 |
Sketch
| No sketches available for this property. |
Property Image
Land
| 1 | LB | LOW BANK | 0.0000 | 0.00 | 97.00 | 0.00 | 1.00 | $825,000 | $0 |
Roll Value History
| 2026 | N/A | N/A | N/A | N/A | N/A |
| 2025 | $18,628 | $825,000 | $0 | $843,628 | $843,628 |
| 2024 | $18,233 | $800,000 | $0 | $818,233 | $818,233 |
| 2023 | $18,628 | $800,000 | $0 | $818,628 | $818,628 |
| 2022 | $17,225 | $775,000 | $0 | $792,225 | $792,225 |
| 2021 | $15,290 | $650,000 | $0 | $665,290 | $665,290 |
| 2020 | $14,932 | $625,000 | $0 | $639,932 | $639,932 |
| 2019 | $10,836 | $650,000 | $0 | $660,836 | $660,836 |
| 2018 | $7,992 | $600,000 | $0 | $607,992 | $607,992 |
| 2017 | $7,992 | $600,000 | $0 | $607,992 | $607,992 |
| 2016 | $7,992 | $600,000 | $0 | $607,992 | $607,992 |
| 2015 | $7,992 | $600,000 | $0 | $607,992 | $607,992 |
| 2014 | $7,992 | $600,000 | $0 | $607,992 | $607,992 |
| 2013 | $10,923 | $500,040 | $0 | $510,963 | $510,963 |
| 2012 | $8,771 | $500,040 | $0 | $508,811 | $508,811 |
| 2011 | $8,771 | $500,040 | $0 | $508,811 | $508,811 |
| 2010 | $10,775 | $500,040 | $0 | $510,815 | $510,815 |
| 2009 | $10,875 | $604,525 | $0 | $615,400 | $615,400 |
| 2008 | $10,975 | $604,525 | $0 | $615,500 | $615,500 |
| 2007 | $8,771 | $604,525 | $0 | $613,296 | $613,296 |
Deed and Sales History
| 1 | 03/21/2013 | QCD | Quit Claim Deed | VAN WIERINGEN, WILLIAM G | GLENNOLA LLC | | | $0.00 | 10894 | 4336920 |
| 2 | 03/21/2013 | SPWARDEED | Special Warranty Deed | VAN WIERINGEN TRUSTEE UNDIV 80% INT, NOLA R | VAN WIERINGEN, WILLIAM G | | | $0.00 | 10893 | 4336919 |
| 3 | 03/25/2010 | QCD | Quit Claim Deed | VAN WIERINGEN, WM | VAN WIERINGEN TRUSTEE UNDIV 80 | | | $0.00 | 733 | 4271330 |
| 4 | 01/01/1900 | OTHER | Other - Misc. Documents | Unknown | VAN WIERINGEN, WM | | | $0.00 | 0 | 0 |
Payout Agreement
| No payout information available.. |